Memiliki rumah dengan 5 kamar tidur di satu lantai adalah impian banyak orang. Rumah seperti ini ideal untuk keluarga besar atau mereka yang menginginkan ruang yang luas dan nyaman. Namun, mendesain rumah 5 kamar 1 lantai bukanlah hal mudah. Anda perlu mempertimbangkan berbagai faktor, mulai dari konsep desain, penataan ruang, hingga budget.
Artikel ini akan membahas secara lengkap tentang desain rumah 5 kamar 1 lantai, mulai dari konsep dasar, denah, tips desain, inspirasi dekorasi, hingga pertimbangan budget. Dengan panduan ini, Anda akan memiliki gambaran yang jelas tentang bagaimana mewujudkan hunian impian Anda.
Konsep Rumah 5 Kamar 1 Lantai

Memiliki rumah dengan 5 kamar tidur di satu lantai adalah impian banyak orang. Konsep ini menawarkan kenyamanan dan fungsionalitas yang ideal untuk keluarga besar atau mereka yang menginginkan ruang tambahan untuk tamu atau hobi. Rumah 5 kamar 1 lantai memberikan fleksibilitas dalam menata ruang, memungkinkan setiap anggota keluarga memiliki privasi dan ruang pribadi yang cukup.
Contoh Desain Rumah 5 Kamar 1 Lantai
Ada banyak contoh desain rumah 5 kamar 1 lantai dengan gaya arsitektur yang beragam. Berikut adalah beberapa contoh yang dapat menjadi inspirasi:
- Desain Minimalis Modern: Rumah dengan garis-garis bersih, bentuk geometris, dan penggunaan material modern seperti kaca, beton, dan kayu. Desain ini menciptakan tampilan yang elegan dan kontemporer.
- Desain Tropis Kontemporer: Rumah dengan sentuhan alam, penggunaan material kayu dan batu alam, serta ventilasi alami yang baik. Desain ini cocok untuk iklim tropis dan menciptakan suasana yang nyaman dan sejuk.
- Desain Klasik Eropa: Rumah dengan ciri khas arsitektur Eropa seperti atap pelana, jendela lengkung, dan ornamen-ornamen klasik. Desain ini memberikan kesan mewah dan timeless.
Perbandingan Desain Rumah 5 Kamar 1 Lantai
Berikut adalah tabel perbandingan beberapa contoh desain rumah 5 kamar 1 lantai, yang menunjukkan perbedaan luas tanah, luas bangunan, dan jumlah kamar mandi:
| Contoh Desain | Luas Tanah (m2) | Luas Bangunan (m2) | Jumlah Kamar Mandi |
|---|---|---|---|
| Minimalis Modern | 150 | 120 | 2 |
| Tropis Kontemporer | 200 | 150 | 3 |
| Klasik Eropa | 250 | 200 | 4 |
Ide Penataan Ruang Rumah 5 Kamar 1 Lantai
Penataan ruang yang optimal sangat penting untuk memaksimalkan fungsi dan kenyamanan rumah 5 kamar 1 lantai. Berikut adalah beberapa ide yang dapat Anda pertimbangkan:
- Memisahkan Area Publik dan Pribadi: Buatlah pemisahan yang jelas antara area publik (ruang tamu, ruang makan, dapur) dan area pribadi (kamar tidur). Hal ini menciptakan privasi dan ketenangan di area pribadi.
- Memanfaatkan Ruang Terbuka: Jika memungkinkan, ciptakan ruang terbuka seperti teras atau taman untuk meningkatkan sirkulasi udara dan cahaya matahari. Ruang terbuka juga dapat berfungsi sebagai area relaksasi atau ruang bermain anak.
- Mengoptimalkan Setiap Kamar: Pastikan setiap kamar memiliki fungsi yang jelas dan penataan yang efisien. Gunakan furnitur multifungsi, cermin, dan pencahayaan yang tepat untuk menciptakan ilusi ruang yang lebih luas.
- Membuat Ruang Penyimpanan yang Cukup: Rumah dengan 5 kamar membutuhkan ruang penyimpanan yang cukup untuk menampung barang-barang pribadi setiap anggota keluarga. Gunakan lemari built-in, rak dinding, atau ruang bawah tangga untuk menyimpan barang-barang dengan rapi.
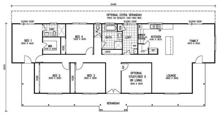
Denah Rumah 5 Kamar 1 Lantai

Membangun rumah dengan 5 kamar tidur di satu lantai bisa menjadi solusi ideal untuk keluarga besar atau yang menginginkan ruang yang lebih luas dan fleksibel. Denah rumah 5 kamar 1 lantai memungkinkan penataan ruang yang optimal, memberikan kenyamanan dan privasi bagi setiap anggota keluarga.
Contoh Denah Rumah 5 Kamar 1 Lantai
Berikut adalah contoh denah rumah 5 kamar 1 lantai yang fungsional dan nyaman. Denah ini dirancang dengan mempertimbangkan kebutuhan ruang keluarga, ruang tamu, ruang makan, dapur, dan 5 kamar tidur.
Membangun rumah 5 kamar di satu lantai memang ideal untuk keluarga besar, tapi kalau lahan terbatas, desain rumah 2 lantai bisa jadi solusinya. Nah, buat kamu yang ingin membangun rumah 2 lantai dengan budget terbatas, bisa nih intip inspirasi desain rumah 2 lantai biaya 100 juta di sini. Meskipun dengan biaya terbatas, kamu tetap bisa mendapatkan desain rumah yang modern dan fungsional.
Kembali ke desain rumah 5 kamar 1 lantai, jangan lupa pertimbangkan juga kebutuhan ruang terbuka seperti taman untuk menciptakan suasana yang nyaman dan asri.
- Ruang Tamu: Berada di bagian depan rumah, memberikan kesan hangat dan menyambut tamu. Ruang tamu dapat dihubungkan langsung dengan ruang keluarga untuk menciptakan suasana yang lebih terbuka.
- Ruang Keluarga: Berada di tengah rumah, menjadi pusat aktivitas keluarga. Ruang keluarga dapat dihubungkan dengan ruang makan dan dapur untuk memudahkan interaksi.
- Ruang Makan: Terletak di dekat dapur, memudahkan akses untuk menyajikan makanan. Ruang makan dapat dirancang dengan jendela besar untuk memberikan pencahayaan alami.
- Dapur: Terletak di dekat ruang makan, memudahkan akses untuk menyiapkan dan menyajikan makanan. Dapur dapat dilengkapi dengan area persiapan makanan dan penyimpanan yang memadai.
- Kamar Tidur Utama: Berada di bagian belakang rumah, memberikan privasi dan ketenangan. Kamar tidur utama dapat dilengkapi dengan kamar mandi pribadi dan ruang walk-in closet.
- Kamar Tidur Anak: Terletak di dekat kamar tidur utama, memudahkan pengawasan. Kamar tidur anak dapat dirancang dengan tema dan dekorasi yang sesuai dengan usia dan minat anak.
- Kamar Tidur Tamu: Terletak di dekat pintu masuk, memudahkan akses tamu. Kamar tidur tamu dapat dirancang dengan fungsional dan nyaman.
- Kamar Mandi: Terletak di dekat kamar tidur, memudahkan akses. Kamar mandi dapat dirancang dengan shower, bathtub, dan toilet yang memadai.
Layout Denah Rumah 5 Kamar 1 Lantai
Ada beberapa layout denah yang memungkinkan untuk rumah 5 kamar 1 lantai, masing-masing dengan keunggulan dan kekurangannya.
- Layout Linear: Denah ini memiliki ruangan yang tersusun secara linear, dari depan ke belakang. Keunggulan layout ini adalah aliran sirkulasi yang mudah dan sederhana. Kekurangannya adalah ruangan bisa terasa sempit dan kurang privasi.
- Layout L-Shape: Denah ini memiliki bentuk L, dengan ruang tamu dan ruang keluarga di bagian depan dan kamar tidur di bagian belakang. Keunggulan layout ini adalah memberikan privasi yang lebih baik dan ruang yang lebih luas. Kekurangannya adalah aliran sirkulasi bisa lebih rumit.
- Layout U-Shape: Denah ini memiliki bentuk U, dengan ruang tamu dan ruang keluarga di bagian depan dan kamar tidur di bagian belakang. Keunggulan layout ini adalah memberikan privasi yang baik dan ruang yang lebih luas. Kekurangannya adalah aliran sirkulasi bisa lebih rumit.
Perbedaan dan Keunggulan Masing-Masing Layout Denah
Perbedaan utama dari layout denah terletak pada penataan ruang dan aliran sirkulasi. Layout linear memiliki aliran sirkulasi yang sederhana, sedangkan layout L-shape dan U-shape memiliki aliran sirkulasi yang lebih rumit. Keunggulan masing-masing layout tergantung pada kebutuhan dan preferensi penghuni.
Membangun rumah 5 kamar di satu lantai memang menuntut perencanaan yang matang, terutama jika lahan terbatas. Namun, jangan khawatir! Inspirasi desain rumah minimalis dengan lahan sempit bisa kamu temukan di desain rumah 5×10 minimalis. Dengan pendekatan minimalis, kamu bisa memaksimalkan ruang tanpa mengurangi kenyamanan. Ide-ide dari desain rumah minimalis tersebut dapat kamu adaptasi untuk mendesain rumah 5 kamar 1 lantai yang nyaman dan fungsional, meskipun lahan yang tersedia tidak terlalu luas.
- Layout Linear: Cocok untuk keluarga kecil yang menginginkan aliran sirkulasi yang sederhana dan mudah. Layout ini juga cocok untuk rumah dengan lahan yang sempit.
- Layout L-Shape: Cocok untuk keluarga besar yang menginginkan privasi yang lebih baik dan ruang yang lebih luas. Layout ini juga cocok untuk rumah dengan lahan yang luas.
- Layout U-Shape: Cocok untuk keluarga besar yang menginginkan privasi yang baik dan ruang yang lebih luas. Layout ini juga cocok untuk rumah dengan lahan yang luas.
Tips Mendesain Rumah 5 Kamar 1 Lantai

Membangun rumah 5 kamar 1 lantai tentu membutuhkan perencanaan matang. Selain memperhatikan kebutuhan penghuni, aspek desain juga penting untuk menciptakan hunian yang nyaman, fungsional, dan ramah lingkungan. Berikut beberapa tips yang bisa Anda terapkan dalam mendesain rumah 5 kamar 1 lantai.
Desain Ramah Lingkungan dan Hemat Energi
Membangun rumah ramah lingkungan dan hemat energi adalah investasi jangka panjang yang menguntungkan. Berikut beberapa tips yang bisa Anda terapkan:
- Gunakan material bangunan yang ramah lingkungan dan mudah didaur ulang, seperti kayu olahan, bambu, atau batu bata.
- Maksimalkan pencahayaan alami dengan jendela yang besar dan desain atap yang tepat.
- Terapkan sistem ventilasi yang baik untuk sirkulasi udara segar dan mengurangi penggunaan AC.
- Gunakan sistem air hujan untuk menyiram tanaman dan mencuci kendaraan.
- Manfaatkan energi terbarukan seperti panel surya untuk pembangkit listrik.
Rekomendasi Material Bangunan
Memilih material bangunan yang tepat akan mempengaruhi kualitas dan ketahanan rumah Anda. Berikut beberapa rekomendasi material yang ideal untuk rumah 5 kamar 1 lantai:
- Struktur: Beton bertulang, baja ringan, atau kayu olahan.
- Dinding: Bata ringan, batu bata, atau panel dinding.
- Atap: Genteng beton, genteng metal, atau asbes.
- Lantai: Keramik, granit, kayu, atau vinyl.
Skema Pencahayaan dan Ventilasi Optimal
Pencahayaan dan ventilasi yang baik akan menciptakan suasana yang nyaman dan sehat di dalam rumah. Berikut beberapa tips untuk merancang skema pencahayaan dan ventilasi yang optimal:
- Gunakan jendela yang besar dan tinggi untuk memaksimalkan cahaya alami.
- Terapkan ventilasi silang dengan jendela di sisi berlawanan untuk sirkulasi udara yang baik.
- Manfaatkan skylight untuk menghadirkan cahaya alami ke area tengah rumah.
- Pilih lampu LED hemat energi untuk pencahayaan buatan.
Tips Memilih Furnitur yang Tepat
Furnitur yang tepat akan membuat setiap ruangan di rumah terasa nyaman dan fungsional. Berikut beberapa tips memilih furnitur yang sesuai untuk rumah 5 kamar 1 lantai:
- Kamar Tidur: Pilih kasur yang nyaman dan selimut yang lembut. Gunakan lemari pakaian yang cukup besar untuk menyimpan baju dan barang-barang pribadi.
- Ruang Tamu: Pilih sofa yang nyaman dan meja kopi yang sesuai dengan ukuran ruangan. Tambahkan beberapa aksesoris seperti lukisan atau tanaman hias untuk mempercantik ruangan.
- Dapur: Pilih lemari dapur yang praktis dan mudah dibersihkan. Pastikan Anda memiliki peralatan dapur yang lengkap, seperti kompor, oven, dan kulkas.
- Kamar Mandi: Gunakan shower dan toilet yang hemat air. Pilih wastafel yang mudah dibersihkan dan cermin yang besar untuk menambah kesan luas.
Inspirasi Dekorasi Rumah 5 Kamar 1 Lantai

Memiliki rumah dengan 5 kamar di satu lantai memberikan kesempatan untuk menciptakan berbagai suasana yang unik di setiap ruangan. Dekorasi yang tepat akan membuat rumah terasa lebih nyaman dan mencerminkan kepribadian penghuninya. Berikut beberapa inspirasi dekorasi untuk rumah 5 kamar 1 lantai yang bisa Anda terapkan.
Inspirasi Dekorasi Ruang Tamu
Ruang tamu adalah wajah dari sebuah rumah, maka penting untuk menciptakan kesan yang baik dan nyaman. Berikut beberapa inspirasi dekorasi ruang tamu untuk rumah 5 kamar 1 lantai:
- Tema minimalis modern: Pilih warna cat dinding netral seperti putih, abu-abu, atau krem. Gunakan furnitur minimalis dengan desain simpel dan fungsional. Tambahkan sentuhan warna dengan bantal sofa, vas bunga, atau lukisan abstrak. Contohnya, sofa berwarna abu-abu gelap dengan meja kopi kayu minimalis, dipadukan dengan karpet bermotif geometrik.
- Tema klasik elegan: Gunakan warna cat dinding yang lembut seperti krem, cokelat muda, atau biru muda. Pilih furnitur berbahan kayu dengan ukiran yang detail. Tambahkan aksesoris seperti lampu gantung kristal, lukisan klasik, dan vas bunga dengan bunga segar. Contohnya, sofa kulit berwarna cokelat tua dengan kaki kayu ukiran, dipadukan dengan meja kopi berbahan marmer.
- Tema tropis: Pilih warna cat dinding yang cerah seperti kuning, hijau, atau biru. Gunakan furnitur berbahan rotan atau kayu yang ringan. Tambahkan aksesoris seperti tanaman hijau, patung kayu, dan bantal bermotif flora. Contohnya, sofa berwarna hijau toska dengan meja kopi rotan, dipadukan dengan karpet bermotif daun-daun.
Inspirasi Dekorasi Ruang Keluarga
Ruang keluarga adalah tempat berkumpul bersama keluarga, maka penting untuk menciptakan suasana yang hangat dan nyaman. Berikut beberapa inspirasi dekorasi ruang keluarga untuk rumah 5 kamar 1 lantai:
- Tema bohemian: Pilih warna cat dinding yang hangat seperti cokelat muda, kuning mustard, atau hijau sage. Gunakan furnitur dengan berbagai tekstur dan bahan, seperti kayu, rotan, dan kain tenun. Tambahkan aksesoris seperti bantal bermotif, karpet tebal, dan tanaman gantung. Contohnya, sofa berwarna cokelat muda dengan bantal bermotif etnik, dipadukan dengan meja kopi kayu rustic dan karpet bulu tebal.
Desain rumah 5 kamar 1 lantai memang membutuhkan perencanaan yang matang. Tak hanya soal tata letak ruangan, tapi juga estetika dan fungsionalitas. Nah, untuk membantu mewujudkan desain impian, kamu bisa memanfaatkan app desain rumah yang banyak tersedia. Dengan aplikasi ini, kamu bisa bereksperimen dengan berbagai layout, material, dan warna secara virtual. Hasilnya?
Desain rumah 5 kamar 1 lantai yang sesuai dengan keinginan dan kebutuhanmu.
- Tema industrial: Pilih warna cat dinding yang gelap seperti abu-abu tua, hitam, atau biru tua. Gunakan furnitur dengan desain sederhana dan berbahan logam atau kayu reclaimed. Tambahkan aksesoris seperti lampu gantung dengan kabel terbuka, rak dinding dari besi, dan lukisan bertema industri. Contohnya, sofa berwarna abu-abu tua dengan kaki besi, dipadukan dengan meja kopi kayu reclaimed dan rak dinding dari besi.
- Tema farmhouse: Pilih warna cat dinding yang lembut seperti putih, krem, atau biru muda. Gunakan furnitur dengan desain klasik dan berbahan kayu. Tambahkan aksesoris seperti bantal bermotif bunga, karpet berbahan alami, dan tanaman hijau. Contohnya, sofa berwarna putih dengan bantal bermotif bunga, dipadukan dengan meja kopi kayu rustic dan karpet berbahan tenun.
Inspirasi Dekorasi Kamar Tidur
Kamar tidur adalah tempat untuk beristirahat dan melepaskan penat, maka penting untuk menciptakan suasana yang tenang dan nyaman. Berikut beberapa inspirasi dekorasi kamar tidur untuk rumah 5 kamar 1 lantai:
- Tema minimalis: Pilih warna cat dinding yang lembut seperti putih, krem, atau abu-abu muda. Gunakan furnitur minimalis dengan desain simpel dan fungsional. Tambahkan sentuhan warna dengan sprei, gorden, atau bantal. Contohnya, tempat tidur berwarna putih dengan sprei bermotif garis-garis, dipadukan dengan meja rias minimalis dan lampu tidur dengan desain simpel.
- Tema vintage: Pilih warna cat dinding yang lembut seperti pink pastel, biru muda, atau hijau mint. Gunakan furnitur dengan desain klasik dan berbahan kayu. Tambahkan aksesoris seperti lampu meja dengan desain vintage, cermin berbingkai, dan lukisan bertema vintage. Contohnya, tempat tidur dengan headboard kayu ukiran, dipadukan dengan meja rias berbahan kayu dan lampu meja dengan desain vintage.
- Tema modern: Pilih warna cat dinding yang berani seperti hitam, biru tua, atau hijau tua. Gunakan furnitur dengan desain modern dan berbahan logam atau kayu. Tambahkan aksesoris seperti lukisan abstrak, lampu gantung dengan desain modern, dan karpet bermotif geometrik. Contohnya, tempat tidur berwarna hitam dengan headboard berbahan logam, dipadukan dengan meja rias dengan desain modern dan lampu gantung dengan desain modern.
Rekomendasi Warna Cat dan Tema Dekorasi
Berikut tabel yang berisi rekomendasi warna cat dan tema dekorasi untuk setiap ruangan di rumah 5 kamar 1 lantai:
| Ruangan | Warna Cat | Tema Dekorasi |
|---|---|---|
| Ruang Tamu | Putih, abu-abu, krem | Minimalis modern, klasik elegan, tropis |
| Ruang Keluarga | Cokelat muda, kuning mustard, hijau sage | Bohemian, industrial, farmhouse |
| Kamar Tidur Utama | Putih, krem, abu-abu muda | Minimalis, vintage, modern |
| Kamar Tidur Anak | Kuning, biru, pink | Anak-anak, minimalis, modern |
| Kamar Tamu | Putih, krem, biru muda | Minimalis, klasik, modern |
Cara Mengoptimalkan Pencahayaan dan Penataan Furnitur
Pencahayaan dan penataan furnitur yang tepat akan membuat rumah 5 kamar 1 lantai terasa lebih nyaman dan fungsional. Berikut beberapa tipsnya:
- Pencahayaan: Gunakan kombinasi pencahayaan alami dan buatan. Pastikan setiap ruangan memiliki jendela yang cukup untuk memaksimalkan cahaya matahari. Tambahkan lampu gantung, lampu dinding, dan lampu meja untuk menambah pencahayaan di malam hari. Pilih warna lampu yang hangat untuk menciptakan suasana yang nyaman.
- Penataan Furnitur: Atur furnitur dengan bijak agar ruangan terasa lega dan fungsional. Hindari meletakkan furnitur terlalu dekat dengan dinding. Gunakan karpet untuk membagi ruangan menjadi beberapa zona. Pilih furnitur dengan desain yang sesuai dengan tema dekorasi.
Contoh Dekorasi Dinding yang Menarik
Dekorasi dinding dapat menambah nilai estetika dan kepribadian pada rumah 5 kamar 1 lantai. Berikut beberapa contoh dekorasi dinding yang menarik:
- Wallpaper: Pilih wallpaper dengan motif yang sesuai dengan tema dekorasi. Anda bisa menggunakan wallpaper dengan motif bunga, geometrik, atau abstrak. Wallpaper dapat diaplikasikan di seluruh dinding atau hanya pada bagian tertentu.
- Lukisan: Gunakan lukisan dengan tema yang sesuai dengan selera Anda. Anda bisa menggunakan lukisan abstrak, realistis, atau potret. Lukisan dapat digantung di dinding atau diletakkan di atas meja.
- Rak Dinding: Rak dinding dapat digunakan untuk menyimpan buku, pajangan, atau tanaman. Pilih rak dinding dengan desain yang sesuai dengan tema dekorasi.
- Cermin: Cermin dapat membuat ruangan terasa lebih luas dan terang. Pilih cermin dengan desain yang sesuai dengan tema dekorasi.
Pertimbangan Budget

Membangun rumah 5 kamar 1 lantai tentu membutuhkan perencanaan budget yang matang. Pastikan kamu memahami rincian biaya pembangunan, perbandingan biaya untuk berbagai gaya arsitektur, dan tips untuk menghemat biaya. Dengan demikian, kamu dapat merencanakan anggaran yang realistis dan menghindari pembengkakan biaya di kemudian hari.
Rincian Biaya Pembangunan
Biaya pembangunan rumah 5 kamar 1 lantai dipengaruhi oleh berbagai faktor, seperti material bangunan, luas bangunan, desain arsitektur, dan lokasi pembangunan. Berikut adalah rincian biaya pembangunan rumah 5 kamar 1 lantai dengan berbagai material bangunan:
- Material bangunan standar: Untuk rumah dengan luas bangunan sekitar 100 meter persegi, biaya pembangunan dengan material bangunan standar berkisar antara Rp 1.500.000 – Rp 2.000.000 per meter persegi. Ini termasuk biaya untuk fondasi, struktur bangunan, dinding, atap, dan finishing.
- Material bangunan berkualitas tinggi: Jika kamu menginginkan rumah dengan kualitas yang lebih baik, kamu dapat memilih material bangunan berkualitas tinggi. Biaya pembangunannya akan lebih mahal, berkisar antara Rp 2.500.000 – Rp 3.000.000 per meter persegi.
- Material bangunan ramah lingkungan: Saat ini, banyak orang yang memilih material bangunan ramah lingkungan. Biaya pembangunannya relatif lebih mahal dibandingkan dengan material bangunan standar, namun menawarkan keuntungan jangka panjang seperti ketahanan dan efisiensi energi.
Perbandingan Biaya Berbagai Gaya Arsitektur
Biaya pembangunan rumah 5 kamar 1 lantai juga dipengaruhi oleh gaya arsitektur yang dipilih. Berikut adalah perbandingan biaya pembangunan rumah 5 kamar 1 lantai dengan berbagai gaya arsitektur:
| Gaya Arsitektur | Perkiraan Biaya (Rp/m²) | Keterangan |
|---|---|---|
| Minimalis | Rp 1.500.000 – Rp 2.000.000 | Desain sederhana, penggunaan material minimalis, dan konstruksi yang efisien. |
| Modern | Rp 2.000.000 – Rp 2.500.000 | Desain modern, penggunaan material berkualitas tinggi, dan penekanan pada detail. |
| Tropis | Rp 1.800.000 – Rp 2.300.000 | Desain yang mengutamakan sirkulasi udara dan pencahayaan alami, penggunaan material lokal, dan penekanan pada elemen alam. |
Tips Menghemat Biaya Pembangunan
Berikut beberapa tips untuk menghemat biaya pembangunan rumah 5 kamar 1 lantai:
- Pilih desain yang sederhana: Desain yang sederhana dan minimalis akan mengurangi biaya pembangunan. Hindari desain yang rumit dan membutuhkan banyak detail.
- Manfaatkan material lokal: Material lokal umumnya lebih murah dibandingkan dengan material impor. Selain itu, penggunaan material lokal juga mendukung ekonomi lokal.
- Rencanakan konstruksi dengan matang: Perencanaan yang matang akan meminimalisir pemborosan material dan tenaga kerja. Ini akan membantu menghemat biaya pembangunan secara keseluruhan.
- Manfaatkan jasa kontraktor yang berpengalaman: Kontraktor yang berpengalaman dapat membantu kamu merencanakan dan membangun rumah dengan efisien. Mereka juga dapat memberikan saran untuk menghemat biaya pembangunan.
- Lakukan pengawasan secara berkala: Pengawasan secara berkala akan membantu kamu memastikan bahwa pembangunan rumah sesuai dengan rencana dan tidak terjadi pembengkakan biaya.
Metode Pembiayaan
Ada beberapa metode pembiayaan yang dapat kamu gunakan untuk membangun rumah 5 kamar 1 lantai:
- Kredit Pemilikan Rumah (KPR): KPR adalah metode pembiayaan yang paling umum digunakan untuk membangun rumah. Kamu dapat mengajukan KPR ke bank atau lembaga keuangan lainnya.
- Pinjaman pribadi: Kamu juga dapat mengajukan pinjaman pribadi untuk membiayai pembangunan rumah. Namun, bunga pinjaman pribadi biasanya lebih tinggi dibandingkan dengan KPR.
- Tabungan: Jika kamu memiliki tabungan yang cukup, kamu dapat menggunakannya untuk membiayai pembangunan rumah. Ini adalah metode pembiayaan yang paling aman dan tidak memiliki bunga.
- Dana pensiun: Jika kamu memiliki dana pensiun yang cukup, kamu dapat menggunakannya untuk membiayai pembangunan rumah. Namun, pastikan kamu tidak mengambil dana pensiun terlalu banyak agar tidak mengganggu kebutuhan di masa depan.
Mendesain rumah 5 kamar 1 lantai membutuhkan perencanaan yang matang dan detail. Dengan memahami konsep dasar, denah, tips desain, dan pertimbangan budget, Anda dapat menciptakan hunian yang nyaman, fungsional, dan sesuai dengan kebutuhan keluarga. Ingatlah bahwa rumah impian Anda dapat diwujudkan dengan perencanaan yang tepat dan pemilihan material yang berkualitas.
Sudut Pertanyaan Umum (FAQ): Desain Rumah 5 Kamar 1 Lantai
Bagaimana cara menentukan luas tanah yang ideal untuk rumah 5 kamar 1 lantai?
Luas tanah ideal tergantung pada jumlah kamar mandi, luas ruangan, dan kebutuhan tambahan seperti taman atau carport. Konsultasikan dengan arsitek untuk menentukan luas tanah yang optimal.
Apa saja jenis material bangunan yang cocok untuk rumah 5 kamar 1 lantai?
Pilih material yang kuat, tahan lama, dan sesuai dengan budget Anda. Beberapa pilihan material yang populer adalah batu bata, beton, kayu, dan baja.
Bagaimana cara memilih furnitur yang tepat untuk rumah 5 kamar 1 lantai?
Pilih furnitur yang multifungsi, ergonomis, dan sesuai dengan gaya desain rumah. Pertimbangkan juga ukuran ruangan dan aliran sirkulasi.

