Desain rumah 5×10 minimalis – Memiliki rumah minimalis dengan ukuran 5×10 meter mungkin terdengar terbatas, namun jangan salah! Dengan perencanaan yang tepat, Anda bisa menciptakan hunian yang nyaman, fungsional, dan estetis. Desain rumah 5×10 meter minimalis menawarkan solusi cerdas untuk memaksimalkan ruang terbatas, menciptakan suasana yang bersih dan modern, dan tetap mengedepankan kenyamanan penghuninya.
Artikel ini akan membahas secara lengkap tentang desain rumah 5×10 meter minimalis, mulai dari konsep minimalis, tata letak ruangan, inspirasi desain eksterior dan interior, hingga pencahayaan dan ventilasi. Simak selengkapnya untuk menemukan inspirasi dan panduan praktis dalam mewujudkan hunian impian Anda!
Konsep Desain Minimalis

Membangun rumah minimalis di lahan terbatas 5×10 meter bukan berarti harus membatasi mimpi dan kenyamanan. Konsep minimalis, dengan fokus pada fungsionalitas dan kesederhanaan, justru bisa menjadi solusi untuk menciptakan hunian yang efisien dan estetis.
Pengertian Desain Minimalis
Desain minimalis pada rumah 5×10 meter menekankan pada penggunaan ruang yang efisien, meminimalkan dekorasi berlebihan, dan memaksimalkan cahaya alami. Konsep ini tidak hanya tentang kesederhanaan, tetapi juga tentang menciptakan ruang yang tenang, bersih, dan terstruktur.
Elemen Desain Minimalis
Berikut adalah beberapa elemen desain minimalis yang umum diterapkan pada rumah 5×10 meter:
- Garis-garis bersih dan sederhana: Rumah minimalis cenderung menggunakan garis-garis lurus dan bentuk geometris sederhana untuk menciptakan kesan yang bersih dan modern.
- Warna netral: Palet warna yang dominan pada desain minimalis adalah warna-warna netral seperti putih, abu-abu, hitam, dan krem. Warna-warna ini menciptakan suasana yang tenang dan lapang.
- Pencahayaan alami: Pemanfaatan cahaya alami melalui jendela besar dan bukaan yang luas sangat penting dalam desain minimalis. Cahaya alami membantu menciptakan suasana yang terang dan ceria.
Material Bangunan Minimalis
Pemilihan material bangunan juga berperan penting dalam menciptakan desain minimalis. Berikut adalah beberapa contoh material bangunan yang cocok untuk rumah 5×10 meter:
| Material | Keunggulan | Kekurangan |
|---|---|---|
| Bata ekspos | Memberikan kesan natural dan industrial, mudah diaplikasikan | Membutuhkan perawatan khusus untuk menjaga keindahannya |
| Kayu solid | Tahan lama, ramah lingkungan, estetis | Harga relatif mahal, mudah lapuk jika tidak dirawat dengan baik |
| Kaca | Membuat ruangan terasa lebih luas, memungkinkan cahaya alami masuk | Rentan terhadap goresan dan pecah, membutuhkan perawatan khusus |
| Besi | Kokoh, tahan lama, mudah dibentuk | Bisa berkarat jika tidak dirawat dengan baik, bisa terlihat dingin |
| Seng | Ringan, mudah diaplikasikan, harga relatif terjangkau | Tidak sekuat material lain, mudah berkarat jika tidak dirawat dengan baik |
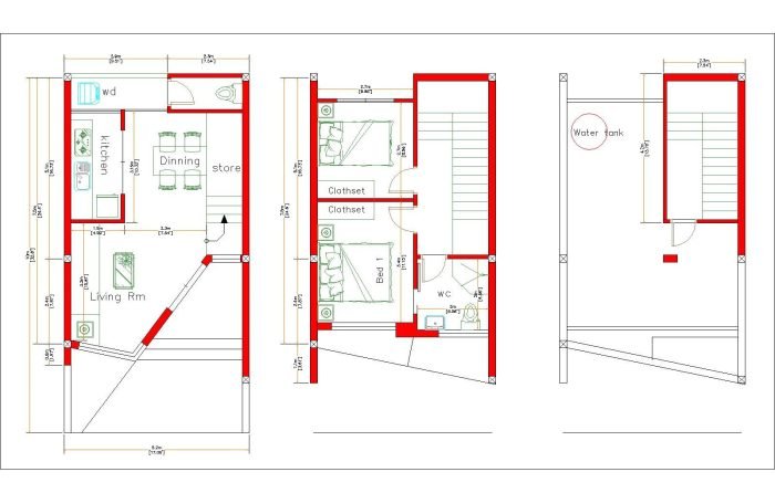
Tata Letak Ruangan: Desain Rumah 5×10 Minimalis

Tata letak ruangan adalah aspek penting dalam desain rumah minimalis 5×10 meter. Penataan yang tepat akan memaksimalkan ruang, menciptakan sirkulasi yang lancar, dan menghasilkan suasana yang nyaman.
Contoh Denah Rumah Minimalis 5×10 Meter
Berikut contoh denah rumah minimalis 5×10 meter dengan 2 kamar tidur dan 1 kamar mandi. Denah ini dirancang untuk memaksimalkan penggunaan ruang dan memberikan kenyamanan bagi penghuni.
Desain rumah 5×10 minimalis memang menantang, tapi jangan khawatir! Kamu bisa eksplorasi berbagai ide dan visualisasi desain dengan bantuan aplikasi desain rumah pc. Aplikasi ini memudahkan kamu dalam merancang denah, memilih furnitur, dan bahkan melihat simulasi pencahayaan. Dengan begitu, kamu bisa memaksimalkan setiap sudut ruangan dalam desain rumah 5×10 minimalismu.
| Ruangan | Luas (m²) |
|---|---|
| Kamar Tidur Utama | 10 |
| Kamar Tidur Anak | 8 |
| Kamar Mandi | 4 |
| Ruang Tamu | 12 |
| Dapur | 6 |
| Teras | 5 |
| Total | 45 |
Perhatikan bahwa perkiraan luas setiap ruangan ini dapat disesuaikan dengan kebutuhan dan preferensi penghuni.
Desain rumah 5×10 minimalis memang terbatas, tapi jangan khawatir! Kamu bisa memanfaatkan ruang vertikal dengan membangun rumah 2 lantai. Konsep desain rumah atap miring 2 lantai bisa jadi pilihan yang menarik. Atap miring memberikan kesan modern dan luas, sekaligus menambah ruang di lantai atas. Rumah 5×10 minimalis dengan atap miring 2 lantai bisa jadi solusi hunian mungil yang tetap stylish dan fungsional.
Inspirasi Desain Eksterior

Desain eksterior rumah minimalis 5×10 meter punya peran penting dalam menciptakan kesan pertama yang menarik. Pemilihan gaya arsitektur, kombinasi warna, dan material eksterior yang tepat dapat menjadikan rumah mungil Anda terlihat lebih luas, modern, dan estetis.
Contoh Desain Fasad Rumah Minimalis Modern
Berikut ini tiga contoh desain fasad rumah 5×10 meter minimalis dengan gaya arsitektur modern yang bisa Anda jadikan inspirasi:
- Desain Fasad dengan Aksen Bata Ekspos: Bata ekspos dapat memberikan kesan industrial dan modern pada rumah. Anda bisa mengaplikasikannya pada bagian dinding depan, dikombinasikan dengan jendela kaca yang besar untuk memberikan kesan luas dan modern.
- Desain Fasad dengan Sentuhan Kayu: Kayu memberikan kesan hangat dan natural. Anda bisa menggunakan kayu untuk bagian teras, pagar, atau sebagai aksen pada dinding. Kombinasikan dengan dinding putih untuk menciptakan kontras yang menarik.
- Desain Fasad dengan Aksen Beton: Beton memberikan kesan minimalis dan modern. Anda bisa menggunakan beton untuk bagian teras, pagar, atau sebagai aksen pada dinding. Kombinasikan dengan tanaman hijau untuk memberikan kesan segar dan asri.
Kombinasi Warna Cat Eksterior
Pemilihan warna cat eksterior yang tepat dapat memberikan kesan yang berbeda pada rumah. Berikut ini lima contoh kombinasi warna cat eksterior yang cocok untuk rumah 5×10 meter minimalis:
| Warna Utama | Warna Sekunder | Warna Aksen |
|---|---|---|
| Putih | Abu-abu Muda | Biru Muda |
| Cream | Coklat Muda | Hijau Tosca |
| Biru Muda | Putih | Coklat Muda |
| Hijau Muda | Putih | Coklat Tua |
| Coklat Muda | Putih | Biru Tua |
Penggunaan Material Eksterior
Material eksterior yang tepat dapat memperkuat desain rumah minimalis 5×10 meter Anda. Berikut ini beberapa contoh penggunaan material eksterior seperti batu alam, kayu, dan besi:
- Batu Alam: Batu alam dapat memberikan kesan natural dan elegan pada rumah. Anda bisa menggunakan batu alam untuk bagian teras, dinding, atau pagar. Pilih batu alam dengan warna dan tekstur yang sesuai dengan desain rumah Anda.
- Kayu: Kayu dapat memberikan kesan hangat dan natural pada rumah. Anda bisa menggunakan kayu untuk bagian teras, pagar, atau sebagai aksen pada dinding. Pilih kayu yang tahan lama dan mudah perawatan.
- Besi: Besi dapat memberikan kesan modern dan industrial pada rumah. Anda bisa menggunakan besi untuk bagian pagar, kanopi, atau sebagai aksen pada dinding. Pilih besi yang berkualitas tinggi dan tahan karat.
Inspirasi Desain Interior

Memiliki rumah minimalis 5×10 meter bukan berarti Anda harus mengorbankan estetika dan kenyamanan. Justru, dengan desain yang tepat, rumah mungil ini bisa terasa lapang dan fungsional. Berikut beberapa inspirasi desain interior yang bisa Anda terapkan untuk menciptakan rumah impian minimalis yang nyaman dan stylish.
Ruang Tamu Minimalis
Ruang tamu adalah wajah dari rumah. Untuk menciptakan ruang tamu minimalis yang nyaman dan menarik, Anda bisa menggunakan sofa minimalis dengan warna netral seperti abu-abu atau putih. Padukan dengan meja kopi dengan desain sederhana dan rak dinding untuk menyimpan dekorasi atau buku. Penggunaan cermin besar di dinding juga bisa memberikan kesan luas pada ruangan.
Kamar Tidur Minimalis
Kamar tidur adalah ruang privat yang membutuhkan suasana tenang dan nyaman. Untuk menciptakan kamar tidur minimalis yang ideal, Anda bisa memilih tempat tidur dengan headboard minimalis. Gunakan warna-warna lembut seperti biru muda, putih, atau krem untuk cat dinding. Tambahkan rak dinding untuk menyimpan buku atau aksesoris. Anda juga bisa menggunakan lampu tidur dengan desain minimalis untuk menciptakan suasana yang lebih hangat dan nyaman.
Dapur Minimalis
Dapur minimalis idealnya memiliki desain yang praktis dan fungsional. Gunakan lemari dapur dengan desain minimalis dan warna-warna netral seperti putih atau abu-abu. Gunakan countertop dengan bahan yang mudah dibersihkan seperti granit atau marmer. Tambahkan lampu gantung minimalis di atas meja makan untuk memberikan pencahayaan yang optimal dan estetis.
Desain rumah 5×10 minimalis memang ideal untuk lahan terbatas, tapi kamu juga bisa punya rumah 2 lantai dengan budget terbatas lho! Nah, kalau kamu punya dana sekitar 100 juta, kamu bisa mengintip inspirasi desain rumah 2 lantai biaya 100 juta di sini. Walaupun berbeda konsep, desain rumah 5×10 minimalis bisa jadi inspirasi untuk memaksimalkan ruang di rumah 2 lantai.
Misalnya, kamu bisa menerapkan konsep minimalis di setiap ruangan agar terlihat lebih luas dan lega.
Trik Desain Interior untuk Kesan Luas
Berikut beberapa trik desain interior yang bisa Anda terapkan untuk menciptakan kesan luas pada rumah 5×10 meter minimalis:
- Gunakan warna-warna terang dan netral seperti putih, krem, abu-abu, atau biru muda. Warna-warna terang dapat memantulkan cahaya dan membuat ruangan terasa lebih luas.
- Pilih furnitur dengan desain minimalis dan fungsional. Hindari penggunaan furnitur yang besar dan memakan banyak tempat.
- Manfaatkan cermin untuk menciptakan ilusi ruang yang lebih luas. Letakkan cermin di dinding yang berlawanan dengan jendela atau pintu.
Furniture Multifungsi, Desain rumah 5×10 minimalis
Untuk memaksimalkan ruang di rumah minimalis, Anda bisa memanfaatkan furnitur multifungsi. Berikut 5 contoh furnitur multifungsi yang ideal untuk rumah 5×10 meter minimalis:
- Sofa bed: Sofa bed bisa berfungsi sebagai tempat duduk dan tempat tidur, sehingga sangat cocok untuk rumah minimalis yang terbatas ruang.
- Meja lipat: Meja lipat bisa dilipat saat tidak digunakan, sehingga dapat menghemat ruang. Meja lipat ini bisa digunakan sebagai meja makan, meja kerja, atau meja belajar.
- Rak dinding: Rak dinding bisa digunakan untuk menyimpan berbagai macam barang, mulai dari buku, dekorasi, hingga peralatan dapur. Dengan menggunakan rak dinding, Anda bisa memaksimalkan ruang vertikal di rumah.
- Storage bed: Storage bed memiliki tempat penyimpanan di bagian bawah tempat tidur, sehingga bisa digunakan untuk menyimpan barang-barang yang tidak terpakai. Storage bed sangat cocok untuk menyimpan selimut, bantal, atau pakaian.
- Kabinet multifungsi: Kabinet multifungsi bisa digunakan untuk menyimpan berbagai macam barang, seperti pakaian, peralatan dapur, atau peralatan elektronik. Kabinet multifungsi biasanya memiliki beberapa laci dan rak, sehingga Anda bisa memaksimalkan ruang penyimpanan.
Pencahayaan dan Ventilasi

Pencahayaan dan ventilasi merupakan elemen penting dalam desain rumah minimalis 5×10 meter. Keduanya saling terkait, menghadirkan kenyamanan dan keseimbangan estetika dalam ruang yang terbatas. Dengan pencahayaan alami yang maksimal, rumah terasa lebih luas dan lapang. Sementara ventilasi yang baik memastikan sirkulasi udara segar, menjaga suasana tetap nyaman dan sehat.
Contoh Desain Pencahayaan Alami yang Efektif
Memanfaatkan pencahayaan alami secara optimal di rumah 5×10 meter minimalis membutuhkan perencanaan yang cermat. Berikut beberapa contoh desain yang dapat diterapkan:
- Jendela Besar di Dinding Depan: Memasang jendela besar di dinding depan, menghadap ke arah matahari pagi, memungkinkan cahaya masuk dengan optimal. Desain ini sangat efektif untuk ruang tamu atau ruang makan, menciptakan suasana cerah dan hangat.
- Skylight di Atap: Memasang skylight di atap dapat menghadirkan cahaya alami yang lembut ke seluruh ruangan. Cocok untuk kamar tidur atau ruang keluarga, menciptakan suasana tenang dan menenangkan.
- Jendela Vertikal di Sisi Rumah: Memasang jendela vertikal di sisi rumah, menghadap ke arah matahari siang, memungkinkan cahaya masuk dengan optimal ke bagian dalam rumah. Desain ini cocok untuk dapur atau ruang kerja, menciptakan suasana terang dan fokus.
Cara Memanfaatkan Ventilasi Alami
Ventilasi alami berperan penting dalam menciptakan sirkulasi udara yang baik di rumah 5×10 meter minimalis. Berikut beberapa cara memanfaatkannya:
- Jendela di Beranda: Memasang jendela di beranda, menghadap ke arah angin, memungkinkan udara segar masuk dengan optimal. Desain ini cocok untuk rumah dengan beranda yang luas, menciptakan sirkulasi udara yang baik di seluruh ruangan.
- Ventilasi Silang: Memasang jendela di sisi berlawanan rumah, menciptakan ventilasi silang, memungkinkan udara segar masuk dan udara panas keluar dengan mudah. Desain ini cocok untuk rumah dengan ruang yang terbatas, menciptakan sirkulasi udara yang baik di seluruh ruangan.
- Bukaan di Dinding: Memasang bukaan di dinding, seperti ventilasi atau louver, memungkinkan udara segar masuk dan udara panas keluar dengan mudah. Desain ini cocok untuk kamar mandi atau dapur, menciptakan sirkulasi udara yang baik dan mencegah kelembaban.
Jenis Jendela yang Cocok untuk Rumah 5×10 Meter Minimalis
| Jenis Jendela | Keunggulan | Kekurangan |
|---|---|---|
| Jendela Geser | Mudah dibuka dan ditutup, hemat ruang, cocok untuk ruangan sempit. | Tidak cocok untuk ventilasi silang, kurang efektif untuk cahaya masuk. |
| Jendela Lipat | Membuka ruang yang luas, memungkinkan cahaya masuk maksimal, cocok untuk ventilasi silang. | Membutuhkan ruang lebih besar, lebih mahal daripada jendela geser. |
| Jendela Kaca Bening | Membiarkan cahaya masuk maksimal, memberikan pemandangan yang luas. | Kurang privasi, mudah kotor, membutuhkan perawatan rutin. |
| Jendela Kaca Buram | Menyediakan privasi, mengurangi panas matahari, cocok untuk ruangan yang membutuhkan privasi. | Menghalangi cahaya masuk, kurang estetis. |
| Jendela Kayu | Estetis, tahan lama, cocok untuk rumah dengan gaya tradisional. | Lebih mahal daripada jendela aluminium, membutuhkan perawatan rutin. |
Membangun rumah 5×10 meter minimalis bukan hanya tentang menghemat lahan, tetapi juga tentang menciptakan gaya hidup yang sederhana, efisien, dan estetis. Dengan panduan ini, Anda dapat menciptakan rumah yang nyaman, fungsional, dan mencerminkan kepribadian Anda. Ingat, kunci utama adalah perencanaan yang matang, pemilihan material yang tepat, dan kreativitas dalam memaksimalkan setiap sudut ruangan.
FAQ Terpadu
Apakah rumah 5×10 meter cukup untuk keluarga kecil?
Ya, dengan perencanaan yang tepat, rumah 5×10 meter bisa cukup untuk keluarga kecil. Anda dapat memaksimalkan ruang dengan menggunakan furniture multifungsi dan desain minimalis.
Berapa biaya yang dibutuhkan untuk membangun rumah 5×10 meter minimalis?
Biaya pembangunan rumah 5×10 meter minimalis bervariasi tergantung material, desain, dan lokasi. Konsultasikan dengan arsitek atau kontraktor untuk mendapatkan estimasi biaya yang akurat.
Bagaimana cara mendapatkan inspirasi desain rumah 5×10 meter minimalis?
Anda dapat mencari inspirasi di majalah desain, website, dan platform media sosial. Atau, konsultasikan dengan arsitek untuk mendapatkan desain yang sesuai dengan kebutuhan dan keinginan Anda.

