Membangun rumah adalah impian banyak orang, dan langkah pertama yang penting adalah membuat sketsa bangunan rumah. Sketsa ini bukan hanya sekadar gambar sederhana, tetapi merupakan blueprint awal yang menggambarkan visi dan keinginan Anda untuk hunian ideal. Sketsa bangunan rumah membantu Anda memvisualisasikan desain, menentukan tata letak ruangan, dan bahkan memperkirakan biaya pembangunan.
Dari memahami definisi sketsa hingga menguasai teknik menggambar, artikel ini akan menjadi panduan lengkap untuk Anda dalam menciptakan sketsa bangunan rumah yang menarik dan fungsional. Simak penjelasannya dan temukan inspirasi untuk mewujudkan rumah impian Anda!
Pengertian Sketsa Bangunan Rumah

Sketsa bangunan rumah merupakan gambaran awal dari desain sebuah rumah yang dibuat dengan tangan atau menggunakan perangkat lunak desain. Sketsa ini berfungsi sebagai blueprint dasar yang menggambarkan bentuk, ukuran, dan tata letak ruangan dalam rumah.
Contoh Sketsa Bangunan Rumah Sederhana
Bayangkan sebuah sketsa rumah sederhana dengan bentuk persegi panjang. Di bagian depan, terdapat pintu masuk yang diapit oleh dua jendela. Di sebelah kanan dan kiri pintu, terdapat teras yang dihiasi dengan tanaman hijau. Di bagian belakang, terdapat halaman kecil yang bisa digunakan untuk menjemur pakaian atau bersantai.
Sketsa bangunan rumah adalah langkah awal yang penting untuk mewujudkan hunian impian. Dalam proses perencanaan, kita bisa menjelajahi berbagai inspirasi, seperti turen indah bangunan , yang menawarkan sentuhan tradisional yang elegan. Turen tidak hanya mempercantik fasad rumah, tapi juga menciptakan suasana yang menenangkan dan menyambut tamu dengan hangat.
Dengan memperhatikan detail sketsa dan inspirasi dari turen, kita bisa menciptakan rumah yang unik dan mencerminkan kepribadian kita.
Di dalam rumah, terdapat tiga ruangan utama: ruang tamu, kamar tidur, dan dapur. Ruang tamu berada di bagian depan, dihubungkan dengan teras melalui pintu kaca. Kamar tidur berada di sebelah kanan ruang tamu, dan dapur berada di sebelah kiri. Di antara kamar tidur dan dapur, terdapat kamar mandi kecil.
Sketsa ini juga menunjukkan detail lain seperti ukuran ruangan, jenis material yang digunakan, dan penempatan furnitur. Dengan melihat sketsa ini, kita bisa mendapatkan gambaran yang jelas tentang bagaimana rumah tersebut akan terlihat dan berfungsi.
Manfaat Membuat Sketsa Bangunan Rumah
Membuat sketsa bangunan rumah sebelum membangun memiliki banyak manfaat, di antaranya:
- Membantu dalam merencanakan desain rumah dengan lebih matang.
- Memudahkan dalam mengkomunikasikan ide desain kepada arsitek atau kontraktor.
- Meminimalisir kesalahan dalam pembangunan dan meminimalisir pemborosan biaya.
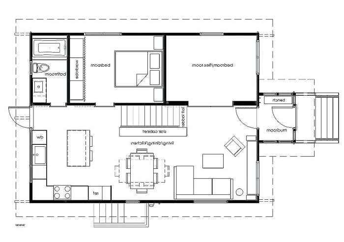
Elemen Penting dalam Sketsa Bangunan Rumah

Sketsa bangunan rumah merupakan representasi awal dari desain rumah yang ingin dibangun. Sketsa ini berfungsi sebagai panduan visual dan blueprint untuk tahap pembangunan selanjutnya. Sketsa yang baik haruslah detail dan akurat agar memudahkan proses pembangunan dan menghindari kesalahan yang merugikan.
Sketsa bangunan rumah tidak hanya sekadar gambar sederhana, melainkan mengandung elemen-elemen penting yang harus diperhatikan. Elemen-elemen ini saling terkait dan memiliki peran penting dalam menentukan fungsi, estetika, dan kelayakan bangunan.
Elemen Penting dalam Sketsa
Ada beberapa elemen penting yang harus ada dalam sketsa bangunan rumah. Elemen-elemen ini saling berhubungan dan membentuk keseluruhan desain rumah.
- Denah Lantai:Denah lantai merupakan gambaran tata letak ruangan dalam satu tingkat bangunan. Denah lantai menunjukkan bentuk, ukuran, dan posisi setiap ruangan, seperti ruang tamu, ruang keluarga, kamar tidur, dapur, dan kamar mandi. Denah lantai juga menunjukkan letak pintu, jendela, dan tangga.
Sketsa bangunan rumah menjadi pondasi awal dalam mewujudkan hunian impian. Sebelum membangun, kamu bisa menggambar sketsa yang detail, lengkap dengan ukuran dan penempatan ruangan. Nah, untuk mewujudkan sketsa tersebut, kamu bisa mencari bahan bangunan berkualitas di depo bangunan Lampung.
Depo ini menyediakan berbagai macam material, mulai dari semen, batu bata, hingga kayu, sehingga kamu bisa mendapatkan semuanya dalam satu tempat. Dengan bahan bangunan yang lengkap, kamu bisa merealisasikan sketsa bangunan rumahmu dengan lebih mudah dan efisien.
- Tampak Depan:Tampak depan menunjukkan wajah bangunan dari arah depan. Tampak depan menggambarkan bentuk bangunan, material fasad, dan detail arsitektur, seperti jendela, pintu, dan atap. Tampak depan membantu menentukan estetika dan karakter bangunan.
- Tampak Samping:Tampak samping menunjukkan sisi bangunan dari arah samping. Tampak samping menggambarkan bentuk bangunan, material fasad, dan detail arsitektur, seperti jendela, pintu, dan atap. Tampak samping membantu menentukan estetika dan karakter bangunan.
- Potongan Melintang:Potongan melintang merupakan irisan vertikal bangunan yang menunjukkan struktur internal bangunan. Potongan melintang menunjukkan ketinggian ruangan, posisi lantai dan atap, serta detail konstruksi, seperti dinding, kolom, dan balok. Potongan melintang membantu memahami struktur dan fungsionalitas bangunan.
- Keterangan:Keterangan merupakan informasi tambahan yang menjelaskan detail sketsa, seperti material, ukuran, dan spesifikasi. Keterangan membantu memahami desain dan memudahkan proses pembangunan.
Fungsi dan Contoh Elemen Sketsa
| Elemen | Fungsi | Contoh |
|---|---|---|
| Denah Lantai | Menunjukkan tata letak ruangan, ukuran, dan posisi pintu, jendela, dan tangga. | Denah lantai rumah dengan 3 kamar tidur, 1 ruang tamu, 1 ruang keluarga, 1 dapur, dan 2 kamar mandi. |
| Tampak Depan | Menunjukkan bentuk bangunan, material fasad, dan detail arsitektur, seperti jendela, pintu, dan atap. | Tampak depan rumah dengan fasad bata merah, jendela kaca, dan atap genteng. |
| Tampak Samping | Menunjukkan bentuk bangunan, material fasad, dan detail arsitektur, seperti jendela, pintu, dan atap. | Tampak samping rumah dengan taman kecil di samping bangunan. |
| Potongan Melintang | Menunjukkan struktur internal bangunan, ketinggian ruangan, posisi lantai dan atap, serta detail konstruksi. | Potongan melintang rumah dengan 2 lantai, menunjukkan posisi tangga, ruang tamu, dan ruang tidur di lantai atas. |
| Keterangan | Menjelaskan detail sketsa, seperti material, ukuran, dan spesifikasi. | Keterangan pada denah lantai menunjukkan jenis material lantai, ukuran ruangan, dan jenis pintu yang digunakan. |
Merancang Tata Letak Ruangan yang Efisien dan Fungsional
Merancang tata letak ruangan yang efisien dan fungsional adalah salah satu aspek penting dalam sketsa bangunan rumah. Tata letak ruangan yang baik akan menciptakan ruang yang nyaman, fungsional, dan estetis. Berikut beberapa tips untuk merancang tata letak ruangan yang efisien dan fungsional:
- Tentukan Kebutuhan dan Aktivitas:Sebelum merancang tata letak, tentukan kebutuhan dan aktivitas yang akan dilakukan di setiap ruangan. Misalnya, jika rumah akan dihuni oleh keluarga dengan anak kecil, maka perlu dipertimbangkan ruang bermain yang cukup luas.
- Manfaatkan Ruang dengan Maksimal:Gunakan setiap sudut dan celah ruangan dengan maksimal. Misalnya, gunakan cermin untuk memperluas ruangan secara visual, atau gunakan rak dinding untuk menyimpan barang-barang.
- Perhatikan Sirkulasi:Pastikan aliran sirkulasi udara dan orang dalam rumah lancar. Hindari penempatan furniture yang menghalangi jalan dan menciptakan rasa sempit.
- Pertimbangkan Pencahayaan:Pastikan setiap ruangan mendapatkan pencahayaan yang cukup, baik dari sinar matahari maupun lampu.
- Perhatikan Privasi:Pertimbangkan privasi penghuni saat merancang tata letak. Misalnya, letakkan kamar tidur di area yang lebih tenang dan terhindar dari keramaian.
Teknik Menggambar Sketsa Bangunan Rumah

Membuat sketsa bangunan rumah adalah proses kreatif yang melibatkan penggambaran ide-ide desain secara visual. Sketsa ini merupakan langkah awal dalam proses perancangan, memungkinkan arsitek dan calon pemilik rumah untuk memvisualisasikan bentuk, proporsi, dan detail arsitektur sebelum pembangunan dimulai. Teknik menggambar sketsa rumah yang tepat dapat menghasilkan visualisasi yang menarik dan informatif, sehingga memudahkan proses komunikasi dan kolaborasi dalam tahap perancangan.
Teknik Menggambar Sketsa Bangunan Rumah
Ada beberapa teknik menggambar sketsa bangunan rumah yang umum digunakan, masing-masing dengan kelebihan dan kekurangannya. Teknik-teknik ini memberikan fleksibilitas bagi seniman untuk mengekspresikan ide-ide desain mereka dengan cara yang unik.
- Teknik Perspektif Satu Titik: Teknik ini menggunakan satu titik hilang di horizon untuk menciptakan ilusi kedalaman. Teknik ini cocok untuk menggambarkan bangunan dengan sisi depan yang dominan, seperti rumah dengan fasad yang menarik.
- Teknik Perspektif Dua Titik: Teknik ini menggunakan dua titik hilang di horizon untuk menciptakan ilusi kedalaman yang lebih kuat. Teknik ini cocok untuk menggambarkan bangunan dengan sudut pandang yang lebih dinamis, seperti rumah dengan sudut-sudut yang menonjol.
- Teknik Isometrik: Teknik ini menggunakan sudut pandang 30 derajat untuk menggambarkan bangunan secara tiga dimensi. Teknik ini cocok untuk menggambarkan bangunan dengan bentuk yang kompleks dan detail yang menonjol.
Cara Menggambar Sketsa Bangunan Rumah dengan Teknik Perspektif Satu Titik
Teknik perspektif satu titik merupakan teknik yang mudah dipahami dan dipraktikkan. Berikut langkah-langkah menggambar sketsa bangunan rumah dengan teknik ini:
- Tentukan Titik Hilang: Titik hilang adalah titik di horizon tempat semua garis paralel bertemu. Titik hilang ini biasanya terletak di tengah kertas, sehingga menciptakan perspektif yang seimbang.
- Gambar Garis Horizon: Garis horizon adalah garis horizontal yang terletak sejajar dengan mata pengamat. Garis horizon ini akan menjadi panduan untuk menentukan posisi titik hilang dan garis-garis perspektif.
- Gambar Garis Vertikal: Gambar garis vertikal yang mewakili dinding bangunan. Garis-garis ini harus sejajar satu sama lain dan tegak lurus terhadap garis horizon.
- Gambar Garis Horizontal: Gambar garis horizontal yang mewakili atap, jendela, dan pintu bangunan. Garis-garis ini harus sejajar satu sama lain dan sejajar dengan garis horizon. Garis-garis ini akan bertemu di titik hilang.
- Tambahkan Detail: Setelah bentuk dasar bangunan selesai, tambahkan detail-detail arsitektur seperti jendela, pintu, atap, dan taman. Detail-detail ini akan membuat sketsa bangunan rumah lebih realistis dan menarik.
Contoh Sketsa Bangunan Rumah dengan Detail Arsitektur yang Menarik
Berikut contoh sketsa bangunan rumah dengan detail arsitektur yang menarik, digambar dengan teknik perspektif satu titik:
Sketsa ini menampilkan rumah dengan fasad yang menarik, dihiasi dengan jendela-jendela besar dan balkon yang menonjol. Atap rumah berbentuk pelana dengan sudut yang landai, memberikan kesan klasik dan elegan. Detail-detail arsitektur seperti pilar, ornamen, dan taman menambah nilai estetika pada bangunan ini.
Tips Membuat Sketsa Bangunan Rumah yang Menarik

Membuat sketsa bangunan rumah adalah langkah awal yang penting dalam proses desain arsitektur. Sketsa yang menarik dan estetis dapat membantu Anda memvisualisasikan ide-ide Anda dengan lebih jelas dan membantu Anda berkomunikasi dengan arsitek atau kontraktor dengan lebih efektif. Berikut adalah beberapa tips yang dapat membantu Anda membuat sketsa bangunan rumah yang menarik dan estetis.
Membuat Sketsa yang Menarik
Membuat sketsa bangunan rumah yang menarik tidak hanya tentang menggambar dengan presisi, tetapi juga tentang mengekspresikan kreativitas dan ide-ide Anda. Berikut adalah 5 tips yang dapat membantu Anda dalam membuat sketsa yang menarik.
- Gunakan perspektif yang menarik: Perspektif dapat membuat sketsa Anda terlihat lebih hidup dan realistis. Anda dapat menggunakan perspektif satu titik, dua titik, atau perspektif udara untuk menciptakan efek yang berbeda. Perspektif satu titik cocok untuk bangunan yang sederhana, sedangkan perspektif dua titik lebih cocok untuk bangunan yang lebih kompleks.
- Tambahkan detail yang menarik: Detail seperti jendela, pintu, taman, dan pagar dapat membuat sketsa Anda lebih hidup dan menarik. Anda dapat menggunakan berbagai teknik untuk menambahkan detail, seperti arsir, shading, dan warna.
- Eksperimen dengan komposisi: Komposisi adalah cara Anda mengatur elemen-elemen dalam sketsa Anda. Anda dapat mencoba berbagai komposisi, seperti komposisi simetris, asimetris, atau diagonal, untuk menciptakan efek yang berbeda.
- Bermain dengan warna: Warna dapat menambahkan dimensi dan suasana pada sketsa Anda. Anda dapat menggunakan warna-warna monokromatik, analog, atau komplementer untuk menciptakan efek yang berbeda. Warna-warna monokromatik menciptakan efek yang tenang, sedangkan warna-warna analog menciptakan efek yang harmonis. Warna-warna komplementer menciptakan efek yang kontras dan menarik.
- Jangan takut untuk bereksperimen: Jangan takut untuk mencoba berbagai teknik dan gaya. Cobalah untuk keluar dari zona nyaman Anda dan eksplorasi berbagai kemungkinan. Anda mungkin menemukan teknik baru yang Anda sukai.
Memilih Warna dan Bahan yang Tepat
Memilih warna dan bahan yang tepat untuk sketsa bangunan rumah Anda dapat membuat sketsa Anda lebih menarik dan realistis. Berikut adalah beberapa tips untuk memilih warna dan bahan yang tepat.
Membuat sketsa bangunan rumah adalah langkah awal yang penting dalam mewujudkan hunian impian. Sketsa ini akan menjadi panduan dalam proses desain dan pembangunan. Jika kamu berencana membangun rumah di Karawang, Roma Bangunan Karawang bisa menjadi pilihan yang tepat. Mereka memiliki tim arsitek profesional yang siap membantu mewujudkan sketsa bangunan rumahmu menjadi kenyataan, dengan desain yang modern dan sesuai kebutuhan.
Dengan sketsa yang matang, proses pembangunan akan lebih terarah dan hasilnya pun memuaskan.
- Pertimbangkan gaya arsitektur: Setiap gaya arsitektur memiliki warna dan bahan yang khas. Misalnya, gaya arsitektur tradisional sering menggunakan warna-warna netral seperti putih, krem, dan cokelat, sedangkan gaya arsitektur modern sering menggunakan warna-warna berani seperti merah, kuning, dan biru.
- Pertimbangkan lingkungan sekitar: Lingkungan sekitar dapat memengaruhi pilihan warna dan bahan Anda. Misalnya, jika rumah Anda berada di lingkungan yang hijau, Anda dapat menggunakan warna-warna yang terinspirasi oleh alam, seperti hijau, biru, dan cokelat.
- Pilih warna yang harmonis: Warna-warna yang harmonis menciptakan efek yang tenang dan menyenangkan. Anda dapat menggunakan warna-warna analog atau komplementer untuk menciptakan harmoni. Warna-warna analog adalah warna-warna yang berdekatan pada roda warna, sedangkan warna-warna komplementer adalah warna-warna yang berlawanan pada roda warna.
- Gunakan bahan yang sesuai: Bahan yang Anda gunakan untuk membuat sketsa Anda dapat memengaruhi tampilan dan tekstur sketsa Anda. Anda dapat menggunakan pensil, spidol, pena, cat air, atau cat minyak untuk menciptakan efek yang berbeda. Pensil cocok untuk sketsa yang realistis, sedangkan spidol cocok untuk sketsa yang lebih abstrak.
Cat air dan cat minyak cocok untuk sketsa yang lebih berwarna dan ekspresif.
Contoh Sketsa Bangunan Rumah yang Unik dan Inspiratif
Berikut adalah 3 contoh sketsa bangunan rumah yang unik dan inspiratif yang dapat memberikan inspirasi bagi Anda dalam membuat sketsa bangunan rumah Anda sendiri.
- Rumah dengan atap miring yang unik: Rumah ini memiliki atap miring yang unik dan menarik, yang memberikan tampilan yang modern dan futuristik. Atap miring ini juga dapat berfungsi sebagai panel surya, yang dapat membantu menghemat energi.
- Rumah dengan taman vertikal: Rumah ini memiliki taman vertikal yang indah, yang dapat membantu membersihkan udara dan memberikan privasi. Taman vertikal juga dapat menambah keindahan dan nilai estetika rumah Anda.
- Rumah dengan desain terbuka: Rumah ini memiliki desain terbuka yang memungkinkan cahaya matahari masuk ke dalam rumah. Desain terbuka juga dapat membuat rumah Anda terasa lebih luas dan lapang.
Peran Sketsa Bangunan Rumah dalam Proses Arsitektur

Sketsa bangunan rumah merupakan alat yang sangat penting dalam proses arsitektur, terutama pada tahap awal desain. Sketsa ini berfungsi sebagai jembatan komunikasi antara arsitek dan klien, sekaligus sebagai panduan dalam perencanaan dan pembangunan rumah.
Peran Sketsa dalam Tahap Awal Desain
Sketsa bangunan rumah berperan penting dalam tahap awal desain arsitektur. Sketsa membantu arsitek untuk menuangkan ide-ide awal mereka ke dalam bentuk visual. Melalui sketsa, arsitek dapat mengeksplorasi berbagai kemungkinan desain, menguji proporsi dan komposisi ruang, serta mengevaluasi fungsionalitas bangunan. Sketsa juga memungkinkan arsitek untuk menangkap inspirasi dan ide-ide spontan yang mungkin terlupakan jika hanya diingat dalam pikiran.
Keuntungan Sketsa dalam Komunikasi dengan Klien
Sketsa bangunan rumah memiliki beberapa keuntungan dalam komunikasi dengan klien, antara lain:
- Mempermudah pemahaman desain:Sketsa memberikan gambaran visual yang lebih jelas tentang desain rumah dibandingkan dengan penjelasan verbal saja. Klien dapat lebih mudah memahami konsep desain, tata letak ruangan, dan tampilan eksterior rumah.
- Meningkatkan keterlibatan klien:Sketsa memungkinkan klien untuk memberikan masukan dan ide-ide mereka sejak awal proses desain. Klien dapat terlibat aktif dalam proses kreatif dan merasa lebih memiliki dalam proyek pembangunan rumah mereka.
- Meminimalkan kesalahan komunikasi:Sketsa membantu mengurangi potensi kesalahan komunikasi antara arsitek dan klien. Dengan visualisasi yang jelas, keduanya dapat memastikan bahwa mereka memiliki pemahaman yang sama tentang desain rumah.
Sketsa sebagai Panduan dalam Perencanaan dan Pembangunan, Sketsa bangunan rumah
Sketsa bangunan rumah tidak hanya penting dalam tahap awal desain, tetapi juga berperan penting dalam proses perencanaan dan pembangunan. Sketsa dapat berfungsi sebagai:
- Panduan bagi kontraktor:Sketsa memberikan informasi visual yang jelas tentang desain rumah, termasuk ukuran ruangan, posisi pintu dan jendela, serta detail konstruksi lainnya. Hal ini membantu kontraktor dalam memahami desain dan membangun rumah sesuai dengan rencana.
- Alat untuk estimasi biaya:Sketsa membantu dalam memperkirakan biaya pembangunan rumah. Dengan melihat desain dan detail konstruksi dalam sketsa, arsitek dapat menghitung kebutuhan material dan tenaga kerja, sehingga dapat memberikan estimasi biaya yang lebih akurat.
- Dokumentasi desain:Sketsa berfungsi sebagai dokumentasi desain awal rumah. Sketsa ini dapat digunakan sebagai referensi dalam proses pembangunan dan sebagai bukti desain jika terjadi perselisihan di kemudian hari.
Ringkasan Penutup

Dengan memahami elemen penting, teknik menggambar, dan tips menarik, Anda siap untuk membuat sketsa bangunan rumah yang memikat. Ingat, sketsa ini adalah fondasi awal untuk membangun rumah impian. Jadi, mulailah menggoreskan ide-ide Anda dan ciptakan hunian yang nyaman, estetis, dan sesuai dengan kebutuhan Anda.
Tanya Jawab (Q&A)
Apakah saya perlu menggambar sketsa dengan tangan atau bisa menggunakan software?
Anda bisa menggambar sketsa dengan tangan atau menggunakan software seperti AutoCAD, SketchUp, atau aplikasi desain lainnya. Pilih metode yang paling nyaman dan sesuai dengan kemampuan Anda.
Bagaimana cara membuat sketsa bangunan rumah yang sederhana?
Mulailah dengan menggambar denah dasar, lalu tambahkan detail seperti pintu, jendela, dan pemisah ruangan. Anda bisa menggunakan pensil dan penggaris untuk membuat sketsa yang rapi dan proporsional.
Apa saja yang harus saya perhatikan saat memilih warna dan bahan untuk sketsa?
Pilih warna dan bahan yang mencerminkan gaya arsitektur dan suasana yang ingin Anda ciptakan. Gunakan warna yang kontras untuk menonjolkan detail penting dan bahan yang mudah dihapus untuk memudahkan revisi.

