Membangun rumah, gedung, atau fasilitas lainnya membutuhkan perencanaan yang matang. Site plan bangunan merupakan salah satu dokumen penting yang menjadi blueprint awal dalam proses konstruksi. Dokumen ini memberikan gambaran detail tentang tata letak bangunan, lingkungan sekitar, dan berbagai elemen penting lainnya.
Bayangkan Anda ingin membangun rumah impian. Anda memiliki desain yang indah, tetapi bagaimana memastikan rumah tersebut sesuai dengan lahan yang tersedia? Di sinilah site plan berperan penting. Site plan akan menunjukkan bagaimana bangunan akan ditempatkan di lahan, termasuk jarak dengan batas lahan, akses jalan, dan sistem utilitas.
Pengertian Site Plan

Site plan merupakan gambar atau diagram yang menunjukkan tata letak dan pengaturan bangunan, fasilitas, dan elemen lanskap di atas sebidang tanah. Ini merupakan dokumen penting dalam proses pembangunan, karena berfungsi sebagai panduan bagi arsitek, insinyur, kontraktor, dan pihak terkait lainnya dalam membangun proyek.
Fungsi dan Tujuan Site Plan
Site plan memiliki beberapa fungsi dan tujuan penting, yaitu:
- Menunjukkan letak bangunan dan fasilitas:Site plan memberikan gambaran jelas tentang posisi bangunan, akses jalan, area parkir, taman, dan fasilitas lainnya di atas tanah. Hal ini memudahkan dalam memahami tata letak keseluruhan proyek.
- Menentukan dimensi dan ukuran:Site plan mencantumkan dimensi dan ukuran bangunan, jalan, dan area lainnya. Informasi ini penting untuk perencanaan dan pelaksanaan konstruksi.
- Memastikan kepatuhan terhadap peraturan:Site plan harus sesuai dengan peraturan dan standar bangunan setempat, seperti jarak minimum dari batas tanah, lebar jalan, dan persyaratan lainnya.
- Memudahkan koordinasi:Site plan menjadi media komunikasi yang efektif bagi berbagai pihak yang terlibat dalam proyek, seperti arsitek, insinyur, kontraktor, dan pemilik lahan.
- Membantu dalam perencanaan infrastruktur:Site plan membantu dalam perencanaan sistem drainase, pasokan air, dan utilitas lainnya yang diperlukan untuk bangunan dan fasilitas.
Contoh Skenario di mana Site Plan Dibutuhkan
Berikut adalah beberapa contoh skenario di mana site plan dibutuhkan:
- Pembangunan rumah tinggal:Site plan diperlukan untuk menentukan letak rumah, akses jalan, area parkir, dan taman di atas lahan.
- Pembangunan gedung perkantoran:Site plan penting untuk menentukan letak gedung, area parkir, akses jalan, dan fasilitas lainnya di atas lahan.
- Pembangunan pusat perbelanjaan:Site plan digunakan untuk menentukan letak toko, area parkir, akses jalan, dan fasilitas umum di atas lahan.
- Pembangunan infrastruktur publik:Site plan dibutuhkan untuk menentukan letak jalan, jembatan, saluran air, dan fasilitas umum lainnya di atas lahan.
Elemen Utama Site Plan

Site plan merupakan gambaran visual dari tata letak bangunan dan lingkungan sekitarnya. Informasi yang disajikan dalam site plan sangat penting dalam proses perencanaan dan pembangunan. Dengan site plan, kita dapat melihat bagaimana bangunan akan ditempatkan, hubungannya dengan lingkungan sekitar, serta berbagai fasilitas dan infrastruktur yang diperlukan.
Site plan yang baik akan membantu kita untuk memahami kebutuhan dan meminimalisir kesalahan dalam proses pembangunan.
Site plan biasanya memuat berbagai elemen penting yang menggambarkan kondisi dan desain bangunan. Elemen-elemen ini berperan sebagai penunjuk arah dalam memahami tata letak dan fungsi dari bangunan tersebut.
Elemen Utama Site Plan
Berikut adalah tabel yang merinci elemen utama site plan, fungsinya, dan contohnya:
| Elemen | Fungsi | Contoh |
|---|---|---|
| Batas Lahan | Menunjukkan batas fisik dari lahan yang akan dibangun. | Garis putus-putus yang menggambarkan area tanah yang dimiliki oleh pemilik bangunan. |
| Bangunan Utama | Menampilkan posisi, bentuk, dan ukuran bangunan utama. | Gambar bangunan utama yang mencantumkan ukuran panjang, lebar, dan tinggi. |
| Bangunan Pelengkap | Menunjukkan posisi, bentuk, dan ukuran bangunan pelengkap seperti garasi, carport, gudang, dan lain sebagainya. | Gambar garasi yang mencantumkan ukuran panjang, lebar, dan tinggi. |
| Jalan Masuk | Menunjukkan akses masuk dan keluar dari bangunan. | Garis putus-putus yang menunjukkan jalur akses kendaraan menuju bangunan. |
| Area Parkir | Menunjukkan area yang disediakan untuk parkir kendaraan. | Gambar area parkir dengan tanda-tanda yang menunjukkan jumlah slot parkir yang tersedia. |
| Taman/Lanskap | Menunjukkan area taman atau lanskap di sekitar bangunan. | Gambar area taman yang mencantumkan jenis tanaman dan pepohonan yang akan ditanam. |
| Jaringan Utilitas | Menunjukkan jalur utilitas seperti saluran air, listrik, dan gas. | Gambar garis putus-putus yang menunjukkan jalur pipa air, kabel listrik, dan pipa gas. |
| Ketinggian Tanah | Menunjukkan kontur tanah dan ketinggian permukaan tanah. | Gambar garis kontur yang menunjukkan perbedaan ketinggian permukaan tanah. |
| Arah Matahari | Menunjukkan arah mata angin dan posisi matahari. | Gambar panah yang menunjukkan arah mata angin dan posisi matahari pada siang hari. |
| Keterangan dan Simbol | Menjelaskan elemen-elemen yang ada dalam site plan dengan simbol dan keterangan. | Keterangan dan simbol yang menunjukkan jenis material bangunan, jenis tanaman, dan jenis utilitas. |
Tahapan Pembuatan Site Plan

Site plan merupakan dokumen penting dalam pembangunan sebuah bangunan. Dokumen ini berfungsi sebagai peta atau blueprint yang menunjukkan tata letak bangunan, area terbuka, dan fasilitas pendukung lainnya di atas lahan yang tersedia. Site plan juga berfungsi sebagai dasar dalam proses perizinan pembangunan dan membantu dalam perencanaan konstruksi yang efektif.
Pembuatan site plan membutuhkan beberapa tahapan yang terstruktur, dimulai dari pengumpulan data hingga penyelesaian desain.
1. Pengumpulan Data
Tahap awal dalam pembuatan site plan adalah pengumpulan data yang relevan. Data ini akan menjadi dasar dalam perencanaan dan desain site plan. Informasi yang dibutuhkan meliputi:
- Data Lahan:Luas lahan, bentuk lahan, batas lahan, kondisi tanah, topografi, dan aksesibilitas lahan.
- Data Lingkungan Sekitar:Jarak dari jalan raya, bangunan sekitar, fasilitas umum, dan potensi dampak lingkungan.
- Data Perencanaan:Rencana tata ruang wilayah, peraturan zonasi, dan persyaratan perizinan.
- Data Bangunan:Jenis bangunan, fungsi bangunan, luas bangunan, jumlah lantai, dan kebutuhan ruang.
- Data Fasilitas Pendukung:Kebutuhan lahan parkir, taman, ruang terbuka hijau, dan fasilitas lainnya.
Pengumpulan data ini dapat dilakukan melalui berbagai cara, seperti studi lapangan, pengukuran, wawancara dengan pemilik lahan, dan konsultasi dengan ahli terkait.
2. Analisis Data dan Perencanaan Konseptual
Setelah data terkumpul, tahap selanjutnya adalah analisis data dan perencanaan konseptual. Pada tahap ini, data yang telah dikumpulkan dianalisis untuk menentukan kebutuhan dan persyaratan site plan. Beberapa hal yang perlu dipertimbangkan dalam tahap ini antara lain:
- Penentuan Lokasi Bangunan:Menentukan lokasi optimal untuk bangunan berdasarkan data lahan, lingkungan sekitar, dan persyaratan perencanaan.
- Perencanaan Tata Letak Bangunan:Menentukan posisi bangunan, area terbuka, dan fasilitas pendukung lainnya dalam lahan yang tersedia.
- Penentuan Orientasi Bangunan:Menentukan arah hadap bangunan yang optimal untuk memaksimalkan pencahayaan dan ventilasi alami.
- Perencanaan Sirkulasi:Menentukan jalur sirkulasi pedestrian dan kendaraan yang aman dan efisien.
- Perencanaan Area Terbuka:Menentukan luas dan fungsi area terbuka, seperti taman, ruang terbuka hijau, dan area parkir.
Tahap ini melibatkan pertimbangan desain yang matang dan kreatif untuk menciptakan site plan yang fungsional, estetis, dan memenuhi kebutuhan pengguna.
Site plan bangunan merupakan peta dasar yang penting dalam proses pembangunan. Nah, kalau kamu lagi cari bahan bangunan berkualitas buat proyekmu, bisa banget mampir ke toko citra bangunan. Mereka punya berbagai macam material bangunan dengan harga yang kompetitif.
Setelah kamu dapetin bahan bangunan yang pas, site plan bangunanmu bisa kamu gunakan untuk menentukan tata letak dan penempatan material tersebut di lokasi pembangunan.
3. Pengembangan Desain Detail
Tahap selanjutnya adalah pengembangan desain detail site plan. Tahap ini melibatkan detail yang lebih spesifik dan rinci, seperti:
- Desain Denah Bangunan:Menentukan detail ruangan, dimensi, dan penempatan furniture.
- Desain Denah Area Terbuka:Menentukan detail area terbuka, seperti taman, ruang terbuka hijau, dan area parkir.
- Desain Fasad Bangunan:Menentukan tampilan eksterior bangunan, seperti material, warna, dan detail arsitektur.
- Desain Sirkulasi:Menentukan detail jalur sirkulasi pedestrian dan kendaraan, termasuk lebar jalan, rambu-rambu, dan pencahayaan.
- Desain Sistem Utilitas:Menentukan detail sistem utilitas, seperti saluran air, listrik, dan gas.
Desain detail ini perlu dikoordinasikan dengan berbagai pihak terkait, seperti arsitek, insinyur, dan kontraktor, untuk memastikan keselarasan dan kelengkapan desain.
4. Penyelesaian dan Dokumentasi
Tahap terakhir adalah penyelesaian dan dokumentasi site plan. Tahap ini melibatkan:
- Penyelesaian Desain:Melakukan revisi dan finalisasi desain site plan berdasarkan masukan dan persetujuan dari semua pihak terkait.
- Dokumentasi:Menyusun dokumentasi site plan yang lengkap, termasuk denah, potongan, tampak, spesifikasi teknis, dan gambar detail.
- Pembuatan Site Plan:Mencetak dan membuat salinan site plan yang siap digunakan untuk proses perizinan dan konstruksi.
Dokumentasi site plan yang lengkap dan terstruktur sangat penting untuk memastikan kelancaran proses perizinan dan konstruksi. Site plan yang baik juga berfungsi sebagai acuan bagi kontraktor dalam membangun bangunan sesuai dengan desain yang telah disetujui.
Site plan bangunan merupakan hal penting dalam perencanaan konstruksi. Ini berfungsi sebagai peta yang detail, memandu pembangunan mulai dari penempatan pondasi hingga penataan ruangan. Untuk mendapatkan material bangunan berkualitas, kamu bisa mengunjungi toko depo bangunan yang menyediakan berbagai macam pilihan.
Setelah kamu memiliki material yang tepat, site plan akan membantumu dalam menentukan tata letak dan alur material selama proses pembangunan.
Contoh Site Plan

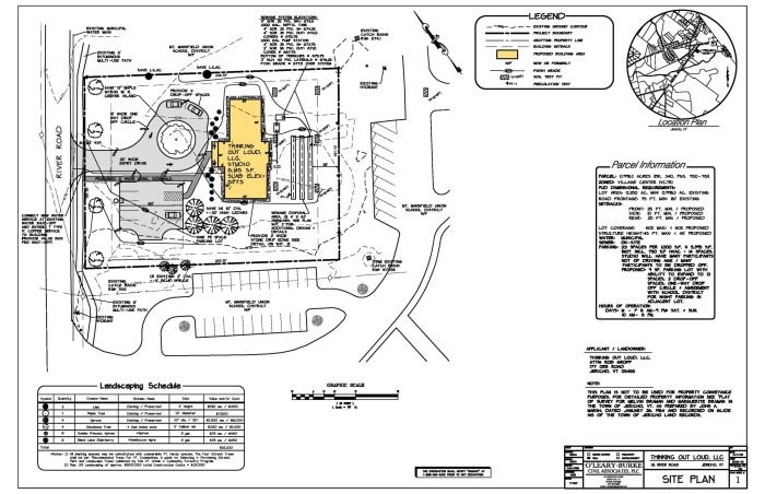
Site plan merupakan gambaran visual yang menunjukkan tata letak suatu bangunan dan lingkungan sekitarnya. Dokumen ini sangat penting dalam proses perencanaan dan pembangunan karena menyajikan informasi yang komprehensif tentang bagaimana bangunan akan dibangun, termasuk hubungannya dengan lingkungan sekitar. Berikut adalah contoh site plan yang mudah dipahami dan lengkap.
Contoh Site Plan, Site plan bangunan
<table><tr><td><img src=”siteplan.png” alt=”Contoh Site Plan”></td></tr></table>
Contoh site plan di atas menampilkan berbagai elemen penting yang umumnya terdapat dalam dokumen ini. Berikut penjelasan detail dari masing-masing elemen:
Elemen Site Plan
- Garis Batas Lahan: Garis batas lahan menunjukkan area yang dimiliki oleh pemilik bangunan. Garis ini biasanya ditandai dengan warna hitam tebal pada site plan. Garis ini penting untuk menentukan area pembangunan yang diperbolehkan dan area yang harus dibiarkan kosong.
- Bangunan Utama: Bangunan utama ditampilkan dengan bentuk dan ukuran yang sesuai dengan rencana pembangunan. Biasanya bangunan utama dibedakan dengan warna yang berbeda dari area lain, misalnya warna biru atau hijau.
- Arah Utara: Arah utara biasanya ditunjukkan dengan simbol panah atau simbol lainnya. Penanda arah utara sangat penting untuk menentukan orientasi bangunan dan hubungannya dengan lingkungan sekitar.
- Jalan Masuk: Jalan masuk menuju bangunan ditampilkan dengan garis yang menunjukkan lebar dan bentuk jalan. Informasi ini penting untuk memastikan aksesibilitas ke bangunan.
- Area Parkir: Area parkir ditampilkan dengan bentuk dan ukuran yang sesuai dengan rencana pembangunan. Area ini biasanya ditandai dengan simbol khusus seperti kotak atau garis yang menunjukkan tempat parkir.
- Taman dan Area Hijau: Taman dan area hijau ditampilkan dengan warna hijau atau simbol khusus yang menunjukkan jenis tanaman atau vegetasi yang akan ditanam.
- Jaringan Utilitas: Jaringan utilitas seperti listrik, air, dan saluran pembuangan ditampilkan dengan simbol khusus yang menunjukkan jenis dan letak jaringan utilitas. Informasi ini penting untuk perencanaan instalasi dan pengelolaan utilitas.
- Keterangan: Keterangan pada site plan berisi informasi tambahan seperti nama proyek, skala, tanggal, dan nama perencana. Keterangan ini penting untuk memberikan informasi yang lengkap dan mudah dipahami.
Manfaat Site Plan: Site Plan Bangunan

Site plan, atau denah lokasi, merupakan dokumen penting dalam proses pembangunan. Dokumen ini menggambarkan tata letak bangunan, termasuk posisi bangunan, jalan masuk, area parkir, dan fasilitas lainnya di lahan. Kegunaan site plan tidak hanya sebatas gambar, melainkan memiliki manfaat yang luas bagi berbagai pihak yang terlibat dalam proyek pembangunan.
Manfaat Site Plan bagi Pemilik Bangunan
Bagi pemilik bangunan, site plan berperan penting dalam memastikan bahwa proyek pembangunan sesuai dengan rencana dan kebutuhan mereka. Berikut beberapa manfaatnya:
- Meminimalkan risiko kesalahan dalam pembangunan.Site plan memberikan panduan yang jelas tentang tata letak bangunan, sehingga meminimalkan kemungkinan kesalahan dalam konstruksi dan menghindari pemborosan biaya.
- Meningkatkan efisiensi penggunaan lahan.Site plan membantu pemilik bangunan untuk merencanakan penggunaan lahan secara optimal, sehingga memaksimalkan area yang tersedia dan menghindari pemborosan lahan.
- Memudahkan proses perizinan.Site plan menjadi dokumen penting dalam proses perizinan pembangunan. Dengan site plan yang lengkap dan akurat, proses perizinan dapat berjalan lebih lancar dan cepat.
- Memudahkan proses penjualan atau sewa.Site plan dapat menjadi alat pemasaran yang efektif, karena menunjukkan tata letak bangunan dan fasilitas yang tersedia secara jelas dan detail.
Manfaat Site Plan bagi Arsitek
Arsitek memiliki peran penting dalam merancang site plan. Dengan site plan, arsitek dapat:
- Merencanakan tata letak bangunan yang optimal.Site plan memungkinkan arsitek untuk merancang tata letak bangunan yang efisien, fungsional, dan estetis, dengan mempertimbangkan kondisi lahan dan kebutuhan pengguna.
- Menentukan desain bangunan yang sesuai.Site plan menjadi dasar dalam menentukan desain bangunan yang tepat, dengan mempertimbangkan faktor-faktor seperti pencahayaan, ventilasi, dan aksesibilitas.
- Memudahkan proses komunikasi dengan klien.Site plan menjadi alat komunikasi yang efektif antara arsitek dan klien, sehingga memudahkan pemahaman tentang rencana pembangunan dan meminimalkan kesalahpahaman.
- Mempermudah proses pengawasan konstruksi.Site plan membantu arsitek dalam mengawasi proses konstruksi, memastikan bahwa bangunan dibangun sesuai dengan rencana.
Manfaat Site Plan bagi Kontraktor
Bagi kontraktor, site plan merupakan panduan penting dalam proses pembangunan. Berikut beberapa manfaatnya:
- Mempermudah proses perencanaan dan pelaksanaan konstruksi.Site plan memberikan informasi yang detail tentang tata letak bangunan, sehingga memudahkan kontraktor dalam merencanakan dan melaksanakan proses konstruksi secara efisien.
- Meminimalkan risiko kesalahan konstruksi.Site plan memberikan panduan yang jelas tentang tata letak bangunan, sehingga meminimalkan kemungkinan kesalahan konstruksi dan menghindari pemborosan biaya.
- Meningkatkan efisiensi dan efektivitas kerja.Site plan membantu kontraktor dalam mengatur alur kerja dan sumber daya secara optimal, sehingga meningkatkan efisiensi dan efektivitas kerja.
- Memudahkan proses pengawasan dan evaluasi.Site plan membantu kontraktor dalam mengawasi dan mengevaluasi proses konstruksi, memastikan bahwa bangunan dibangun sesuai dengan rencana.
Manfaat Site Plan bagi Stakeholder Lainnya
Selain pemilik bangunan, arsitek, dan kontraktor, site plan juga memiliki manfaat bagi stakeholder lainnya, seperti:
- Pemerintah:Site plan membantu pemerintah dalam mengatur dan mengawasi proses pembangunan, memastikan bahwa pembangunan dilakukan sesuai dengan peraturan yang berlaku.
- Masyarakat:Site plan dapat membantu masyarakat dalam memahami rencana pembangunan di lingkungan mereka, sehingga dapat memberikan masukan dan mengawasi proses pembangunan.
- Pemilik lahan di sekitar:Site plan dapat membantu pemilik lahan di sekitar dalam memahami dampak pembangunan terhadap lingkungan mereka, sehingga dapat mempersiapkan diri dan menghindari konflik.
Contoh Kasus
Contoh kasus di mana site plan memberikan dampak positif adalah pembangunan kompleks perumahan di daerah perkotaan. Dengan site plan yang baik, pengembang dapat merencanakan tata letak bangunan dan fasilitas yang efisien, memaksimalkan penggunaan lahan, dan memastikan aksesibilitas yang baik bagi penghuni.
Selain itu, site plan juga dapat membantu pengembang dalam mendapatkan izin pembangunan dengan lebih mudah, karena telah menunjukkan tata letak bangunan yang sesuai dengan peraturan yang berlaku.
Aspek Penting dalam Site Plan

Site plan merupakan peta atau diagram yang menunjukkan tata letak bangunan dan fasilitas di atas lahan. Dokumen ini penting dalam proses perencanaan dan pembangunan, karena menunjukkan hubungan antara bangunan, jalan, dan area terbuka. Site plan harus dirancang dengan cermat untuk memastikan efisiensi penggunaan lahan, aksesibilitas, dan keamanan.
Faktor-Faktor yang Mempengaruhi Site Plan
Ada banyak faktor yang dapat memengaruhi desain dan informasi yang ditampilkan dalam site plan. Faktor-faktor tersebut meliputi:
- Bentuk dan Ukuran Lahan:Bentuk dan ukuran lahan akan menentukan tata letak bangunan dan area terbuka. Lahan yang sempit dan panjang mungkin memerlukan desain yang berbeda dibandingkan dengan lahan yang luas dan persegi.
- Topografi Lahan:Kemiringan dan kontur lahan juga memengaruhi desain site plan. Lahan yang berbukit-bukit mungkin memerlukan sistem drainase yang lebih kompleks, sedangkan lahan yang datar lebih mudah untuk direncanakan.
- Arah Matahari:Arah matahari memengaruhi penempatan bangunan dan area terbuka untuk memaksimalkan pencahayaan alami dan meminimalkan panas yang berlebihan.
- Kondisi Iklim:Kondisi iklim seperti curah hujan, angin, dan suhu memengaruhi desain site plan untuk meminimalkan dampak negatif dari cuaca.
- Kebijakan dan Peraturan:Kebijakan dan peraturan perencanaan kota dan daerah memengaruhi desain site plan, seperti jarak minimum antara bangunan, persyaratan parkir, dan jenis penggunaan lahan yang diizinkan.
- Kebutuhan Pengguna:Kebutuhan pengguna, seperti aksesibilitas untuk penyandang disabilitas, area bermain anak, dan fasilitas umum, harus dipertimbangkan dalam desain site plan.
Aspek Penting dalam Site Plan
Berikut adalah beberapa aspek penting yang perlu diperhatikan dalam pembuatan site plan:
- Tata Letak Bangunan:Tata letak bangunan harus mempertimbangkan jarak minimum antara bangunan, aksesibilitas, dan hubungan dengan area terbuka. Contohnya, bangunan utama harus ditempatkan di lokasi yang strategis untuk menawarkan aksesibilitas yang baik dan menciptakan hubungan yang harmonis dengan area terbuka di sekitarnya.
- Area Terbuka:Area terbuka harus direncanakan dengan cermat untuk menciptakan ruang hijau yang menyegarkan dan menawarkan fasilitas rekreasi. Area terbuka juga berfungsi sebagai penyangga bangunan dan meminimalkan dampak negatif dari cuaca dan polusi udara.
Site plan bangunan merupakan gambaran visual dari tata letak bangunan di atas lahan. Ini penting untuk memastikan efisiensi dan fungsionalitas ruang. Dalam konteks pembangunan, terkadang muncul istilah “bangunan sadap”, yang mana bangunan sadap adalah bangunan tambahan yang dibangun tanpa izin dan menyalahi aturan tata ruang.
Hal ini bisa berdampak negatif pada site plan dan menyebabkan konflik di kemudian hari. Oleh karena itu, penting untuk selalu memastikan semua pembangunan dilakukan sesuai dengan site plan yang telah disetujui.
Contohnya, taman hijau dapat ditempatkan di sekitar bangunan untuk menciptakan ruang hijau yang menyegarkan dan menawarkan fasilitas rekreasi seperti area bermain anak dan jalan sehat.
- Sistem Drainase:Sistem drainase harus dirancang untuk menghilangkan air hujan secara efisien dan mencegah banjir. Contohnya, saluran drainase dapat ditempatkan di sepanjang jalan dan di sekitar bangunan untuk menghilangkan air hujan secara efisien dan mencegah banjir.
- Sistem Utilitas:Sistem utilitas, seperti air bersih, listrik, dan gas, harus dirancang dengan cermat untuk menjamin ketersediaan dan keamanan. Contohnya, pipa air bersih harus ditempatkan di lokasi yang strategis untuk menjamin ketersediaan air bersih di setiap bangunan.
- Aksesibilitas:Site plan harus mempertimbangkan aksesibilitas bagi semua pengguna, termasuk penyandang disabilitas. Contohnya, jalan akses untuk penyandang disabilitas harus dirancang dengan lereng yang landai dan luas yang cukup untuk memudahkan akses bagi kursi roda.
- Keamanan:Keamanan harus dipertimbangkan dalam desain site plan, seperti penempatan pintu masuk dan keluar, sistem pencahayaan, dan sistem keamanan lainnya. Contohnya, pintu masuk dan keluar harus ditempatkan di lokasi yang strategis untuk memudahkan akses dan meminimalkan risiko kejahatan.
Pemungkas

Site plan bangunan merupakan alat yang sangat bermanfaat untuk memastikan keselarasan antara desain bangunan dan kondisi lahan. Dengan memahami dan memanfaatkan site plan dengan baik, Anda dapat meminimalkan risiko kesalahan, mengoptimalkan penggunaan lahan, dan menciptakan bangunan yang aman, fungsional, dan estetis.
Tanya Jawab (Q&A)
Apa saja yang harus ada dalam site plan?
Site plan biasanya berisi denah bangunan, lokasi bangunan di lahan, akses jalan, sistem utilitas, dan informasi tentang lingkungan sekitar.
Siapa yang membuat site plan?
Site plan biasanya dibuat oleh arsitek atau konsultan perencana yang berpengalaman.
Apakah site plan wajib?
Site plan biasanya diwajibkan oleh pemerintah sebagai syarat perizinan pembangunan.

