Shaft bangunan adalah elemen struktural vertikal yang berfungsi sebagai jalur akses bagi berbagai sistem vital, seperti lift, tangga, ventilasi, dan utilitas. Bayangkan sebuah gedung bertingkat tanpa lift atau tangga, sulit dibayangkan, bukan? Nah, shaft inilah yang menjadi “jalan” bagi sistem-sistem tersebut untuk beroperasi dengan lancar dan aman.
Shaft bangunan hadir dalam berbagai bentuk dan ukuran, disesuaikan dengan fungsinya. Ada shaft lift yang membawa kita naik turun gedung, shaft ventilasi yang memastikan sirkulasi udara segar, dan shaft utilitas yang menampung instalasi listrik, air, dan saluran pembuangan. Shaft bangunan berperan penting dalam efisiensi dan keamanan gedung, serta menjadi bagian integral dalam desain arsitektur modern.
Definisi Shaft Bangunan

Shaft bangunan merupakan elemen arsitektur dan konstruksi yang memiliki peran penting dalam mendukung berbagai fungsi bangunan. Secara sederhana, shaft dapat diartikan sebagai ruang vertikal yang memanjang dari satu lantai ke lantai lainnya, yang berfungsi sebagai jalur untuk berbagai sistem dan infrastruktur bangunan.
Shaft bangunan adalah bagian vertikal yang berfungsi sebagai jalur sirkulasi udara, kabel, atau saluran air. Biasanya, shaft ini dirancang dengan berbagai bentuk dan ukuran, tergantung pada kebutuhan dan fungsi bangunan. Bayangkan sebuah bangunan yang memadukan arsitektur modern dengan sentuhan tradisional, seperti bangunan akulturasi yang menarik perhatian.
Dalam desain seperti itu, shaft bangunan bisa menjadi elemen yang menarik perhatian, terutama jika didekorasi dengan sentuhan tradisional. Misalnya, shaft bisa diberi ornamen khas budaya lokal atau dihiasi dengan bahan alam seperti bambu atau kayu.
Shaft biasanya memiliki bentuk persegi panjang atau bulat, dan dapat dibangun dari berbagai material seperti beton, baja, atau kombinasi keduanya.
Jenis-Jenis Shaft Bangunan
Shaft bangunan dapat dibagi menjadi beberapa jenis berdasarkan fungsinya. Berikut adalah beberapa contoh jenis shaft yang umum dijumpai:
- Shaft lift: Merupakan ruang vertikal yang menampung lift penumpang atau barang. Shaft lift biasanya dilengkapi dengan dinding dan pintu yang kuat untuk keamanan dan privasi.
- Shaft ventilasi: Merupakan ruang vertikal yang dirancang untuk memungkinkan sirkulasi udara segar dan pengeluaran udara kotor dari dalam bangunan. Shaft ventilasi biasanya dilengkapi dengan bukaan dan saluran udara untuk mengalirkan udara.
- Shaft tangga: Merupakan ruang vertikal yang menampung tangga untuk menghubungkan antar lantai. Shaft tangga biasanya dilengkapi dengan handrail dan pegangan tangga untuk keamanan dan kenyamanan pengguna.
- Shaft utilitas: Merupakan ruang vertikal yang menampung berbagai sistem utilitas seperti pipa air, kabel listrik, saluran pembuangan, dan sistem HVAC. Shaft utilitas biasanya dirancang untuk memudahkan akses dan pemeliharaan sistem utilitas.
Tabel Jenis Shaft Bangunan dan Fungsinya
| Jenis Shaft | Fungsi |
|---|---|
| Shaft Lift | Menampung lift penumpang atau barang |
| Shaft Ventilasi | Memungkinkan sirkulasi udara segar dan pengeluaran udara kotor |
| Shaft Tangga | Menampung tangga untuk menghubungkan antar lantai |
| Shaft Utilitas | Menampung berbagai sistem utilitas seperti pipa air, kabel listrik, saluran pembuangan, dan sistem HVAC |
Fungsi Shaft Bangunan

Shaft bangunan merupakan bagian penting dalam sebuah konstruksi yang memiliki berbagai fungsi vital. Shaft berfungsi sebagai jalur vertikal yang menghubungkan berbagai tingkat bangunan, memungkinkan sirkulasi udara, aksesibilitas, dan manajemen sistem utilitas dengan efisien.
Sirkulasi Udara dan Ventilasi
Shaft bangunan berperan penting dalam sistem ventilasi dan sirkulasi udara. Shaft yang dirancang khusus untuk ventilasi dapat membantu mengalirkan udara segar ke dalam bangunan, sementara juga membuang udara kotor dan panas. Dengan adanya shaft ventilasi, kualitas udara di dalam bangunan dapat ditingkatkan, menciptakan lingkungan yang lebih sehat dan nyaman bagi penghuninya.
Aksesibilitas dan Perawatan
Shaft bangunan juga memberikan akses yang mudah dan aman ke berbagai area dalam bangunan, seperti ruang atap, ruang bawah tanah, dan ruang mekanikal. Shaft dapat digunakan untuk memasang lift, tangga darurat, dan jalur inspeksi, memudahkan akses untuk pemeliharaan dan perbaikan sistem utilitas.
Manajemen Sistem Utilitas
Shaft bangunan berfungsi sebagai jalur untuk melewatkan berbagai sistem utilitas, seperti pipa air, kabel listrik, saluran pembuangan, dan sistem HVAC. Dengan menggabungkan sistem utilitas dalam shaft, penataan dan pengelolaan infrastruktur bangunan menjadi lebih terstruktur dan efisien.
Meningkatkan Efisiensi dan Keamanan Bangunan
Penggunaan shaft bangunan dapat meningkatkan efisiensi dan keamanan bangunan dengan beberapa cara:
- Penghematan Ruang: Shaft memungkinkan pemisahan sistem utilitas dan ruang akses, mengurangi kebutuhan ruang di area lain dalam bangunan.
- Kemudahan Akses: Shaft memberikan akses mudah untuk pemeliharaan dan perbaikan sistem utilitas, mengurangi waktu henti dan biaya operasional.
- Keamanan: Shaft dapat berfungsi sebagai jalur evakuasi darurat, memudahkan penghuni untuk mencapai tempat aman saat terjadi kebakaran atau bencana.
Contoh Kasus Penggunaan Shaft
Sebagai contoh, shaft bangunan dapat digunakan untuk mengatasi masalah desain atau konstruksi pada bangunan bertingkat. Misalnya, jika bangunan memiliki ruang bawah tanah yang terbatas, shaft dapat digunakan untuk memasang lift dan tangga darurat, menghindari penggunaan ruang di area lain.
Selain itu, shaft dapat digunakan untuk memasang sistem HVAC secara terpusat, mengurangi kebutuhan ruang untuk unit HVAC individual di setiap lantai.
Konstruksi Shaft Bangunan

Shaft bangunan merupakan bagian penting dari struktur bangunan yang berfungsi sebagai jalur vertikal untuk berbagai keperluan, seperti instalasi lift, tangga, pipa, dan kabel. Konstruksi shaft bangunan memiliki beberapa tahapan penting yang perlu diperhatikan agar menghasilkan shaft yang kuat, aman, dan berfungsi dengan baik.
Tahapan Konstruksi Shaft Bangunan, Shaft bangunan adalah
Tahapan konstruksi shaft bangunan meliputi perencanaan, pembangunan, dan finishing. Berikut adalah penjelasan lebih detail:
-
Perencanaan
Tahap perencanaan merupakan langkah awal yang sangat penting dalam konstruksi shaft bangunan. Pada tahap ini, dilakukan perhitungan dan desain yang cermat untuk menentukan dimensi, material, dan teknik konstruksi yang tepat. Beberapa hal yang perlu diperhatikan dalam perencanaan shaft bangunan antara lain:
- Fungsi shaft bangunan
- Dimensi dan bentuk shaft
- Material yang akan digunakan
- Sistem konstruksi yang akan diterapkan
- Keamanan dan keselamatan kerja
-
Pembangunan
Tahap pembangunan merupakan tahap pelaksanaan konstruksi shaft bangunan berdasarkan rencana yang telah dibuat. Pada tahap ini, dilakukan berbagai aktivitas, seperti:
- Pembuatan pondasi shaft
- Pemasangan rangka shaft
- Pemasangan dinding shaft
- Pemasangan atap shaft
- Instalasi lift, tangga, pipa, dan kabel
-
Finishing
Tahap finishing merupakan tahap akhir konstruksi shaft bangunan yang bertujuan untuk memperindah dan melengkapi shaft. Pada tahap ini, dilakukan berbagai aktivitas, seperti:
- Pengecatan dinding dan atap shaft
- Pemasangan lampu dan ventilasi
- Pembersihan dan penyelesaian akhir
Material Konstruksi Shaft Bangunan
Material yang umum digunakan dalam konstruksi shaft bangunan antara lain beton, baja, dan kaca. Berikut adalah penjelasan singkat tentang masing-masing material:
-
Beton
Beton merupakan material yang banyak digunakan dalam konstruksi shaft bangunan karena sifatnya yang kuat, tahan lama, dan mudah dibentuk. Beton dapat digunakan untuk membuat pondasi, dinding, dan atap shaft. Beton bertulang biasanya digunakan untuk meningkatkan kekuatan dan ketahanan beton terhadap beban berat.
-
Baja
Baja merupakan material yang kuat dan tahan lama, sehingga sering digunakan dalam konstruksi shaft bangunan untuk membuat rangka shaft, tangga, dan lift. Baja juga dapat digunakan untuk membuat plat lantai dan atap shaft.
-
Kaca
Kaca merupakan material yang transparan dan estetis, sehingga sering digunakan dalam konstruksi shaft bangunan untuk membuat dinding shaft yang memungkinkan cahaya masuk. Kaca juga dapat digunakan untuk membuat pintu dan jendela shaft.
Teknik Konstruksi Shaft Bangunan
Teknik konstruksi yang diterapkan pada shaft bangunan bergantung pada fungsi dan desain shaft. Beberapa teknik konstruksi yang umum digunakan antara lain:
-
Konstruksi Beton Bertulang
Teknik konstruksi beton bertulang merupakan teknik yang umum digunakan untuk membangun shaft bangunan. Teknik ini menggunakan beton yang diperkuat dengan tulangan baja untuk meningkatkan kekuatan dan ketahanan beton terhadap beban berat. Teknik konstruksi beton bertulang dapat diterapkan untuk membangun shaft dengan berbagai bentuk dan dimensi.
-
Konstruksi Baja Ringan
Teknik konstruksi baja ringan merupakan teknik yang banyak digunakan untuk membangun shaft bangunan dengan desain yang minimalis dan modern. Teknik ini menggunakan rangka baja ringan yang ringan dan mudah dipasang. Teknik konstruksi baja ringan cocok diterapkan untuk membangun shaft dengan dimensi yang kecil dan sederhana.
-
Konstruksi Kaca
Teknik konstruksi kaca merupakan teknik yang digunakan untuk membangun shaft bangunan dengan desain yang modern dan estetis. Teknik ini menggunakan panel kaca yang dipasang pada rangka baja. Teknik konstruksi kaca cocok diterapkan untuk membangun shaft yang membutuhkan pencahayaan alami yang maksimal.
Regulasi dan Standar Shaft Bangunan: Shaft Bangunan Adalah

Shaft bangunan merupakan bagian penting dalam sistem bangunan yang berfungsi sebagai jalur sirkulasi vertikal untuk berbagai keperluan, seperti lift, tangga, pipa, dan kabel. Konstruksi dan penggunaan shaft bangunan diatur dalam berbagai regulasi dan standar yang bertujuan untuk memastikan keselamatan, keamanan, dan efisiensi bangunan.
Regulasi dan Standar yang Berlaku
Regulasi dan standar terkait konstruksi dan penggunaan shaft bangunan umumnya ditetapkan oleh pemerintah atau lembaga terkait, seperti Kementerian Pekerjaan Umum dan Perumahan Rakyat (PUPR) di Indonesia. Beberapa regulasi dan standar penting yang perlu dipertimbangkan dalam desain dan konstruksi shaft bangunan meliputi:
- Peraturan Menteri Pekerjaan Umum dan Perumahan Rakyat (PUPR) Nomor 24/PRT/M/2014 tentang Standar Pelayanan Minimal Bidang Perumahan dan Kawasan Permukiman: Aturan ini mengatur standar minimal untuk pembangunan perumahan dan kawasan permukiman, termasuk aspek keselamatan dan keamanan bangunan, yang mencakup konstruksi shaft bangunan.
- Standar Nasional Indonesia (SNI) 03-2858-2000 tentang Tata Cara Perencanaan dan Pemasangan Lift: SNI ini mengatur aspek teknis terkait desain dan pemasangan lift, yang juga mencakup aspek keselamatan dan keamanan shaft lift.
- Standar Nasional Indonesia (SNI) 03-2859-2000 tentang Tata Cara Perencanaan dan Pemasangan Tangga dan Eskalator: SNI ini mengatur aspek teknis terkait desain dan pemasangan tangga dan eskalator, yang juga mencakup aspek keselamatan dan keamanan shaft tangga dan eskalator.
- Peraturan Menteri Pekerjaan Umum dan Perumahan Rakyat (PUPR) Nomor 28/PRT/M/2015 tentang Pedoman Teknis Bangunan Gedung: Aturan ini mengatur pedoman teknis untuk pembangunan gedung, termasuk aspek keselamatan dan keamanan shaft bangunan, seperti shaft lift, shaft tangga, dan shaft utilitas.
Pentingnya Aspek Keselamatan dan Keamanan
Aspek keselamatan dan keamanan merupakan hal yang sangat penting dalam desain dan konstruksi shaft bangunan. Hal ini karena shaft bangunan umumnya merupakan jalur sirkulasi vertikal yang dilalui oleh banyak orang dan barang. Kesalahan dalam desain atau konstruksi shaft bangunan dapat berakibat fatal, seperti:
- Keruntuhan shaft bangunan: Keruntuhan shaft bangunan dapat terjadi akibat kesalahan dalam perhitungan beban, penggunaan material yang tidak sesuai, atau faktor eksternal seperti gempa bumi.
- Terjebaknya orang di dalam shaft bangunan: Orang dapat terjebak di dalam shaft bangunan akibat kesalahan dalam sistem pengoperasian lift, tangga, atau eskalator, atau akibat gangguan teknis.
- Bahaya kebakaran: Shaft bangunan dapat menjadi jalur penyebaran api dan asap, terutama jika tidak dilengkapi dengan sistem proteksi kebakaran yang memadai.
Dampak Regulasi dan Standar terhadap Perencanaan dan Pelaksanaan Proyek
Regulasi dan standar terkait konstruksi dan penggunaan shaft bangunan memiliki dampak yang signifikan terhadap proses perencanaan dan pelaksanaan proyek pembangunan shaft bangunan. Beberapa dampaknya meliputi:
- Meningkatkan kualitas desain dan konstruksi shaft bangunan: Regulasi dan standar menetapkan standar minimal untuk desain dan konstruksi shaft bangunan, sehingga dapat meningkatkan kualitas dan ketahanan bangunan.
- Menjamin keselamatan dan keamanan pengguna shaft bangunan: Regulasi dan standar bertujuan untuk melindungi pengguna shaft bangunan dari berbagai risiko, seperti keruntuhan, terjebak, dan kebakaran.
- Meningkatkan efisiensi pembangunan shaft bangunan: Regulasi dan standar dapat membantu dalam mempercepat proses perencanaan dan pelaksanaan proyek pembangunan shaft bangunan dengan menyediakan pedoman yang jelas dan terstruktur.
- Meminimalkan risiko hukum dan finansial: Pengembang dan kontraktor yang tidak mematuhi regulasi dan standar terkait konstruksi shaft bangunan dapat menghadapi risiko hukum dan finansial, seperti denda, pencabutan izin, atau tuntutan hukum.
Contoh Implementasi Shaft Bangunan

Shaft bangunan merupakan elemen penting dalam arsitektur modern. Penerapannya dapat ditemukan di berbagai jenis bangunan, baik itu gedung perkantoran, apartemen, maupun rumah sakit. Shaft berperan sebagai jalur vertikal yang memungkinkan pergerakan sistem utilitas, seperti kabel listrik, pipa air, dan sistem ventilasi, ke berbagai tingkat bangunan.
Implementasi shaft bangunan tidak hanya memengaruhi aspek fungsional, namun juga estetika dan efisiensi bangunan secara keseluruhan.
Penerapan Shaft pada Berbagai Jenis Bangunan
Berikut beberapa contoh implementasi shaft bangunan pada berbagai jenis bangunan:
- Gedung Perkantoran: Shaft di gedung perkantoran biasanya digunakan untuk menampung sistem HVAC (Heating, Ventilation, and Air Conditioning), sistem listrik, dan komunikasi. Shaft ini dapat diintegrasikan dengan dinding bangunan, atau ditempatkan di area terpisah untuk meminimalkan dampak estetika.
- Apartemen: Shaft di apartemen umumnya digunakan untuk menampung saluran air, sistem ventilasi, dan kabel listrik. Penempatan shaft yang strategis dapat memaksimalkan ruang dan meminimalkan gangguan estetika di area hunian.
- Rumah Sakit: Shaft di rumah sakit memiliki peran penting dalam mendistribusikan gas medis, sistem ventilasi, dan sistem listrik. Penempatan shaft yang tepat dapat meningkatkan keamanan dan efisiensi operasional rumah sakit.
Integrasi Shaft dengan Desain Bangunan
Implementasi shaft bangunan harus terintegrasi dengan desain bangunan secara keseluruhan. Posisi dan ukuran shaft harus direncanakan dengan cermat untuk memastikan fungsionalitas dan estetika bangunan. Contohnya, shaft dapat diintegrasikan dengan desain interior, seperti dengan menggunakan material yang sama dengan dinding atau langit-langit, sehingga shaft tidak menjadi elemen yang mengganggu.
Shaft bangunan adalah bagian vertikal yang berfungsi sebagai jalur sirkulasi untuk sistem utilitas, seperti saluran air, ventilasi, dan kabel listrik. Tinggi shaft bangunan biasanya disesuaikan dengan kebutuhan, dan bisa mencapai beberapa lantai. Nah, untuk bangunan satu lantai, tinggi shaft mungkin hanya beberapa meter saja, tergantung dari desain dan fungsinya.
Untuk informasi lebih lanjut mengenai tinggi bangunan satu lantai, Anda bisa mengunjungi situs ini yang membahas secara detail tentang tinggi bangunan satu lantai. Intinya, shaft bangunan adalah komponen penting dalam sistem utilitas bangunan, dan tingginya disesuaikan dengan kebutuhan masing-masing bangunan.
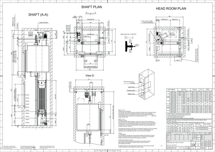
Ilustrasi visual menunjukkan bagaimana shaft bangunan terintegrasi dengan desain bangunan secara keseluruhan. Shaft dapat diintegrasikan dengan dinding bangunan, di area terpisah, atau bahkan di dalam kolom bangunan. Bentuk dan ukuran shaft juga dapat disesuaikan dengan desain bangunan, sehingga tidak mengganggu estetika bangunan.
Shaft bangunan adalah bagian penting yang berfungsi sebagai jalur vertikal untuk instalasi utilitas, seperti kabel listrik, pipa air, dan ventilasi. Ketika merencanakan pembangunan, pemilihan material dan desain shaft yang tepat sangat krusial. Untuk mendapatkan material bangunan berkualitas, kamu bisa mengunjungi toko bangunan indah yang menyediakan berbagai pilihan kebutuhan konstruksi.
Dengan material yang tepat, kamu bisa membangun shaft yang aman, efisien, dan sesuai dengan kebutuhan bangunanmu.
Dampak Implementasi Shaft terhadap Estetika dan Fungsionalitas
Implementasi shaft bangunan dapat memengaruhi estetika dan fungsionalitas bangunan. Berikut beberapa contohnya:
- Estetika: Shaft yang dirancang dengan baik dapat meningkatkan estetika bangunan. Contohnya, shaft dapat diintegrasikan dengan desain interior, seperti dengan menggunakan material yang sama dengan dinding atau langit-langit, sehingga shaft tidak menjadi elemen yang mengganggu.
- Fungsionalitas: Shaft yang dirancang dengan tepat dapat meningkatkan fungsionalitas bangunan. Contohnya, shaft dapat digunakan untuk mendistribusikan sistem utilitas dengan lebih efisien, sehingga meminimalkan gangguan dan meningkatkan efisiensi energi.
Terakhir

Dengan memahami fungsi dan konstruksi shaft bangunan, kita dapat menghargai peran pentingnya dalam mewujudkan bangunan yang aman, efisien, dan estetis. Dari lift yang membawa kita ke puncak gedung hingga sistem ventilasi yang menjaga kualitas udara, shaft bangunan bekerja di balik layar untuk menjamin kenyamanan dan keselamatan penghuni.
Ke depannya, diharapkan desain shaft bangunan akan terus berkembang, mengikuti kemajuan teknologi dan kebutuhan manusia yang semakin kompleks.
Pertanyaan Umum yang Sering Muncul
Apakah shaft bangunan wajib ada di setiap gedung?
Tidak semua gedung membutuhkan shaft bangunan. Keberadaan shaft bangunan tergantung pada jenis dan fungsi gedung, serta peraturan bangunan yang berlaku.
Bagaimana cara merawat shaft bangunan?
Perawatan shaft bangunan perlu dilakukan secara berkala untuk menjaga fungsinya. Pembersihan, pengecekan sistem, dan perbaikan rutin diperlukan untuk memastikan keamanan dan efisiensi shaft bangunan.

