Kursus Gambar Bangunan adalah gerbang menuju dunia arsitektur yang menawan. Kursus ini bukan sekadar tentang menggambar garis dan bentuk, tetapi lebih dari itu, tentang mengolah ide-ide kreatif menjadi rancangan bangunan yang fungsional dan estetis. Anda akan mempelajari berbagai teknik menggambar, baik tradisional maupun digital, yang akan membantu Anda mewujudkan impian bangunan yang ideal.
Melalui kursus ini, Anda akan memahami pentingnya gambar bangunan dalam proses perencanaan dan desain konstruksi. Anda akan mengenal berbagai jenis gambar, seperti denah, tampak, dan potongan, serta mempelajari cara menggunakan software menggambar seperti AutoCAD. Dengan penguasaan keterampilan menggambar bangunan, Anda membuka peluang karir di berbagai bidang, mulai dari arsitektur, desain interior, hingga konstruksi.
Pengertian Kursus Gambar Bangunan

Kursus gambar bangunan merupakan program pelatihan yang dirancang untuk mengajarkan keterampilan dan pengetahuan tentang desain dan pembuatan gambar arsitektur dan teknik bangunan. Kursus ini memberikan pemahaman mendalam tentang prinsip-prinsip dasar gambar bangunan, penggunaan perangkat lunak CAD (Computer-Aided Design), dan standar industri yang berlaku.
Jenis-jenis Kursus Gambar Bangunan
Kursus gambar bangunan tersedia dalam berbagai format dan tingkat kesulitan, disesuaikan dengan kebutuhan dan tujuan peserta. Berikut beberapa jenis kursus gambar bangunan yang umum:
- Kursus Dasar Gambar Bangunan:Mengupas dasar-dasar gambar bangunan, seperti cara membaca dan menggambar denah, tampak, dan potongan. Kursus ini cocok untuk pemula yang ingin mempelajari dasar-dasar gambar bangunan.
- Kursus Gambar Bangunan dengan Software CAD:Menekankan penggunaan software CAD seperti AutoCAD, Revit, atau SketchUp untuk membuat gambar bangunan secara digital. Kursus ini cocok untuk individu yang ingin mempelajari penggunaan software CAD dalam desain bangunan.
- Kursus Gambar Bangunan Arsitektur:Berfokus pada desain arsitektur, mencakup gambar denah, tampak, potongan, dan detail arsitektur. Kursus ini cocok untuk calon arsitek atau desainer interior.
- Kursus Gambar Bangunan Teknik:Mengkhususkan diri dalam gambar teknik bangunan, seperti gambar struktur, gambar mekanikal, dan gambar elektrikal. Kursus ini cocok untuk calon insinyur sipil, mekanikal, atau elektrikal.
Manfaat Mengikuti Kursus Gambar Bangunan
Mengikuti kursus gambar bangunan memiliki banyak manfaat, antara lain:
- Meningkatkan Keterampilan Gambar:Kursus ini melatih keterampilan menggambar, baik manual maupun digital, sehingga peserta mampu membuat gambar bangunan yang akurat dan profesional.
- Menguasai Prinsip-prinsip Desain:Peserta akan mempelajari prinsip-prinsip desain bangunan, seperti proporsi, komposisi, dan estetika, sehingga dapat menciptakan desain bangunan yang fungsional dan indah.
- Mempelajari Standar Industri:Kursus ini mengajarkan standar industri yang berlaku dalam gambar bangunan, sehingga peserta dapat membuat gambar yang sesuai dengan persyaratan dan peraturan.
- Membuka Peluang Karir:Keterampilan gambar bangunan dibutuhkan dalam berbagai bidang, seperti arsitektur, teknik, konstruksi, dan desain interior. Kursus ini dapat meningkatkan peluang karir dan membantu peserta mendapatkan pekerjaan yang lebih baik.
- Meningkatkan Kemampuan Komunikasi:Gambar bangunan merupakan alat komunikasi yang efektif untuk menyampaikan ide dan desain. Kursus ini membantu peserta dalam berkomunikasi secara efektif dengan klien, kolega, dan kontraktor.
Kegunaan Gambar Bangunan

Gambar bangunan merupakan alat penting dalam proses konstruksi, berfungsi sebagai bahasa universal yang memungkinkan komunikasi efektif antara para profesional dan stakeholder proyek. Gambar bangunan membantu dalam memvisualisasikan desain, memberikan instruksi yang jelas, dan memastikan bahwa proyek diselesaikan sesuai dengan spesifikasi yang telah ditentukan.
Peran Gambar Bangunan dalam Perencanaan dan Desain
Gambar bangunan memainkan peran yang sangat penting dalam proses perencanaan dan desain proyek konstruksi. Mereka berfungsi sebagai alat komunikasi utama antara arsitek, insinyur, kontraktor, dan pemilik proyek. Melalui gambar, desainer dapat mengekspresikan ide-ide mereka dengan jelas, dan para pemangku kepentingan dapat memahami dan memberikan umpan balik yang berharga.
Kursus gambar bangunan memang penting untuk menguasai dasar-dasar arsitektur, tapi jangan lupakan juga pentingnya memahami standar bangunan. Misalnya, sni dilatasi bangunan yang membahas tentang pergerakan struktur akibat perubahan suhu. Dalam kursus gambar bangunan, kamu juga akan mempelajari bagaimana penerapan sni dilatasi bangunan ini agar desainmu tetap aman dan sesuai standar.
- Gambar bangunan memungkinkan perencanaan yang lebih efektif dengan memberikan gambaran yang jelas tentang tata letak, dimensi, dan detail struktural bangunan.
- Gambar bangunan membantu dalam mengidentifikasi potensi masalah desain dan menemukan solusi yang tepat sebelum konstruksi dimulai.
- Gambar bangunan membantu dalam memperkirakan biaya konstruksi dengan lebih akurat dengan memberikan informasi yang rinci tentang material, tenaga kerja, dan peralatan yang diperlukan.
- Gambar bangunan memudahkan koordinasi antara berbagai disiplin ilmu, seperti arsitektur, struktur, mekanikal, dan elektrikal.
Jenis-Jenis Gambar Bangunan
Ada berbagai jenis gambar bangunan yang digunakan dalam proyek konstruksi, masing-masing dengan tujuan dan fungsi yang spesifik.
Kursus gambar bangunan mengajarkan kamu untuk menggambar desain bangunan dengan detail, yang berguna untuk berkomunikasi dengan kontraktor. Nah, kalau kamu ingin membangun rumah di Jakarta, kamu bisa cari informasi tentang kontraktor bangunan jakarta yang berpengalaman. Setelah kamu menemukan kontraktor yang tepat, kamu bisa tunjukkan gambar desainmu dan bicarakan detail proyekmu.
Dengan begitu, kamu bisa mewujudkan rumah impianmu di Jakarta!
- Gambar Arsitektur: Menampilkan tata letak ruangan, elevasi, dan fasad bangunan. Gambar ini memberikan gambaran visual tentang desain keseluruhan bangunan.
- Gambar Struktur: Menampilkan detail struktural bangunan, seperti kolom, balok, dan pondasi. Gambar ini membantu dalam menentukan kekuatan dan stabilitas bangunan.
- Gambar Mekanikal: Menampilkan sistem mekanikal bangunan, seperti sistem HVAC, plumbing, dan fire suppression. Gambar ini memastikan bahwa sistem mekanikal dirancang dan dipasang dengan benar.
- Gambar Elektrikal: Menampilkan sistem elektrikal bangunan, seperti kabel, pencahayaan, dan sistem kontrol. Gambar ini memastikan bahwa sistem elektrikal dirancang dan dipasang dengan aman dan efisien.
- Gambar Detail: Menampilkan detail konstruksi yang spesifik, seperti pintu, jendela, dan tangga. Gambar ini memberikan instruksi yang jelas tentang cara membangun setiap komponen bangunan.
Kegunaan Gambar Bangunan dalam Berbagai Tahap Proyek Konstruksi
| Tahap Proyek Konstruksi | Kegunaan Gambar Bangunan |
|---|---|
| Perencanaan dan Desain | Memvisualisasikan desain, mengidentifikasi potensi masalah, memperkirakan biaya, dan mengkoordinasikan berbagai disiplin ilmu. |
| Tender dan Kontrak | Memberikan informasi yang jelas tentang ruang lingkup pekerjaan dan spesifikasi teknis untuk tender dan kontrak. |
| Konstruksi | Memberikan instruksi yang jelas tentang cara membangun bangunan, membantu dalam pengadaan material, dan memastikan kualitas konstruksi. |
| Pemeriksaan dan Sertifikasi | Memberikan informasi yang diperlukan untuk pemeriksaan dan sertifikasi bangunan, memastikan bahwa bangunan memenuhi standar keselamatan dan kualitas. |
| Pemeliharaan dan Renovasi | Memberikan informasi yang diperlukan untuk pemeliharaan dan renovasi bangunan, membantu dalam memahami desain dan sistem bangunan. |
Jenis-jenis Gambar Bangunan

Dalam dunia arsitektur dan konstruksi, gambar bangunan merupakan alat komunikasi visual yang sangat penting. Gambar-gambar ini berfungsi untuk menggambarkan desain, dimensi, dan detail bangunan secara akurat dan mudah dipahami. Gambar bangunan biasanya disusun dalam satu set lengkap yang terdiri dari berbagai jenis gambar yang saling melengkapi.
Jenis-jenis Gambar Bangunan
Jenis-jenis gambar bangunan yang umum digunakan meliputi:
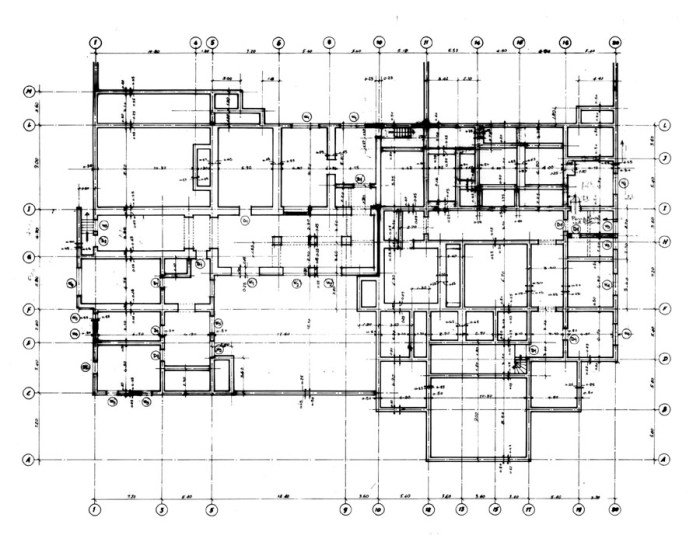
- Denah: Gambar yang menunjukkan tata letak ruangan, dinding, pintu, jendela, dan furnitur pada suatu tingkat bangunan. Denah biasanya ditampilkan sebagai pandangan dari atas, seolah-olah kita melihat bangunan dari langit.
- Tampak: Gambar yang menunjukkan tampilan luar bangunan dari berbagai sisi, seperti tampak depan, tampak samping, dan tampak belakang. Tampak menunjukkan bentuk dan desain eksterior bangunan, termasuk fasad, atap, dan elemen arsitektur lainnya.
- Potongan: Gambar yang menunjukkan penampang bangunan secara vertikal, seolah-olah bangunan dipotong menjadi dua bagian. Potongan menunjukkan hubungan antara berbagai tingkat bangunan, struktur, dan sistem utilitas.
- Detail: Gambar yang menunjukkan detail konstruksi yang lebih kecil, seperti sambungan, bahan, dan elemen arsitektur lainnya. Detail biasanya dibuat dalam skala yang lebih besar daripada gambar lainnya untuk memberikan informasi yang lebih rinci.
- Gambar Site Plan: Gambar yang menunjukkan tata letak bangunan di dalam situs, termasuk jalan masuk, taman, dan elemen lanskap lainnya. Site plan menunjukkan hubungan bangunan dengan lingkungan sekitarnya.
- Gambar Struktur: Gambar yang menunjukkan struktur rangka bangunan, termasuk kolom, balok, dan pondasi. Gambar struktur menunjukkan kekuatan dan stabilitas bangunan.
- Gambar Arsitektur: Gambar yang menunjukkan desain arsitektur bangunan, termasuk bentuk, fasad, dan elemen dekoratif. Gambar arsitektur menunjukkan estetika dan keindahan bangunan.
- Gambar Elektrikal: Gambar yang menunjukkan sistem kelistrikan bangunan, termasuk kabel, sakelar, dan outlet. Gambar elektrikal menunjukkan bagaimana listrik didistribusikan di dalam bangunan.
- Gambar Mekanikal: Gambar yang menunjukkan sistem mekanikal bangunan, termasuk sistem HVAC (heating, ventilation, and air conditioning), sistem plumbing, dan sistem sprinkler. Gambar mekanikal menunjukkan bagaimana bangunan didinginkan, dipanaskan, dan diberi air.
Contoh Gambar Bangunan
Berikut adalah contoh gambar bangunan untuk setiap jenis:
- Denah: Gambar denah menunjukkan tata letak ruangan, dinding, pintu, jendela, dan furnitur pada suatu tingkat bangunan. Sebagai contoh, denah lantai pertama rumah menunjukkan tata letak ruang tamu, ruang makan, dapur, dan kamar tidur utama.
- Tampak: Gambar tampak menunjukkan tampilan luar bangunan dari berbagai sisi. Sebagai contoh, tampak depan rumah menunjukkan bentuk dan desain fasad, pintu masuk utama, dan jendela.
- Potongan: Gambar potongan menunjukkan penampang bangunan secara vertikal. Sebagai contoh, potongan melalui rumah menunjukkan hubungan antara lantai pertama dan lantai kedua, struktur atap, dan sistem tangga.
- Detail: Gambar detail menunjukkan detail konstruksi yang lebih kecil. Sebagai contoh, detail pintu menunjukkan bahan, dimensi, dan cara pintu dipasang ke dinding.
- Gambar Site Plan: Gambar site plan menunjukkan tata letak bangunan di dalam situs. Sebagai contoh, site plan menunjukkan posisi rumah di dalam tanah, jalan masuk, taman, dan kolam renang.
- Gambar Struktur: Gambar struktur menunjukkan struktur rangka bangunan. Sebagai contoh, gambar struktur menunjukkan kolom, balok, dan pondasi yang menopang rumah.
- Gambar Arsitektur: Gambar arsitektur menunjukkan desain arsitektur bangunan. Sebagai contoh, gambar arsitektur menunjukkan bentuk, fasad, dan elemen dekoratif rumah.
- Gambar Elektrikal: Gambar elektrikal menunjukkan sistem kelistrikan bangunan. Sebagai contoh, gambar elektrikal menunjukkan bagaimana listrik didistribusikan di dalam rumah, termasuk kabel, sakelar, dan outlet.
- Gambar Mekanikal: Gambar mekanikal menunjukkan sistem mekanikal bangunan. Sebagai contoh, gambar mekanikal menunjukkan sistem HVAC, sistem plumbing, dan sistem sprinkler di dalam rumah.
Perbedaan antara Gambar Denah, Tampak, dan Potongan
Gambar denah, tampak, dan potongan adalah jenis gambar bangunan yang paling umum digunakan. Ketiga jenis gambar ini memiliki perbedaan yang signifikan dalam cara mereka menggambarkan bangunan.
Denahmenunjukkan tata letak ruangan dan elemen bangunan dari pandangan atas. Denah tidak menunjukkan tinggi atau kedalaman bangunan. Denah biasanya digunakan untuk merencanakan tata letak ruangan, memilih furnitur, dan menghitung luas bangunan.
Tampakmenunjukkan tampilan luar bangunan dari berbagai sisi. Tampak menunjukkan bentuk, desain, dan elemen arsitektur eksterior bangunan. Tampak biasanya digunakan untuk menggambarkan estetika dan keindahan bangunan, serta untuk memahami bagaimana bangunan terlihat dari luar.
Potonganmenunjukkan penampang bangunan secara vertikal. Potongan menunjukkan hubungan antara berbagai tingkat bangunan, struktur, dan sistem utilitas. Potongan biasanya digunakan untuk memahami struktur bangunan, memahami bagaimana berbagai elemen bangunan saling berhubungan, dan untuk menghitung volume bangunan.
Teknik Menggambar Bangunan

Menggambar bangunan merupakan tahap awal dalam proses desain arsitektur. Teknik menggambar bangunan melibatkan penggambaran rencana, denah, tampak, dan potongan bangunan dengan menggunakan alat bantu tradisional maupun digital. Keahlian dalam menggambar bangunan menjadi penting bagi arsitek, desainer interior, dan profesional terkait lainnya untuk memvisualisasikan ide dan menyampaikan desain kepada klien dan kontraktor.
Kursus gambar bangunan bisa jadi gerbang untuk menuangkan ide desain kamu, lho! Bayangkan, kamu bisa menggambar desain cafe minimalis yang modern dan estetis. Nah, buat kamu yang ingin belajar mendesain cafe minimalis dengan konsep yang menarik, bangunan cafe minimalis bisa jadi inspirasi.
Setelah mempelajari dasar-dasar gambar bangunan, kamu bisa mengembangkan ide-ide kreatif untuk desain cafe impianmu, mulai dari tata letak, pencahayaan, hingga pemilihan material.
Langkah-langkah Dasar Menggambar Bangunan
Menggambar bangunan membutuhkan ketelitian dan pemahaman yang baik tentang proporsi, perspektif, dan elemen arsitektur. Berikut langkah-langkah dasar dalam menggambar bangunan:
- Sketsa Awal:Mulailah dengan sketsa awal untuk menggambar ide dasar bangunan. Gunakan pensil dan kertas untuk membuat garis-garis sederhana dan proporsi awal bangunan.
- Denah:Gambar denah bangunan yang menunjukkan tata letak ruangan, dinding, pintu, jendela, dan elemen struktural lainnya.
- Tampak:Gambar tampak bangunan yang menunjukkan tampilan depan, samping, dan belakang bangunan.
- Potongan:Gambar potongan bangunan yang menunjukkan struktur internal bangunan, seperti dinding, lantai, atap, dan tangga.
- Detail:Gambar detail untuk menunjukkan elemen bangunan yang spesifik, seperti pintu, jendela, tangga, dan furnitur.
Teknik Menggambar Tradisional
Teknik menggambar tradisional menggunakan alat bantu seperti pensil, penggaris, jangka, dan mistar T. Teknik ini membutuhkan ketelitian dan keahlian manual. Berikut beberapa teknik menggambar tradisional yang umum digunakan:
- Pensil:Pensil merupakan alat yang paling umum digunakan dalam menggambar bangunan. Gunakan pensil dengan tingkat kekerasan yang berbeda untuk membuat garis-garis dengan ketebalan yang berbeda.
- Penggaris dan Jangka:Penggaris dan jangka digunakan untuk menggambar garis lurus, lengkung, dan bentuk geometris dengan presisi.
- Mistar T:Mistar T digunakan untuk menggambar garis lurus horizontal dengan presisi.
- Teknik Arsir:Teknik arsir digunakan untuk menambahkan detail dan kedalaman pada gambar bangunan. Arsir dapat dilakukan dengan menggunakan pensil, arsir silang, atau teknik arsir lainnya.
Teknik Menggambar Digital
Teknik menggambar digital menggunakan perangkat lunak komputer untuk menggambar bangunan. Teknik ini menawarkan fleksibilitas, kecepatan, dan kemampuan untuk mengedit dan memodifikasi gambar dengan mudah. Berikut beberapa perangkat lunak menggambar bangunan yang populer:
- AutoCAD:AutoCAD adalah perangkat lunak CAD (Computer-Aided Design) yang populer untuk menggambar bangunan. AutoCAD menawarkan berbagai alat dan fitur untuk menggambar, memodelkan, dan menganalisis desain bangunan.
- SketchUp:SketchUp adalah perangkat lunak pemodelan 3D yang mudah digunakan untuk menggambar bangunan. SketchUp menawarkan antarmuka yang ramah pengguna dan alat pemodelan yang intuitif.
- Revit:Revit adalah perangkat lunak BIM (Building Information Modeling) yang digunakan untuk menggambar bangunan dengan informasi yang terintegrasi. Revit memungkinkan arsitek untuk membuat model bangunan 3D yang akurat dan terintegrasi dengan data bangunan lainnya.
Contoh Penggunaan AutoCAD, Kursus gambar bangunan
AutoCAD digunakan secara luas dalam industri arsitektur dan konstruksi. Perangkat lunak ini menawarkan berbagai fitur yang bermanfaat untuk menggambar bangunan, seperti:
- Alat Menggambar:AutoCAD menyediakan alat menggambar yang komprehensif untuk membuat garis, lengkung, bentuk geometris, dan teks dengan presisi.
- Pemodelan 3D:AutoCAD memungkinkan pengguna untuk membuat model bangunan 3D yang realistis. Model 3D dapat digunakan untuk memvisualisasikan desain, menganalisis ruang, dan menghasilkan gambar render.
- Dokumentasi:AutoCAD dapat digunakan untuk membuat dokumentasi bangunan, seperti denah, tampak, potongan, dan detail. Dokumentasi dapat digunakan untuk tujuan konstruksi dan komunikasi.
- Analisis:AutoCAD menawarkan alat analisis untuk memeriksa desain bangunan, seperti analisis struktur, analisis energi, dan analisis aliran udara.
Pentingnya Keterampilan Menggambar Bangunan

Menggambar bangunan merupakan keterampilan yang tak lekang oleh waktu dan sangat penting dalam dunia kerja, khususnya dalam bidang arsitektur, konstruksi, dan desain interior. Kemampuan ini bukan sekadar menggoreskan pensil di atas kertas, melainkan sebuah proses kreatif yang melibatkan pemahaman tentang bentuk, ruang, proporsi, dan fungsi bangunan.
Peluang Karir
Bagi mereka yang memiliki keterampilan menggambar bangunan, berbagai peluang karir terbuka lebar. Keterampilan ini menjadi aset berharga dalam berbagai bidang pekerjaan, mulai dari desain hingga konstruksi.
- Arsitek: Arsitek adalah profesi yang membutuhkan keterampilan menggambar bangunan yang kuat untuk merancang bangunan yang estetis dan fungsional.
- Desainer Interior: Desainer interior mengandalkan kemampuan menggambar untuk menciptakan desain ruangan yang menarik dan sesuai dengan kebutuhan penghuni.
- Drafter: Drafter bertanggung jawab untuk membuat gambar teknik yang akurat dan detail untuk proyek konstruksi.
- Konstruksi: Pekerja konstruksi membutuhkan keterampilan menggambar untuk memahami desain bangunan dan menyelesaikan tugas mereka dengan tepat.
- Guru Teknik: Guru teknik yang mengampu mata kuliah desain bangunan harus memiliki kemampuan menggambar yang mumpuni untuk menjelaskan konsep dan teori desain kepada siswa.
Contoh Profesi yang Membutuhkan Keterampilan Menggambar Bangunan
Berikut adalah beberapa contoh profesi yang membutuhkan keterampilan menggambar bangunan:
- Arsitek Lanskap: Menggambar denah taman, area hijau, dan tata letak landscape untuk menciptakan ruang terbuka yang indah dan fungsional.
- Perencana Kota: Menggambar denah kota, zoning, dan infrastruktur untuk merencanakan pengembangan kota yang terstruktur dan berkelanjutan.
- Desainer Produk: Menggambar desain produk, seperti furnitur, peralatan rumah tangga, dan kendaraan, dengan mempertimbangkan aspek fungsionalitas dan estetika.
- Ilustrator: Menggambar ilustrasi untuk buku, majalah, dan media cetak lainnya yang berkaitan dengan bangunan dan arsitektur.
- Animator: Menggambar karakter dan objek dalam animasi yang berhubungan dengan arsitektur dan desain bangunan.
Tips Memilih Kursus Gambar Bangunan

Mempelajari gambar bangunan tidak hanya membantu Anda memahami desain bangunan, tetapi juga membuka peluang karir di bidang arsitektur, konstruksi, dan desain interior. Namun, dengan begitu banyaknya lembaga kursus yang tersedia, memilih kursus gambar bangunan yang berkualitas menjadi hal yang penting.
Berikut beberapa tips untuk membantu Anda memilih kursus yang tepat:
Faktor-Faktor Penting
Ada beberapa faktor yang perlu dipertimbangkan saat memilih kursus gambar bangunan. Faktor-faktor ini akan membantu Anda menentukan kursus yang sesuai dengan kebutuhan dan tujuan Anda.
- Tujuan Anda: Apa tujuan Anda mengikuti kursus gambar bangunan? Apakah Anda ingin meningkatkan keterampilan untuk pekerjaan Anda saat ini, atau ingin memulai karir baru di bidang arsitektur? Kejelasan tujuan akan membantu Anda memilih kursus yang tepat.
- Tingkat Kemampuan: Apakah Anda pemula atau sudah memiliki pengalaman dalam menggambar bangunan? Pilihlah kursus yang sesuai dengan tingkat kemampuan Anda. Jika Anda pemula, carilah kursus dasar yang mengajarkan dasar-dasar menggambar bangunan.
- Durasi Kursus: Pertimbangkan waktu yang Anda miliki untuk mengikuti kursus. Pilihlah kursus dengan durasi yang sesuai dengan jadwal Anda. Ada kursus yang berlangsung dalam beberapa minggu, bulan, atau bahkan tahun.
- Metode Pembelajaran: Apakah Anda lebih suka belajar secara langsung di kelas, atau melalui pembelajaran online? Pilihlah metode pembelajaran yang paling sesuai dengan gaya belajar Anda. Beberapa lembaga kursus menawarkan kedua pilihan.
- Biaya Kursus: Pertimbangkan biaya kursus dan pastikan bahwa Anda mampu membiayainya. Bandingkan biaya dari berbagai lembaga kursus untuk mendapatkan harga terbaik.
Kriteria Menilai Kredibilitas
Setelah mempertimbangkan faktor-faktor di atas, penting untuk menilai kredibilitas lembaga kursus. Berikut beberapa kriteria yang dapat digunakan:
- Reputasi Lembaga: Carilah lembaga kursus dengan reputasi baik. Anda dapat mencari informasi tentang lembaga kursus di internet, bertanya kepada orang-orang yang sudah pernah mengikuti kursus di sana, atau membaca ulasan online.
- Pengalaman Instruktur: Pastikan instruktur memiliki pengalaman dan keahlian dalam bidang gambar bangunan. Lihatlah kualifikasi dan pengalaman instruktur di website lembaga kursus atau tanya langsung kepada mereka.
- Kurikulum Kursus: Periksa kurikulum kursus dan pastikan bahwa materi yang diajarkan relevan dengan kebutuhan dan tujuan Anda. Pastikan juga bahwa kurikulum mencakup berbagai topik, seperti dasar-dasar menggambar bangunan, teknik menggambar perspektif, dan penggunaan software desain.
- Fasilitas Kursus: Pastikan lembaga kursus memiliki fasilitas yang memadai untuk pembelajaran gambar bangunan. Misalnya, ruangan kelas yang nyaman, peralatan menggambar yang lengkap, dan akses internet yang lancar.
- Sertifikat Kursus: Apakah lembaga kursus memberikan sertifikat setelah menyelesaikan kursus? Sertifikat dapat menjadi bukti bahwa Anda telah mengikuti kursus dan menguasai keterampilan yang diajarkan.
Tips Tambahan
Selain faktor-faktor dan kriteria di atas, berikut beberapa tips tambahan untuk memilih kursus gambar bangunan:
- Bergabunglah dengan Forum Online: Bergabunglah dengan forum online yang membahas tentang gambar bangunan. Anda dapat bertanya kepada anggota forum tentang rekomendasi kursus gambar bangunan yang berkualitas.
- Hubungi Lembaga Kursus: Hubungi beberapa lembaga kursus yang Anda minati untuk mendapatkan informasi lebih lanjut tentang program kursus, biaya, dan jadwal. Anda juga dapat bertanya tentang pengalaman para instruktur dan fasilitas yang tersedia.
- Ikuti Kelas Percobaan: Jika memungkinkan, ikuti kelas percobaan di beberapa lembaga kursus. Ini akan membantu Anda merasakan suasana kelas, mengenal instruktur, dan melihat bagaimana materi diajarkan.
Contoh Gambar Bangunan

Setelah mempelajari berbagai jenis gambar bangunan, penting untuk melihat contoh konkret agar pemahaman Anda lebih kuat. Berikut ini adalah beberapa contoh gambar bangunan yang akan memperjelas konsep yang telah dipelajari.
Contoh Gambar Bangunan Sederhana
Bayangkan sebuah bangunan sederhana seperti rumah tinggal satu lantai. Untuk menggambarkan bangunan ini, kita membutuhkan beberapa gambar, yaitu:
- Denah: Gambar ini menunjukkan tata letak ruangan dan posisi dinding, pintu, dan jendela dari atas. Anda bisa melihat di sini bagaimana ruangan-ruangan saling berhubungan dan bagaimana aliran sirkulasi di dalam rumah.
- Tampak: Gambar ini menunjukkan tampilan bangunan dari depan, samping, dan belakang. Tampak ini memperlihatkan bentuk bangunan secara keseluruhan, termasuk desain fasad dan detail eksterior seperti jendela dan pintu.
- Potongan: Gambar ini menunjukkan irisan vertikal bangunan. Potongan ini menampilkan tinggi ruangan, ketinggian atap, dan posisi tangga. Anda bisa melihat bagaimana struktur bangunan disusun secara vertikal.
Detail yang Terdapat pada Gambar Bangunan
Setiap gambar bangunan memiliki detail penting yang harus dipahami. Berikut ini adalah beberapa detail yang umumnya terdapat pada gambar bangunan:
- Dimensi: Dimensi menunjukkan ukuran ruangan, dinding, pintu, dan jendela. Dimensi biasanya ditulis dalam satuan sentimeter atau meter.
- Simbol: Simbol digunakan untuk mewakili berbagai elemen bangunan, seperti pintu, jendela, tangga, dan perlengkapan. Setiap simbol memiliki makna yang spesifik.
- Keterangan: Keterangan merupakan penjelasan singkat tentang elemen-elemen yang ditampilkan pada gambar. Keterangan ini membantu pembaca memahami gambar dengan lebih baik.
- Skala: Skala menunjukkan perbandingan antara ukuran gambar dengan ukuran sebenarnya. Skala ini penting untuk memastikan bahwa gambar bangunan sesuai dengan ukuran sebenarnya.
Contoh Gambar Denah
Gambar denah menunjukkan tata letak ruangan, posisi dinding, pintu, dan jendela dari atas. Di sini, Anda dapat melihat ruang tamu, kamar tidur, dapur, dan kamar mandi, serta hubungan antar ruangan. Anda juga dapat melihat bagaimana aliran sirkulasi di dalam rumah.
Contoh Gambar Tampak
Gambar tampak menunjukkan tampilan bangunan dari depan, samping, dan belakang. Tampak ini memperlihatkan bentuk bangunan secara keseluruhan, termasuk desain fasad dan detail eksterior seperti jendela dan pintu. Anda dapat melihat bentuk atap, material fasad, dan desain jendela yang digunakan.
Contoh Gambar Potongan
Gambar potongan menunjukkan irisan vertikal bangunan. Potongan ini menampilkan tinggi ruangan, ketinggian atap, dan posisi tangga. Anda dapat melihat bagaimana struktur bangunan disusun secara vertikal, termasuk tinggi lantai, jenis atap, dan posisi tangga.
Ulasan Penutup

Kursus Gambar Bangunan adalah investasi yang berharga bagi siapa pun yang ingin berkecimpung di dunia arsitektur. Dengan memahami dasar-dasar menggambar bangunan, Anda tidak hanya memiliki kemampuan untuk menciptakan desain yang indah, tetapi juga memahami proses pembangunan yang kompleks. Marilah kita bersama-sama menjelajahi dunia arsitektur melalui seni menggambar bangunan.
Sudut Pertanyaan Umum (FAQ)
Apakah saya perlu memiliki bakat menggambar untuk mengikuti kursus ini?
Tidak perlu. Kursus ini dirancang untuk semua orang, baik yang memiliki bakat menggambar maupun tidak. Anda akan diajarkan teknik dasar menggambar dan penggunaan software yang akan membantu Anda mengembangkan keterampilan.
Apakah saya perlu memiliki komputer dan software tertentu untuk mengikuti kursus ini?
Tergantung pada jenis kursus yang Anda pilih. Beberapa kursus mungkin mengharuskan Anda memiliki komputer dan software tertentu, sementara yang lain menyediakan fasilitas dan software selama kursus.
Berapa lama durasi kursus gambar bangunan?
Durasi kursus bervariasi tergantung pada lembaga dan tingkat kesulitan. Umumnya, kursus dasar berlangsung selama beberapa bulan, sementara kursus lanjutan dapat berlangsung selama beberapa tahun.