Desain rumah type 45 terbaik – Memiliki rumah sendiri adalah impian banyak orang, dan desain rumah type 45 sering menjadi pilihan favorit. Dengan luas bangunan 45 meter persegi, rumah type 45 menawarkan efisiensi ruang dan fleksibilitas yang ideal untuk berbagai kebutuhan keluarga. Artikel ini akan membahas berbagai aspek desain rumah type 45, mulai dari pengertian, keuntungan dan kekurangan, inspirasi desain, tips merancang, hingga contoh desain untuk keluarga muda.
Yuk, temukan inspirasi dan tips desain rumah type 45 terbaik yang sesuai dengan kebutuhan dan impian Anda!
Pengertian Desain Rumah Type 45: Desain Rumah Type 45 Terbaik

Rumah type 45 adalah salah satu jenis rumah yang populer di Indonesia. Rumah ini memiliki luas bangunan sekitar 45 meter persegi dan biasanya dirancang untuk keluarga kecil atau pasangan muda. Rumah type 45 biasanya terdiri dari 2-3 kamar tidur, 1-2 kamar mandi, ruang tamu, ruang makan, dan dapur.
Membangun rumah type 45 terbaik memang membutuhkan perencanaan matang. Selain desain yang sesuai dengan kebutuhan, kamu juga perlu mempertimbangkan biaya pembangunan. Nah, untuk membantu kamu dalam menghitung biaya, kamu bisa memanfaatkan rab bangunan excel free download yang tersedia di internet.
Dengan RAB yang akurat, kamu bisa mengatur budget dan mengontrol pengeluaran selama proses pembangunan, sehingga impianmu untuk memiliki rumah type 45 terbaik bisa terwujud dengan lancar.
Rumah ini seringkali dibangun di atas lahan dengan luas 72 meter persegi atau lebih, sehingga masih terdapat ruang terbuka di sekitarnya.
Karakteristik Rumah Type 45
Rumah type 45 memiliki beberapa karakteristik yang membedakannya dengan type rumah lainnya. Beberapa karakteristik tersebut meliputi:
- Luas bangunan sekitar 45 meter persegi
- Biasanya terdiri dari 2-3 kamar tidur, 1-2 kamar mandi, ruang tamu, ruang makan, dan dapur
- Dibangun di atas lahan dengan luas minimal 72 meter persegi
- Desain yang sederhana dan fungsional
- Harga yang relatif terjangkau
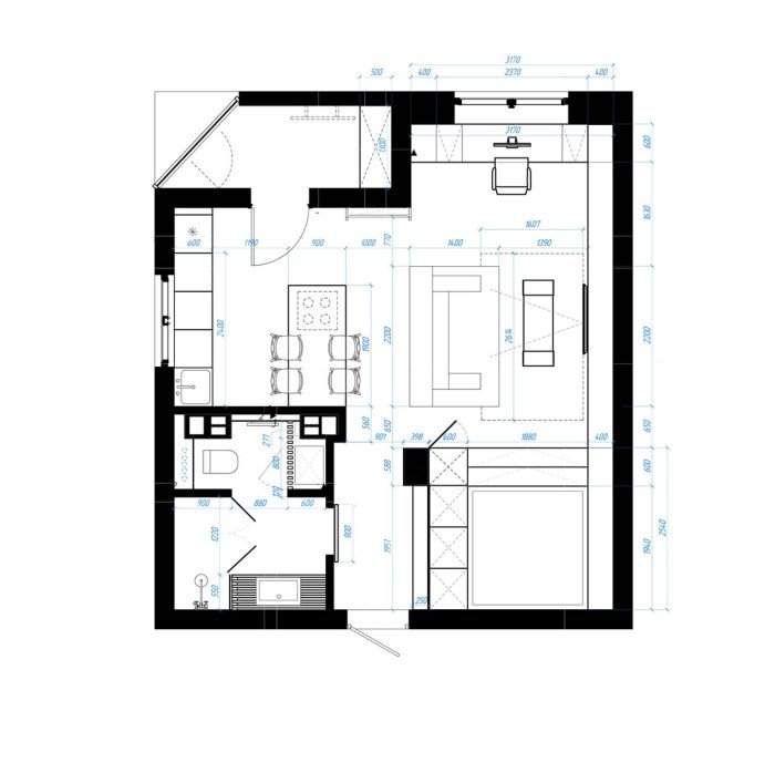
Contoh Ilustrasi Rumah Type 45
Berikut adalah contoh ilustrasi rumah type 45 dengan denah yang menunjukkan luas bangunan dan lahan:
Ilustrasi ini menunjukkan denah rumah type 45 dengan luas bangunan 45 meter persegi dan lahan 72 meter persegi. Rumah ini memiliki 2 kamar tidur, 1 kamar mandi, ruang tamu, ruang makan, dan dapur. Terdapat juga teras depan dan belakang, serta taman kecil di samping rumah.
Perbandingan Rumah Type 45 dengan Type Lain
Berikut adalah tabel yang membandingkan rumah type 45 dengan type lain (misalnya 36 dan 70) berdasarkan luas bangunan, jumlah kamar, dan fasilitas:
| Type Rumah | Luas Bangunan (m²) | Jumlah Kamar Tidur | Fasilitas |
|---|---|---|---|
| Type 36 | 36 | 2 | 1 Kamar Mandi, Ruang Tamu, Ruang Makan, Dapur |
| Type 45 | 45 | 2-3 | 1-2 Kamar Mandi, Ruang Tamu, Ruang Makan, Dapur |
| Type 70 | 70 | 3-4 | 2-3 Kamar Mandi, Ruang Tamu, Ruang Makan, Dapur, Ruang Keluarga |
Keuntungan dan Kekurangan Desain Rumah Type 45

Membangun rumah type 45 adalah pilihan populer bagi banyak orang, terutama bagi keluarga muda atau yang baru memulai kehidupan. Rumah type 45 menawarkan keseimbangan antara luas bangunan dan harga yang relatif terjangkau. Namun, seperti halnya pilihan lain, desain rumah type 45 memiliki keuntungan dan kekurangan yang perlu dipertimbangkan sebelum memutuskan untuk membangunnya.
Keuntungan Desain Rumah Type 45
Desain rumah type 45 menawarkan beberapa keuntungan yang membuatnya menarik bagi banyak orang. Berikut adalah tiga keuntungan utama dari desain rumah type 45:
- Harga Terjangkau:Rumah type 45 umumnya memiliki harga yang lebih terjangkau dibandingkan dengan rumah dengan luas bangunan yang lebih besar. Hal ini disebabkan oleh penggunaan material yang lebih sedikit dan proses pembangunan yang lebih sederhana.
- Efisiensi Ruang:Meskipun luas bangunannya terbatas, desain rumah type 45 dirancang dengan efisiensi ruang yang optimal. Arsitek dan desainer rumah type 45 biasanya menggunakan berbagai trik untuk memaksimalkan penggunaan ruang, seperti penggunaan furnitur multifungsi dan penataan ruangan yang cerdas.
- Mudah Dirawat:Rumah type 45 umumnya memiliki desain yang sederhana dan mudah dirawat. Hal ini membuat proses pembersihan dan pemeliharaan rumah menjadi lebih mudah dan tidak terlalu memakan waktu.
Kekurangan Desain Rumah Type 45
Meskipun memiliki beberapa keuntungan, desain rumah type 45 juga memiliki beberapa kekurangan yang perlu dipertimbangkan. Berikut adalah dua kekurangan yang sering dijumpai pada desain rumah type 45:
- Luas Bangunan Terbatas:Salah satu kekurangan utama dari rumah type 45 adalah luas bangunannya yang terbatas. Hal ini dapat menjadi kendala jika Anda memiliki keluarga besar atau menginginkan ruang yang lebih luas untuk hobi atau kegiatan lain.
- Kurangnya Privasi:Karena luas bangunan yang terbatas, rumah type 45 sering kali memiliki desain ruangan yang kurang privasi. Misalnya, kamar tidur anak mungkin berdekatan dengan ruang keluarga, sehingga sulit untuk menciptakan suasana yang tenang dan privat.
Tabel Perbandingan Keuntungan dan Kekurangan
| Aspek | Keuntungan | Kekurangan |
|---|---|---|
| Harga | Terjangkau | – |
| Luas Bangunan | Efisiensi ruang | Terbatas |
| Privasi | – | Kurang privasi |
| Perawatan | Mudah dirawat | – |
Inspirasi Desain Rumah Type 45 Terbaik

Memiliki rumah type 45 yang nyaman dan estetis merupakan impian banyak orang. Rumah type 45 menawarkan ruang yang cukup untuk keluarga kecil dengan desain yang bisa disesuaikan dengan selera dan kebutuhan penghuninya. Nah, untuk membantu Anda menemukan inspirasi, berikut adalah 5 contoh desain rumah type 45 terbaik dengan gaya arsitektur yang berbeda.
Desain Rumah Type 45 Minimalis
Desain minimalis identik dengan kesederhanaan dan fungsionalitas. Rumah type 45 minimalis biasanya memiliki garis-garis bersih, warna netral, dan pencahayaan yang optimal. Desain ini cocok untuk Anda yang menginginkan rumah yang praktis dan mudah dirawat.
-
Contoh:Rumah type 45 minimalis dengan taman di depan. Rumah ini memiliki fasad yang simpel dengan dominasi warna putih dan abu-abu. Pintu masuk yang lebar dan jendela kaca besar memungkinkan cahaya matahari masuk ke dalam rumah. Taman kecil di depan menambah kesan segar dan asri.
Denah:Denah rumah ini terdiri dari ruang tamu, ruang makan, dapur, 2 kamar tidur, 1 kamar mandi, dan teras depan. Ruang tamu dan ruang makan dirancang menyatu untuk memaksimalkan ruang. Kamar tidur utama memiliki kamar mandi pribadi, sementara kamar tidur kedua dihubungkan dengan kamar mandi bersama.
Membangun rumah type 45 yang nyaman dan modern memang butuh perencanaan matang. Selain desain yang pas, material bangunan berkualitas juga penting. Nah, kalau kamu lagi cari toko bangunan lengkap di Tabanan, toko bangunan tabanan bisa jadi pilihan yang tepat. Dengan beragam pilihan material dan harga yang kompetitif, kamu bisa mewujudkan desain rumah type 45 terbaik sesuai impian.
“Saya sangat suka dengan desain rumah saya yang minimalis. Rumahnya terasa lapang dan bersih, meskipun ukurannya tidak terlalu besar. Saya juga merasa lebih mudah untuk membersihkan dan menata rumahnya,” ujar Pak Budi, pemilik rumah type 45 minimalis.
Desain Rumah Type 45 Modern
Desain modern memiliki ciri khas dengan bentuk geometris, material modern, dan pencahayaan yang dramatis. Rumah type 45 modern biasanya memiliki desain yang futuristik dan terkesan mewah.
Desain rumah type 45 terbaik memang banyak macamnya, dari yang minimalis modern hingga yang lebih tradisional. Tapi, kalau kamu ingin sesuatu yang lebih simpel dan nyaman, bisa banget mengintip inspirasi dari desain rumah sederhana di kampung. Sederhana, tapi tetap fungsional dan punya karakter khas.
Konsep ini bisa banget diadaptasi ke desain rumah type 45, lho! Misalnya, dengan penggunaan material alami dan penataan ruang yang efisien, rumah type 45 kamu bisa jadi tempat tinggal yang nyaman dan ramah lingkungan.
-
Contoh:Rumah type 45 modern dengan atap datar. Rumah ini memiliki desain yang unik dengan atap datar dan penggunaan material kaca yang dominan. Fasad rumah dihiasi dengan batu alam dan tanaman hijau yang menambah kesan modern dan natural.
Denah:Denah rumah ini terdiri dari ruang tamu, ruang makan, dapur, 2 kamar tidur, 1 kamar mandi, dan teras depan. Ruang tamu dirancang dengan konsep open space yang terhubung dengan ruang makan dan dapur. Kamar tidur utama memiliki kamar mandi pribadi, sementara kamar tidur kedua dihubungkan dengan kamar mandi bersama.
“Rumah saya yang modern ini memberikan kesan yang luas dan terang. Saya suka dengan penggunaan material kaca yang membuat rumah terasa lebih hidup dan modern,” kata Ibu Rini, pemilik rumah type 45 modern.
Desain Rumah Type 45 Tradisional
Desain tradisional mengusung nilai-nilai budaya dan kearifan lokal. Rumah type 45 tradisional biasanya memiliki ciri khas dengan penggunaan material alam, ornamen khas, dan warna-warna hangat. Desain ini cocok untuk Anda yang menginginkan rumah yang nyaman dan sarat makna.
-
Contoh:Rumah type 45 tradisional dengan atap joglo. Rumah ini memiliki desain khas Jawa dengan atap joglo yang menjulang tinggi. Fasad rumah dihiasi dengan ornamen kayu dan batu bata yang menambah kesan klasik dan elegan.
Denah:Denah rumah ini terdiri dari ruang tamu, ruang makan, dapur, 2 kamar tidur, 1 kamar mandi, dan teras depan. Ruang tamu dan ruang makan dirancang dengan konsep open space yang terhubung dengan dapur. Kamar tidur utama memiliki kamar mandi pribadi, sementara kamar tidur kedua dihubungkan dengan kamar mandi bersama.
“Saya sangat bangga dengan rumah saya yang tradisional ini. Rumah ini bukan hanya tempat tinggal, tapi juga simbol dari budaya dan kearifan lokal. Saya merasa lebih tenang dan damai tinggal di rumah ini,” ujar Pak Harto, pemilik rumah type 45 tradisional.
Tips Merancang Desain Rumah Type 45
Membangun rumah type 45 memang menantang, terutama untuk memaksimalkan ruang agar terasa nyaman dan fungsional. Desain yang tepat adalah kunci untuk mewujudkan hunian impian. Berikut adalah beberapa tips yang dapat Anda terapkan:
Membuat Denah Rumah yang Optimal, Desain rumah type 45 terbaik
Denah rumah yang baik akan memaksimalkan penggunaan ruang dan meminimalisir area yang terbuang. Untuk rumah type 45, penting untuk mengatur layout ruangan dengan cermat.
- Tentukan prioritas ruangan.Prioritaskan ruangan yang paling sering digunakan, seperti ruang tamu, ruang makan, dan kamar tidur utama. Pastikan ruangan-ruangan ini memiliki ukuran yang memadai dan pencahayaan yang baik.
- Manfaatkan ruang vertikal.Untuk memaksimalkan ruang, manfaatkan ruang vertikal dengan membuat rak dinding, kabinet, atau mezzanine untuk menyimpan barang-barang.
- Buat ruangan multifungsi.Ruangan multifungsi dapat menjadi solusi untuk rumah type 45. Misalnya, ruang tamu dapat difungsikan sebagai ruang keluarga atau ruang makan.
Memilih Material Bangunan yang Tepat
Material bangunan yang tepat akan memengaruhi estetika, ketahanan, dan biaya konstruksi. Berikut adalah contoh material bangunan yang ideal untuk rumah type 45:
| Ruangan | Material | Alasan |
|---|---|---|
| Dinding | Bata ringan | Ringan, kuat, dan mudah diaplikasikan. |
| Lantai | Keramik atau granit | Tahan lama, mudah dibersihkan, dan beragam pilihan desain. |
| Atap | Genteng metal | Ringan, tahan lama, dan mudah perawatan. |
Menerapkan Konsep Open Space
Konsep open space dapat membuat rumah type 45 terasa lebih luas dan lega. Penerapan konsep ini dapat dilakukan dengan menggabungkan beberapa ruangan, seperti ruang tamu dan ruang makan. Hal ini akan memaksimalkan sirkulasi udara dan cahaya matahari.
- Gunakan partisi.Untuk memisahkan ruangan tanpa terkesan sempit, Anda dapat menggunakan partisi yang terbuat dari kaca, kayu, atau bambu.
- Manfaatkan warna terang.Warna terang dapat membuat ruangan terkesan lebih luas. Gunakan warna terang pada dinding dan furniture.
- Pilih furnitur multifungsi.Furnitur multifungsi, seperti sofa bed atau meja lipat, dapat menghemat ruang dan menambah fleksibilitas ruangan.
Contoh Desain Rumah Type 45 untuk Keluarga Muda

Membangun rumah impian untuk keluarga muda dengan dua anak membutuhkan perencanaan yang matang. Salah satu pilihan yang populer adalah rumah type 45, yang menawarkan luas bangunan yang cukup untuk mengakomodasi kebutuhan keluarga kecil. Artikel ini akan memberikan contoh desain rumah type 45 yang cocok untuk keluarga muda, dengan penempatan ruangan yang fungsional dan nyaman.
Denah Rumah Type 45 untuk Keluarga Muda
Denah rumah type 45 untuk keluarga muda dengan dua anak dapat dirancang dengan penempatan ruangan yang efisien. Berikut contoh denah yang dapat Anda pertimbangkan:
- Ruang Tamu:Berada di bagian depan rumah, dengan ukuran sekitar 3×4 meter. Ruang tamu dapat dihubungkan dengan ruang makan, sehingga menciptakan area yang lebih luas untuk berkumpul bersama keluarga.
- Ruang Makan:Berada di samping ruang tamu, dengan ukuran sekitar 2×3 meter. Ruang makan ini cukup untuk menampung meja makan untuk empat orang.
- Dapur:Berada di belakang ruang makan, dengan ukuran sekitar 2×3 meter. Dapur ini dilengkapi dengan wastafel, kompor, dan lemari penyimpanan.
- Kamar Tidur Utama:Berada di bagian belakang rumah, dengan ukuran sekitar 3×4 meter. Kamar tidur utama dilengkapi dengan tempat tidur, lemari pakaian, dan meja rias.
- Kamar Tidur Anak:Berada di samping kamar tidur utama, dengan ukuran sekitar 2×3 meter. Kamar tidur anak dapat di desain dengan tempat tidur tingkat, meja belajar, dan lemari penyimpanan.
- Kamar Mandi:Berada di dekat kamar tidur, dengan ukuran sekitar 1,5×2 meter. Kamar mandi dilengkapi dengan toilet, wastafel, dan shower.
Contoh Desain Interior Ruang Keluarga
Ruang keluarga merupakan area yang penting untuk keluarga muda. Desain interior yang nyaman dan fungsional akan menciptakan suasana yang hangat dan ramah untuk keluarga. Berikut contoh desain interior ruang keluarga:
Ruang keluarga ini didesain dengan konsep minimalis modern. Sofa berwarna abu-abu yang empuk diletakkan di tengah ruangan, dilengkapi dengan meja kopi yang terbuat dari kayu. Dinding ruangan dicat dengan warna putih, memberikan kesan luas dan bersih. Pencahayaan yang cukup dari lampu gantung dan lampu dinding menciptakan suasana yang nyaman.
Sebuah rak dinding berfungsi untuk menyimpan buku dan dekorasi, menambah nilai estetika pada ruangan.
Penutupan Akhir

Dengan perencanaan yang matang dan inspirasi desain yang tepat, membangun rumah type 45 bisa menjadi langkah awal yang menyenangkan menuju hunian idaman. Manfaatkan tips dan contoh desain yang telah diulas untuk menciptakan rumah yang nyaman, fungsional, dan estetis. Ingat, rumah type 45 bukanlah tentang keterbatasan, tetapi tentang optimalisasi ruang untuk menciptakan kehidupan yang lebih baik.
Ringkasan FAQ
Apakah rumah type 45 cukup untuk keluarga dengan 2 anak?
Ya, rumah type 45 dapat mengakomodasi keluarga dengan 2 anak dengan perencanaan tata ruang yang tepat. Anda dapat memaksimalkan ruang dengan menggunakan desain multifungsi dan furniture yang efisien.
Berapa biaya membangun rumah type 45?
Biaya membangun rumah type 45 bervariasi tergantung lokasi, material, dan desain yang dipilih. Anda dapat berkonsultasi dengan arsitek atau kontraktor untuk mendapatkan estimasi biaya yang lebih akurat.
Apa saja material bangunan yang ideal untuk rumah type 45?
Material bangunan yang ideal untuk rumah type 45 bervariasi tergantung kebutuhan dan anggaran. Anda dapat memilih material seperti bata ringan, beton, kayu, dan aluminium.

