Desain Rumah Tanah Segitiga Mengatasi Tantangan dan Memanfaatkan Bentuk Unik

Desain rumah tanah segitiga

Memiliki tanah berbentuk segitiga? Jangan berkecil hati! Bentuk unik ini justru bisa menjadi peluang untuk menciptakan rumah yang menarik dan penuh karakter. Desain rumah tanah segitiga memang memiliki tantangan tersendiri, seperti memaksimalkan ruang di sudut-sudut tajam dan memanfaatkan bentuk yang tidak lazim. Namun, dengan perencanaan yang tepat, Anda bisa membangun hunian yang nyaman, fungsional, dan estetis.

Artikel ini akan membahas berbagai aspek penting dalam merancang rumah di tanah segitiga, mulai dari mengatasi tantangan desain, memilih konsep yang tepat, menata ruang secara efisien, hingga memilih elemen desain yang sesuai. Anda akan menemukan inspirasi dan solusi praktis untuk membangun rumah impian di atas lahan segitiga yang unik.

Tantangan Desain Rumah Tanah Segitiga

Plan floor triangular building sydney architecture residential tower opal park olympic hotel layout plans skyscrapercity triangle towers concept shape arquitetura

Membangun rumah di tanah berbentuk segitiga memang unik dan penuh tantangan. Bentuknya yang tidak lazim membutuhkan kreativitas dan pertimbangan matang dalam merancang tata letak ruangan dan memaksimalkan ruang yang ada.

Tantangan Utama dalam Mendesain Rumah Tanah Segitiga

Berikut ini 3 tantangan utama yang perlu diatasi dalam merancang rumah di tanah berbentuk segitiga:

  • Mengelola Sudut Tajam: Sudut tajam yang khas pada tanah segitiga bisa menjadi kendala dalam penempatan furnitur dan memaksimalkan ruang. Sudut yang sempit dapat membuat ruangan terasa sempit dan kurang nyaman.
  • Memanfaatkan Ruang yang Terbatas: Tanah segitiga umumnya memiliki luas yang terbatas, sehingga membutuhkan perencanaan yang cermat untuk memaksimalkan setiap inci ruang.
  • Menentukan Tata Letak yang Optimal: Menentukan tata letak ruangan yang ideal pada tanah segitiga bisa menjadi tantangan tersendiri. Memastikan sirkulasi udara dan cahaya yang baik serta penempatan ruang-ruang penting seperti ruang tamu, kamar tidur, dan dapur perlu dipertimbangkan secara matang.

Solusi Desain Rumah Berdasarkan Bentuk Segitiga

Bentuk segitiga tanah dapat dibedakan menjadi tiga jenis, yaitu segitiga sama sisi, segitiga sama kaki, dan segitiga sembarang. Setiap jenis memiliki karakteristik yang berbeda, sehingga membutuhkan solusi desain yang berbeda pula.

Bentuk Segitiga Contoh Solusi Desain Rumah
Segitiga Sama Sisi Desain rumah dengan bentuk simetris, dengan ruangan utama di tengah dan ruang tambahan di sisi-sisi.
Segitiga Sama Kaki Desain rumah dengan ruang utama di bagian yang lebih lebar, sementara ruang tambahan di bagian yang lebih sempit.
Segitiga Sembarang Desain rumah yang fleksibel dengan penyesuaian tata letak berdasarkan bentuk tanah yang spesifik.

Contoh Ilustrasi Rumah di Tanah Segitiga

Berikut ini beberapa contoh ilustrasi rumah di tanah segitiga yang menunjukkan solusi untuk mengatasi sudut-sudut tajam:

  • Rumah dengan Sudut Tajam di Sisi Depan: Sudut tajam di sisi depan dapat diatasi dengan membuat teras yang sedikit menjorok keluar, sehingga menciptakan ruang transisi yang nyaman dan meminimalisir kesan sempit. Teras dapat dilengkapi dengan tanaman hijau untuk menambah estetika dan nuansa segar.
  • Rumah dengan Sudut Tajam di Sisi Belakang: Sudut tajam di sisi belakang dapat diatasi dengan membuat taman kecil yang dihiasi dengan tanaman hias dan batu-batu alam. Taman ini dapat berfungsi sebagai ruang relaksasi yang menenangkan dan sekaligus menyamarkan sudut tajam.
  • Rumah dengan Sudut Tajam di Sisi Samping: Sudut tajam di sisi samping dapat diatasi dengan membuat jendela kaca besar yang menghadap ke arah taman. Jendela kaca ini dapat memberikan pencahayaan alami yang maksimal dan menciptakan ilusi ruangan yang lebih luas.

Konsep Desain Rumah Tanah Segitiga

Desain rumah tanah segitiga

Membangun rumah di tanah segitiga memang unik dan menantang. Bentuk yang tidak biasa ini membutuhkan pendekatan desain yang kreatif untuk memaksimalkan potensi ruang dan menciptakan hunian yang nyaman dan estetis. Ada beberapa konsep desain yang bisa diterapkan untuk mengatasi tantangan ini.

Konsep Desain Rumah Tanah Segitiga

Konsep desain rumah di tanah segitiga dapat dikategorikan menjadi tiga pendekatan utama, yaitu desain dengan memanfaatkan sudut, desain dengan memaksimalkan ruang terbuka, dan desain dengan menciptakan ruang multifungsi.

Desain dengan Memanfaatkan Sudut

Konsep ini fokus pada pemanfaatan sudut-sudut segitiga untuk menciptakan ruang-ruang yang unik dan menarik. Misalnya, sudut-sudut dapat diubah menjadi area penyimpanan, ruang kerja, atau bahkan taman vertikal. Hal ini tidak hanya memaksimalkan penggunaan ruang, tetapi juga menciptakan karakteristik arsitektur yang khas.

Desain dengan Memaksimalkan Ruang Terbuka

Pendekatan ini mengutamakan penciptaan ruang terbuka yang luas di tengah rumah. Dengan memanfaatkan bentuk segitiga, area terbuka dapat menjadi pusat aktivitas keluarga dan memberikan nuansa lapang. Ruang terbuka ini dapat dihubungkan dengan taman, teras, atau area outdoor lainnya untuk menciptakan kesatuan yang harmonis.

Desain dengan Menciptakan Ruang Multifungsi

Konsep ini menekankan pada fleksibilitas ruang. Ruangan-ruangan dirancang untuk memiliki fungsi ganda, sehingga dapat beradaptasi dengan kebutuhan yang berubah. Misalnya, ruang tamu dapat diubah menjadi ruang tidur tamu atau ruang makan dapat diubah menjadi ruang kerja.

Desain rumah tanah segitiga memang unik dan menantang. Namun, dengan sedikit kreativitas, kamu bisa memaksimalkan lahan terbatas ini. Jika kamu ingin konsep minimalis, bisa dipadukan dengan desain rumah minimalis 3 kamar ukuran 7×10 seperti yang bisa kamu temukan di https://hunianmoderen.biz.id/desain-rumah-minimalis-3-kamar-ukuran-7×10/. Dengan memaksimalkan ruang vertikal dan pencahayaan alami, rumah segitiga pun bisa nyaman dan fungsional.

Perbandingan Konsep Desain

Berikut adalah tabel perbandingan ketiga konsep desain rumah di tanah segitiga, mempertimbangkan aspek fungsionalitas, estetika, dan efisiensi ruang:

Konsep Fungsionalitas Estetika Efisiensi Ruang
Desain dengan Memanfaatkan Sudut Maksimalkan penggunaan ruang dengan menciptakan ruang-ruang unik di sudut Menciptakan karakteristik arsitektur yang khas Tinggi, karena memaksimalkan penggunaan ruang terbuang
Desain dengan Memaksimalkan Ruang Terbuka Menciptakan ruang terbuka yang luas untuk aktivitas keluarga Memberikan nuansa lapang dan harmonis Tinggi, karena memaksimalkan penggunaan ruang terbuka
Desain dengan Menciptakan Ruang Multifungsi Menciptakan ruang yang fleksibel dan dapat beradaptasi dengan kebutuhan yang berubah Mampu menciptakan suasana yang dinamis dan modern Sedang, karena mengandalkan fleksibilitas ruang

Contoh Ilustrasi Konsep Desain

Untuk lebih memahami penerapan konsep desain ini, berikut adalah contoh ilustrasi untuk setiap konsep:

Desain dengan Memanfaatkan Sudut

Contoh ilustrasi: Rumah dengan desain sudut yang tajam di salah satu sisi, dengan taman vertikal yang menghiasi sudut tersebut. Ruang di bawah tangga yang mengarah ke lantai dua diubah menjadi area penyimpanan yang efisien. Sudut ruang tamu dibentuk menjadi area membaca yang nyaman dengan pencahayaan yang lembut.

Desain dengan Memaksimalkan Ruang Terbuka

Contoh ilustrasi: Rumah dengan bentuk segitiga terbalik, dengan ruang terbuka di tengah yang berfungsi sebagai area makan dan ruang keluarga. Area terbuka ini dihubungkan dengan taman yang rimbun dan teras yang luas. Dinding kaca besar di sekeliling area terbuka memungkinkan cahaya alami masuk dan menciptakan suasana yang lapang.

Desain rumah tanah segitiga memang unik dan menantang. Meskipun bentuknya tidak lazim, kamu bisa tetap mendapatkan hunian yang nyaman dan estetis. Jika lahanmu terbatas, mungkin kamu bisa terinspirasi dari desain rumah 6×12 tanpa garasi. Desain rumah 6×12 tanpa garasi bisa menjadi solusi yang praktis dan efisien. Konsepnya dapat diterapkan dengan penyesuaian pada desain rumah tanah segitiga, dengan memaksimalkan ruang dan pencahayaan alami.

Desain dengan Menciptakan Ruang Multifungsi

Contoh ilustrasi: Rumah dengan ruang tamu yang dapat diubah menjadi ruang tidur tamu dengan menggunakan sofa bed. Ruang makan dapat diubah menjadi ruang kerja dengan menambahkan meja kerja dan kursi. Dinding geser di antara ruangan memungkinkan fleksibilitas dalam mengatur ruang sesuai kebutuhan.

Penataan Ruang Rumah Tanah Segitiga

Triangle triangular architects oddly contemporist robeson dion

Membangun rumah di tanah segitiga memang unik dan menantang. Namun, dengan strategi penataan ruang yang tepat, Anda bisa memaksimalkan setiap sudut dan menciptakan hunian yang nyaman dan fungsional. Berikut adalah tiga strategi penataan ruang yang efektif untuk rumah tanah segitiga.

Strategi Penataan Ruang, Desain rumah tanah segitiga

Trik utama dalam menata ruang di rumah tanah segitiga adalah memaksimalkan area yang tersedia dengan memanfaatkan sudut-sudut dan bentuk segitiga itu sendiri. Berikut adalah tiga strategi yang bisa Anda terapkan:

  • Membuat Zona Fungsional: Bagi ruang menjadi zona-zona yang berbeda berdasarkan fungsinya. Misalnya, Anda bisa membuat zona ruang tamu, zona ruang makan, zona dapur, dan zona kamar tidur. Dengan pembagian zona yang jelas, rumah terasa lebih teratur dan efisien.
  • Menggunakan Sudut-Sudut: Jangan biarkan sudut-sudut segitiga terbuang sia-sia. Manfaatkan sudut-sudut tersebut sebagai area fungsional, seperti tempat penyimpanan, area kerja, atau bahkan taman vertikal.
  • Menciptakan Aliran Sirkulasi yang Lancar: Perhatikan aliran sirkulasi di dalam rumah. Pastikan jalur sirkulasi mudah diakses dan tidak terhalang oleh furniture.

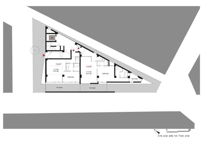
Contoh Denah Rumah Tanah Segitiga

Bayangkan sebuah rumah tanah segitiga dengan sisi terpanjang menghadap ke jalan. Di bagian depan, bisa dibangun ruang tamu yang luas dengan jendela besar untuk memaksimalkan pencahayaan alami. Di samping ruang tamu, Anda bisa menempatkan ruang makan dan dapur yang terhubung. Sudut segitiga yang ada di belakang rumah bisa difungsikan sebagai ruang keluarga atau kamar tidur. Area sirkulasi utama bisa dibuat di tengah rumah, menghubungkan semua ruangan.

Memanfaatkan Sudut-Sudut Segitiga

Sudut-sudut segitiga bisa menjadi aset yang berharga. Berikut beberapa contoh cara memanfaatkannya:

  • Tempat Penyimpanan: Sudut-sudut segitiga bisa diubah menjadi rak dinding atau lemari built-in untuk menyimpan barang-barang.
  • Area Kerja: Jika Anda membutuhkan ruang kerja tambahan, sudut segitiga bisa menjadi solusi yang tepat. Anda bisa membuat meja kerja yang pas dengan bentuk sudut segitiga.
  • Taman Vertikal: Sudut-sudut segitiga bisa dihiasi dengan taman vertikal yang menyegarkan. Tanaman hijau akan memberikan suasana yang lebih alami dan asri.

Elemen Desain Rumah Tanah Segitiga

Desain rumah tanah segitiga

Membangun rumah di tanah segitiga memang menantang, namun dengan strategi desain yang tepat, Anda dapat menciptakan hunian yang estetis dan fungsional. Ada beberapa elemen desain yang dapat Anda terapkan untuk memaksimalkan potensi ruang di tanah segitiga, menciptakan aliran sirkulasi yang efisien, dan menghadirkan karakter unik pada rumah Anda.

Membangun rumah di tanah segitiga memang menantang, tapi justru bisa menghasilkan desain unik dan menarik. Salah satu inspirasi yang bisa kamu pertimbangkan adalah desain rumah jawa dengan konsep joglo atau limasan. Rumah Jawa punya ciri khas atap tinggi dan banyak ventilasi, cocok untuk memaksimalkan ruang di tanah segitiga. Dengan sedikit modifikasi, kamu bisa mendapatkan hunian yang nyaman dan tradisional dengan sentuhan modern.

Memanfaatkan Bentuk Segitiga

Bentuk segitiga yang unik dapat menjadi aset desain yang menarik. Dengan memanfaatkan bentuk ini, Anda dapat menciptakan ruang-ruang yang dinamis dan tidak konvensional.

  • Atap miring: Atap miring dengan sudut tajam dapat menciptakan kesan modern dan futuristik. Atap ini juga dapat membantu mengalirkan air hujan secara efisien.
  • Jendela segitiga: Jendela segitiga dapat menambahkan elemen dekoratif yang menarik dan memberikan pencahayaan alami yang unik.
  • Rak segitiga: Rak segitiga dapat digunakan untuk menyimpan barang-barang di sudut ruangan, memaksimalkan ruang yang terbuang.

Membuat Ruang Terbuka

Meskipun bentuk tanah segitiga mungkin tampak terbatas, Anda masih dapat menciptakan ruang terbuka yang nyaman dan fungsional.

  • Teras segitiga: Teras segitiga dapat menjadi area relaksasi yang unik dan intim, dengan sudut pandang yang menarik.
  • Taman segitiga: Taman segitiga dapat dibentuk dengan berbagai jenis tanaman dan bunga, menciptakan suasana yang segar dan asri.
  • Kolam renang segitiga: Kolam renang segitiga dapat menjadi pusat perhatian di halaman, memberikan sentuhan modern dan elegan.

Mengoptimalkan Pencahayaan dan Ventilasi

Pencahayaan dan ventilasi yang baik sangat penting untuk menciptakan suasana yang nyaman dan sehat di dalam rumah. Dengan memperhatikan bentuk tanah segitiga, Anda dapat mengoptimalkan pencahayaan dan ventilasi secara maksimal.

Elemen Desain Material Warna Pencahayaan
Atap miring Kaca Transparan Pencahayaan alami yang maksimal
Jendela segitiga Kaca bening Putih Pencahayaan alami yang terarah
Teras segitiga Kayu Warna netral Pencahayaan lampu taman
Taman segitiga Tanah Hijau Pencahayaan lampu taman

Sebagai contoh, Anda dapat menggunakan atap kaca untuk memaksimalkan pencahayaan alami di ruang tamu. Jendela segitiga di sisi lain rumah dapat memberikan pencahayaan terarah ke area dapur. Dengan perencanaan yang matang, Anda dapat menciptakan rumah yang terang, berventilasi baik, dan nyaman dihuni.

Contoh Desain Rumah Tanah Segitiga

Desain rumah tanah segitiga

Memiliki tanah berbentuk segitiga mungkin terdengar menantang, namun dengan pendekatan desain yang tepat, bisa menjadi kesempatan untuk menciptakan rumah yang unik dan menarik. Berikut ini tiga contoh desain rumah di tanah segitiga yang bisa menjadi inspirasi:

Contoh 1: Rumah dengan Bentuk Segitiga Terbalik

Konsep desain ini memanfaatkan bentuk segitiga tanah dengan membangun rumah yang memiliki bentuk segitiga terbalik. Dinding-dinding rumah mengikuti garis miring tanah, menciptakan ruang-ruang yang unik dan dinamis. Ruang utama seperti ruang tamu dan ruang makan terletak di bagian dasar segitiga, sementara kamar tidur berada di bagian atas, memberikan privasi dan pemandangan yang lebih luas.

  • Penataan Ruang: Ruang utama seperti ruang tamu dan ruang makan ditempatkan di bagian dasar segitiga, sementara kamar tidur berada di bagian atas, memberikan privasi dan pemandangan yang lebih luas.
  • Elemen Desain: Jendela besar di bagian atas rumah memungkinkan pencahayaan alami maksimal dan menghadirkan pemandangan yang indah. Atap miring dengan sudut yang berbeda menambah karakter unik pada rumah.
  • Material: Penggunaan material kayu dan kaca memberikan kesan minimalis dan modern. Kayu digunakan untuk dinding dan atap, sementara kaca digunakan untuk jendela dan pintu, menciptakan efek ruang yang lebih luas dan terang.

Contoh 2: Rumah dengan Bentuk Segitiga Terpotong

Contoh ini menerapkan konsep desain dengan memotong salah satu sudut segitiga tanah, sehingga menciptakan ruang tambahan di bagian depan rumah. Bagian yang terpotong dapat dimanfaatkan sebagai taman atau teras, sementara bagian utama rumah tetap memiliki bentuk segitiga.

  • Penataan Ruang: Ruang tamu dan ruang makan terletak di bagian depan rumah, sementara kamar tidur berada di bagian belakang, memberikan privasi dan ketenangan.
  • Elemen Desain: Penggunaan taman di bagian depan rumah memberikan suasana yang lebih asri dan natural. Dinding rumah dibuat dengan material batu alam, menciptakan kesan klasik dan elegan.
  • Material: Batu alam digunakan untuk dinding, memberikan kesan klasik dan elegan. Kayu digunakan untuk atap dan lantai, memberikan kesan hangat dan natural.

Contoh 3: Rumah dengan Bentuk Segitiga yang Diperluas

Konsep ini melibatkan perluasan bentuk segitiga tanah dengan menambahkan ruang tambahan di salah satu sisi. Ruang tambahan ini dapat digunakan sebagai garasi, ruang kerja, atau ruang tamu tambahan. Dengan cara ini, bentuk segitiga tanah menjadi lebih luas dan fungsional.

  • Penataan Ruang: Ruang utama seperti ruang tamu dan ruang makan terletak di bagian tengah rumah, sementara kamar tidur berada di bagian belakang, memberikan privasi dan ketenangan.
  • Elemen Desain: Penggunaan balkon di bagian depan rumah memberikan ruang tambahan untuk bersantai dan menikmati pemandangan. Atap miring dengan sudut yang berbeda menambah karakter unik pada rumah.
  • Material: Beton digunakan untuk dinding, memberikan kesan modern dan kuat. Kaca digunakan untuk jendela dan pintu, menciptakan efek ruang yang lebih luas dan terang.

Perbandingan Keunggulan dan Kekurangan Desain

Contoh Desain Keunggulan Kekurangan
Rumah dengan Bentuk Segitiga Terbalik Memanfaatkan bentuk tanah secara optimal, menciptakan ruang yang unik dan dinamis. Membutuhkan struktur yang kuat dan biaya konstruksi yang lebih tinggi.
Rumah dengan Bentuk Segitiga Terpotong Memperluas ruang di bagian depan rumah, menciptakan taman atau teras yang menarik. Membutuhkan desain yang cermat untuk menjaga keseimbangan bentuk dan fungsi rumah.
Rumah dengan Bentuk Segitiga yang Diperluas Menambahkan ruang tambahan yang fungsional, meningkatkan luas bangunan dan utilitas rumah. Membutuhkan lahan tambahan untuk perluasan dan biaya konstruksi yang lebih tinggi.

Membangun rumah di tanah segitiga adalah sebuah tantangan yang menarik. Dengan kreativitas dan perencanaan yang tepat, Anda bisa menciptakan rumah yang tidak hanya nyaman dan fungsional, tetapi juga menjadi bukti bahwa keterbatasan bentuk bisa diubah menjadi sebuah keunikan. Jangan takut untuk bereksperimen dan menciptakan rumah yang mencerminkan kepribadian dan gaya hidup Anda.

Informasi Penting & FAQ

Apakah rumah di tanah segitiga lebih mahal untuk dibangun?

Tidak selalu. Biaya konstruksi dipengaruhi oleh berbagai faktor, termasuk luas bangunan, material yang digunakan, dan kompleksitas desain. Tantangan desain di tanah segitiga mungkin memerlukan solusi khusus, yang bisa berdampak pada biaya, namun dengan perencanaan yang baik, biaya bisa dikontrol.

Bagaimana cara mendapatkan inspirasi desain rumah tanah segitiga?

Anda bisa mencari inspirasi dari berbagai sumber, seperti majalah desain, situs web arsitektur, dan media sosial. Perhatikan contoh desain rumah yang memanfaatkan bentuk segitiga secara kreatif dan sesuai dengan kebutuhan Anda.

Apakah semua bentuk segitiga tanah cocok untuk dibangun rumah?

Tidak semua bentuk segitiga tanah ideal untuk dibangun rumah. Bentuk segitiga yang terlalu lancip atau memiliki sudut yang terlalu tajam mungkin sulit untuk dimaksimalkan. Konsultasikan dengan arsitek untuk menentukan apakah bentuk tanah Anda sesuai untuk membangun rumah.

Leave a Comment

Your email address will not be published. Required fields are marked *

Scroll to Top