Rumah petak, dengan ukurannya yang terbatas, seringkali dianggap sebagai tantangan dalam mewujudkan hunian yang nyaman dan fungsional. Namun, jangan salah! Desain rumah petak bisa menjadi solusi cerdas untuk membangun hunian minimalis yang penuh gaya dan efisien. Dengan perencanaan yang tepat, rumah petak dapat diubah menjadi oasis pribadi yang modern dan penuh karakter.
Artikel ini akan membahas berbagai aspek desain rumah petak, mulai dari konsep dasar hingga inspirasi desain yang kreatif. Kita akan menjelajahi cara memaksimalkan ruang, memilih material yang tepat, dan menciptakan interior yang menawan. Siap untuk membangun rumah petak impian Anda? Mari kita mulai!
Konsep Rumah Petak

Rumah petak, dengan desainnya yang khas dan efisien, telah menjadi pilihan populer di tengah keterbatasan lahan di perkotaan. Rumah ini dikenal dengan bentuknya yang memanjang dan sempit, dengan ruangan-ruangan yang tersusun secara berderet.
Desain rumah petak memang identik dengan keterbatasan ruang, tapi jangan salah, kamu bisa tetap punya hunian nyaman dan fungsional. Salah satu solusinya adalah dengan menerapkan desain rumah ukuran 5×10. Kamu bisa menemukan berbagai inspirasi desain rumah ukuran 5×10 yang menarik di situs ini. Dengan penataan yang tepat, rumah petak ukuran 5×10 bisa menjadi hunian yang minimalis dan modern, sesuai dengan kebutuhan dan gaya hidupmu.
Pengertian Rumah Petak
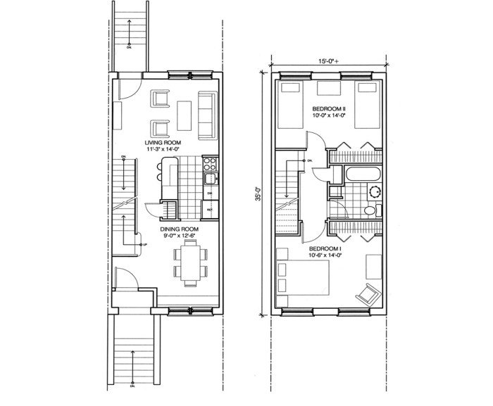
Rumah petak adalah jenis rumah tinggal yang umumnya memiliki bentuk memanjang dan sempit, dengan beberapa ruangan yang tersusun secara berderet dan saling terhubung. Rumah ini biasanya memiliki halaman depan dan belakang yang terbatas, sering kali hanya berupa teras kecil di depan dan halaman belakang yang sempit. Rumah petak umumnya dibangun dengan struktur sederhana dan material yang ekonomis.
Contoh Desain Rumah Petak
Ada banyak model desain rumah petak yang populer, masing-masing dengan karakteristik dan daya tariknya sendiri. Berikut beberapa contohnya:
- Desain Minimalis Modern: Desain ini mengutamakan kesederhanaan dan fungsionalitas, dengan garis-garis bersih dan penggunaan material modern seperti kaca dan beton. Sering kali dilengkapi dengan taman vertikal untuk menambah kesan hijau dan segar.
- Desain Klasik: Desain ini menghadirkan nuansa tradisional dengan penggunaan material kayu dan batu bata, serta aksen-aksen klasik seperti jendela berdaun dan pintu kayu ukir. Desain ini cocok untuk Anda yang menyukai nuansa hangat dan elegan.
- Desain Tropis: Desain ini memanfaatkan elemen alam seperti kayu dan batu alam, serta jendela dan ventilasi yang luas untuk menciptakan sirkulasi udara yang baik. Desain ini cocok untuk iklim tropis yang panas dan lembap.
Kelebihan dan Kekurangan Desain Rumah Petak
Seperti halnya jenis rumah lainnya, desain rumah petak juga memiliki kelebihan dan kekurangan yang perlu dipertimbangkan sebelum memutuskan untuk membangunnya. Berikut beberapa poin yang perlu diperhatikan:
Kelebihan
- Efisiensi Lahan: Rumah petak sangat efisien dalam penggunaan lahan, cocok untuk lahan yang sempit dan terbatas, terutama di daerah perkotaan.
- Biaya Pembangunan yang Relatif Terjangkau: Karena desainnya yang sederhana dan material yang ekonomis, biaya pembangunan rumah petak umumnya lebih terjangkau dibandingkan dengan jenis rumah lainnya.
- Mudah Dirawat: Luas bangunan yang relatif kecil membuat proses perawatan rumah petak menjadi lebih mudah dan cepat.
Kekurangan
- Ruang yang Terbatas: Ruangan di rumah petak cenderung lebih sempit dan terbatas dibandingkan dengan jenis rumah lainnya. Ini bisa menjadi kendala jika Anda memiliki keluarga besar atau banyak barang.
- Kurang Privasi: Karena letaknya yang berdekatan, rumah petak cenderung kurang privasi dibandingkan dengan jenis rumah lainnya. Suara dan aktivitas di rumah tetangga bisa terdengar dengan mudah.
- Sirkulaasi Udara yang Terbatas: Desain rumah petak yang memanjang dan sempit bisa menyebabkan sirkulasi udara yang kurang optimal, terutama jika tidak dirancang dengan baik.
Perbandingan Rumah Petak dengan Jenis Rumah Lainnya
Berikut adalah tabel perbandingan rumah petak dengan jenis rumah lainnya:
| Karakteristik | Rumah Petak | Rumah Minimalis | Rumah Mewah |
|---|---|---|---|
| Bentuk | Memanjang dan sempit | Modern, dengan garis-garis bersih | Luas dan megah |
| Luas Bangunan | Relatif kecil | Relatif kecil hingga sedang | Sangat luas |
| Biaya Pembangunan | Relatif terjangkau | Terjangkau hingga mahal | Sangat mahal |
| Privasi | Kurang | Sedang | Sangat tinggi |
| Sirkulasi Udara | Terbatas | Baik | Sangat baik |
Desain Eksterior Rumah Petak

Rumah petak dengan desain eksterior yang menarik dapat menjadi aset berharga, mencerminkan kepribadian penghuninya dan memberikan kesan yang positif. Desain eksterior yang baik tidak hanya mempercantik tampilan rumah, tetapi juga dapat meningkatkan nilai jualnya. Berikut beberapa tips dan contoh desain eksterior rumah petak yang dapat menginspirasi Anda.
Konsep Desain Eksterior Minimalis Modern
Konsep minimalis modern pada desain eksterior rumah petak menekankan pada kesederhanaan dan fungsionalitas. Desain ini biasanya menggunakan garis-garis tegas, bentuk geometris, dan palet warna netral seperti putih, abu-abu, dan hitam. Elemen-elemen natural seperti kayu dan batu alam dapat ditambahkan untuk memberikan sentuhan hangat dan elegan.
Contoh Desain Fasad Rumah Petak
Fasad rumah petak merupakan bagian depan rumah yang pertama kali terlihat. Berikut beberapa contoh desain fasad yang menarik dan fungsional:
- Fasad dengan Balkon Minimalis: Balkon kecil yang dilengkapi dengan railing minimalis dapat menambah estetika dan fungsionalitas rumah. Balkon ini dapat digunakan sebagai area santai atau tempat menanam tanaman.
- Fasad dengan Jendela Besar: Jendela besar dapat memberikan pencahayaan alami yang maksimal ke dalam rumah dan menciptakan kesan luas. Desain jendela yang unik, seperti jendela kaca patri atau jendela dengan bingkai kayu, dapat menambah nilai estetika.
- Fasad dengan Pintu Masuk yang Menarik: Pintu masuk rumah merupakan titik fokus utama fasad. Pintu dengan desain minimalis yang modern, seperti pintu kayu dengan panel kaca atau pintu besi dengan aksen kayu, dapat memberikan kesan elegan dan hangat.
Pilihan Material untuk Eksterior Rumah Petak
Pemilihan material untuk eksterior rumah petak sangat penting karena akan memengaruhi tampilan, daya tahan, dan biaya perawatan. Berikut beberapa pilihan material yang cocok:
- Cat: Cat merupakan material yang paling umum digunakan untuk eksterior rumah. Cat dapat memberikan warna dan tekstur yang beragam, sehingga Anda dapat memilih sesuai dengan selera. Pilih cat berkualitas tinggi yang tahan lama dan tahan terhadap cuaca.
- Batu Alam: Batu alam seperti batu bata, batu kali, dan batu andesit dapat memberikan kesan natural dan elegan. Batu alam memiliki daya tahan yang tinggi dan tahan terhadap cuaca, sehingga cocok untuk eksterior rumah.
- Kayu: Kayu merupakan material yang hangat dan natural. Kayu dapat digunakan untuk membuat panel dinding, pagar, atau pintu. Pilih jenis kayu yang tahan terhadap rayap dan jamur.
- Aluminium: Aluminium merupakan material yang ringan, tahan lama, dan tahan terhadap korosi. Aluminium dapat digunakan untuk membuat panel dinding, railing balkon, atau jendela.
Konsep Ruang Terbuka
Konsep ruang terbuka pada desain eksterior rumah petak bertujuan untuk menciptakan suasana yang lapang dan nyaman. Ruang terbuka dapat dibentuk dengan memanfaatkan halaman depan atau belakang rumah. Berikut beberapa contoh:
- Taman Vertikal: Taman vertikal dapat dibuat di dinding rumah atau pagar. Taman vertikal dapat menambah keindahan dan kesegaran pada eksterior rumah. Anda dapat menanam berbagai jenis tanaman, seperti tanaman hias, tanaman obat, atau tanaman buah.
- Teras Minimalis: Teras minimalis dapat dibentuk dengan menggunakan material seperti kayu atau batu alam. Teras dapat digunakan sebagai area santai, tempat makan, atau tempat menjemur pakaian.
- Kolam Renang Mini: Kolam renang mini dapat menambah nilai estetika dan fungsionalitas pada eksterior rumah. Kolam renang mini dapat digunakan untuk bersantai dan berolahraga.
Desain Interior Rumah Petak

Rumah petak, dengan luasnya yang terbatas, menawarkan tantangan tersendiri dalam desain interior. Namun, dengan pendekatan yang tepat, rumah petak bisa diubah menjadi hunian yang nyaman, fungsional, dan estetis. Berikut adalah beberapa tips desain interior yang dapat Anda terapkan untuk memaksimalkan ruang dan menciptakan suasana yang menyenangkan di rumah petak.
Menciptakan Kesan Lapang
Untuk membuat rumah petak terasa lapang, gunakan warna-warna terang dan netral pada dinding, seperti putih, krem, atau abu-abu muda. Warna-warna ini memantulkan cahaya dan membuat ruangan tampak lebih luas. Hindari penggunaan warna gelap yang dapat membuat ruangan terasa sempit dan sumpek.
Desain rumah petak seringkali terbatas pada area yang sempit. Namun, dengan sedikit kreativitas, kamu bisa memaksimalkan ruang tersebut. Sebagai inspirasi, kamu bisa melihat desain rumah minimalis 2 lantai type 36 72 yang memanfaatkan ruang vertikal dengan efektif. Meskipun lebih luas, konsep minimalisnya bisa diterapkan pada rumah petak untuk menciptakan kesan lega dan modern.
- Gunakan cermin untuk menciptakan ilusi ruang yang lebih besar. Cermin memantulkan cahaya dan membuat ruangan tampak lebih luas.
- Manfaatkan jendela untuk menghadirkan cahaya alami. Cahaya alami dapat membuat ruangan terasa lebih luas dan segar. Jika jendela terbatas, gunakan pencahayaan buatan yang terang untuk mengimbanginya.
- Minimalkan penggunaan furnitur. Pilih furnitur yang multifungsi dan memiliki desain minimalis untuk memaksimalkan ruang.
Tata Letak Furnitur yang Optimal
Tata letak furnitur yang tepat sangat penting dalam desain interior rumah petak. Hindari meletakkan furnitur terlalu berdekatan, karena dapat membuat ruangan terasa sesak. Berikut beberapa tips untuk menata furnitur:
- Gunakan furnitur yang memiliki kaki tinggi untuk menciptakan kesan ruang yang lebih lapang.
- Manfaatkan ruang vertikal dengan menggunakan rak dinding atau lemari gantung untuk menyimpan barang-barang.
- Jika memungkinkan, letakkan sofa atau tempat tidur di dekat jendela untuk memanfaatkan cahaya alami.
Pentingnya Pencahayaan dan Ventilasi
Pencahayaan dan ventilasi yang baik sangat penting dalam desain interior rumah petak. Pencahayaan yang cukup dapat membuat ruangan terasa lebih nyaman dan estetis. Ventilasi yang baik membantu sirkulasi udara dan menjaga kelembapan ruangan agar tetap terjaga.
- Gunakan pencahayaan buatan yang terang dan efisien, seperti lampu LED, untuk menerangi ruangan.
- Manfaatkan jendela untuk menghadirkan cahaya alami dan ventilasi. Jika jendela terbatas, gunakan kipas angin atau exhaust fan untuk membantu sirkulasi udara.
- Pastikan ventilasi di kamar mandi dan dapur berfungsi dengan baik untuk mencegah kelembapan dan bau.
Contoh Desain Interior Rumah Petak dengan Pencahayaan Alami Maksimal, Desain rumah petak
“Rumah petak dengan jendela besar di bagian depan dan belakang dapat memanfaatkan cahaya alami secara maksimal. Dengan penataan furnitur yang tepat, cahaya alami dapat menerangi seluruh ruangan. Misalnya, letakkan sofa di dekat jendela depan dan meja makan di dekat jendela belakang. Dengan demikian, cahaya alami dapat masuk ke semua sudut ruangan.”
Membangun Rumah Petak

Membangun rumah petak dapat menjadi solusi cerdas bagi Anda yang ingin memiliki hunian sendiri dengan biaya yang lebih terjangkau. Rumah petak memiliki desain yang simpel dan efisien, sehingga proses pembangunannya pun dapat dilakukan dengan lebih mudah dan cepat. Artikel ini akan membahas langkah-langkah membangun rumah petak yang efisien dan hemat biaya, serta faktor-faktor penting yang perlu Anda pertimbangkan.
Langkah-langkah Membangun Rumah Petak
Membangun rumah petak membutuhkan perencanaan yang matang dan terstruktur. Berikut adalah langkah-langkah yang dapat Anda ikuti:
- Tentukan Kebutuhan dan Desain: Tentukan jumlah ruangan yang Anda butuhkan, ukuran rumah, dan gaya desain yang diinginkan. Anda bisa berkonsultasi dengan arsitek untuk mendapatkan desain yang optimal dan sesuai dengan kebutuhan Anda.
- Pilih Lokasi yang Strategis: Lokasi yang strategis akan memudahkan akses ke fasilitas umum dan transportasi. Pertimbangkan juga faktor keamanan dan lingkungan sekitar.
- Siapkan Perizinan: Pastikan Anda mengurus perizinan pembangunan rumah dari pihak berwenang. Hal ini penting untuk memastikan legalitas bangunan Anda.
- Cari Kontraktor yang Terpercaya: Kontraktor yang berpengalaman dan terpercaya akan membantu Anda dalam membangun rumah dengan kualitas yang baik dan sesuai dengan rencana.
- Awasi Proses Pembangunan: Pantau secara berkala proses pembangunan untuk memastikan bahwa pekerjaan dilakukan sesuai dengan rencana dan standar kualitas yang telah ditetapkan.
Estimasi Biaya Pembangunan Rumah Petak
Biaya pembangunan rumah petak dapat bervariasi tergantung pada beberapa faktor, seperti lokasi, bahan bangunan, dan desain rumah. Berikut adalah estimasi biaya pembangunan rumah petak dengan luas bangunan sekitar 60 meter persegi:
| Item | Estimasi Biaya |
|---|---|
| Pembersihan Lahan | Rp 5.000.000 |
| Pondasi | Rp 20.000.000 |
| Struktur Bangunan | Rp 30.000.000 |
| Atap | Rp 15.000.000 |
| Dinding dan Plafon | Rp 25.000.000 |
| Lantai | Rp 10.000.000 |
| Instalasi Listrik dan Air | Rp 10.000.000 |
| Finishing (Pintu, Jendela, Cat, dll) | Rp 20.000.000 |
| Total Estimasi Biaya | Rp 135.000.000 |
Perlu diingat bahwa estimasi biaya ini hanya sebagai gambaran umum. Biaya aktual dapat bervariasi tergantung pada faktor-faktor yang disebutkan di atas.
Pentingnya Perencanaan dan Konsultasi Arsitek
Perencanaan yang matang dan konsultasi dengan arsitek sangat penting dalam membangun rumah petak. Arsitek dapat membantu Anda dalam:
- Merancang desain rumah yang optimal dan sesuai dengan kebutuhan Anda.
- Memilih bahan bangunan yang tepat dan berkualitas.
- Merencanakan tata letak ruangan yang efisien dan fungsional.
- Membuat estimasi biaya pembangunan yang akurat.
Dengan bantuan arsitek, Anda dapat meminimalisir risiko kesalahan dalam membangun rumah dan memastikan bahwa rumah yang dibangun sesuai dengan harapan Anda.
Desain rumah petak seringkali terbatas pada ruang yang sempit. Namun, dengan strategi yang tepat, rumah petak tetap bisa tampil menarik dan fungsional. Nah, kalau kamu ingin inspirasi untuk memaksimalkan ruang, kamu bisa intip desain rumah 60 meter yang banyak diulas di internet. Konsep rumah 60 meter ini bisa diterapkan untuk memaksimalkan ruang di rumah petak, misalnya dengan menggunakan furnitur multifungsi dan pencahayaan yang tepat.
Faktor-faktor yang Perlu Dipertimbangkan dalam Memilih Lokasi
Lokasi yang strategis akan memberikan banyak keuntungan bagi penghuni rumah petak. Berikut adalah faktor-faktor yang perlu dipertimbangkan dalam memilih lokasi pembangunan:
- Aksesibilitas: Pastikan lokasi mudah dijangkau dengan kendaraan pribadi dan transportasi umum.
- Fasilitas Umum: Pertimbangkan jarak ke sekolah, rumah sakit, pasar, dan fasilitas umum lainnya.
- Keamanan: Pilih lokasi yang aman dan bebas dari kejahatan.
- Lingkungan: Perhatikan kondisi lingkungan sekitar, seperti polusi udara dan kebisingan.
- Harga Tanah: Sesuaikan harga tanah dengan budget yang Anda miliki.
Inspirasi Desain Rumah Petak

Rumah petak, dengan lahan yang terbatas, seringkali menjadi tantangan dalam mewujudkan hunian yang nyaman dan estetis. Namun, jangan khawatir! Dengan kreativitas dan perencanaan yang tepat, rumah petak dapat disulap menjadi tempat tinggal yang fungsional, menarik, dan mencerminkan kepribadian penghuninya. Berikut beberapa inspirasi desain rumah petak yang bisa Anda pertimbangkan:
Desain Rumah Petak Unik dan Kreatif
Rumah petak tak melulu harus identik dengan bentuk kotak yang monoton. Dengan sentuhan desain yang unik, rumah petak bisa tampil menawan dan berbeda. Misalnya, Anda bisa:
- Memanfaatkan atap miring untuk menciptakan ruang tambahan, seperti ruang tidur atau ruang kerja.
- Menambahkan jendela kaca besar di bagian depan untuk menghadirkan kesan lapang dan memaksimalkan pencahayaan alami.
- Memilih warna cat eksterior yang cerah dan kontras untuk memberikan kesan ceria dan menarik perhatian.
- Memasukkan elemen dekoratif seperti batu alam, kayu, atau tanaman hijau untuk menciptakan kesan natural dan estetis.
Desain Rumah Petak Ramah Lingkungan
Konsep ramah lingkungan dapat diterapkan pada desain rumah petak, menciptakan hunian yang sehat dan berkelanjutan. Beberapa inspirasi desain rumah petak ramah lingkungan:
- Memanfaatkan sistem pencahayaan alami dengan jendela besar dan skylight untuk mengurangi penggunaan listrik.
- Menerapkan sistem ventilasi alami yang baik untuk sirkulasi udara segar dan mengurangi penggunaan AC.
- Menggunakan material bangunan yang ramah lingkungan, seperti bambu, kayu daur ulang, atau batu bata tanah liat.
- Menanam tanaman hijau di sekitar rumah untuk menyerap polusi udara dan meningkatkan kualitas udara.
Memanfaatkan Lahan Terbatas Secara Maksimal
Kunci utama dalam mendesain rumah petak adalah memaksimalkan penggunaan lahan yang terbatas. Berikut beberapa tips:
- Menerapkan konsep multifungsi pada ruangan. Misalnya, ruang tamu bisa berfungsi sebagai ruang makan, atau kamar tidur bisa dikombinasikan dengan ruang kerja.
- Memanfaatkan ruang vertikal dengan membangun rak dinding, mezzanine, atau tangga yang multifungsi.
- Menggunakan furniture yang multifungsi dan hemat tempat, seperti sofa bed atau meja lipat.
- Menciptakan taman vertikal atau dinding hijau untuk menghadirkan sentuhan alam dan meningkatkan estetika.
Adaptasi Desain Rumah Petak dengan Kebutuhan Modern
Rumah petak bisa diadaptasi dengan gaya hidup modern dengan penambahan fitur-fitur yang sesuai. Misalnya:
- Mengintegrasikan teknologi smart home untuk memudahkan kontrol pencahayaan, keamanan, dan perangkat elektronik lainnya.
- Membuat ruang kerja yang nyaman dan fungsional untuk mendukung aktivitas work from home.
- Menciptakan ruang terbuka hijau yang kecil untuk relaksasi dan bersantai.
- Memasukkan elemen desain minimalis untuk menciptakan kesan bersih, rapi, dan modern.
Membangun rumah petak bukan hanya tentang membangun hunian, tetapi juga tentang menciptakan ruang yang personal dan penuh makna. Dengan memahami konsep desain, memilih material yang tepat, dan memanfaatkan ruang secara optimal, rumah petak dapat menjadi tempat tinggal yang nyaman, estetis, dan sesuai dengan kebutuhan modern. Jadi, jangan ragu untuk mengeksplorasi berbagai ide dan inspirasi dalam merancang rumah petak Anda!
FAQ Terkini
Apakah rumah petak cocok untuk keluarga besar?
Meskipun ruang terbatas, rumah petak dapat mengakomodasi keluarga besar dengan desain yang tepat dan penataan furnitur yang efisien.
Berapa biaya rata-rata membangun rumah petak?
Biaya membangun rumah petak bervariasi tergantung ukuran, material, dan lokasi. Konsultasikan dengan arsitek atau kontraktor untuk estimasi yang lebih akurat.
Apakah rumah petak rentan terhadap kebisingan?
Desain rumah petak yang baik mempertimbangkan aspek akustik dengan penggunaan material penyerap suara dan penataan ruang yang tepat.

