Desain rumah minimalis 5×10 – Membangun rumah minimalis 5×10 meter mungkin terdengar terbatas, namun jangan salah! Dengan desain yang tepat, Anda bisa menciptakan hunian yang fungsional, estetis, dan nyaman untuk keluarga kecil. Artikel ini akan memandu Anda dalam merancang rumah impian dengan luas terbatas, mulai dari konsep minimalis hingga inspirasi interior yang menawan.
Di sini, Anda akan menemukan beragam contoh denah rumah minimalis 5×10 meter yang dapat disesuaikan dengan kebutuhan dan gaya hidup Anda. Selain itu, kami juga akan membahas tips membangun rumah dengan biaya efisien, memilih material yang tepat, dan menciptakan suasana interior yang hangat dan modern. Siap membangun rumah minimalis 5×10 meter yang ideal?
Konsep Rumah Minimalis 5×10

Membangun rumah impian dengan lahan terbatas? Jangan khawatir, rumah minimalis dengan luas 5×10 meter bisa jadi solusinya! Konsep ini menawarkan efisiensi ruang dan desain yang simpel namun tetap estetis. Artikel ini akan membahas lebih dalam tentang konsep rumah minimalis 5×10 meter, mulai dari definisi, contoh desain, keuntungan, kekurangan, hingga perbandingannya dengan rumah berukuran lebih besar.
Definisi Rumah Minimalis 5×10 Meter
Rumah minimalis 5×10 meter adalah hunian dengan luas bangunan 50 meter persegi yang mengusung konsep minimalis. Konsep ini menekankan pada fungsi, efisiensi, dan kesederhanaan dalam setiap elemen desain. Rumah minimalis 5×10 meter biasanya memiliki bentuk yang sederhana, penggunaan material yang minimal, dan penekanan pada garis-garis lurus dan ruang terbuka.
Contoh Desain Rumah Minimalis 5×10 Meter
Desain rumah minimalis 5×10 meter bisa divariasikan dengan berbagai gaya arsitektur. Berikut beberapa contohnya:
- Gaya Modern: Rumah minimalis modern biasanya memiliki bentuk kotak, fasad yang bersih, dan penggunaan material seperti beton, kaca, dan kayu.
- Gaya Tropis: Rumah minimalis tropis seringkali menggabungkan elemen alam seperti kayu, bambu, dan batu alam. Desainnya cenderung lebih terbuka dan memiliki banyak ventilasi untuk memaksimalkan sirkulasi udara.
- Gaya Industrial: Rumah minimalis industrial memiliki ciri khas penggunaan material seperti baja, beton, dan bata ekspos. Desainnya cenderung lebih kasar dan berkesan vintage.
Keuntungan dan Kekurangan Membangun Rumah Minimalis 5×10 Meter
Membangun rumah minimalis 5×10 meter memiliki keuntungan dan kekurangan yang perlu dipertimbangkan. Berikut rinciannya:
Keuntungan:
- Biaya Pembangunan yang Lebih Rendah: Luas bangunan yang kecil tentu membutuhkan material dan tenaga kerja yang lebih sedikit, sehingga biaya pembangunan lebih rendah.
- Efisiensi Ruang: Desain minimalis menekankan pada fungsi dan efisiensi ruang, sehingga setiap area dapat dioptimalkan.
- Perawatan yang Mudah: Rumah minimalis dengan desain yang sederhana dan material yang minimal lebih mudah dibersihkan dan dirawat.
- Ramah Lingkungan: Penggunaan material yang minimal dan efisiensi ruang dapat mengurangi dampak negatif terhadap lingkungan.
Kekurangan:
- Ruang yang Terbatas: Luas bangunan 5×10 meter tentu memiliki keterbatasan ruang, sehingga membutuhkan perencanaan yang matang untuk memaksimalkan fungsinya.
- Kurangnya Privasi: Terbatasnya ruang bisa menjadi kendala untuk menciptakan privasi di setiap ruangan.
- Tantangan dalam Dekorasi: Desain minimalis memerlukan pemilihan furnitur dan dekorasi yang tepat agar tidak terlalu ramai dan tetap estetis.
Perbandingan Rumah Minimalis 5×10 Meter dengan Rumah Berukuran Lebih Besar
| Aspek | Rumah Minimalis 5×10 Meter | Rumah Berukuran Lebih Besar |
|---|---|---|
| Luas Bangunan | 50 meter persegi | Lebih dari 50 meter persegi |
| Biaya Pembangunan | Lebih rendah | Lebih tinggi |
| Efisiensi Ruang | Tinggi | Mungkin kurang efisien |
| Privasi | Mungkin kurang | Lebih terjamin |
| Dekorasi | Memerlukan perencanaan yang matang | Lebih leluasa |
| Keluarga Besar | Mungkin kurang cocok | Lebih cocok |
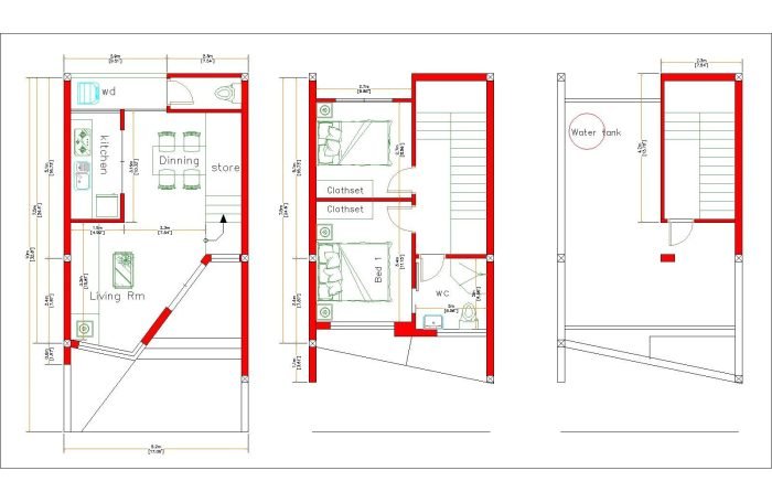
Desain Denah Rumah Minimalis 5×10

Membangun rumah minimalis 5×10 meter dengan desain yang fungsional dan estetis membutuhkan perencanaan matang, khususnya dalam merancang denah rumah. Denah yang baik akan memaksimalkan penggunaan ruang, menciptakan sirkulasi udara yang baik, dan memberikan kenyamanan bagi penghuninya.
Contoh Denah Rumah Minimalis 5×10 Meter
Berikut ini beberapa contoh denah rumah minimalis 5×10 meter yang dapat menjadi inspirasi:
- Denah Rumah Minimalis 5×10 Meter untuk 2 Kamar Tidur
- Denah Rumah Minimalis 5×10 Meter untuk 3 Kamar Tidur
- Denah Rumah Minimalis 5×10 Meter dengan Taman Kecil
Denah ini cocok untuk keluarga kecil dengan 2 anggota. Desain ini menitikberatkan pada ruang keluarga yang luas dan nyaman, dilengkapi dengan dapur dan kamar mandi yang fungsional. Kamar tidur dirancang dengan ukuran yang cukup untuk memenuhi kebutuhan privasi.
Denah ini cocok untuk keluarga dengan 3 anggota atau lebih. Desain ini memaksimalkan ruang dengan membuat 3 kamar tidur, ruang keluarga yang relatif lebih kecil, dan dapur yang terintegrasi dengan ruang makan.
Denah ini mengutamakan ruang terbuka hijau dengan taman kecil di bagian belakang rumah. Desain ini cocok untuk Anda yang menginginkan suasana asri dan sejuk di dalam rumah.
Layout Denah Rumah Minimalis 5×10 Meter
Berikut beberapa layout denah rumah minimalis 5×10 meter yang bisa Anda pertimbangkan, disesuaikan dengan kebutuhan:
- Layout Terbuka
- Layout Terpisah
- Layout L-Shape
Layout ini menggabungkan ruang keluarga, ruang makan, dan dapur dalam satu ruangan besar. Desain ini memberikan kesan luas dan lapang, cocok untuk keluarga yang gemar bersosialisasi.
Layout ini memisahkan ruang keluarga, ruang makan, dan dapur menjadi ruangan yang berbeda. Desain ini memberikan privasi dan ketenangan pada setiap ruangan, cocok untuk keluarga yang membutuhkan ketenangan.
Desain rumah minimalis 5×10 memang sedang tren, simpel dan efisien. Tapi, kamu juga harus memikirkan faktor keamanan, terutama jika tinggal di daerah rawan banjir. Nah, untuk itu, kamu bisa mengintegrasikan konsep desain rumah anti banjir ke dalam rumah minimalis 5×10. Misalnya, dengan meninggikan lantai atau menggunakan material yang tahan air. Dengan begitu, rumah minimalismu tetap nyaman dan aman dari banjir.
Layout ini menggabungkan ruang keluarga dan ruang makan dalam satu ruangan, dengan dapur berada di bagian belakang dalam bentuk L. Desain ini efisien dalam penggunaan ruang, cocok untuk rumah dengan lahan terbatas.
Tata Letak Ruangan pada Denah Rumah Minimalis 5×10 Meter, Desain rumah minimalis 5×10
Tata letak ruangan pada denah rumah minimalis 5×10 meter yang optimal harus memperhatikan beberapa hal:
- Sirkulasi Udara
- Pencahayaan
- Fungsinya
- Estetika
Pastikan terdapat ventilasi yang cukup untuk sirkulasi udara yang baik. Anda bisa memanfaatkan jendela atau pintu untuk mengoptimalkan aliran udara.
Atur tata letak ruangan agar mendapatkan pencahayaan yang optimal. Anda bisa memanfaatkan jendela untuk memaksimalkan cahaya alami. Gunakan warna cat yang terang untuk memantulkan cahaya dan membuat ruangan terasa lebih luas.
Desain rumah minimalis 5×10 memang menarik, tapi pernah kepikiran nggak sih untuk menghadirkan nuansa industrial yang unik? Kamu bisa mengintegrasikan material dinding seng yang kini makin populer, seperti yang diulas dalam desain rumah dinding seng. Dinding seng bisa dipadukan dengan material lain untuk menciptakan tampilan modern dan minimalis. Bayangkan, rumah mungil 5×10 kamu akan punya karakter yang kuat dan berbeda!
Tata letak ruangan harus mempertimbangkan fungsi setiap ruangan. Pastikan setiap ruangan memiliki fungsi yang jelas dan mudah diakses.
Pertimbangkan estetika ruangan dalam tata letaknya. Anda bisa menggunakan dekorasi dan furnitur yang sesuai dengan konsep rumah minimalis.
Desain rumah minimalis 5×10 memang cocok untuk lahan terbatas, tapi kalau kamu ingin lebih lega, mungkin desain rumah 4 meter 2 lantai bisa jadi pilihan. Desain rumah 4 meter 2 lantai menawarkan ruang yang lebih luas, dan bisa kamu manfaatkan untuk berbagai kebutuhan. Meskipun begitu, desain rumah minimalis 5×10 tetap bisa kamu ciptakan dengan berbagai ide kreatif, seperti memaksimalkan penggunaan ruang vertikal dan memilih furniture multifungsi.
Contoh Denah Rumah Minimalis 5×10 Meter dengan Berbagai Variasi Ruangan
Berikut tabel yang menunjukkan contoh denah rumah minimalis 5×10 meter dengan berbagai variasi ruangan:
| Tipe Rumah | Kamar Tidur | Kamar Mandi | Ruang Keluarga | Dapur | Taman |
|---|---|---|---|---|---|
| Minimalis 1 Lantai | 2 | 1 | Ada | Ada | Tidak Ada |
| Minimalis 1 Lantai | 3 | 2 | Ada | Ada | Tidak Ada |
| Minimalis 1 Lantai | 2 | 1 | Ada | Ada | Ada |
Inspirasi Desain Interior Rumah Minimalis 5×10

Memiliki rumah minimalis dengan ukuran 5×10 meter memang memberikan tantangan tersendiri dalam menata interiornya. Namun, dengan perencanaan yang matang dan pemilihan desain yang tepat, Anda bisa menciptakan hunian yang nyaman, fungsional, dan estetis. Artikel ini akan memberikan inspirasi desain interior rumah minimalis 5×10 meter dengan berbagai tema, tips memilih warna dan material, serta contoh furnitur yang cocok.
Inspirasi Desain Interior Berbagai Tema
Desain interior rumah minimalis 5×10 meter dapat dipadukan dengan berbagai tema, mulai dari yang modern, industrial, hingga tropis. Berikut beberapa contoh inspirasi desain yang bisa Anda jadikan referensi:
- Tema Modern: Interior rumah minimalis dengan tema modern biasanya didominasi oleh warna-warna netral seperti putih, abu-abu, dan hitam. Furnitur yang digunakan cenderung simpel dengan garis-garis tegas dan bahan seperti kayu, logam, atau kaca. Pencahayaan yang baik juga menjadi kunci untuk menciptakan kesan modern.
- Tema Industrial: Tema industrial menghadirkan kesan kasar dan bertekstur dengan penggunaan material seperti batu bata ekspos, besi, dan kayu tua. Warna-warna yang umum digunakan adalah hitam, abu-abu, dan coklat tua. Furnitur dengan desain vintage dan pencahayaan yang redup akan menambah kesan industrial pada interior.
- Tema Tropis: Tema tropis menghadirkan suasana yang hangat dan ceria dengan penggunaan warna-warna cerah seperti kuning, hijau, dan biru. Furnitur dengan desain natural dan material seperti rotan, bambu, dan kayu jati akan menambah kesan tropis pada interior. Pencahayaan alami juga sangat penting untuk menciptakan suasana tropis yang sejuk dan nyaman.
Contoh Desain Interior Rumah Minimalis 5×10 Meter
Berikut contoh desain interior rumah minimalis 5×10 meter dengan berbagai gaya:
| Gaya | Keterangan |
|---|---|
| Modern | Ruang tamu dengan sofa minimalis berwarna abu-abu, coffee table kaca, dan rak dinding berwarna putih. Dinding dihiasi dengan lukisan abstrak dan pencahayaan yang terang. |
| Industrial | Ruang makan dengan meja makan kayu tua, kursi besi, dan lampu gantung dengan desain vintage. Dinding dihiasi dengan batu bata ekspos dan pencahayaan yang redup. |
| Tropis | Kamar tidur dengan tempat tidur kayu jati, headboard rotan, dan tirai bambu. Dinding dihiasi dengan wallpaper bermotif daun tropis dan pencahayaan yang lembut. |
Tips Memilih Warna dan Material
Pemilihan warna dan material sangat penting dalam desain interior rumah minimalis 5×10 meter. Berikut beberapa tips yang bisa Anda ikuti:
- Pilih warna netral sebagai warna dasar: Warna netral seperti putih, abu-abu, dan beige akan menciptakan kesan luas dan bersih. Anda bisa menambahkan warna-warna lain sebagai aksen untuk menambah karakter pada ruangan.
- Gunakan material yang tahan lama dan mudah dibersihkan: Material seperti kayu, keramik, dan kaca mudah dibersihkan dan tahan lama. Hindari penggunaan material yang mudah rusak atau menyerap kotoran.
- Perhatikan pencahayaan: Pencahayaan yang baik akan membuat ruangan terasa lebih luas dan nyaman. Gunakan pencahayaan alami sebanyak mungkin dan tambahkan lampu tambahan jika diperlukan.
Contoh Furnitur yang Cocok
Furnitur yang tepat akan membuat ruangan terasa lebih fungsional dan estetis. Berikut contoh furnitur yang cocok untuk rumah minimalis 5×10 meter:
- Sofa bed: Sofa bed merupakan solusi cerdas untuk ruangan kecil karena berfungsi ganda sebagai sofa dan tempat tidur.
- Meja lipat: Meja lipat bisa dilipat saat tidak digunakan sehingga tidak memakan banyak tempat.
- Rak dinding: Rak dinding merupakan solusi praktis untuk menyimpan barang-barang kecil tanpa memakan banyak tempat di lantai.
- Cermin: Cermin dapat membuat ruangan terasa lebih luas dan terang.
Tips Membangun Rumah Minimalis 5×10

Membangun rumah minimalis 5×10 meter bisa menjadi solusi cerdas bagi Anda yang menginginkan hunian nyaman dengan lahan terbatas. Namun, membangun rumah minimalis tetap membutuhkan perencanaan matang agar hasil akhir sesuai harapan dan efisiensi biaya terjaga. Berikut tips membangun rumah minimalis 5×10 meter yang bisa Anda pertimbangkan:
Memilih Lahan yang Tepat
Memilih lahan yang tepat menjadi kunci awal dalam membangun rumah minimalis 5×10 meter. Perhatikan beberapa faktor penting berikut:
- Lokasi Strategis: Pilih lahan yang mudah diakses dan dekat dengan fasilitas umum seperti sekolah, rumah sakit, dan pusat perbelanjaan.
- Arah Matahari: Perhatikan arah matahari terbit dan terbenam untuk memaksimalkan pencahayaan dan sirkulasi udara di dalam rumah.
- Bentuk Lahan: Lahan yang berbentuk persegi panjang atau bujur sangkar lebih ideal untuk membangun rumah minimalis 5×10 meter.
- Keadaan Tanah: Pastikan tanah dalam kondisi stabil dan tidak rawan longsor.
Membangun Rumah Minimalis dengan Biaya Efisien
Membangun rumah minimalis 5×10 meter dengan biaya efisien membutuhkan perencanaan yang matang. Berikut langkah-langkah yang bisa Anda terapkan:
- Buat Desain yang Sederhana: Hindari desain yang rumit dan banyak ornamen. Desain minimalis dengan bentuk geometris dan warna netral cenderung lebih ekonomis.
- Pilih Material yang Tepat: Gunakan material bangunan yang berkualitas dan terjangkau. Anda bisa memilih material seperti bata ringan, kayu, dan besi yang mudah didapatkan dan tahan lama.
- Manfaatkan Ruang dengan Optimal: Desain interior yang fungsional dan efisien akan memaksimalkan penggunaan ruang tanpa mengurangi kenyamanan.
- Lakukan Pengawasan secara Berkala: Pengawasan yang ketat selama proses pembangunan akan meminimalisir pemborosan dan kesalahan yang dapat meningkatkan biaya.
Memilih Kontraktor yang Tepat
Memilih kontraktor yang tepat sangat penting untuk memastikan kualitas dan efisiensi pembangunan rumah minimalis 5×10 meter. Berikut tips memilih kontraktor yang tepat:
- Cari Referensi: Mintalah rekomendasi dari teman, keluarga, atau tetangga yang pernah menggunakan jasa kontraktor.
- Pertimbangkan Pengalaman: Pilih kontraktor yang berpengalaman dalam membangun rumah minimalis dengan ukuran serupa.
- Cek Portofolio: Lihat portofolio proyek yang pernah dikerjakan oleh kontraktor tersebut untuk menilai kualitas pekerjaannya.
- Komunikasi yang Jelas: Pastikan komunikasi dengan kontraktor berjalan lancar dan terjalin hubungan yang baik.
Contoh Biaya Pembangunan Rumah Minimalis 5×10 Meter
| Item | Biaya (Rp) |
|---|---|
| Pondasi | 10.000.000 |
| Struktur | 20.000.000 |
| Dinding dan Atap | 30.000.000 |
| Finishing | 20.000.000 |
| Instalasi Listrik dan Air | 10.000.000 |
| Lanskap | 5.000.000 |
| Total | 95.000.000 |
Perlu diingat bahwa biaya pembangunan rumah minimalis 5×10 meter dapat bervariasi tergantung lokasi, material yang digunakan, dan tingkat kesulitan pembangunan. Contoh biaya di atas hanya sebagai gambaran umum.
Contoh Rumah Minimalis 5×10: Desain Rumah Minimalis 5×10

Rumah minimalis 5×10 meter merupakan pilihan yang ideal bagi kamu yang ingin memiliki hunian nyaman dan modern di lahan terbatas. Dengan desain yang tepat, rumah minimalis ini dapat dimaksimalkan untuk menciptakan ruang hidup yang fungsional dan estetis.
Contoh Desain Rumah Minimalis 5×10 Meter
Berikut beberapa contoh desain rumah minimalis 5×10 meter yang bisa kamu jadikan inspirasi:
- Desain Rumah Minimalis Modern: Desain ini mengutamakan garis-garis tegas dan penggunaan material modern seperti kaca, beton, dan kayu. Contohnya, kamu bisa menggunakan fasad dengan jendela kaca besar untuk memaksimalkan pencahayaan alami dan memberikan kesan luas.
- Desain Rumah Minimalis Tropis: Desain ini memanfaatkan elemen alam seperti kayu, batu alam, dan tanaman hijau. Contohnya, kamu bisa menggunakan teras kayu yang luas dan taman kecil di depan rumah untuk menciptakan suasana yang sejuk dan asri.
- Desain Rumah Minimalis Industrial: Desain ini menggunakan material industrial seperti bata ekspos, besi, dan pipa sebagai elemen dekoratif. Contohnya, kamu bisa menggunakan dinding bata ekspos di bagian ruang tamu atau dapur untuk memberikan kesan vintage dan unik.
Tabel Contoh Rumah Minimalis 5×10 Meter
Berikut tabel yang menunjukkan contoh rumah minimalis 5×10 meter dengan berbagai gaya arsitektur:
| Gaya Arsitektur | Contoh Desain | Keunggulan | Kekurangan |
|---|---|---|---|
| Modern | Fasad dengan jendela kaca besar, interior dengan warna netral dan furnitur minimalis | Terang, luas, modern | Kurang privasi, biaya material lebih mahal |
| Tropis | Teras kayu yang luas, taman kecil di depan rumah, penggunaan material alami | Sejuk, asri, ramah lingkungan | Membutuhkan perawatan lebih intensif, rentan terhadap cuaca ekstrem |
| Industrial | Dinding bata ekspos, penggunaan besi dan pipa sebagai elemen dekoratif | Unik, vintage, tahan lama | Terkesan dingin, sulit untuk dipadukan dengan gaya lain |
Keunggulan dan Kekurangan Desain Rumah Minimalis 5×10 Meter
Setiap desain rumah minimalis 5×10 meter memiliki keunggulan dan kekurangannya masing-masing. Berikut beberapa contohnya:
- Keunggulan:
- Efisien dalam penggunaan lahan
- Biaya pembangunan yang relatif lebih rendah
- Mudah dirawat dan dibersihkan
- Desain yang simpel dan modern
- Kekurangan:
- Ruang yang terbatas
- Kurang privasi
- Sulit untuk menata furniture
Contoh Desain Rumah Minimalis 5×10 Meter yang Inspiratif dan Modern
Berikut beberapa contoh desain rumah minimalis 5×10 meter yang inspiratif dan modern:
- Desain Rumah Minimalis dengan Rooftop Garden: Desain ini memanfaatkan atap sebagai taman kecil yang bisa digunakan untuk bersantai atau menanam tanaman.
- Desain Rumah Minimalis dengan Dapur Terbuka: Desain ini menggabungkan dapur dengan ruang makan atau ruang tamu, sehingga menciptakan kesan luas dan terkesan modern.
- Desain Rumah Minimalis dengan Jendela Kaca Besar: Desain ini memaksimalkan pencahayaan alami dan memberikan kesan luas pada ruangan.
Membangun rumah minimalis 5×10 meter tidak hanya tentang memaksimalkan ruang, tetapi juga tentang menciptakan suasana yang nyaman dan harmonis. Dengan perencanaan yang matang dan desain yang tepat, Anda dapat memiliki rumah impian yang memiliki nilai estetika tinggi dan tetap fungsional untuk keluarga kecil. Ingat, rumah minimalis bukan berarti sederhana, tetapi sederhana yang elegan dan penuh makna.
FAQ Lengkap
Apakah rumah minimalis 5×10 meter cukup untuk keluarga kecil?
Ya, dengan perencanaan yang tepat, rumah minimalis 5×10 meter dapat mengakomodasi kebutuhan keluarga kecil. Pilihlah denah yang efisien dan memaksimalkan setiap sudut ruangan.
Berapa biaya membangun rumah minimalis 5×10 meter?
Biaya pembangunan rumah minimalis 5×10 meter sangat bervariasi tergantung pada material, desain, dan lokasi. Namun, umumnya lebih terjangkau dibandingkan dengan rumah berukuran lebih besar.
Apakah ada contoh desain rumah minimalis 5×10 meter yang modern?
Tentu! Artikel ini menampilkan beberapa contoh desain rumah minimalis 5×10 meter yang modern dan inspiratif. Anda dapat menemukan ide-ide desain yang sesuai dengan selera Anda.

