Membangun rumah adalah impian banyak orang, dan mewujudkan impian itu tentu membutuhkan perencanaan matang. Desain rumah dan denahnya menjadi fondasi utama dalam proses pembangunan, karena di sini lah Anda menentukan bentuk, tata letak ruangan, dan segala detail yang akan menjadikan rumah Anda nyaman dan fungsional.
Mempelajari desain rumah dan denahnya tidak hanya penting bagi arsitek dan kontraktor, tapi juga bagi Anda sebagai pemilik rumah. Dengan memahami elemen-elemen penting dalam desain rumah dan denahnya, Anda dapat berpartisipasi aktif dalam proses perencanaan dan memastikan bahwa rumah yang dibangun sesuai dengan kebutuhan dan keinginan Anda.
Pengertian Desain Rumah dan Denah: Desain Rumah Dan Denahnya

Membangun rumah adalah impian banyak orang. Sebelum membangun, diperlukan perencanaan yang matang agar rumah yang dibangun sesuai dengan kebutuhan dan keinginan. Perencanaan ini melibatkan desain rumah dan denah. Desain rumah dan denah merupakan dua hal yang saling terkait, namun memiliki perbedaan yang perlu dipahami.
Desain rumah dan denahnya merupakan hal penting dalam mewujudkan hunian impian. Menentukan tata letak ruangan, aliran sirkulasi, dan estetika menjadi fokus utama. Jika kamu ingin mengeksplorasi berbagai ide desain rumah, kamu bisa memanfaatkan aplikasi desain rumah android gratis. Aplikasi ini memungkinkan kamu untuk membuat desain rumah 3D dengan mudah, bahkan tanpa memerlukan keahlian khusus. Dengan begitu, kamu dapat memvisualisasikan desain rumahmu secara detail dan membuat penyesuaian sesuai keinginan sebelum membangun rumah impianmu.
Pengertian Desain Rumah
Desain rumah adalah konsep atau gambaran visual mengenai bentuk, tata letak, dan fungsi ruangan dalam sebuah bangunan rumah. Desain rumah mencakup berbagai aspek, mulai dari estetika, fungsionalitas, hingga aspek teknis seperti struktur bangunan dan sistem utilitas.
Desain rumah dan denahnya memang penting untuk menciptakan hunian yang nyaman dan fungsional. Namun, terkadang kita dihadapkan pada tantangan, seperti lahan miring. Untuk memaksimalkan lahan miring, diperlukan kreativitas dalam mendesain rumah. Desain rumah tanah miring memerlukan pertimbangan khusus, seperti penempatan ruang dan akses, agar tetap estetis dan aman. Dengan perencanaan yang matang, desain rumah dan denahnya dapat mengakomodasi berbagai bentuk lahan, termasuk lahan miring, dan menghasilkan hunian yang sesuai dengan kebutuhan dan keinginan penghuninya.
Contoh ilustrasi desain rumah adalah gambaran tiga dimensi (3D) yang menampilkan bentuk rumah, warna cat, jenis material, dan penataan furnitur. Desain rumah juga dapat berupa gambar denah, tampak, dan potongan yang menunjukkan detail ruangan, ukuran, dan letak pintu serta jendela.
Pengertian Denah Rumah
Denah rumah adalah gambar dua dimensi (2D) yang menunjukkan tata letak ruangan, ukuran, dan hubungan antar ruangan dalam sebuah bangunan rumah. Denah rumah umumnya menggunakan skala tertentu untuk memudahkan dalam memahami ukuran dan proporsi ruangan.
Contoh ilustrasi denah rumah adalah gambar yang menunjukkan layout ruangan, seperti ruang tamu, ruang keluarga, kamar tidur, dapur, dan kamar mandi. Denah rumah juga menunjukkan letak pintu, jendela, tangga, dan dinding pembatas antar ruangan.
Desain rumah dan denahnya menjadi hal yang penting untuk menciptakan hunian yang nyaman dan sesuai kebutuhan. Saat ini, banyak yang memilih menggunakan material baja wf untuk membangun rumah, karena memiliki keunggulan kuat dan tahan lama. Jika kamu tertarik dengan konsep ini, kamu bisa mencari inspirasi desain rumah baja wf di situs ini. Memilih desain rumah dan denahnya yang tepat akan memberikan kepuasan tersendiri bagi pemiliknya.
Perbedaan Desain Rumah dan Denah
Desain rumah dan denah merupakan dua hal yang saling terkait, namun memiliki perbedaan yang mendasar. Berikut tabel yang membandingkan aspek-aspek penting dari desain rumah dan denah:
| Aspek | Desain Rumah | Denah Rumah |
|---|---|---|
| Dimensi | Tiga dimensi (3D) | Dua dimensi (2D) |
| Visualisasi | Menampilkan bentuk, warna, dan penataan furnitur | Menampilkan tata letak ruangan, ukuran, dan hubungan antar ruangan |
| Fokus | Estetika, fungsionalitas, dan aspek teknis | Tata letak ruangan, ukuran, dan hubungan antar ruangan |
| Tujuan | Memvisualisasikan konsep rumah dan membantu dalam perencanaan pembangunan | Menjadi panduan dalam pembangunan rumah, terutama untuk penempatan ruangan dan ukuran |
Fungsi Desain Rumah dan Denah

Desain rumah dan denah adalah elemen penting dalam proses pembangunan rumah. Mereka berfungsi sebagai blueprint yang memandu seluruh proses, dari perencanaan hingga pelaksanaan. Desain rumah dan denah tidak hanya menentukan bentuk fisik rumah, tetapi juga mempertimbangkan aspek fungsional, estetika, dan kebutuhan penghuninya.
Peran Desain Rumah dan Denah dalam Perencanaan Tata Letak Ruangan
Desain rumah dan denah berperan krusial dalam menentukan tata letak ruangan. Melalui denah, kita dapat memvisualisasikan bagaimana ruangan-ruangan akan dihubungkan, ukurannya, dan fungsinya. Misalnya, denah dapat menunjukkan lokasi kamar tidur, dapur, ruang tamu, dan kamar mandi, serta hubungan antar ruangan tersebut. Dengan demikian, kita dapat memastikan aliran sirkulasi yang optimal, memaksimalkan pencahayaan alami, dan menciptakan suasana yang nyaman.
Maksimalkan Penggunaan Ruang
Desain rumah dan denah memungkinkan kita untuk memaksimalkan penggunaan ruang dengan efisien. Denah dapat membantu kita dalam:
- Menentukan ukuran dan bentuk ruangan yang ideal sesuai dengan kebutuhan dan fungsi.
- Merencanakan penempatan furnitur dan peralatan rumah tangga agar efisien dan fungsional.
- Memperhatikan pencahayaan dan ventilasi alami agar ruangan terasa lebih lapang dan nyaman.
Contohnya, jika kita ingin memaksimalkan ruang di dapur, denah dapat membantu kita dalam merencanakan penempatan lemari, meja, dan peralatan dapur agar teratur dan mudah diakses. Dengan demikian, ruang dapur terasa lebih luas dan fungsional.
Elemen-Elemen Desain Rumah dan Denah
Membangun rumah adalah proses yang kompleks, melibatkan banyak aspek, mulai dari perencanaan hingga pelaksanaan. Salah satu aspek penting dalam proses ini adalah desain rumah dan denahnya. Desain rumah dan denah berfungsi sebagai blueprint yang memandu pembangunan rumah, memastikan bahwa semua elemen rumah terintegrasi dengan baik dan memenuhi kebutuhan penghuninya.
Desain rumah dan denah terdiri dari berbagai elemen penting yang saling terkait. Masing-masing elemen memiliki fungsi spesifik yang berperan dalam menentukan karakteristik, fungsionalitas, dan estetika rumah. Memahami elemen-elemen ini akan membantu Anda dalam merencanakan dan membangun rumah yang sesuai dengan keinginan dan kebutuhan Anda.
Elemen-Elemen Desain Rumah
Elemen desain rumah meliputi berbagai aspek yang berkaitan dengan bentuk, struktur, dan fungsi ruang dalam rumah. Elemen-elemen ini berperan penting dalam menciptakan ruang yang nyaman, fungsional, dan estetis. Berikut adalah beberapa elemen desain rumah yang perlu Anda perhatikan:
- Tata Letak (Layout): Tata letak rumah mengatur bagaimana ruang-ruang dalam rumah diorganisasikan dan dihubungkan. Tata letak yang baik akan menciptakan alur sirkulasi yang efisien dan memaksimalkan penggunaan ruang. Misalnya, penempatan ruang tamu, ruang makan, dan dapur yang berdekatan akan memudahkan aktivitas sehari-hari.
- Bentuk dan Ukuran Ruangan: Bentuk dan ukuran ruangan memengaruhi fungsi dan suasana ruangan. Ruangan yang besar dan terbuka akan memberikan kesan luas dan lapang, sedangkan ruangan yang kecil dan tertutup akan memberikan kesan intim dan cozy. Bentuk ruangan juga memengaruhi pencahayaan dan ventilasi ruangan.
- Material dan Tekstur: Material dan tekstur yang digunakan untuk dinding, lantai, dan langit-langit akan memengaruhi tampilan dan nuansa rumah. Misalnya, penggunaan batu alam akan memberikan kesan natural dan elegan, sedangkan penggunaan kayu akan memberikan kesan hangat dan nyaman.
- Warna dan Pencahayaan: Warna dan pencahayaan memainkan peran penting dalam menciptakan suasana dan mood dalam rumah. Warna yang cerah dan terang akan memberikan kesan ceria dan energik, sedangkan warna yang gelap dan kalem akan memberikan kesan tenang dan nyaman. Pencahayaan yang tepat akan memaksimalkan fungsi dan keindahan ruangan.
- Furnitur dan Dekorasi: Furnitur dan dekorasi melengkapi desain rumah dan memberikan sentuhan personal. Pemilihan furnitur dan dekorasi yang tepat akan meningkatkan fungsionalitas dan estetika ruangan. Misalnya, pemilihan sofa yang nyaman dan meja makan yang luas akan meningkatkan kenyamanan ruang keluarga dan ruang makan.
Elemen-Elemen Denah Rumah
Denah rumah merupakan representasi grafis dari tata letak ruangan dan struktur rumah. Denah rumah berisi informasi penting tentang dimensi ruangan, posisi pintu dan jendela, serta letak berbagai elemen struktural seperti dinding, kolom, dan tangga. Elemen-elemen dalam denah rumah membantu dalam merencanakan dan membangun rumah yang sesuai dengan kebutuhan dan keinginan.
- Skala: Skala pada denah rumah menunjukkan perbandingan antara ukuran ruangan pada denah dengan ukuran sebenarnya. Skala yang umum digunakan adalah 1:50 atau 1:100, yang berarti 1 cm pada denah mewakili 50 cm atau 100 cm pada ukuran sebenarnya.
- Simbol: Denah rumah menggunakan simbol-simbol untuk mewakili berbagai elemen seperti dinding, pintu, jendela, tangga, dan furnitur. Simbol-simbol ini memudahkan dalam memahami dan menginterpretasikan denah rumah.
- Dimensi: Dimensi pada denah rumah menunjukkan ukuran panjang, lebar, dan tinggi ruangan, pintu, jendela, dan elemen struktural lainnya. Informasi dimensi sangat penting dalam merencanakan dan membangun rumah agar sesuai dengan kebutuhan dan keinginan.
- Keterangan: Keterangan pada denah rumah memberikan informasi tambahan tentang jenis material yang digunakan, spesifikasi ruangan, dan detail lainnya. Keterangan ini membantu dalam memahami dan menginterpretasikan denah rumah dengan lebih detail.
Tabel Elemen Desain Rumah dan Denah
| Elemen | Fungsi |
|---|---|
| Tata Letak (Layout) | Menentukan organisasi dan hubungan antar ruang dalam rumah. |
| Bentuk dan Ukuran Ruangan | Mempengaruhi fungsi, suasana, pencahayaan, dan ventilasi ruangan. |
| Material dan Tekstur | Mempengaruhi tampilan dan nuansa rumah. |
| Warna dan Pencahayaan | Mempengaruhi suasana dan mood dalam rumah. |
| Furnitur dan Dekorasi | Melengkapi desain rumah dan memberikan sentuhan personal. |
| Skala | Menunjukkan perbandingan antara ukuran ruangan pada denah dengan ukuran sebenarnya. |
| Simbol | Mewakili berbagai elemen seperti dinding, pintu, jendela, tangga, dan furnitur. |
| Dimensi | Menunjukkan ukuran panjang, lebar, dan tinggi ruangan, pintu, jendela, dan elemen struktural lainnya. |
| Keterangan | Memberikan informasi tambahan tentang jenis material, spesifikasi ruangan, dan detail lainnya. |
Jenis-Jenis Desain Rumah dan Denah
Desain rumah dan denah merupakan hal yang penting dalam proses pembangunan rumah. Desain rumah yang baik akan menciptakan rumah yang nyaman, fungsional, dan estetis. Ada berbagai jenis desain rumah dan denah yang bisa Anda pilih, disesuaikan dengan kebutuhan, gaya hidup, dan selera Anda. Berikut ini beberapa jenis desain rumah dan denah yang populer:
Desain Rumah Berdasarkan Bentuk
Bentuk rumah dapat dibedakan berdasarkan bentuk dasar bangunannya. Bentuk dasar bangunan ini mempengaruhi penataan ruangan, sirkulasi udara, dan pencahayaan rumah.
- Rumah Persegi Panjang: Bentuk rumah yang paling umum dan mudah diaplikasikan. Rumah persegi panjang cocok untuk berbagai ukuran dan bisa dibagi menjadi ruangan-ruangan yang proporsional.
- Rumah Persegi: Bentuk rumah yang simpel dan efisien. Rumah persegi cocok untuk lahan yang terbatas dan mudah diatur tata letaknya.
- Rumah L-Shape: Bentuk rumah yang unik dengan dua sayap yang membentuk sudut siku-siku. Rumah L-shape menawarkan fleksibilitas dalam penataan ruangan dan bisa menciptakan ruang terbuka di tengah.
- Rumah U-Shape: Bentuk rumah yang melingkar dengan dua sayap yang saling berhadapan. Rumah U-shape cocok untuk lahan yang luas dan bisa menciptakan ruang terbuka yang luas di tengah.
Desain Rumah Berdasarkan Gaya
Gaya rumah mencerminkan karakter dan kepribadian pemiliknya. Gaya rumah juga mempengaruhi desain eksterior dan interior rumah.
- Rumah Minimalis: Gaya rumah yang simpel dan modern dengan desain yang bersih dan minimalis. Rumah minimalis biasanya menggunakan warna-warna netral dan bahan-bahan yang sederhana.
- Rumah Klasik: Gaya rumah yang elegan dan tradisional dengan desain yang detail dan ornamen yang rumit. Rumah klasik biasanya menggunakan warna-warna hangat dan bahan-bahan yang mewah.
- Rumah Mediterania: Gaya rumah yang terinspirasi dari arsitektur Mediterania. Rumah Mediterania biasanya menggunakan warna-warna cerah, atap genteng, dan taman yang rimbun.
- Rumah Tropis: Gaya rumah yang terinspirasi dari iklim tropis. Rumah tropis biasanya menggunakan material alami, ventilasi yang baik, dan taman yang hijau.
Desain Rumah Berdasarkan Fungsi
Fungsi rumah menentukan penataan ruangan dan fasilitas yang dibutuhkan. Desain rumah yang baik akan mempertimbangkan fungsi dari setiap ruangan dan memastikan bahwa semua kebutuhan penghuni terpenuhi.
- Rumah Tinggal: Rumah yang dirancang untuk tempat tinggal permanen atau sementara. Rumah tinggal biasanya memiliki ruang tamu, ruang keluarga, kamar tidur, dapur, dan kamar mandi.
- Rumah Kantor: Rumah yang dirancang untuk tempat bekerja. Rumah kantor biasanya memiliki ruang kerja, ruang rapat, dan ruang tunggu.
- Rumah Toko: Rumah yang dirancang untuk tempat usaha dan tempat tinggal. Rumah toko biasanya memiliki ruang usaha di bagian depan dan ruang tinggal di bagian belakang.
- Rumah Hunian Vertikal: Rumah yang dirancang untuk tempat tinggal di bangunan bertingkat. Rumah hunian vertikal biasanya memiliki balkon, ruang terbuka, dan fasilitas umum.
Tabel Perbandingan Jenis Desain Rumah dan Denah
| Jenis Desain | Bentuk | Gaya | Fungsi | Karakteristik |
|---|---|---|---|---|
| Rumah Persegi Panjang | Persegi Panjang | Minimalis, Klasik, Tropis | Rumah Tinggal, Rumah Kantor | Mudah diaplikasikan, mudah diatur tata letak, cocok untuk berbagai ukuran |
| Rumah Persegi | Persegi | Minimalis, Klasik | Rumah Tinggal, Rumah Kantor | Simpel, efisien, cocok untuk lahan terbatas |
| Rumah L-Shape | L-Shape | Minimalis, Modern | Rumah Tinggal, Rumah Kantor | Fleksibilitas dalam penataan ruangan, menciptakan ruang terbuka |
| Rumah U-Shape | U-Shape | Klasik, Mediterania | Rumah Tinggal, Rumah Kantor | Cocok untuk lahan luas, menciptakan ruang terbuka yang luas |
5. Tips Merancang Desain Rumah dan Denah

Membangun rumah adalah impian banyak orang. Prosesnya tak hanya melibatkan material dan tenaga kerja, tapi juga kreativitas dan perencanaan matang. Salah satu aspek penting adalah merancang desain rumah dan denah yang sesuai kebutuhan dan selera. Proses ini melibatkan berbagai pertimbangan, mulai dari kebutuhan ruang, tata letak, hingga pemilihan material bangunan yang tepat. Berikut beberapa tips untuk membantu Anda merancang desain rumah dan denah yang ideal.
1. Tentukan Kebutuhan Ruang dan Tata Letak yang Optimal
Langkah pertama dalam merancang desain rumah adalah menentukan kebutuhan ruang dan tata letak yang optimal. Hal ini sangat penting untuk memastikan bahwa rumah Anda dapat mengakomodasi semua kebutuhan Anda dan keluarga, baik sekarang maupun di masa depan.
- Pertimbangkan jumlah anggota keluarga, gaya hidup, dan aktivitas yang biasa dilakukan di rumah. Misalnya, jika Anda memiliki anak kecil, Anda mungkin membutuhkan ruang bermain yang lebih besar.
- Buatlah daftar ruangan yang Anda butuhkan, seperti ruang tamu, ruang makan, dapur, kamar tidur, kamar mandi, dan ruang lainnya yang mungkin Anda perlukan.
- Tentukan ukuran dan bentuk setiap ruangan, dan bagaimana ruangan-ruangan tersebut akan dihubungkan satu sama lain.
- Gunakan software desain rumah atau aplikasi seluler untuk membuat denah awal dan memvisualisasikan tata letak ruangan.
2. Pertimbangkan Sirkulasi dan Pencahayaan, Desain rumah dan denahnya
Sirkulasi udara dan pencahayaan merupakan faktor penting yang memengaruhi kenyamanan dan estetika rumah.
- Desain rumah harus memungkinkan sirkulasi udara yang baik, sehingga rumah terasa sejuk dan nyaman.
- Perhatikan posisi jendela dan pintu untuk memaksimalkan pencahayaan alami.
- Hindari penempatan ruangan yang menghalangi aliran udara atau cahaya matahari.
- Jika memungkinkan, ciptakan ruang terbuka seperti teras atau balkon untuk meningkatkan sirkulasi udara dan pencahayaan.
3. Perhatikan Aspek Keamanan dan Privasi
Keamanan dan privasi merupakan aspek penting yang perlu dipertimbangkan dalam merancang desain rumah.
- Pertimbangkan penempatan pintu dan jendela, serta sistem keamanan seperti pagar, CCTV, dan alarm.
- Pastikan bahwa area pribadi seperti kamar tidur dan kamar mandi terlindungi dari pandangan orang lain.
- Perhatikan juga akses masuk dan keluar rumah, serta pencahayaan di area luar rumah.
4. Pilih Material Bangunan yang Tepat
Pemilihan material bangunan yang tepat akan memengaruhi kualitas, estetika, dan ketahanan rumah.
- Pertimbangkan anggaran, gaya arsitektur, dan kondisi iklim setempat.
- Pilih material yang tahan lama, mudah perawatan, dan ramah lingkungan.
- Cari informasi tentang sifat dan karakteristik material bangunan sebelum memutuskan pilihan.
- Jangan ragu untuk berkonsultasi dengan arsitek atau kontraktor untuk mendapatkan rekomendasi material yang tepat.
5. Pertimbangkan Estetika dan Gaya Arsitektur
Desain rumah tidak hanya tentang fungsionalitas, tetapi juga tentang estetika dan gaya arsitektur.
- Pilih gaya arsitektur yang sesuai dengan selera dan kepribadian Anda.
- Perhatikan warna cat, material finishing, dan elemen dekoratif yang akan digunakan.
- Buatlah desain yang harmonis dan seimbang, dengan memperhatikan proporsi dan komposisi.
- Jangan lupa untuk menambahkan sentuhan personal yang mencerminkan kepribadian Anda.
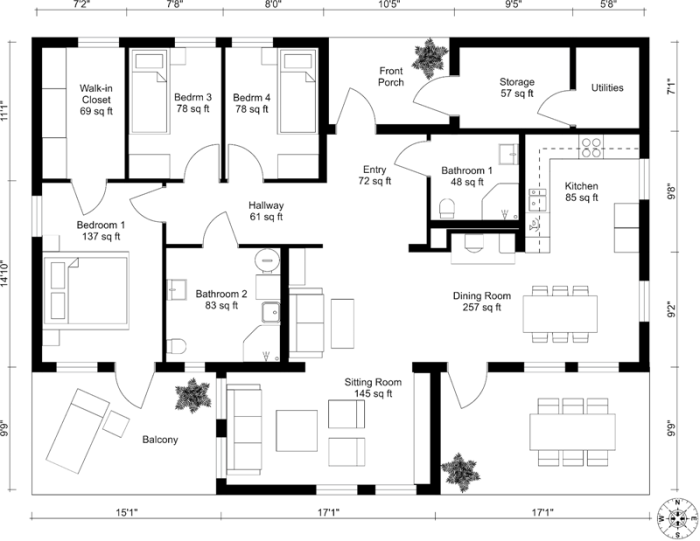
Contoh Desain Rumah dan Denah
Membangun rumah impian adalah proses yang menyenangkan sekaligus menantang. Desain rumah dan denah menjadi fondasi penting dalam mewujudkan impian tersebut. Dengan desain dan denah yang tepat, Anda dapat menciptakan hunian yang nyaman, fungsional, dan sesuai dengan kebutuhan keluarga. Berikut ini beberapa contoh desain rumah dan denah dengan berbagai gaya dan ukuran, yang bisa menjadi inspirasi bagi Anda.
Desain Rumah Minimalis Modern
Desain rumah minimalis modern dicirikan oleh bentuk sederhana, garis tegas, dan penggunaan material modern seperti kaca dan beton. Rumah minimalis modern cocok untuk Anda yang menginginkan hunian yang simpel, efisien, dan estetis.
- Denah rumah minimalis modern biasanya dirancang dengan ruangan yang terhubung satu sama lain, menciptakan kesan luas dan lapang.
- Penggunaan jendela kaca besar memungkinkan cahaya matahari masuk dengan maksimal, membuat ruangan terasa lebih terang dan ceria.
- Fasad rumah minimalis modern seringkali didominasi oleh warna-warna netral seperti putih, abu-abu, dan hitam, yang memberikan kesan bersih dan modern.
Berikut contoh denah rumah minimalis modern dengan luas bangunan 100 meter persegi:
| Ruangan | Luas (m2) |
|---|---|
| Ruang Tamu | 25 |
| Dapur | 15 |
| Ruang Makan | 10 |
| Kamar Tidur Utama | 20 |
| Kamar Tidur Anak | 15 |
| Kamar Mandi | 10 |
| Garasi | 5 |
Contoh desain rumah minimalis modern ini bisa dimodifikasi sesuai dengan kebutuhan dan selera Anda. Misalnya, Anda bisa menambahkan taman kecil di depan rumah, atau membuat balkon di lantai atas untuk menikmati pemandangan.
Desain Rumah Tropis
Desain rumah tropis mengusung konsep hunian yang sejuk dan nyaman, dengan memanfaatkan sirkulasi udara dan pencahayaan alami. Rumah tropis biasanya memiliki banyak jendela dan ventilasi, serta dilengkapi dengan taman atau halaman hijau yang menyegarkan.
- Denah rumah tropis biasanya dirancang dengan ruangan yang terbuka dan terhubung dengan taman atau halaman, sehingga udara segar dapat bersirkulasi dengan baik.
- Material bangunan yang digunakan umumnya adalah kayu, batu bata, dan bambu, yang ramah lingkungan dan memberikan kesan alami.
- Desain atap rumah tropis seringkali berbentuk miring atau melengkung, untuk memaksimalkan sirkulasi udara dan mencegah panas matahari masuk secara langsung ke dalam ruangan.
Berikut contoh denah rumah tropis dengan luas bangunan 150 meter persegi:
| Ruangan | Luas (m2) |
|---|---|
| Ruang Tamu | 30 |
| Dapur | 20 |
| Ruang Makan | 15 |
| Kamar Tidur Utama | 25 |
| Kamar Tidur Anak | 20 |
| Kamar Mandi | 15 |
| Taman | 25 |
Contoh desain rumah tropis ini bisa dimodifikasi dengan menambahkan kolam renang atau gazebo di taman, untuk menambah nuansa tropis dan meningkatkan kenyamanan hunian.
Desain Rumah Klasik
Desain rumah klasik mengusung konsep hunian yang elegan dan mewah, dengan ciri khas penggunaan material berkualitas tinggi, detail ornamen yang rumit, dan warna-warna yang hangat. Rumah klasik cocok untuk Anda yang menginginkan hunian dengan nilai seni tinggi dan nuansa timeless.
- Denah rumah klasik biasanya dirancang dengan ruangan yang luas dan megah, dengan penataan yang simetris dan formal.
- Material bangunan yang digunakan umumnya adalah batu bata, kayu jati, dan marmer, yang memberikan kesan mewah dan tahan lama.
- Desain fasad rumah klasik seringkali dihiasi dengan ornamen-ornamen rumit, seperti pilar, lengkungan, dan ukiran, yang menambah nilai estetis dan historis.
Berikut contoh denah rumah klasik dengan luas bangunan 200 meter persegi:
| Ruangan | Luas (m2) |
|---|---|
| Ruang Tamu | 40 |
| Dapur | 25 |
| Ruang Makan | 20 |
| Kamar Tidur Utama | 30 |
| Kamar Tidur Anak | 25 |
| Kamar Mandi | 20 |
| Ruang Keluarga | 20 |
Contoh desain rumah klasik ini bisa dimodifikasi dengan menambahkan ruang kerja atau ruang tamu tambahan, untuk memenuhi kebutuhan keluarga yang lebih besar.
Tips Menerjemahkan Desain Rumah dan Denah
Saat menginterpretasikan contoh desain rumah dan denah, perhatikan beberapa hal penting berikut:
- Skala: Pastikan Anda memahami skala denah, agar Anda dapat membayangkan ukuran ruangan secara realistik.
- Orientasi: Perhatikan arah mata angin pada denah, agar Anda dapat menentukan pencahayaan dan sirkulasi udara di setiap ruangan.
- Fungsi Ruangan: Pahami fungsi setiap ruangan pada denah, agar Anda dapat menata furniture dan peralatan dengan tepat.
- Detail: Perhatikan detail desain rumah, seperti jenis material bangunan, warna cat, dan bentuk jendela, agar Anda dapat membayangkan tampilan rumah secara keseluruhan.
Dengan memahami detail desain rumah dan denah, Anda dapat membuat keputusan yang tepat dalam membangun rumah impian Anda.
Merancang desain rumah dan denahnya adalah proses kreatif yang menantang, tetapi juga sangat memuaskan. Dengan memahami dasar-dasar desain, memilih gaya yang tepat, dan memperhatikan detail-detail penting, Anda dapat mewujudkan rumah impian yang nyaman, estetis, dan fungsional. Ingat, desain rumah dan denahnya tidak hanya tentang estetika, tetapi juga tentang bagaimana rumah tersebut dapat memenuhi kebutuhan dan gaya hidup Anda.
Informasi FAQ
Bagaimana cara memilih arsitek yang tepat?
Cari arsitek yang berpengalaman, memiliki portofolio yang sesuai dengan gaya Anda, dan memiliki komunikasi yang baik.
Apakah desain rumah harus selalu mengikuti tren?
Tidak harus, tetapi pertimbangkan tren yang dapat meningkatkan fungsi dan estetika rumah Anda.
Bagaimana cara menentukan anggaran untuk desain rumah?
Hitung biaya bahan bangunan, tenaga kerja, dan biaya desain. Pertimbangkan juga biaya tambahan seperti perizinan.

