Desain rumah 9×6 2 kamar tidur – Membangun rumah impian dengan lahan terbatas? Desain rumah 9×6 meter dengan 2 kamar tidur bisa menjadi solusi yang tepat! Dengan perencanaan yang cermat, Anda dapat menciptakan hunian yang nyaman, fungsional, dan estetis. Artikel ini akan membahas berbagai aspek desain rumah mungil ini, mulai dari penataan ruangan hingga pemilihan material yang tepat.
Dari penempatan furniture yang ergonomis hingga pemilihan konsep desain yang sesuai dengan gaya hidup Anda, kami akan memandu Anda dalam menciptakan rumah 9×6 meter yang ideal. Simak tips dan triknya dalam artikel ini!
Desain Ruangan: Desain Rumah 9×6 2 Kamar Tidur

Membangun rumah dengan luas 9×6 meter dengan 2 kamar tidur memang menantang, namun bisa dilakukan dengan perencanaan yang tepat. Tata letak ruangan yang efisien dan pemilihan furnitur yang ergonomis akan memaksimalkan ruang dan menciptakan rumah yang nyaman.
Desain rumah 9×6 2 kamar tidur memang menantang, tapi bisa diatasi dengan penataan yang cermat. Jika kamu ingin membangun rumah di area pedesaan, mungkin kamu bisa mengintip inspirasi dari desain rumah di pinggir sawah yang banyak mengusung konsep minimalis dan menyatu dengan alam. Konsep ini bisa diterapkan pada desain rumah 9×6 2 kamar tidur, dengan penekanan pada penggunaan material alami dan pencahayaan yang optimal.
Jadi, meski mungil, rumahmu tetap terasa nyaman dan sejuk.
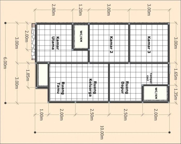
Denah Ruangan dan Tata Letak
Denah ruangan untuk rumah 9×6 meter dengan 2 kamar tidur bisa dirancang dengan berbagai variasi. Salah satu contohnya adalah dengan menempatkan kedua kamar tidur di bagian belakang rumah, sedangkan ruang tamu, dapur, dan ruang makan berada di bagian depan. Penempatan pintu dan jendela sebaiknya dipertimbangkan untuk memaksimalkan sirkulasi udara dan pencahayaan alami.
Berikut adalah ilustrasi denah ruangan dengan penempatan furnitur yang ergonomis untuk setiap kamar:
- Kamar Tidur Utama: Ranjang berukuran king atau queen, lemari pakaian, meja rias, dan kursi.
- Kamar Tidur Kedua: Ranjang single atau double, lemari pakaian, meja belajar, dan kursi.
- Ruang Tamu: Sofa, meja kopi, televisi, dan rak buku.
- Dapur: Lemari dapur, kompor, wastafel, dan meja makan kecil.
- Ruang Makan: Meja makan dan kursi.
Perbandingan Desain Kamar Tidur
| Desain | Ukuran Kamar | Tata Letak Furnitur |
|---|---|---|
| Desain 1 | 3×4 meter | Ranjang double, lemari pakaian, meja rias, dan kursi. |
| Desain 2 | 3×3 meter | Ranjang single, lemari pakaian, meja belajar, dan kursi. |
Keuntungan dan Kekurangan Desain Ruangan
Desain ruangan yang dipilih menawarkan beberapa keuntungan, seperti memaksimalkan penggunaan ruang, menciptakan aliran sirkulasi yang baik, dan menyediakan pencahayaan alami yang cukup. Namun, kekurangannya adalah ruangan mungkin terasa sempit jika tidak ditata dengan cermat.
Konsep Desain

Membangun rumah di lahan terbatas dengan ukuran 9×6 meter memang menantang, tapi justru bisa menjadi kesempatan untuk menciptakan hunian yang fungsional dan estetis. Desain interior yang tepat dapat memaksimalkan ruang, menciptakan ilusi luas, dan menghadirkan suasana yang nyaman sesuai dengan gaya hidup penghuni.
Contoh Desain Interior
Beberapa contoh desain interior yang cocok untuk rumah berukuran 9×6 meter dengan 2 kamar tidur antara lain:
- Desain minimalis: Mengutamakan kesederhanaan dengan warna netral, furnitur multifungsi, dan pencahayaan yang baik. Desain ini cocok untuk menciptakan suasana yang tenang dan luas.
- Desain modern: Memiliki ciri khas garis-garis tegas, furnitur dengan bentuk geometris, dan penggunaan material modern seperti kaca dan baja. Desain ini cocok untuk menghadirkan nuansa futuristik dan elegan.
- Desain klasik: Menampilkan detail-detail tradisional seperti ornamen, ukiran, dan furnitur kayu berukir. Desain ini cocok untuk menciptakan suasana yang hangat dan mewah.
Konsep Desain Rumah
Beberapa konsep desain yang bisa diterapkan untuk rumah minimalis, modern, atau klasik antara lain:
- Rumah minimalis:
- Menggunakan warna netral seperti putih, abu-abu, dan krem untuk dinding dan furnitur.
- Memilih furnitur dengan bentuk sederhana dan multifungsi, seperti sofa bed atau meja lipat.
- Memanfaatkan pencahayaan alami dengan jendela besar dan cermin untuk menciptakan ilusi ruangan yang lebih luas.
- Rumah modern:
- Menggunakan warna-warna bold seperti hitam, putih, dan abu-abu untuk menciptakan kontras yang menarik.
- Memilih furnitur dengan bentuk geometris dan material modern seperti kaca, baja, dan plastik.
- Memanfaatkan pencahayaan buatan dengan lampu LED yang modern dan efisien.
- Rumah klasik:
- Menggunakan warna-warna hangat seperti cokelat, krem, dan biru tua untuk menciptakan suasana yang nyaman.
- Memilih furnitur kayu berukir dengan detail tradisional dan kain pelapis bermotif klasik.
- Memanfaatkan pencahayaan alami dengan jendela berukuran sedang dan lampu gantung dengan desain klasik.
Menentukan Konsep Desain yang Sesuai
Untuk menentukan konsep desain yang sesuai dengan kebutuhan dan gaya hidup penghuni, pertimbangkan beberapa hal berikut:
- Gaya hidup penghuni: Apakah penghuni lebih menyukai suasana yang tenang, modern, atau tradisional?
- Kebutuhan penghuni: Apakah penghuni membutuhkan banyak ruang penyimpanan, ruang kerja, atau ruang tamu yang luas?
- Anggaran: Berapa biaya yang tersedia untuk membangun dan mendekorasi rumah?
Contoh Warna Cat, Bahan Furnitur, dan Aksesoris
| Konsep Desain | Warna Cat | Bahan Furnitur | Aksesoris |
|---|---|---|---|
| Minimalis | Putih, abu-abu, krem | Kayu, metal, plastik | Vas bunga minimalis, lukisan abstrak, tanaman hijau |
| Modern | Hitam, putih, abu-abu, merah | Kaca, baja, plastik | Lampu LED, vas bunga modern, lukisan geometris |
| Klasik | Cokelat, krem, biru tua | Kayu berukir, kain pelapis bermotif | Lampu gantung klasik, lukisan berbingkai, patung klasik |
Inspirasi Desain Rumah 9×6 Meter dengan 2 Kamar Tidur
“Rumah mungil dengan desain yang tepat bisa terasa luas dan nyaman. Manfaatkan ruang vertikal dengan rak dinding, cermin besar, dan pencahayaan yang baik. Ciptakan suasana yang hangat dan personal dengan pemilihan warna, furnitur, dan aksesoris yang tepat.”
Pencahayaan

Pencahayaan adalah elemen penting dalam desain rumah, karena dapat memengaruhi suasana, fungsionalitas, dan keindahan ruangan. Dalam rumah berukuran 9×6 meter dengan dua kamar tidur, pencahayaan yang tepat akan memaksimalkan penggunaan ruang dan menciptakan nuansa yang nyaman dan estetis.
Penempatan Sumber Cahaya
Penempatan sumber cahaya yang ideal akan mempertimbangkan kebutuhan setiap ruangan. Ilustrasi berikut menggambarkan penempatan sumber cahaya yang direkomendasikan untuk rumah 9×6 meter dengan dua kamar tidur:
Ruang Tamu:
- Pencahayaan utama di tengah ruangan, seperti lampu gantung atau lampu sorot.
- Lampu dinding di sisi ruangan untuk pencahayaan tambahan.
- Lampu meja di sudut ruangan untuk menciptakan suasana yang lebih intim.
Dapur:
- Pencahayaan utama di atas area memasak, seperti lampu gantung atau lampu sorot.
- Lampu bawah lemari untuk pencahayaan tambahan di area kerja.
- Lampu gantung di atas meja makan untuk menciptakan suasana yang hangat.
Kamar Tidur:
- Pencahayaan utama di tengah ruangan, seperti lampu gantung atau lampu sorot.
- Lampu dinding di sisi tempat tidur untuk pencahayaan tambahan.
- Lampu meja di samping tempat tidur untuk membaca.
Kamar Mandi:
- Pencahayaan utama di atas wastafel, seperti lampu gantung atau lampu sorot.
- Lampu dinding di sisi cermin untuk pencahayaan tambahan.
- Lampu di atas shower untuk pencahayaan yang lebih terang.
Jenis Pencahayaan
Pencahayaan di rumah 9×6 meter dapat memanfaatkan pencahayaan alami dan buatan. Pencahayaan alami dapat diperoleh melalui jendela dan pintu yang menghadap ke arah yang tepat, sementara pencahayaan buatan dapat digunakan untuk melengkapi dan meningkatkan pencahayaan alami.
Tips Pencahayaan Optimal
Berikut beberapa tips untuk menciptakan pencahayaan yang optimal di rumah 9×6 meter dengan dua kamar tidur:
- Manfaatkan pencahayaan alami sebanyak mungkin dengan menggunakan jendela dan pintu yang besar dan menghadap ke arah yang tepat.
- Gunakan cermin untuk memantulkan cahaya alami dan membuat ruangan tampak lebih terang.
- Pilih warna cat dinding yang terang untuk memantulkan cahaya dan menciptakan suasana yang lebih cerah.
- Gunakan lampu dengan warna cahaya yang sesuai dengan suasana yang ingin diciptakan. Cahaya putih terang cocok untuk area kerja, sementara cahaya kuning hangat cocok untuk ruang tamu dan kamar tidur.
- Atur pencahayaan dengan dimmer untuk menyesuaikan tingkat pencahayaan sesuai kebutuhan.
- Gunakan lampu dengan watt yang sesuai dengan kebutuhan ruangan. Lampu dengan watt yang lebih tinggi akan menghasilkan cahaya yang lebih terang.
Contoh Pencahayaan
| Ruangan | Jenis Lampu | Watt |
|---|---|---|
| Ruang Tamu | Lampu Gantung | 60 watt |
| Lampu Dinding | 40 watt | |
| Lampu Meja | 25 watt | |
| Dapur | Lampu Sorot | 50 watt |
| Lampu Bawah Lemari | 10 watt | |
| Lampu Gantung | 40 watt | |
| Kamar Tidur | Lampu Gantung | 40 watt |
| Lampu Dinding | 25 watt | |
| Lampu Meja | 15 watt | |
| Kamar Mandi | Lampu Gantung | 40 watt |
| Lampu Dinding | 25 watt | |
| Lampu Shower | 20 watt |
Pencahayaan yang tepat dapat membuat rumah tampak lebih luas, lebih menarik, dan lebih fungsional.
Desain rumah 9×6 2 kamar tidur memang mungil, tapi tetap bisa nyaman dan fungsional. Jika kamu butuh lebih banyak ruang, kamu bisa mengintip inspirasi dari desain rumah 10 x 8 lantai 2 yang menawarkan area yang lebih luas. Konsepnya bisa kamu adaptasi untuk desain rumah 9×6 dengan penataan ruang yang cermat dan pemilihan furnitur yang tepat. Ingat, rumah yang nyaman bukan soal luas, tapi bagaimana kamu menata dan memanfaatkannya.
Material Bangunan

Membangun rumah 9×6 meter dengan 2 kamar tidur memerlukan pertimbangan matang terhadap material bangunan yang akan digunakan. Material yang tepat akan menentukan kekuatan, estetika, dan biaya pembangunan rumah Anda. Berikut ini adalah beberapa material bangunan yang cocok untuk rumah 9×6 meter dengan 2 kamar tidur, termasuk material dinding, atap, dan lantai.
Membangun rumah dengan luas 9×6 meter dan 2 kamar tidur bisa jadi tantangan, tapi jangan khawatir! Kamu bisa menciptakan hunian yang nyaman dan estetis dengan konsep desain rumah shabby chic. Sentuhan vintage dan romantis pada interiornya akan memberikan kesan hangat dan personal, cocok untuk kamu yang ingin menghadirkan suasana rumah yang tenang dan penuh karakter. Konsep ini bisa diadaptasi untuk rumah berukuran kecil, lho! Misalnya dengan pemilihan furnitur multifungsi dan pencahayaan yang tepat, kamu tetap bisa memiliki rumah 9×6 meter yang nyaman dan penuh gaya.
Material Dinding
Material dinding yang umum digunakan untuk rumah 9×6 meter dengan 2 kamar tidur meliputi bata merah, bata ringan, beton, dan panel dinding.
- Bata Merah: Bata merah merupakan material dinding yang kuat dan tahan lama. Kelebihannya adalah memiliki daya tahan yang tinggi terhadap api dan cuaca, serta harganya yang relatif terjangkau. Namun, bata merah memiliki bobot yang berat dan membutuhkan waktu yang lebih lama untuk proses pemasangan.
- Bata Ringan: Bata ringan memiliki bobot yang lebih ringan dibandingkan dengan bata merah, sehingga lebih mudah dalam proses pemasangan. Bata ringan juga lebih cepat menyerap air dan lebih tahan terhadap rayap. Namun, bata ringan memiliki kekuatan yang lebih rendah dibandingkan dengan bata merah.
- Beton: Beton merupakan material dinding yang kuat dan tahan lama. Beton juga mudah dibentuk dan dipadukan dengan material lain, seperti batu alam. Namun, beton memiliki biaya yang lebih tinggi dibandingkan dengan bata merah dan bata ringan.
- Panel Dinding: Panel dinding merupakan material dinding yang praktis dan mudah dipasang. Panel dinding tersedia dalam berbagai macam jenis dan desain, sehingga dapat disesuaikan dengan kebutuhan dan selera. Namun, panel dinding memiliki kekuatan yang lebih rendah dibandingkan dengan material dinding lainnya.
Material Atap
Material atap yang umum digunakan untuk rumah 9×6 meter dengan 2 kamar tidur meliputi genteng tanah liat, genteng beton, dan atap baja ringan.
- Genteng Tanah Liat: Genteng tanah liat merupakan material atap yang tahan lama dan memiliki daya tahan yang tinggi terhadap cuaca. Genteng tanah liat juga memiliki nilai estetika yang tinggi dan dapat memberikan kesan tradisional pada rumah. Namun, genteng tanah liat memiliki bobot yang berat dan membutuhkan kerangka atap yang kuat.
- Genteng Beton: Genteng beton merupakan material atap yang lebih ringan dibandingkan dengan genteng tanah liat. Genteng beton juga memiliki daya tahan yang tinggi terhadap cuaca dan mudah dalam proses pemasangan. Namun, genteng beton memiliki nilai estetika yang lebih rendah dibandingkan dengan genteng tanah liat.
- Atap Baja Ringan: Atap baja ringan merupakan material atap yang ringan dan mudah dipasang. Atap baja ringan juga memiliki daya tahan yang tinggi terhadap cuaca dan tahan terhadap rayap. Namun, atap baja ringan memiliki nilai estetika yang lebih rendah dibandingkan dengan material atap lainnya.
Material Lantai
Material lantai yang umum digunakan untuk rumah 9×6 meter dengan 2 kamar tidur meliputi keramik, granit, kayu, dan vinyl.
- Keramik: Keramik merupakan material lantai yang tahan lama, mudah dibersihkan, dan memiliki nilai estetika yang tinggi. Keramik tersedia dalam berbagai macam jenis dan desain, sehingga dapat disesuaikan dengan kebutuhan dan selera. Namun, keramik memiliki permukaan yang keras dan dapat terasa dingin saat disentuh.
- Granit: Granit merupakan material lantai yang kuat, tahan lama, dan memiliki nilai estetika yang tinggi. Granit juga tahan terhadap goresan dan noda. Namun, granit memiliki harga yang lebih tinggi dibandingkan dengan keramik.
- Kayu: Kayu merupakan material lantai yang hangat dan nyaman. Kayu juga memiliki nilai estetika yang tinggi dan dapat memberikan kesan natural pada rumah. Namun, kayu memiliki harga yang lebih tinggi dibandingkan dengan material lantai lainnya dan rentan terhadap rayap dan jamur.
- Vinyl: Vinyl merupakan material lantai yang mudah dipasang dan dibersihkan. Vinyl juga tahan terhadap air dan noda. Namun, vinyl memiliki daya tahan yang lebih rendah dibandingkan dengan material lantai lainnya.
Perbandingan Material Bangunan
| Material | Harga | Ketahanan | Estetika |
|---|---|---|---|
| Bata Merah | Terjangkau | Tinggi | Tradisional |
| Bata Ringan | Terjangkau | Sedang | Modern |
| Beton | Mahal | Tinggi | Modern |
| Panel Dinding | Sedang | Sedang | Modern |
| Genteng Tanah Liat | Mahal | Tinggi | Tradisional |
| Genteng Beton | Sedang | Tinggi | Modern |
| Atap Baja Ringan | Terjangkau | Tinggi | Modern |
| Keramik | Terjangkau | Tinggi | Beragam |
| Granit | Mahal | Tinggi | Beragam |
| Kayu | Mahal | Sedang | Natural |
| Vinyl | Terjangkau | Sedang | Beragam |
Tips Memilih Material Bangunan yang Berkualitas dan Ramah Lingkungan
Berikut ini adalah beberapa tips memilih material bangunan yang berkualitas dan ramah lingkungan:
- Pilih material bangunan yang tahan lama dan mudah dirawat, sehingga dapat mengurangi biaya pemeliharaan dan penggantian di masa depan.
- Pilih material bangunan yang terbuat dari bahan daur ulang atau bahan alami yang mudah terurai, sehingga dapat mengurangi dampak negatif terhadap lingkungan.
- Pertimbangkan penggunaan material bangunan lokal, sehingga dapat mengurangi emisi karbon akibat transportasi dan mendukung perekonomian lokal.
- Pilih material bangunan yang memiliki sertifikasi ramah lingkungan, seperti LEED atau Green Building Council.
“Memilih material bangunan yang tepat sangat penting untuk desain rumah, karena akan menentukan kualitas, estetika, dan biaya pembangunan rumah Anda. Selain itu, memilih material bangunan yang ramah lingkungan juga penting untuk menjaga kelestarian lingkungan dan kesehatan penghuni rumah.”
Furniture dan Dekorasi

Memilih furnitur dan dekorasi yang tepat adalah langkah penting dalam menciptakan rumah 9×6 meter dengan 2 kamar tidur yang nyaman dan fungsional. Furnitur yang dipilih harus sesuai dengan konsep desain dan gaya hidup penghuni, serta mempertimbangkan ukuran ruangan agar tidak terasa sempit.
Daftar Furnitur Ideal
Berikut adalah daftar furnitur ideal untuk setiap ruangan di rumah 9×6 meter dengan 2 kamar tidur:
- Ruang Tamu:
- Sofa 2 seater (panjang 1,5 meter) untuk duduk santai dan menerima tamu.
- Meja kopi (panjang 80 cm, lebar 60 cm) untuk meletakkan minuman dan makanan ringan.
- Rak dinding (panjang 1 meter) untuk menyimpan buku, pajangan, atau aksesoris.
- Cermin (panjang 60 cm) untuk memberikan kesan ruangan lebih luas.
- Kamar Tidur Utama:
- Kasur (ukuran 160×200 cm) untuk tidur yang nyaman.
- Nakas (panjang 50 cm, lebar 40 cm) untuk meletakkan lampu tidur, buku, atau aksesoris.
- Lemari pakaian (panjang 1,5 meter, lebar 60 cm) untuk menyimpan pakaian dan barang-barang pribadi.
- Cermin (panjang 80 cm) untuk berdandan dan memberikan kesan ruangan lebih luas.
- Kamar Tidur Kedua:
- Kasur (ukuran 120×200 cm) untuk tidur yang nyaman.
- Meja belajar (panjang 1 meter, lebar 60 cm) untuk bekerja atau belajar.
- Kursi belajar (ukuran standar) untuk duduk nyaman saat belajar atau bekerja.
- Lemari pakaian (panjang 1 meter, lebar 50 cm) untuk menyimpan pakaian dan barang-barang pribadi.
- Dapur:
- Kabinet dapur (panjang 2 meter) untuk menyimpan peralatan masak dan bahan makanan.
- Meja makan (panjang 1,2 meter, lebar 80 cm) untuk makan bersama keluarga.
- Kursi makan (4 buah) untuk duduk nyaman saat makan.
- Kamar Mandi:
- Rak dinding (panjang 60 cm) untuk menyimpan perlengkapan mandi.
- Cermin (panjang 60 cm) untuk bercermin.
- Rak handuk (panjang 40 cm) untuk menggantung handuk.
Memilih Furnitur yang Tepat
Memilih furnitur yang tepat untuk rumah 9×6 meter dengan 2 kamar tidur sangat penting untuk menciptakan suasana yang nyaman dan fungsional. Berikut adalah beberapa tips yang dapat membantu:
- Pertimbangkan konsep desain: Pastikan furnitur yang dipilih sesuai dengan konsep desain rumah. Misalnya, jika konsep desain rumah minimalis, pilih furnitur dengan desain sederhana dan warna netral.
- Sesuaikan dengan gaya hidup: Pertimbangkan gaya hidup penghuni. Jika penghuni gemar membaca, pilih sofa yang nyaman dan rak buku yang besar. Jika penghuni suka memasak, pilih kabinet dapur yang luas dan meja makan yang besar.
- Perhatikan ukuran ruangan: Pilih furnitur yang sesuai dengan ukuran ruangan agar tidak terasa sempit. Hindari membeli furnitur yang terlalu besar atau terlalu banyak.
- Pilih furnitur multifungsi: Pilih furnitur yang memiliki fungsi ganda untuk menghemat ruang. Misalnya, sofa bed yang bisa diubah menjadi tempat tidur atau meja lipat yang bisa digunakan sebagai meja kerja.
Contoh Furnitur
Berikut adalah tabel contoh furnitur yang cocok untuk setiap ruangan di rumah 9×6 meter dengan 2 kamar tidur:
| Ruangan | Jenis Furnitur | Bahan | Harga (Estimasi) |
|---|---|---|---|
| Ruang Tamu | Sofa 2 Seater | Kayu jati | Rp 5.000.000 – Rp 10.000.000 |
| Ruang Tamu | Meja Kopi | Kaca dan besi | Rp 1.000.000 – Rp 3.000.000 |
| Kamar Tidur Utama | Kasur | Busa dan kain | Rp 3.000.000 – Rp 8.000.000 |
| Kamar Tidur Utama | Lemari Pakaian | Kayu jati | Rp 4.000.000 – Rp 10.000.000 |
| Kamar Tidur Kedua | Meja Belajar | Kayu dan besi | Rp 1.500.000 – Rp 4.000.000 |
| Kamar Tidur Kedua | Lemari Pakaian | MDF | Rp 2.000.000 – Rp 5.000.000 |
| Dapur | Kabinet Dapur | MDF dan laminate | Rp 5.000.000 – Rp 15.000.000 |
| Dapur | Meja Makan | Kayu | Rp 2.000.000 – Rp 5.000.000 |
Tips Dekorasi, Desain rumah 9×6 2 kamar tidur
Dekorasi yang menarik dan fungsional dapat mempercantik rumah 9×6 meter dengan 2 kamar tidur. Gunakan dekorasi yang sesuai dengan konsep desain dan gaya hidup penghuni. Pilih dekorasi yang tidak terlalu banyak agar ruangan tidak terasa penuh. Gunakan cermin untuk memberikan kesan ruangan lebih luas. Manfaatkan ruang vertikal dengan memasang rak dinding atau cermin. Gunakan warna-warna cerah untuk memberikan kesan ruangan lebih luas.
Membangun rumah 9×6 meter dengan 2 kamar tidur membutuhkan perencanaan yang matang, tetapi hasilnya akan sepadan. Dengan desain yang tepat, Anda dapat memiliki hunian yang nyaman, efisien, dan penuh gaya. Ingat, kunci utama adalah memaksimalkan setiap sudut ruangan dan memilih furniture yang multifungsi. Selamat mendesain rumah impian Anda!
Bagian Pertanyaan Umum (FAQ)
Apakah desain rumah 9×6 meter dengan 2 kamar tidur memungkinkan untuk memiliki ruang tamu?
Ya, Anda tetap bisa memiliki ruang tamu dengan desain yang tepat. Anda dapat menggabungkan fungsi ruang tamu dan ruang makan menjadi satu ruangan, atau memilih furniture multifungsi yang dapat dilipat atau digeser.
Bagaimana cara memaksimalkan pencahayaan alami di rumah 9×6 meter?
Pastikan jendela berada di sisi yang terkena sinar matahari langsung. Gunakan cermin untuk memantulkan cahaya alami ke area yang lebih gelap. Anda juga dapat menggunakan kaca berwarna bening untuk jendela agar cahaya dapat masuk dengan maksimal.

