Desain Rumah 9×12 3 Kamar Panduan Lengkap untuk Hunian Nyaman

Desain rumah 9x12 3 kamar

Memiliki rumah impian dengan tiga kamar tidur di lahan terbatas seluas 9×12 meter? Tentu bisa! Desain rumah 9×12 3 kamar menawarkan solusi cerdas untuk menciptakan hunian nyaman dan fungsional. Dengan perencanaan yang tepat, Anda dapat memaksimalkan setiap sudut dan menciptakan ruangan yang ideal untuk keluarga Anda.

Artikel ini akan membahas berbagai aspek desain rumah 9×12 3 kamar, mulai dari denah yang optimal, inspirasi desain interior, tips membangun, hingga konsep arsitektur yang menarik. Simak panduan lengkap ini untuk mewujudkan rumah impian Anda!

Desain Rumah 9×12 3 Kamar

Desain rumah 9x12 3 kamar

Membangun rumah dengan luas 9×12 meter yang memuat 3 kamar tidur memang menantang, tetapi bukan tidak mungkin. Desain rumah ini cocok untuk keluarga kecil atau pasangan yang menginginkan hunian nyaman dan fungsional. Konsep dasar desain rumah 9×12 meter 3 kamar tidur adalah memaksimalkan ruang dan meminimalisir pemborosan. Tata letak ruangan yang efisien, pemilihan furnitur multifungsi, dan penggunaan warna terang akan membantu menciptakan ilusi ruangan yang lebih luas.

Desain rumah 9×12 dengan 3 kamar tidur bisa menjadi pilihan yang ideal untuk keluarga kecil. Namun, jika Anda menginginkan kombinasi fungsi hunian dan bisnis, konsep desain rumah plus toko 1 lantai bisa menjadi solusi yang menarik. Konsep ini memungkinkan Anda untuk memiliki toko di bagian depan rumah, sementara area belakang didedikasikan untuk hunian. Tentu saja, desain rumah 9×12 dengan 3 kamar tetap bisa diterapkan dengan penataan yang cermat dan penambahan ruang multifungsi.

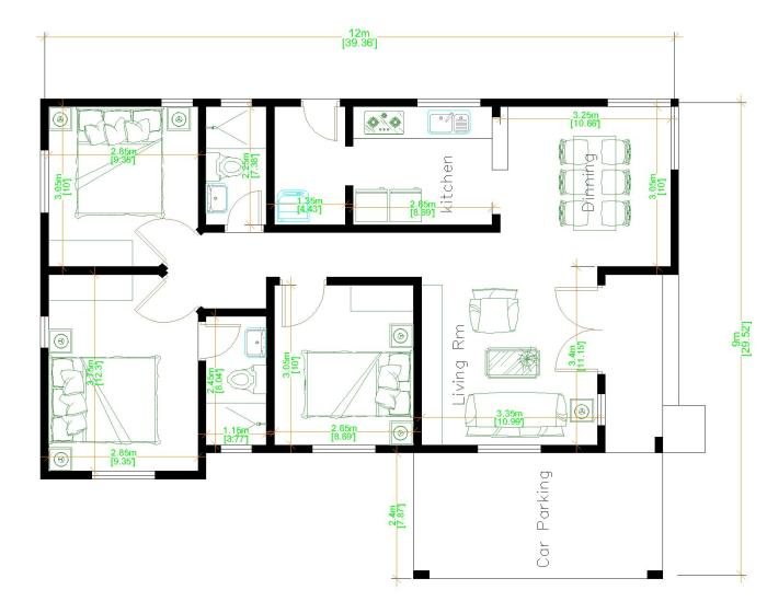
Contoh Denah Rumah 9×12 Meter dengan 3 Kamar Tidur

Berikut adalah contoh denah rumah 9×12 meter dengan 3 kamar tidur yang optimal:

  • Ruang tamu terletak di bagian depan rumah, dekat dengan pintu masuk. Ruang tamu dapat dikombinasikan dengan ruang makan untuk memaksimalkan penggunaan ruang.
  • Dapur berada di samping ruang tamu, dilengkapi dengan meja makan kecil yang dapat berfungsi sebagai tempat makan informal.
  • Tiga kamar tidur terletak di bagian belakang rumah, dengan ukuran yang disesuaikan dengan kebutuhan. Kamar tidur utama biasanya lebih besar dan memiliki kamar mandi pribadi.
  • Kamar mandi utama terletak di dekat kamar tidur utama, sementara kamar mandi kedua dapat diakses dari area umum.

Tata Letak Ruangan dalam Denah Rumah 9×12 Meter dengan 3 Kamar Tidur

Berikut adalah rincian tata letak ruangan dalam denah rumah 9×12 meter dengan 3 kamar tidur:

  • Ruang Tamu: Ruang tamu dapat didekorasi dengan sofa minimalis dan meja kopi. Tambahkan cermin besar untuk menciptakan ilusi ruangan yang lebih luas.
  • Ruang Makan: Ruang makan dapat dikombinasikan dengan ruang tamu atau terletak di area terpisah. Gunakan meja makan bulat atau persegi panjang dengan ukuran yang sesuai dengan ruang.
  • Dapur: Dapur sebaiknya didesain dengan konsep minimalis dan fungsional. Gunakan lemari gantung dan rak dinding untuk menyimpan peralatan dapur.
  • Kamar Tidur Utama: Kamar tidur utama dapat didekorasi dengan tempat tidur king size, lemari pakaian besar, dan meja rias. Gunakan warna-warna netral seperti putih atau abu-abu untuk menciptakan suasana yang tenang dan nyaman.
  • Kamar Tidur Anak: Kamar tidur anak dapat didekorasi dengan tempat tidur single atau double, lemari pakaian kecil, dan meja belajar. Gunakan warna-warna cerah dan ceria untuk menciptakan suasana yang menyenangkan.
  • Kamar Tidur Tamu: Kamar tidur tamu dapat didekorasi dengan tempat tidur single atau double, lemari pakaian kecil, dan meja rias. Gunakan warna-warna netral seperti putih atau abu-abu untuk menciptakan suasana yang nyaman.
  • Kamar Mandi: Kamar mandi sebaiknya didesain dengan konsep minimalis dan fungsional. Gunakan shower atau bathtub, wastafel, dan toilet yang hemat air.

Penempatan Furnitur dalam Setiap Ruangan pada Denah Rumah 9×12 Meter dengan 3 Kamar Tidur

Penempatan furnitur dalam setiap ruangan sangat penting untuk memaksimalkan ruang dan menciptakan aliran sirkulasi yang lancar. Berikut adalah contoh penempatan furnitur dalam setiap ruangan:

  • Ruang Tamu: Sofa dapat diletakkan di dekat jendela, sementara meja kopi dapat diletakkan di tengah ruangan. Tambahkan cermin besar di dinding untuk menciptakan ilusi ruangan yang lebih luas.
  • Ruang Makan: Meja makan dapat diletakkan di tengah ruangan, dengan kursi yang mengelilinginya. Tambahkan lampu gantung di atas meja makan untuk menciptakan suasana yang hangat dan nyaman.
  • Dapur: Lemari gantung dapat dipasang di atas meja dapur, sementara rak dinding dapat digunakan untuk menyimpan peralatan dapur. Gunakan meja dapur yang multifungsi, seperti meja lipat atau meja geser.
  • Kamar Tidur Utama: Tempat tidur dapat diletakkan di tengah ruangan, dengan lemari pakaian di sisi kiri dan meja rias di sisi kanan. Gunakan lampu tidur di samping tempat tidur untuk menciptakan suasana yang nyaman.
  • Kamar Tidur Anak: Tempat tidur dapat diletakkan di dekat jendela, dengan lemari pakaian di sisi kiri dan meja belajar di sisi kanan. Gunakan warna-warna cerah dan ceria untuk menciptakan suasana yang menyenangkan.
  • Kamar Tidur Tamu: Tempat tidur dapat diletakkan di dekat jendela, dengan lemari pakaian di sisi kiri dan meja rias di sisi kanan. Gunakan warna-warna netral seperti putih atau abu-abu untuk menciptakan suasana yang nyaman.
  • Kamar Mandi: Shower atau bathtub dapat diletakkan di dekat dinding, dengan wastafel dan toilet di sisi lainnya. Gunakan cermin besar di atas wastafel untuk menciptakan ilusi ruangan yang lebih luas.

Tabel Perbandingan Denah Rumah 9×12 Meter dengan 3 Kamar Tidur dengan Variasi Tata Letak Ruangan

Berikut adalah tabel perbandingan denah rumah 9×12 meter dengan 3 kamar tidur dengan variasi tata letak ruangan:

Denah Tata Letak Ruangan Kelebihan Kekurangan
Denah 1 Ruang tamu, ruang makan, dapur di depan, 3 kamar tidur di belakang Memisahkan area publik dan privat Ruang tamu dan ruang makan mungkin terasa sempit
Denah 2 Ruang tamu, dapur, 1 kamar tidur di depan, 2 kamar tidur di belakang Membuat ruang tamu dan dapur lebih luas Kamar tidur utama mungkin terasa jauh dari area umum
Denah 3 Ruang tamu, ruang makan, 1 kamar tidur di depan, 2 kamar tidur di belakang Membuat ruang tamu dan ruang makan lebih luas, kamar tidur utama dekat dengan area umum Kamar tidur anak mungkin terasa sempit

Inspirasi Desain Interior

Desain rumah 9x12 3 kamar

Memiliki rumah 9×12 meter dengan 3 kamar tidur tentu membutuhkan perencanaan desain interior yang matang agar setiap ruangan terasa nyaman dan fungsional. Ada banyak inspirasi desain interior yang bisa Anda terapkan, mulai dari gaya minimalis, modern, hingga klasik.

Membangun rumah 9×12 dengan 3 kamar tidur memang menantang, tapi jangan khawatir! Kamu bisa memanfaatkan software desain rumah untuk merencanakan tata letak yang optimal. Software ini akan membantumu memvisualisasikan setiap ruangan, mengatur aliran sirkulasi, dan menentukan penempatan furnitur dengan tepat. Hasilnya, kamu akan mendapatkan desain rumah 9×12 3 kamar yang nyaman, fungsional, dan sesuai dengan impianmu.

Inspirasi Desain Interior untuk Setiap Ruangan

Berikut beberapa inspirasi desain interior untuk setiap ruangan di rumah 9×12 meter dengan 3 kamar tidur:

  • Ruang Tamu: Untuk ruangan ini, Anda bisa memilih desain minimalis dengan warna-warna netral seperti putih, abu-abu, dan cokelat. Tambahkan sentuhan warna cerah melalui bantal sofa atau lukisan di dinding. Untuk menciptakan kesan lapang, gunakan cermin besar di dinding.
  • Kamar Tidur Utama: Kamar tidur utama bisa didekorasi dengan gaya modern yang elegan. Gunakan warna-warna lembut seperti biru muda, hijau muda, atau peach. Pilihlah tempat tidur dengan headboard yang menarik dan tambahkan lampu tidur dengan desain minimalis.
  • Kamar Tidur Anak: Sesuaikan desain interior kamar anak dengan kepribadian dan hobinya. Jika anak Anda menyukai warna-warna cerah, gunakan warna pink, biru, atau kuning. Jika anak Anda menyukai desain minimalis, gunakan warna-warna netral dan tambahkan dekorasi yang unik.
  • Kamar Mandi: Gunakan warna-warna netral seperti putih, abu-abu, atau cokelat untuk menciptakan kesan bersih dan luas. Pilihlah keramik dengan motif minimalis dan tambahkan cermin besar di dinding.
  • Dapur: Dapur dengan desain minimalis akan membuat ruangan terasa lebih luas. Gunakan warna-warna netral seperti putih, abu-abu, atau hitam. Tambahkan sentuhan warna cerah melalui kitchen set atau aksesoris dapur.

Contoh Tabel Inspirasi Desain Interior

Berikut contoh tabel inspirasi desain interior dengan tema berbeda untuk setiap ruangan:

Ruangan Tema Warna Material Contoh Dekorasi
Ruang Tamu Minimalis Putih, abu-abu, cokelat Kayu, rotan, besi Sofa minimalis, meja kopi kayu, lukisan abstrak
Kamar Tidur Utama Modern Biru muda, hijau muda, peach Kain linen, kayu, kaca Tempat tidur dengan headboard minimalis, lampu tidur dengan desain unik, cermin bulat
Kamar Tidur Anak Ceria Pink, biru, kuning Kain katun, plastik, kayu Tempat tidur bertema, rak buku warna-warni, karpet bulu
Kamar Mandi Klasik Putih, krem, cokelat Marmer, kayu, keramik Bak mandi klasik, wastafel dengan desain vintage, cermin dengan bingkai kayu
Dapur Industrial Hitam, abu-abu, cokelat Besi, beton, kayu Kitchen set dengan desain industrial, lampu gantung dengan desain minimalis, rak terbuka

Penggunaan Warna dan Material dalam Desain Interior

Pemilihan warna dan material sangat penting dalam desain interior. Berikut beberapa contoh penggunaan warna dan material dalam desain interior rumah 9×12 meter dengan 3 kamar tidur:

  • Warna: Gunakan warna-warna netral seperti putih, abu-abu, dan cokelat sebagai warna dasar. Tambahkan warna-warna cerah seperti biru, hijau, atau kuning untuk menciptakan aksen.
  • Material: Pilihlah material yang tahan lama dan mudah dibersihkan, seperti kayu, keramik, dan kaca. Anda juga bisa menggunakan material yang ramah lingkungan seperti bambu dan rotan.

Contoh Pencahayaan dan Ventilasi yang Optimal

Pencahayaan dan ventilasi yang baik sangat penting untuk menciptakan suasana yang nyaman di dalam rumah. Berikut contoh pencahayaan dan ventilasi yang optimal untuk rumah 9×12 meter dengan 3 kamar tidur:

  • Pencahayaan: Gunakan pencahayaan alami sebanyak mungkin dengan memasang jendela yang besar. Tambahkan lampu LED di setiap ruangan untuk pencahayaan tambahan.
  • Ventilasi: Pastikan rumah memiliki ventilasi yang baik dengan memasang jendela dan pintu yang bisa dibuka. Anda juga bisa memasang kipas angin di setiap ruangan.

Tips Membangun Rumah 9×12 Meter 3 Kamar

Desain rumah 9x12 3 kamar

Membangun rumah 9×12 meter dengan 3 kamar tidur bisa menjadi proyek yang menantang, tetapi juga sangat memuaskan. Dengan perencanaan yang matang dan pemilihan bahan bangunan yang tepat, Anda dapat mewujudkan rumah impian Anda dengan budget yang terkendali.

Desain rumah 9×12 dengan 3 kamar memang menantang, tapi bisa banget diatasi dengan kreativitas. Kalau kamu tertarik dengan desain yang simpel dan elegan, mungkin bisa mengintip inspirasi dari desain rumah arab minimalis. Desain rumah arab minimalis seringkali memadukan elemen tradisional dengan sentuhan modern, menciptakan suasana yang unik dan nyaman. Konsep ini bisa kamu adopsi untuk desain rumah 9×12 3 kamarmu, lho! Dengan sedikit penyesuaian, kamu bisa menghadirkan nuansa khas Timur Tengah yang menawan di hunianmu.

Memilih Bahan Bangunan yang Tepat

Memilih bahan bangunan yang tepat sangat penting untuk memastikan rumah Anda kuat, tahan lama, dan sesuai dengan budget Anda. Berikut beberapa tips untuk memilih bahan bangunan yang tepat:

  • Struktur: Untuk struktur rumah, Anda bisa memilih beton bertulang atau baja ringan. Beton bertulang lebih kuat dan tahan lama, sedangkan baja ringan lebih ringan dan mudah dipasang. Pertimbangkan faktor seperti kekuatan gempa di daerah Anda dan budget Anda untuk memilih material yang tepat.
  • Dinding: Untuk dinding, Anda bisa memilih batu bata, batako, atau panel dinding. Batu bata dan batako lebih kuat dan tahan lama, sedangkan panel dinding lebih ringan dan mudah dipasang. Pertimbangkan faktor seperti estetika, tingkat isolasi, dan budget Anda.
  • Atap: Untuk atap, Anda bisa memilih genteng tanah liat, genteng beton, atau atap metal. Genteng tanah liat lebih estetis dan tahan lama, sedangkan genteng beton lebih murah dan mudah dipasang. Atap metal lebih ringan dan tahan karat. Pertimbangkan faktor seperti estetika, budget, dan iklim di daerah Anda.
  • Lantai: Untuk lantai, Anda bisa memilih keramik, granit, atau kayu. Keramik dan granit lebih tahan lama dan mudah dibersihkan, sedangkan kayu lebih estetis dan hangat. Pertimbangkan faktor seperti budget, gaya hidup Anda, dan tingkat kelembapan di rumah Anda.

Langkah-Langkah Membangun Rumah 9×12 Meter 3 Kamar

Membangun rumah 9×12 meter dengan 3 kamar tidur memerlukan langkah-langkah yang sistematis untuk memastikan proses pembangunan berjalan lancar dan sesuai dengan rencana. Berikut adalah langkah-langkah yang perlu Anda perhatikan:

  1. Persiapan: Langkah pertama adalah mempersiapkan lahan dan mendapatkan izin pembangunan. Pastikan lahan Anda sudah siap dan sesuai dengan persyaratan yang ditetapkan oleh pemerintah. Anda juga perlu mengajukan izin pembangunan ke instansi terkait.
  2. Desain: Setelah mendapatkan izin pembangunan, Anda bisa mulai mendesain rumah Anda. Konsultasikan dengan arsitek untuk mendapatkan desain yang sesuai dengan kebutuhan dan budget Anda. Pastikan desain rumah Anda sudah mencakup semua ruangan yang Anda inginkan, termasuk 3 kamar tidur, ruang tamu, ruang makan, dapur, dan kamar mandi.
  3. Pembuatan Pondasi: Setelah desain selesai, Anda bisa mulai membuat pondasi. Pondasi adalah bagian yang sangat penting karena berfungsi sebagai dasar rumah Anda. Pastikan pondasi dibuat dengan kuat dan sesuai dengan desain rumah Anda.
  4. Pembuatan Struktur: Setelah pondasi selesai, Anda bisa mulai membuat struktur rumah. Struktur rumah terdiri dari kolom, balok, dan rangka atap. Pastikan struktur rumah dibuat dengan kuat dan sesuai dengan desain rumah Anda.
  5. Pemasangan Dinding: Setelah struktur selesai, Anda bisa mulai memasang dinding. Dinding bisa terbuat dari batu bata, batako, atau panel dinding. Pastikan dinding dipasang dengan rapi dan kuat.
  6. Pemasangan Atap: Setelah dinding selesai, Anda bisa mulai memasang atap. Atap bisa terbuat dari genteng tanah liat, genteng beton, atau atap metal. Pastikan atap dipasang dengan rapi dan kuat.
  7. Finishing: Setelah atap selesai, Anda bisa mulai melakukan finishing. Finishing meliputi pemasangan lantai, cat, pintu, jendela, dan instalasi listrik dan air.

Perkiraan Biaya Pembangunan, Desain rumah 9×12 3 kamar

Berikut tabel perkiraan biaya pembangunan rumah 9×12 meter dengan 3 kamar tidur:

Item Biaya (Rp)
Persiapan dan Izin 5.000.000 – 10.000.000
Desain 5.000.000 – 15.000.000
Pondasi 20.000.000 – 40.000.000
Struktur 30.000.000 – 60.000.000
Dinding 20.000.000 – 40.000.000
Atap 15.000.000 – 30.000.000
Finishing 30.000.000 – 60.000.000
Total 125.000.000 – 255.000.000

Pentingnya Konsultasi dengan Arsitek

Konsultasi dengan arsitek sangat penting dalam membangun rumah 9×12 meter dengan 3 kamar tidur. Arsitek dapat membantu Anda dalam:

  • Mendesain rumah yang sesuai dengan kebutuhan dan budget Anda. Arsitek dapat membantu Anda merencanakan tata letak ruangan, memilih material yang tepat, dan memastikan desain rumah Anda sesuai dengan peraturan bangunan.
  • Membuat desain rumah yang efisien dan fungsional. Arsitek dapat membantu Anda memaksimalkan ruang dan membuat rumah Anda lebih nyaman dan mudah diakses.
  • Menghindari kesalahan dalam pembangunan. Arsitek dapat membantu Anda dalam mengidentifikasi potensi masalah dan menemukan solusi yang tepat.
  • Menghasilkan rumah yang estetis dan berkualitas. Arsitek dapat membantu Anda dalam memilih material dan desain yang sesuai dengan selera Anda dan memastikan rumah Anda memiliki nilai estetika yang tinggi.

Perencanaan Anggaran dan Timeline

Membuat perencanaan anggaran dan timeline yang realistis sangat penting untuk memastikan proyek pembangunan rumah Anda berjalan sesuai rencana. Berikut adalah contoh perencanaan anggaran dan timeline untuk membangun rumah 9×12 meter dengan 3 kamar tidur:

Perencanaan Anggaran

  • Persiapan dan Izin: Rp 10.000.000
  • Desain: Rp 10.000.000
  • Pondasi: Rp 30.000.000
  • Struktur: Rp 40.000.000
  • Dinding: Rp 25.000.000
  • Atap: Rp 20.000.000
  • Finishing: Rp 45.000.000
  • Total: Rp 180.000.000

Timeline

  • Persiapan dan Izin: 1 bulan
  • Desain: 1 bulan
  • Pondasi: 2 bulan
  • Struktur: 2 bulan
  • Dinding: 1 bulan
  • Atap: 1 bulan
  • Finishing: 3 bulan
  • Total: 11 bulan

Konsep Arsitektur Rumah 9×12 Meter 3 Kamar: Desain Rumah 9×12 3 Kamar

Desain rumah 9x12 3 kamar

Membangun rumah dengan luas terbatas seperti 9×12 meter dengan 3 kamar tidur membutuhkan perencanaan yang matang. Konsep arsitektur yang tepat dapat memaksimalkan ruang dan menciptakan hunian yang nyaman dan fungsional. Berikut adalah beberapa konsep arsitektur yang cocok untuk rumah 9×12 meter dengan 3 kamar tidur.

Contoh Desain Eksterior Rumah 9×12 Meter dengan 3 Kamar Tidur

Desain eksterior rumah 9×12 meter dengan 3 kamar tidur dapat divariasikan dengan berbagai gaya arsitektur. Misalnya, gaya minimalis modern dengan fasad bersih dan sederhana, atau gaya tropis dengan penggunaan material kayu dan tanaman hijau.

  • Gaya Minimalis Modern: Rumah dengan fasad sederhana, garis tegas, dan penggunaan material seperti batu alam dan kaca. Warna-warna netral seperti putih, abu-abu, dan hitam dapat digunakan untuk menciptakan kesan minimalis.
  • Gaya Tropis: Rumah dengan penggunaan material kayu dan batu alam, serta banyak tanaman hijau. Atap miring dengan ventilasi yang baik dapat membantu sirkulasi udara dan mengurangi panas.
  • Gaya Mediterania: Rumah dengan fasad yang lebih ramai, penggunaan batu bata, dan atap genting. Warna-warna hangat seperti kuning, oranye, dan merah dapat digunakan untuk menciptakan suasana Mediterania.

Tabel Perbandingan Desain Eksterior Rumah 9×12 Meter dengan 3 Kamar Tidur

Berikut tabel perbandingan desain eksterior rumah 9×12 meter dengan 3 kamar tidur dengan berbagai gaya arsitektur:

Gaya Arsitektur Ciri Khas Contoh Material Contoh Warna
Minimalis Modern Fasad sederhana, garis tegas, material modern Batu alam, kaca, beton Putih, abu-abu, hitam
Tropis Material kayu dan batu alam, banyak tanaman hijau Kayu, batu alam, bambu Hijau, cokelat, krem
Mediterania Fasad ramai, batu bata, atap genting Batu bata, genting, kayu Kuning, oranye, merah

Penggunaan Material dan Warna pada Eksterior Rumah 9×12 Meter dengan 3 Kamar Tidur

Pemilihan material dan warna pada eksterior rumah 9×12 meter dengan 3 kamar tidur sangat penting untuk menciptakan kesan yang menarik dan sesuai dengan konsep arsitektur yang dipilih. Berikut adalah beberapa contoh penggunaan material dan warna:

  • Gaya Minimalis Modern: Batu alam untuk dinding, kaca untuk jendela, dan beton untuk teras. Warna-warna netral seperti putih, abu-abu, dan hitam dapat digunakan untuk menciptakan kesan minimalis.
  • Gaya Tropis: Kayu untuk dinding dan atap, batu alam untuk teras, dan tanaman hijau untuk taman. Warna-warna hangat seperti cokelat, krem, dan hijau dapat digunakan untuk menciptakan suasana tropis.
  • Gaya Mediterania: Batu bata untuk dinding, genting untuk atap, dan kayu untuk jendela. Warna-warna hangat seperti kuning, oranye, dan merah dapat digunakan untuk menciptakan suasana Mediterania.

Contoh Taman dan Landscaping yang Sesuai untuk Rumah 9×12 Meter dengan 3 Kamar Tidur

Taman dan landscaping dapat mempercantik eksterior rumah dan menciptakan suasana yang nyaman. Berikut adalah beberapa contoh taman dan landscaping yang sesuai untuk rumah 9×12 meter dengan 3 kamar tidur:

  • Taman Minimalis: Taman dengan desain sederhana, penggunaan tanaman hijau yang sedikit, dan material seperti batu alam dan kayu. Taman minimalis cocok untuk rumah dengan konsep arsitektur minimalis modern.
  • Taman Tropis: Taman dengan banyak tanaman hijau, kolam ikan, dan air mancur. Taman tropis cocok untuk rumah dengan konsep arsitektur tropis.
  • Taman Mediterania: Taman dengan tanaman berbunga, pergola, dan patung. Taman Mediterania cocok untuk rumah dengan konsep arsitektur Mediterania.

Membangun rumah 9×12 3 kamar membutuhkan pertimbangan matang, mulai dari desain, konstruksi, hingga anggaran. Dengan perencanaan yang cermat dan konsultasi dengan arsitek berpengalaman, Anda dapat menciptakan hunian yang nyaman, fungsional, dan sesuai dengan kebutuhan keluarga. Ingat, rumah impian bukan hanya tentang ukuran, tetapi juga tentang keharmonisan dan kepuasan penghuninya.

Bagian Pertanyaan Umum (FAQ)

Bagaimana cara memaksimalkan pencahayaan alami di rumah 9×12 3 kamar?

Gunakan jendela besar, skylight, atau kaca transparan di dinding untuk memaksimalkan cahaya alami.

Apakah ada tips untuk menghemat biaya pembangunan rumah 9×12 3 kamar?

Pilih bahan bangunan yang ekonomis namun berkualitas, seperti batu bata ringan atau kayu olahan.

Leave a Comment

Your email address will not be published. Required fields are marked *

Scroll to Top