Membangun rumah impian dengan lahan terbatas? Desain rumah 6×7 meter bisa menjadi solusi ideal. Meskipun terkesan mungil, rumah dengan ukuran ini tetap dapat dirancang dengan fungsional dan estetis, memberikan kenyamanan bagi penghuninya. Artikel ini akan memandu Anda dalam merancang rumah 6×7 meter yang sesuai dengan kebutuhan dan gaya hidup Anda, mulai dari konsep minimalis hingga inspirasi desain interior dan eksterior.
Anda akan menemukan beragam ide kreatif untuk memaksimalkan ruang, memilih material yang tepat, dan menciptakan suasana yang nyaman dan harmonis di dalam rumah. Selain itu, kami juga akan memberikan tips membangun rumah 6×7 meter dengan budget terbatas, serta contoh desain yang dapat Anda jadikan referensi.
Desain Rumah Minimalis 6×7

Desain rumah minimalis 6×7 meter menawarkan solusi cerdas untuk membangun hunian yang nyaman dan fungsional di lahan terbatas. Konsep minimalis yang diterapkan pada desain rumah ini menekankan pada efisiensi ruang, penggunaan material yang hemat, dan penataan yang sederhana namun tetap estetis.
Desain rumah 6×7 memang menantang, tapi tetap bisa dimaksimalkan dengan berbagai solusi kreatif. Salah satu ide yang menarik adalah memanfaatkan konsep mezzanine untuk menambah ruang. Ingin tahu seperti apa? Coba cek desain rumah mezzanine 6×10 yang bisa jadi inspirasi! Dengan mezzanine, kamu bisa mendapatkan ruang tambahan di atas, sehingga rumah 6×7 tetap terasa lega dan fungsional.
Konsep Desain Rumah Minimalis 6×7 Meter
Desain rumah minimalis 6×7 meter mengutamakan efisiensi ruang dan fungsionalitas. Konsep ini diterapkan dengan memaksimalkan penggunaan setiap sudut ruangan dan menghindari penggunaan furnitur yang berlebihan. Ruangan-ruangan dirancang dengan tata letak yang terstruktur, sehingga aliran sirkulasi udara dan pencahayaan alami dapat terpenuhi dengan optimal. Penggunaan material yang hemat dan mudah perawatan, seperti kayu, keramik, dan cat, menjadi ciri khas desain minimalis.
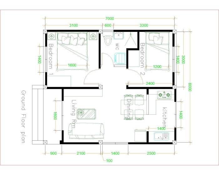
Contoh Denah Rumah Minimalis 6×7 Meter
- Denah rumah minimalis 6×7 meter dapat dibagi menjadi beberapa ruangan, seperti ruang tamu, ruang makan, dapur, kamar tidur, dan kamar mandi.
- Ruang tamu dapat dikombinasikan dengan ruang makan untuk memaksimalkan penggunaan ruang.
- Kamar tidur dapat di desain dengan ukuran yang kompak, dengan penggunaan tempat tidur yang multifungsi.
- Kamar mandi dirancang dengan desain minimalis dan hemat air.
Kelebihan dan Kekurangan Desain Rumah Minimalis 6×7 Meter
Kelebihan:
- Biaya pembangunan yang relatif lebih rendah karena penggunaan material yang hemat.
- Efisiensi ruang yang optimal, sehingga dapat menampung semua kebutuhan ruangan dengan optimal.
- Desain yang simpel dan modern, memberikan kesan luas dan bersih.
- Mudah dalam perawatan dan pemeliharaan.
Kekurangan:
- Ruangan yang terbatas dapat menjadi kendala jika memiliki banyak anggota keluarga.
- Desain yang minimalis dapat terasa kurang personal bagi sebagian orang.
- Membutuhkan perencanaan yang matang dan detail agar ruangan tetap fungsional dan nyaman.
Perbandingan Desain Rumah Minimalis 6×7 Meter dengan Desain Rumah Lainnya
| Desain Rumah | Kelebihan | Kekurangan |
|---|---|---|
| Rumah Minimalis 6×7 Meter | Efisiensi ruang, biaya pembangunan rendah, desain modern | Ruangan terbatas, kurang personal |
| Rumah Klasik | Desain mewah dan elegan, ruangan luas | Biaya pembangunan tinggi, perawatan sulit |
| Rumah Modern | Desain futuristik, penggunaan material modern | Biaya pembangunan tinggi, desain rumit |
Inspirasi Desain Eksterior

Memiliki rumah dengan luas 6×7 meter, mungkin terkesan terbatas. Namun, jangan khawatir! Dengan desain yang tepat, rumah mungil ini bisa tetap terlihat modern dan menarik. Desain eksterior rumah 6×7 meter bisa dimaksimalkan dengan berbagai pilihan material dan elemen desain yang tepat.
Desain Eksterior Modern
Desain eksterior rumah 6×7 meter yang modern umumnya mengutamakan garis-garis tegas, penggunaan material minimalis, dan pencahayaan yang baik. Contohnya, penggunaan material seperti batu alam, kayu, dan kaca bisa menciptakan kesan modern dan elegan.
- Fasad Minimalis: Fasad dengan desain minimalis bisa menggunakan cat dengan warna netral seperti putih, abu-abu, atau hitam, dipadukan dengan aksen kayu pada bagian tertentu.
- Atap Datar: Atap datar sering kali menjadi pilihan populer untuk rumah minimalis. Atap ini memberikan kesan yang modern dan simpel, sekaligus memudahkan perawatan.
- Jendela Besar: Jendela besar dengan bingkai minimalis bisa membantu memaksimalkan cahaya alami yang masuk ke dalam rumah. Ini juga bisa memberikan kesan luas dan lega pada rumah.
- Taman Vertikal: Taman vertikal bisa menjadi solusi untuk menambah nuansa hijau pada rumah dengan lahan terbatas. Taman vertikal bisa diaplikasikan pada dinding fasad atau di area samping rumah.
Material Fasad
Pemilihan material fasad sangat penting untuk menciptakan kesan yang diinginkan. Berikut beberapa pilihan material yang bisa diaplikasikan pada fasad rumah 6×7 meter:
- Batu Alam: Batu alam memberikan kesan natural dan elegan. Batu alam seperti batu bata ekspos, batu candi, atau batu andesit bisa diaplikasikan pada bagian dinding atau sebagai aksen.
- Kayu: Kayu memberikan kesan hangat dan natural. Kayu bisa diaplikasikan pada bagian dinding, kusen jendela, atau pagar.
- Kaca: Kaca bisa memberikan kesan modern dan luas. Kaca bisa diaplikasikan pada bagian jendela, pintu, atau sebagai dinding.
- Cat: Cat bisa menjadi pilihan yang praktis dan ekonomis. Cat bisa diaplikasikan pada seluruh dinding atau sebagai aksen.
Elemen Desain Eksterior, Desain rumah 6×7
Elemen desain eksterior bisa membantu mempercantik tampilan rumah. Berikut beberapa elemen desain yang bisa diaplikasikan pada rumah 6×7 meter:
- Teras: Teras bisa menjadi area relaksasi dan bersantai di luar rumah. Teras bisa dibuat dengan material seperti kayu, batu alam, atau keramik.
- Kanopi: Kanopi bisa memberikan perlindungan dari hujan dan sinar matahari. Kanopi bisa dibuat dengan material seperti baja ringan, kayu, atau polycarbonate.
- Pagar: Pagar bisa memberikan privasi dan keamanan. Pagar bisa dibuat dengan material seperti kayu, besi, atau batu bata.
- Lampu Taman: Lampu taman bisa memberikan pencahayaan pada malam hari dan menambah estetika. Lampu taman bisa dipilih dengan desain yang minimalis dan modern.
Contoh Desain Taman Minimalis
Taman minimalis bisa menjadi pilihan yang tepat untuk rumah 6×7 meter. Taman minimalis mengutamakan kesederhanaan dan keindahan alam. Berikut beberapa contoh desain taman minimalis yang cocok untuk rumah 6×7 meter:
- Taman Batu: Taman batu menggunakan batu alam sebagai elemen utama. Batu alam bisa disusun secara acak atau membentuk pola tertentu.
- Taman Air: Taman air bisa memberikan suasana yang tenang dan menyegarkan. Taman air bisa dibuat dengan kolam kecil atau air mancur.
- Taman Vertikal: Taman vertikal bisa menjadi solusi untuk menambah nuansa hijau pada rumah dengan lahan terbatas. Taman vertikal bisa diaplikasikan pada dinding fasad atau di area samping rumah.
Inspirasi Desain Interior
Memiliki rumah dengan luas 6×7 meter bisa menjadi tantangan tersendiri dalam merancang desain interior yang optimal. Namun, dengan perencanaan yang tepat, rumah mungil ini dapat disulap menjadi hunian yang nyaman dan estetis. Desain interior yang tepat dapat memaksimalkan fungsi dan keindahan setiap ruangan, menciptakan suasana yang harmonis dan fungsional.
Desain rumah 6×7 memang terbatas, tapi jangan khawatir! Kalian bisa mengintip inspirasi dari desain rumah 8×15 3d untuk mendapatkan ide penataan ruangan yang efisien. Dengan sedikit kreativitas, desain rumah 6×7 pun bisa terasa luas dan nyaman.
Konsep Desain Interior yang Cocok
Konsep desain interior yang cocok untuk rumah 6×7 meter adalah desain minimalis dan fungsional. Desain minimalis menekankan pada kesederhanaan, dengan meminimalkan penggunaan dekorasi dan elemen yang tidak diperlukan. Fokusnya adalah pada garis-garis bersih, palet warna netral, dan pencahayaan yang maksimal. Sementara itu, desain fungsional bertujuan untuk memaksimalkan penggunaan ruang dengan memanfaatkan setiap sudut secara efisien.
Desain rumah 6×7 memang terbatas, tapi jangan khawatir! Kamu bisa mengintip inspirasi dari desain rumah minimalis 2 lantai type 36 72 yang lebih luas. Meskipun lebih besar, konsep minimalisnya bisa diaplikasikan ke rumah 6×7, lho! Dengan memaksimalkan ruang vertikal dan penataan furnitur yang pintar, kamu bisa menciptakan rumah mungil yang tetap nyaman dan fungsional. Jadi, jangan ragu untuk berkreasi dan sesuaikan desain rumah 6×7 impianmu!
Contoh Desain Ruang Tamu, Dapur, dan Kamar Tidur
Berikut beberapa contoh desain yang dapat diterapkan untuk ruang tamu, dapur, dan kamar tidur di rumah 6×7 meter:
- Ruang Tamu: Sofa bed multifungsi dapat digunakan sebagai tempat duduk dan tempat tidur tambahan. Rak dinding yang ramping dapat menyimpan buku dan dekorasi, sekaligus meminimalkan penggunaan ruang lantai. Cermin besar dapat menciptakan ilusi ruangan yang lebih luas.
- Dapur: Kitchen set dengan desain minimalis dapat menghemat ruang. Gunakan rak gantung untuk menyimpan peralatan masak. Pilih meja makan lipat atau meja bar yang dapat dilipat untuk menghemat ruang saat tidak digunakan.
- Kamar Tidur: Tempat tidur dengan laci di bagian bawah dapat digunakan untuk menyimpan pakaian dan barang-barang lainnya. Gunakan cermin besar untuk menciptakan ilusi ruangan yang lebih luas. Meja rias minimalis dengan cermin dapat ditempatkan di sudut ruangan.
Penggunaan Warna dan Pencahayaan
Warna dan pencahayaan berperan penting dalam menciptakan suasana dan estetika ruangan. Untuk rumah 6×7 meter, disarankan untuk menggunakan warna-warna netral seperti putih, abu-abu, dan krem sebagai warna dasar. Warna-warna ini dapat menciptakan kesan ruangan yang lebih luas dan terang. Tambahkan sentuhan warna cerah pada dekorasi seperti bantal, gorden, atau lukisan untuk menambah nuansa yang lebih hidup.
Pencahayaan yang tepat dapat membuat ruangan terasa lebih luas dan nyaman. Gunakan pencahayaan alami dengan memaksimalkan penggunaan jendela. Tambahkan lampu-lampu LED di beberapa titik ruangan untuk menciptakan suasana yang lebih hangat dan nyaman.
Perbandingan Gaya Desain Interior
| Gaya Desain | Karakteristik | Contoh |
|---|---|---|
| Minimalis | Kesederhanaan, garis-garis bersih, palet warna netral, fokus pada fungsi | Ruangan dengan furniture sederhana, warna dinding putih, pencahayaan maksimal |
| Skandinavia | Warna-warna cerah, bahan alami, fokus pada fungsi dan kenyamanan | Ruangan dengan furniture kayu, warna putih dan abu-abu, dekorasi sederhana |
| Industrial | Unsur-unsur logam dan kayu, palet warna gelap, kesan kasar dan edgy | Ruangan dengan pipa-pipa terlihat, furniture berbahan logam, dinding bata ekspos |
Tips Membangun Rumah 6×7 Meter

Membangun rumah 6×7 meter dengan budget terbatas bisa menjadi tantangan, namun dengan perencanaan yang matang dan strategi yang tepat, Anda dapat mewujudkan hunian nyaman dan fungsional. Artikel ini akan membahas langkah-langkah membangun rumah 6×7 meter, tips memilih material bangunan yang tepat, faktor-faktor penting yang perlu dipertimbangkan, dan contoh desain rumah 6×7 meter yang hemat energi.
Langkah-langkah Membangun Rumah 6×7 Meter dengan Budget Terbatas
Berikut langkah-langkah membangun rumah 6×7 meter dengan budget terbatas:
- Tentukan Konsep dan Desain Rumah: Sebelum memulai pembangunan, tentukan konsep dan desain rumah yang Anda inginkan. Pertimbangkan gaya hidup, kebutuhan, dan jumlah penghuni. Gunakan software desain rumah atau konsultasikan dengan arsitek untuk mendapatkan gambaran visual dan perencanaan yang matang.
- Buat Rencana Anggaran: Setelah konsep desain selesai, buatlah rencana anggaran yang realistis. Tetapkan prioritas dan pertimbangkan biaya material, tenaga kerja, dan biaya tambahan lainnya. Anda bisa menggunakan aplikasi kalkulator biaya bangunan untuk memperkirakan total biaya.
- Pilih Material Bangunan yang Tepat: Pemilihan material bangunan yang tepat dapat membantu menghemat budget. Gunakan material lokal yang mudah didapat dan berkualitas baik. Anda bisa menggunakan material daur ulang untuk mengurangi biaya dan mendukung konsep ramah lingkungan.
- Cari Kontraktor yang Terpercaya: Carilah kontraktor yang berpengalaman dan memiliki reputasi baik. Mintalah referensi dari teman atau keluarga yang pernah menggunakan jasa kontraktor tersebut. Pastikan untuk membuat kontrak kerja yang jelas dan terperinci.
- Pantau Proses Pembangunan: Pantau proses pembangunan secara berkala untuk memastikan kualitas dan progres sesuai rencana. Jangan ragu untuk berkomunikasi dengan kontraktor jika ada hal yang perlu diubah atau dipertanyakan.
Tips Memilih Material Bangunan yang Tepat
Pemilihan material bangunan yang tepat sangat penting untuk membangun rumah 6×7 meter dengan budget terbatas. Berikut beberapa tips yang bisa Anda pertimbangkan:
- Gunakan Bata Ringan: Bata ringan lebih ringan dan lebih mudah dipasang dibandingkan dengan bata merah. Hal ini dapat mengurangi biaya tenaga kerja dan waktu pembangunan.
- Pilih Atap Baja Ringan: Atap baja ringan lebih kuat dan tahan lama dibandingkan dengan atap genteng. Selain itu, atap baja ringan juga lebih ringan sehingga dapat mengurangi beban struktur bangunan.
- Manfaatkan Material Daur Ulang: Manfaatkan material daur ulang seperti kayu bekas, bambu, atau kaca bekas untuk mengurangi biaya dan mendukung konsep ramah lingkungan.
- Pertimbangkan Penggunaan Cat Berbahan Dasar Air: Cat berbahan dasar air lebih ramah lingkungan dan mudah dibersihkan dibandingkan dengan cat berbahan dasar minyak.
Faktor-faktor yang Perlu Dipertimbangkan
Ada beberapa faktor penting yang perlu dipertimbangkan dalam membangun rumah 6×7 meter, yaitu:
- Luas Tanah: Pastikan luas tanah cukup untuk membangun rumah 6×7 meter dan memenuhi kebutuhan ruang terbuka.
- Arah Matahari: Pertimbangkan arah matahari untuk memaksimalkan pencahayaan alami dan sirkulasi udara di dalam rumah.
- Keamanan: Pastikan rumah Anda aman dari gangguan keamanan dengan memasang pagar, CCTV, dan sistem keamanan lainnya.
- Kelengkapan Fasilitas: Pertimbangkan kebutuhan fasilitas seperti kamar mandi, dapur, dan ruang tamu yang memadai.
Contoh Desain Rumah 6×7 Meter Hemat Energi
Berikut contoh desain rumah 6×7 meter hemat energi yang bisa Anda jadikan inspirasi:
- Desain Rumah Minimalis: Desain minimalis dengan penekanan pada fungsi dan efisiensi ruang dapat menghemat biaya dan penggunaan material.
- Penerapan Konsep Green Building: Penerapan konsep green building seperti penggunaan material ramah lingkungan, pencahayaan alami, dan ventilasi yang baik dapat menghemat energi dan biaya operasional.
- Pemasangan Panel Surya: Pemasangan panel surya dapat menghasilkan energi listrik dari sinar matahari, sehingga dapat menghemat biaya listrik.
- Penggunaan Tanaman Hias: Tanaman hias dapat membantu menyerap panas dan meningkatkan kualitas udara di dalam rumah.
Contoh Desain Rumah 6×7 Meter
Membangun rumah dengan lahan terbatas, khususnya 6×7 meter, memang menantang. Namun, dengan perencanaan yang tepat, Anda bisa menciptakan hunian nyaman dan fungsional. Berikut beberapa contoh desain rumah 6×7 meter yang bisa menjadi inspirasi:
Desain Rumah Minimalis Modern
Desain minimalis modern identik dengan garis-garis tegas, penggunaan warna netral, dan pencahayaan yang maksimal. Rumah 6×7 meter dengan gaya ini bisa dimaksimalkan dengan memaksimalkan ruang terbuka dan penggunaan furnitur multifungsi.
Contoh desain rumah 6×7 meter minimalis modern bisa menghadirkan ruang tamu, dapur, dan kamar tidur di lantai satu, serta kamar mandi di bagian belakang. Penggunaan material seperti kayu, batu alam, dan kaca dapat menambah kesan modern dan elegan.
- Kelebihan: Desain minimalis modern terlihat elegan, simpel, dan mudah dibersihkan.
- Kekurangan: Membutuhkan penataan yang cermat agar tidak terkesan sempit.
Desain Rumah Tropis Kontemporer
Desain rumah tropis kontemporer mengusung konsep ramah lingkungan dan memanfaatkan sirkulasi udara alami. Rumah 6×7 meter dengan gaya ini bisa menghadirkan suasana sejuk dan nyaman, dengan penekanan pada penggunaan material alami dan elemen air.
Contoh desain rumah 6×7 meter tropis kontemporer bisa menghadirkan taman kecil di bagian depan, ruang tamu dengan ventilasi yang baik, dan kamar tidur dengan balkon kecil. Penggunaan material seperti bambu, kayu jati, dan batu alam dapat menciptakan suasana natural yang menenangkan.
- Kelebihan: Desain tropis kontemporer memberikan kesan sejuk dan alami.
- Kekurangan: Membutuhkan perawatan ekstra untuk material alami.
Desain Rumah Industrial
Desain industrial identik dengan penggunaan material mentah seperti bata ekspos, besi, dan kayu. Rumah 6×7 meter dengan gaya ini bisa menghadirkan kesan unik dan modern, dengan penekanan pada penggunaan furnitur vintage dan pencahayaan yang dramatis.
Contoh desain rumah 6×7 meter industrial bisa menghadirkan ruang tamu dengan bata ekspos, dapur dengan meja kerja dari kayu, dan kamar tidur dengan sentuhan vintage. Penggunaan lampu gantung dan furnitur industrial dapat menambah kesan unik dan modern.
- Kelebihan: Desain industrial terlihat unik, modern, dan mudah dipadukan dengan berbagai gaya.
- Kekurangan: Membutuhkan penataan yang cermat agar tidak terkesan terlalu ramai.
Membangun rumah 6×7 meter tidak hanya tentang memaksimalkan ruang, tetapi juga tentang menciptakan rumah yang mencerminkan kepribadian dan gaya hidup Anda. Dengan perencanaan yang matang dan inspirasi yang tepat, Anda dapat membangun hunian mungil yang nyaman, fungsional, dan estetis, tempat Anda dapat menikmati kebersamaan dengan keluarga dan menciptakan kenangan indah.
Informasi Penting & FAQ
Apakah desain rumah 6×7 meter cocok untuk keluarga besar?
Desain rumah 6×7 meter lebih cocok untuk keluarga kecil atau pasangan muda. Namun, dengan penataan ruang yang cerdas, Anda dapat mengakomodasi keluarga yang lebih besar dengan menggunakan konsep kamar tidur multifungsi atau mezzanine.
Bagaimana cara mendapatkan inspirasi desain rumah 6×7 meter?
Anda dapat mencari inspirasi dari berbagai sumber seperti majalah desain rumah, website, buku, dan platform media sosial. Anda juga dapat berkonsultasi dengan arsitek profesional untuk mendapatkan desain yang sesuai dengan kebutuhan dan preferensi Anda.

