Memiliki rumah sendiri adalah impian banyak orang, namun keterbatasan lahan seringkali menjadi kendala. Desain rumah 6×6 2 kamar hadir sebagai solusi cerdas untuk mewujudkan hunian minimalis yang tetap nyaman dan fungsional. Dengan luas bangunan yang terbatas, Anda tetap dapat menikmati dua kamar tidur, ruang keluarga, dapur, dan kamar mandi yang tertata rapi.
Artikel ini akan membahas secara lengkap konsep desain rumah 6×6 2 kamar, mulai dari contoh denah, tips mengatur ruang, inspirasi desain, hingga contoh penerapan desain yang diilustrasikan dengan gambar. Mari kita bahas seluk beluk membangun rumah minimalis yang efisien dan estetis.
Desain Rumah Minimalis 6×6

Membangun rumah di lahan terbatas bukanlah hal yang mustahil. Desain rumah minimalis 6×6 dengan 2 kamar tidur dapat menjadi solusi ideal untuk hunian yang nyaman dan fungsional. Konsep minimalis memungkinkan Anda untuk memaksimalkan penggunaan ruang dengan penataan yang efisien dan estetis.
Desain rumah 6×6 2 kamar memang terbatas, tapi tetap bisa menghadirkan kenyamanan. Jika ingin ruang yang lebih lega, kamu bisa mengintip inspirasi desain rumah ukuran 6×7 meter 3 kamar. Dengan ukuran yang sedikit lebih besar, kamu bisa mendapatkan 3 kamar tidur dan ruang keluarga yang lebih lapang. Namun, tetap perhatikan desain yang efisien agar tetap terasa nyaman di rumah 6×6 2 kamarmu.
Konsep Desain Rumah Minimalis 6×6 dengan 2 Kamar Tidur
Desain rumah minimalis 6×6 dengan 2 kamar tidur mengutamakan kesederhanaan dan fungsionalitas. Konsep ini berfokus pada penataan ruang yang efisien, meminimalisir penggunaan dekorasi berlebihan, dan pemilihan furnitur multifungsi. Tujuannya adalah untuk menciptakan suasana yang bersih, lapang, dan nyaman, meskipun dengan keterbatasan luas lahan.
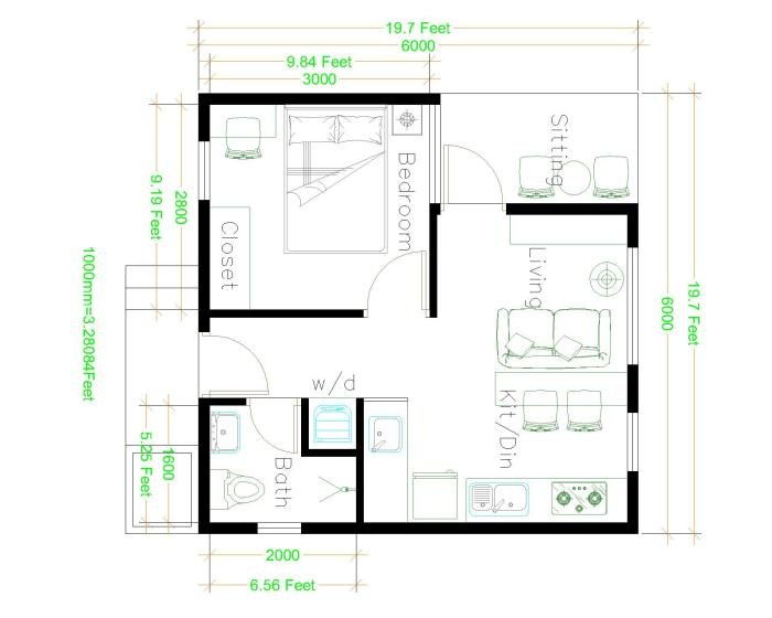
Contoh Denah Rumah Minimalis 6×6 dengan 2 Kamar Tidur
Berikut beberapa contoh denah rumah minimalis 6×6 dengan 2 kamar tidur yang efisien:
- Denah 1: Kamar tidur utama terletak di bagian depan rumah, sementara kamar tidur kedua berada di bagian belakang. Dapur dan ruang makan digabung menjadi satu ruangan, dan terdapat area kecil untuk ruang keluarga.
- Denah 2: Kamar tidur utama dan kamar tidur kedua berada di sisi yang bersebelahan. Ruang keluarga dan dapur terletak di bagian depan rumah, dengan area makan yang terintegrasi.
- Denah 3: Kamar tidur utama dan kamar tidur kedua berada di bagian belakang rumah. Ruang keluarga dan dapur terletak di bagian depan, dengan area makan yang terpisah.
Contoh-contoh denah ini hanya gambaran umum, dan dapat dimodifikasi sesuai dengan kebutuhan dan selera Anda.
Kelebihan Desain Rumah Minimalis 6×6 dengan 2 Kamar Tidur
Desain rumah minimalis 6×6 dengan 2 kamar tidur memiliki beberapa kelebihan, antara lain:
- Efisiensi Ruang: Desain minimalis memaksimalkan penggunaan ruang, sehingga terasa lebih luas dan lapang.
- Biaya Konstruksi Lebih Rendah: Ukuran rumah yang kecil dan penggunaan material yang minimal dapat menekan biaya konstruksi.
- Perawatan Lebih Mudah: Desain minimalis dengan sedikit furnitur dan dekorasi memudahkan perawatan dan kebersihan rumah.
- Estetika Minimalis: Konsep minimalis menciptakan suasana yang bersih, sederhana, dan modern, sehingga lebih mudah dipadukan dengan berbagai gaya dekorasi.
Kekurangan Desain Rumah Minimalis 6×6 dengan 2 Kamar Tidur
Meskipun memiliki banyak kelebihan, desain rumah minimalis 6×6 dengan 2 kamar tidur juga memiliki beberapa kekurangan, antara lain:
- Ruang Terbatas: Ukuran rumah yang kecil dapat membatasi jumlah furnitur dan dekorasi yang dapat ditempatkan.
- Kurang Privasi: Kamar tidur yang berdekatan dapat mengurangi privasi penghuni.
- Tantangan Pencahayaan: Ukuran rumah yang kecil dapat membuat pencahayaan alami terbatas, sehingga membutuhkan pencahayaan buatan yang lebih banyak.
- Keterbatasan Fungsi: Desain minimalis dengan ruang terbatas dapat membatasi fungsi ruangan, misalnya tidak adanya ruang khusus untuk ruang tamu.
Perbandingan Desain Rumah Minimalis 6×6 dengan 2 Kamar Tidur dan 1 Kamar Tidur
| Fitur | Rumah 6×6 dengan 2 Kamar Tidur | Rumah 6×6 dengan 1 Kamar Tidur |
|---|---|---|
| Luas Bangunan | 36 m2 | 36 m2 |
| Jumlah Kamar Tidur | 2 | 1 |
| Efisiensi Ruang | Tinggi | Tinggi |
| Biaya Konstruksi | Sedang | Rendah |
| Perawatan | Sedang | Mudah |
| Privasi | Sedang | Tinggi |
| Keterbatasan Fungsi | Sedang | Rendah |
Tabel ini menunjukkan perbandingan umum antara desain rumah minimalis 6×6 dengan 2 kamar tidur dan 1 kamar tidur. Rumah dengan 2 kamar tidur memiliki efisiensi ruang yang lebih tinggi, tetapi juga memiliki biaya konstruksi dan perawatan yang lebih tinggi. Rumah dengan 1 kamar tidur lebih mudah dirawat dan memiliki privasi yang lebih tinggi, tetapi memiliki keterbatasan fungsi yang lebih besar.
Tips Mengatur Ruang: Desain Rumah 6×6 2 Kamar

Memiliki rumah minimalis 6×6 dengan 2 kamar tidur memang menantang, tapi bukan berarti tidak bisa nyaman. Dengan strategi tepat, rumah mungilmu bisa terasa lapang dan fungsional. Berikut beberapa tips mengatur ruang yang bisa kamu terapkan.
Desain rumah 6×6 2 kamar memang menantang, tapi bukan berarti tidak bisa diwujudkan. Kunci utamanya adalah memaksimalkan ruang dengan penataan yang cermat. Ingin inspirasi untuk rumah dengan luas lebih lega? Kamu bisa mengintip ide desain rumah 6×15 di sini. Dengan ruang yang lebih lapang, kamu bisa menerapkan konsep yang lebih fleksibel dan menciptakan rumah yang nyaman.
Nah, untuk desain rumah 6×6 2 kamar, fokuslah pada pemilihan furniture multifungsi dan penggunaan warna terang untuk menciptakan kesan luas.
Tata Letak Furnitur Optimal
Tata letak furnitur sangat penting untuk memaksimalkan ruang. Hindari furnitur besar dan pilih yang multifungsi. Misalnya, gunakan sofa bed yang bisa diubah menjadi tempat tidur, atau meja makan lipat yang bisa disimpan saat tidak digunakan.
- Ruang Tamu: Sofa bed, meja kopi kecil, rak dinding minimalis. Hindari penggunaan kursi tambahan yang memakan tempat.
- Kamar Tidur: Tempat tidur berukuran minimalis, lemari pakaian minimalis, meja rias kecil. Gunakan cermin untuk menciptakan ilusi ruang yang lebih luas.
- Dapur: Kitchen set minimalis, rak dinding, meja makan kecil yang bisa dilipat. Manfaatkan ruang vertikal dengan rak dinding untuk menyimpan peralatan masak.
Memaksimalkan Pencahayaan Alami
Pencahayaan alami bisa membuat rumah terasa lebih luas dan nyaman. Manfaatkan jendela yang ada untuk mendapatkan cahaya maksimal. Gunakan warna cat dinding yang terang dan reflektif untuk memantulkan cahaya.
- Gunakan jendela kaca bening: Hindari penggunaan gorden tebal yang menghalangi cahaya. Pilihlah gorden tipis atau tirai yang memungkinkan cahaya masuk.
- Cat dinding dengan warna terang: Warna putih, krem, atau abu-abu muda dapat memantulkan cahaya dan membuat ruangan terasa lebih luas.
- Manfaatkan cermin: Cermin dapat memantulkan cahaya dan menciptakan ilusi ruang yang lebih luas. Letakkan cermin di dinding yang berlawanan dengan jendela untuk mengoptimalkan cahaya.
Dekorasi Minimalis Estetis
Dekorasi minimalis yang tepat bisa memberikan kesan luas dan estetis. Pilihlah dekorasi yang simpel dan fungsional. Hindari penggunaan aksesoris berlebihan yang membuat ruangan terasa sempit.
Desain rumah 6×6 2 kamar memang menantang, tapi bisa banget diwujudkan dengan perencanaan yang tepat. Ingin inspirasi lebih luas? Coba cek 7×10 meter desain rumah 7×10 , yang bisa memberikan gambaran lebih lengkap. Meskipun ukurannya lebih besar, konsepnya bisa diadaptasi untuk desain rumah 6×6, dengan penyesuaian pada tata letak dan pemilihan furnitur.
- Gunakan warna netral: Warna putih, krem, abu-abu, dan biru muda dapat menciptakan kesan bersih dan luas.
- Tambahkan sentuhan warna: Gunakan warna-warna cerah seperti kuning, hijau, atau merah untuk memberikan aksen pada ruangan.
- Manfaatkan tanaman hias: Tanaman hias dapat memberikan nuansa segar dan alami pada ruangan. Pilih tanaman yang tidak terlalu besar dan mudah dirawat.
- Gunakan rak dinding: Rak dinding bisa digunakan untuk menyimpan dekorasi dan barang-barang lainnya. Pilih rak yang minimalis dan tidak terlalu menonjol.
Inspirasi Desain

Membangun rumah minimalis 6×6 dengan 2 kamar tidur memang menantang, namun bisa diwujudkan dengan desain yang tepat. Rumah minimalis dengan ukuran terbatas bisa tetap nyaman dan fungsional dengan perencanaan yang matang. Berikut inspirasi desain yang bisa kamu pertimbangkan:
Contoh Desain Eksterior
Desain eksterior rumah minimalis 6×6 dengan 2 kamar tidur bisa tampil modern dan menarik dengan penggunaan material yang tepat. Misalnya, kamu bisa menggunakan material batu alam untuk bagian dinding bawah, kayu untuk bagian dinding atas, dan kaca untuk jendela dan pintu. Penggunaan material ini akan memberikan kesan modern dan natural.
Untuk menambah kesan modern, kamu bisa menambahkan aksen seperti pagar minimalis dengan material besi atau kayu. Selain itu, penggunaan warna cat dinding yang tepat juga bisa meningkatkan nilai estetika rumah. Contohnya, kombinasi warna putih dan abu-abu bisa memberikan kesan minimalis yang elegan.
Material Bangunan yang Tepat, Desain rumah 6×6 2 kamar
Memilih material bangunan yang tepat sangat penting untuk membangun rumah minimalis 6×6 dengan 2 kamar tidur yang kokoh dan tahan lama. Berikut beberapa contoh material yang bisa kamu pertimbangkan:
- Struktur Bangunan: Baja ringan atau beton bertulang bisa menjadi pilihan yang tepat untuk struktur bangunan rumah minimalis. Material ini ringan, kuat, dan tahan lama.
- Dinding: Bata ringan, bata hebel, atau panel gypsum bisa menjadi pilihan untuk dinding rumah minimalis. Material ini ringan, mudah dipasang, dan relatif terjangkau.
- Atap: Genteng metal, genteng beton, atau genteng keramik bisa menjadi pilihan untuk atap rumah minimalis. Pilihlah jenis genteng yang tahan lama dan mudah dibersihkan.
- Lantai: Keramik, granit, atau kayu bisa menjadi pilihan untuk lantai rumah minimalis. Pilihlah material yang mudah dibersihkan dan tahan lama.
Konsep Desain Interior
Desain interior rumah minimalis 6×6 dengan 2 kamar tidur haruslah fungsional dan nyaman. Beberapa konsep desain yang bisa kamu pertimbangkan:
- Maximizing Space: Manfaatkan ruang dengan memaksimalkan fungsi setiap sudut. Gunakan furnitur multifungsi, cermin untuk memperluas ruang, dan penyimpanan vertikal untuk meminimalkan penggunaan area lantai.
- Warna Cerah: Gunakan warna cat dinding yang cerah seperti putih, krem, atau abu-abu untuk memberikan kesan luas dan terang.
- Pencahayaan yang Cukup: Pastikan pencahayaan yang cukup di setiap ruangan. Manfaatkan cahaya alami dengan jendela yang besar dan cahaya buatan dengan lampu LED yang hemat energi.
- Dekorasi Minimalis: Hindari dekorasi yang berlebihan. Pilihlah dekorasi minimalis yang fungsional dan estetis, seperti tanaman hias, lukisan minimalis, atau lampu hias yang menarik.
Contoh Warna Cat Dinding
Berikut tabel contoh warna cat dinding yang cocok untuk rumah minimalis 6×6 dengan 2 kamar tidur:
| Ruangan | Warna Cat Dinding |
|---|---|
| Ruang Tamu | Putih, Krem, Abu-abu Muda, Biru Muda |
| Kamar Tidur | Putih, Krem, Biru Muda, Hijau Muda |
| Dapur | Putih, Krem, Abu-abu Muda, Hijau Muda |
| Kamar Mandi | Putih, Krem, Biru Muda, Hijau Muda |
Contoh Penerapan Desain

Membangun rumah minimalis 6×6 dengan 2 kamar tidur membutuhkan perencanaan yang matang dan desain yang efisien. Berikut ini contoh desain yang bisa Anda jadikan inspirasi.
Contoh Desain Rumah Minimalis 6×6 dengan 2 Kamar Tidur
Contoh desain rumah minimalis 6×6 dengan 2 kamar tidur ini menggunakan konsep open space untuk ruang tamu dan dapur. Hal ini membuat ruangan terasa lebih luas dan lega. Kedua kamar tidur terletak di bagian belakang rumah, masing-masing dengan ukuran yang cukup untuk tempat tidur dan lemari. Desain ini juga mempertimbangkan sirkulasi udara dan pencahayaan alami yang optimal.
- Ruang tamu dan dapur di desain dengan konsep open space, membuat ruangan terasa lebih luas dan lega.
- Kamar tidur utama berukuran lebih besar, dilengkapi dengan jendela besar untuk pencahayaan dan sirkulasi udara yang optimal.
- Kamar tidur kedua berukuran lebih kecil, ideal untuk anak atau tamu.
- Terdapat teras kecil di depan rumah yang bisa digunakan sebagai tempat bersantai.
- Desain atap menggunakan model pelana, memberikan kesan minimalis dan modern.
Detail Desain dan Spesifikasi Material
Contoh desain rumah minimalis 6×6 dengan 2 kamar tidur ini menggunakan material yang berkualitas dan mudah didapat.
- Struktur bangunan menggunakan beton bertulang, memberikan kekuatan dan ketahanan terhadap gempa.
- Dinding menggunakan bata ringan, lebih ringan dan mudah dipasang.
- Atap menggunakan genteng beton, tahan lama dan mudah perawatan.
- Lantai menggunakan keramik, mudah dibersihkan dan tahan lama.
- Jendela dan pintu menggunakan bahan aluminium, tahan karat dan mudah perawatan.
Langkah-langkah Membangun Rumah Minimalis 6×6 dengan 2 Kamar Tidur
Membangun rumah minimalis 6×6 dengan 2 kamar tidur bisa dilakukan dengan langkah-langkah berikut:
- Pembersihan lahan: Pastikan lahan sudah dibersihkan dari tanaman dan sampah.
- Penggalian pondasi: Lakukan penggalian pondasi sesuai dengan desain.
- Pembuatan pondasi: Cor pondasi dengan beton bertulang.
- Pemasangan rangka: Pasang rangka beton atau baja untuk struktur bangunan.
- Pemasangan dinding: Pasang dinding bata ringan atau bata merah.
- Pemasangan atap: Pasang rangka atap dan pasang genteng.
- Pemasangan pintu dan jendela: Pasang pintu dan jendela sesuai desain.
- Finishing: Lakukan finishing interior dan eksterior sesuai desain.
Contoh Desain Interior Rumah Minimalis 6×6 dengan 2 Kamar Tidur
Desain interior rumah minimalis 6×6 dengan 2 kamar tidur harus memperhatikan fungsionalitas dan estetika.
- Untuk ruang tamu, gunakan furniture minimalis dengan warna netral seperti putih, abu-abu, atau cokelat.
- Manfaatkan cermin untuk menciptakan ilusi ruang yang lebih luas.
- Gunakan pencahayaan yang cukup untuk memberikan kesan hangat dan nyaman.
- Untuk kamar tidur, gunakan tempat tidur dengan headboard minimalis dan rak dinding untuk menyimpan barang-barang.
- Gunakan warna-warna lembut untuk menciptakan suasana tenang dan nyaman.
Membangun rumah minimalis 6×6 2 kamar membutuhkan perencanaan yang matang dan detail. Dengan mengaplikasikan tips dan inspirasi desain yang telah dibahas, Anda dapat menciptakan hunian yang nyaman, fungsional, dan estetis. Ingat, kunci utama adalah memaksimalkan setiap sudut ruangan dengan tata letak furnitur yang tepat, penggunaan material yang efisien, dan pemilihan warna cat yang harmonis.
Pertanyaan Populer dan Jawabannya
Apakah rumah 6×6 2 kamar cukup untuk keluarga kecil?
Ya, rumah 6×6 2 kamar cukup untuk keluarga kecil yang terdiri dari 2-3 orang. Dengan perencanaan yang tepat, Anda dapat memaksimalkan setiap sudut ruangan untuk menciptakan suasana yang nyaman.
Bagaimana cara mendapatkan inspirasi desain rumah 6×6 2 kamar?
Anda dapat mencari inspirasi desain di berbagai platform online, seperti website desain, majalah desain, dan media sosial. Anda juga dapat berkonsultasi dengan arsitek atau desainer interior.
Berapa biaya yang dibutuhkan untuk membangun rumah 6×6 2 kamar?
Biaya membangun rumah 6×6 2 kamar bervariasi tergantung pada material yang digunakan, lokasi pembangunan, dan tingkat kesulitan desain. Anda dapat berkonsultasi dengan kontraktor untuk mendapatkan estimasi biaya yang lebih akurat.

