Membangun rumah dengan lahan terbatas? Desain rumah 5×12 meter bisa jadi solusi! Walaupun mungil, rumah ini bisa dirancang fungsional dan estetis, menawarkan kenyamanan maksimal tanpa mengorbankan gaya.
Artikel ini akan memandu Anda dalam merancang rumah impian dengan berbagai pilihan desain eksterior, denah, interior, dan tips yang praktis. Dari konsep minimalis hingga modern, Anda akan menemukan inspirasi untuk menciptakan hunian yang nyaman dan sesuai kebutuhan.
Desain Eksterior

Membangun rumah dengan ukuran 5×12 meter mungkin tampak terbatas, namun jangan khawatir! Dengan perencanaan yang matang, Anda bisa menciptakan rumah yang nyaman, fungsional, dan estetis. Desain eksterior menjadi kunci utama dalam menciptakan rumah impian Anda. Dalam artikel ini, kita akan membahas beberapa gaya desain rumah yang cocok untuk ukuran 5×12 meter, serta contoh desain fasad, teras, dan taman depan yang bisa Anda jadikan inspirasi.
Gaya Desain Rumah yang Cocok
Gaya desain rumah yang cocok untuk ukuran 5×12 meter adalah gaya minimalis, modern, dan tropis. Ketiga gaya ini memiliki ciri khas yang sederhana, efisien, dan mudah diaplikasikan pada lahan terbatas. Gaya minimalis menekankan pada kesederhanaan bentuk dan garis, serta penggunaan warna netral.
Gaya modern lebih berani dengan penggunaan garis-garis tegas dan bentuk geometris, serta material modern seperti kaca dan beton. Sementara gaya tropis mengusung konsep alam dengan penggunaan material kayu, batu alam, dan tanaman hijau.
Desain rumah 5×12 memang terbatas, tapi jangan khawatir! Kamu bisa memaksimalkan ruang dengan konsep minimalis dan fungsional. Ingin membangun rumah kost? Desain rumah kost minimalis 2 lantai dan biaya bisa jadi inspirasi. Dengan memaksimalkan lahan, kamu bisa membangun rumah kost yang nyaman dan menguntungkan.
Nah, untuk desain rumah 5×12, kamu bisa menerapkan konsep yang sama, dengan penyesuaian pada jumlah kamar dan fasilitas.
Contoh Desain Fasad Rumah 5×12 Meter
| Gaya | Deskripsi |
|---|---|
| Minimalis | Desain fasad minimalis biasanya menggunakan warna netral seperti putih, abu-abu, atau krem. Rumah dengan gaya minimalis memiliki bentuk yang sederhana dan garis-garis yang tegas. Penggunaan material seperti batu alam dan kayu dapat menambah kesan natural dan hangat. |
| Modern | Desain fasad modern cenderung menggunakan warna-warna bold seperti hitam, putih, atau abu-abu. Penggunaan material seperti kaca dan beton dapat menciptakan kesan modern dan futuristik. Bentuk fasad yang dinamis dan asimetris juga menjadi ciri khas gaya modern. |
| Klasik | Desain fasad klasik umumnya menggunakan warna-warna pastel seperti putih, krem, atau biru muda. Material seperti batu bata, kayu, dan besi tempa menjadi pilihan utama dalam menciptakan kesan klasik dan elegan. Bentuk fasad yang simetris dan penggunaan ornamen dekoratif juga menjadi ciri khas gaya klasik. |
Contoh Desain Teras Rumah 5×12 Meter
Desain teras rumah yang fungsional dan estetis dapat meningkatkan nilai estetika rumah Anda. Teras dengan ukuran 5×12 meter bisa dimaksimalkan dengan menambahkan beberapa elemen, seperti:
- Area duduk: Gunakan kursi dan meja yang nyaman dan sesuai dengan gaya desain rumah. Anda juga bisa menambahkan tanaman hijau untuk mempercantik teras.
- Area makan: Jika memungkinkan, Anda bisa menambahkan meja makan kecil di teras untuk menikmati makan siang atau makan malam di luar ruangan.
- Area bermain: Untuk rumah dengan anak kecil, Anda bisa menambahkan area bermain kecil dengan ayunan atau jungkitan.
- Kolam renang mini: Jika memungkinkan, Anda bisa menambahkan kolam renang mini untuk menambah kesegaran dan keindahan teras.
Rancang Denah Taman Depan Rumah 5×12 Meter
Taman depan rumah dengan ukuran 5×12 meter bisa dirancang agar terlihat luas dan asri. Beberapa tips yang bisa Anda terapkan:
- Gunakan tanaman berukuran sedang: Hindari menggunakan tanaman yang terlalu tinggi atau terlalu rendah. Pilih tanaman yang memiliki ukuran sedang dan dapat tumbuh dengan baik di bawah sinar matahari.
- Buat jalur setapak: Jalur setapak dari gerbang menuju pintu masuk rumah dapat membuat taman depan terlihat lebih teratur dan estetis.
- Gunakan rumput sintetis: Rumput sintetis dapat menjadi alternatif yang praktis untuk mengganti rumput asli. Rumput sintetis mudah dirawat dan tetap terlihat hijau sepanjang tahun.
- Tambahkan air mancur atau kolam ikan: Air mancur atau kolam ikan dapat menambah kesan asri dan menenangkan di taman depan rumah.
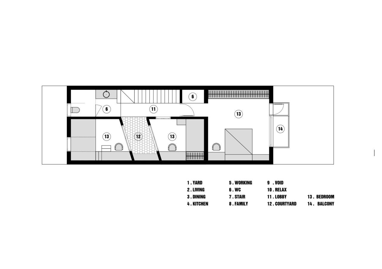
Denah dan Tata Letak

Menata denah rumah 5×12 meter dengan 2 kamar tidur, 1 kamar mandi, ruang tamu, dapur, dan ruang keluarga membutuhkan perencanaan yang matang. Pastikan setiap ruangan memiliki fungsi dan ukuran yang ideal untuk menciptakan rumah yang nyaman dan fungsional.
Desain rumah 5×12 memang menantang, tapi bisa jadi solusi hunian minimalis yang efisien. Butuh bahan bangunan berkualitas? Kunjungi toko bangunan jaya abadi , yang menyediakan berbagai kebutuhan konstruksi dengan harga bersaing. Dengan bahan yang tepat, desain rumah 5×12 kamu pun bisa terwujud dengan optimal.
Contoh Denah Rumah 5×12 Meter
Berikut ini adalah dua contoh denah rumah 5×12 meter dengan 2 kamar tidur dan 1 kamar mandi, yang dapat disesuaikan dengan kebutuhan dan preferensi Anda:
- Denah 1:Ruang tamu berada di depan, dilanjutkan dengan dapur dan ruang makan yang terhubung. Dua kamar tidur terletak di belakang, dengan kamar mandi di tengah. Desain ini memberikan privasi pada kamar tidur dan memaksimalkan sirkulasi udara.
- Denah 2:Kamar tidur utama berada di depan, diikuti oleh kamar mandi dan ruang tamu. Dapur dan ruang makan terletak di belakang. Desain ini cocok untuk keluarga yang menginginkan privasi di kamar tidur utama.
Letak Terbaik untuk Ruang Tamu, Dapur, dan Kamar Mandi
Letak terbaik untuk ruang tamu, dapur, dan kamar mandi dalam denah rumah 5×12 meter tergantung pada preferensi dan gaya hidup Anda. Namun, beberapa rekomendasi umum adalah:
- Ruang Tamu:Sebaiknya berada di bagian depan rumah untuk menyambut tamu dan menciptakan area publik yang terbuka. Ruang tamu juga sebaiknya berdekatan dengan pintu masuk utama untuk memudahkan akses.
- Dapur:Dapur idealnya berada di dekat ruang makan untuk memudahkan proses memasak dan menyajikan makanan. Lokasi dapur juga sebaiknya dekat dengan sumber air untuk memudahkan akses ke wastafel dan tempat mencuci.
- Kamar Mandi:Kamar mandi sebaiknya berada di area yang privat, seperti di dekat kamar tidur atau di bagian belakang rumah. Letaknya juga sebaiknya dekat dengan saluran pembuangan air.
Desain Ruang Keluarga yang Nyaman dan Multifungsi
Ruang keluarga dalam denah rumah 5×12 meter dapat dirancang menjadi ruang yang nyaman dan multifungsi. Berikut beberapa tips untuk menata ruang keluarga:
- Pilih Furnitur yang Fungsional:Gunakan sofa bed yang dapat diubah menjadi tempat tidur untuk menampung tamu. Pilih meja kopi yang memiliki ruang penyimpanan untuk menyimpan barang-barang kecil.
- Manfaatkan Pencahayaan:Gunakan pencahayaan alami dari jendela dan tambahkan lampu gantung atau lampu dinding untuk menciptakan suasana yang hangat dan nyaman.
- Tambahkan Dekorasi:Gunakan tanaman hijau, lukisan, atau foto untuk mempercantik ruang keluarga. Pastikan dekorasi tidak terlalu banyak sehingga tidak membuat ruangan terasa sempit.
Denah Rumah 5×12 Meter dengan Konsep Open Space
Konsep open space menghubungkan ruang tamu, dapur, dan ruang makan untuk menciptakan ruangan yang luas dan terhubung. Berikut contoh denah rumah 5×12 meter dengan konsep open space:
- Ruang Tamu:Berada di bagian depan rumah, dengan sofa dan meja kopi sebagai fokus utama. Area ini dapat dihubungkan dengan dapur dan ruang makan melalui pintu geser atau tanpa sekat.
- Dapur:Terletak di sebelah ruang tamu, dengan kitchen set yang minimalis dan fungsional. Dapur dapat dilengkapi dengan meja bar untuk menambah tempat duduk dan area makan kecil.
- Ruang Makan:Berada di belakang dapur, dengan meja makan dan kursi yang nyaman. Ruang makan dapat dipisahkan dengan dapur menggunakan partisi atau rak buku untuk menciptakan batas visual.
Interior Rumah

Setelah merencanakan desain eksterior, kini saatnya kita memasuki bagian yang tak kalah penting, yaitu interior rumah. Mengatur desain interior rumah 5×12 meter dengan tema minimalis dan modern memerlukan pertimbangan matang agar ruangan terasa luas, nyaman, dan fungsional. Berikut beberapa tips yang bisa kamu terapkan:
Desain Interior Minimalis dan Modern
Desain interior minimalis dan modern identik dengan kesederhanaan, fungsionalitas, dan penggunaan warna netral. Untuk rumah 5×12 meter, kamu bisa menerapkan beberapa elemen berikut:
- Warna Cat Dinding: Gunakan warna putih, abu-abu, krem, atau warna pastel lainnya untuk menciptakan kesan luas dan lapang.
- Furniture: Pilih furniture dengan bentuk sederhana dan fungsional, seperti sofa minimalis, meja makan dengan desain minimalis, dan rak dinding yang multifungsi. Hindari furniture dengan ornamen berlebihan atau desain yang rumit.
- Pencahayaan: Manfaatkan pencahayaan alami dengan maksimal, dan gunakan lampu LED yang hemat energi untuk pencahayaan tambahan.
- Dekorasi: Gunakan dekorasi minimalis seperti tanaman hias, lukisan abstrak, atau cermin untuk menambah aksen tanpa membuat ruangan terasa penuh.
Sebagai contoh, kamu bisa menggunakan ilustrasi rumah dengan desain minimalis modern seperti berikut: [Deskripsi ilustrasi rumah minimalis modern dengan warna cat dinding putih, sofa minimalis berwarna abu-abu, meja makan kayu dengan desain sederhana, dan pencahayaan alami yang masuk melalui jendela besar].
Pilihan Warna Cat Dinding dan Furniture
Warna cat dinding dan furniture memegang peran penting dalam menciptakan suasana interior. Untuk rumah 5×12 meter, kamu bisa memilih kombinasi warna berikut:
- Warna Cat Dinding: Putih, abu-abu muda, krem, atau warna pastel lainnya.
- Furniture: Pilih warna furniture yang kontras dengan warna dinding, seperti hitam, abu-abu tua, cokelat kayu, atau biru tua.
Kombinasi warna ini akan menciptakan kesan ruangan yang luas dan modern. Misalnya, kamu bisa menggunakan cat dinding berwarna putih dan furniture berwarna cokelat kayu untuk menciptakan suasana yang hangat dan elegan.
Pencahayaan yang Tepat
Pencahayaan yang tepat dapat meningkatkan suasana dan fungsionalitas ruangan. Berikut tips memilih pencahayaan yang tepat untuk setiap ruangan di rumah 5×12 meter:
- Ruang Tamu: Gunakan pencahayaan yang terang dan merata untuk menciptakan suasana yang nyaman dan hangat.
- Ruang Makan: Gunakan pencahayaan yang fokus pada meja makan untuk menciptakan suasana yang intim dan menyenangkan saat makan.
- Kamar Tidur: Gunakan pencahayaan yang lembut dan redup untuk menciptakan suasana yang tenang dan nyaman untuk tidur.
- Kamar Mandi: Gunakan pencahayaan yang terang untuk memudahkan aktivitas di kamar mandi.
Manfaatkan pencahayaan alami dengan maksimal dengan memasang jendela yang besar dan menghadap ke arah yang mendapatkan sinar matahari yang cukup.
Tips Memilih Furniture Multifungsi dan Efisien
Dalam rumah 5×12 meter, memaksimalkan ruang dengan memilih furniture multifungsi dan efisien menjadi kunci. Berikut tabel yang berisi tips memilih furniture:
| Jenis Furniture | Tips Memilih |
|---|---|
| Sofa | Pilih sofa bed yang bisa diubah menjadi tempat tidur. |
| Meja Makan | Pilih meja makan lipat yang bisa dilipat saat tidak digunakan. |
| Rak Dinding | Gunakan rak dinding yang multifungsi untuk menyimpan barang-barang dan sekaligus sebagai dekorasi. |
| Tempat Tidur | Pilih tempat tidur dengan laci di bawahnya untuk menyimpan barang-barang. |
Dengan memilih furniture yang tepat, kamu bisa memaksimalkan ruang dan menciptakan rumah yang nyaman dan fungsional meskipun ukurannya terbatas.
Desain rumah 5×12 memang terkesan minimalis, tapi jangan salah, kamu tetap bisa membangunnya dengan konsep ramah lingkungan! Konsep bangunan yang ramah lingkungan disebut bangunan hijau , dan ini bisa diterapkan pada rumah 5×12. Bayangkan, rumah mungilmu bisa jadi contoh hunian yang ramah lingkungan, dan pastinya tetap nyaman dan estetis.
Konsep Desain: Desain Rumah 5×12

Desain rumah 5×12 meter menghadirkan tantangan tersendiri dalam memaksimalkan ruang dan menciptakan hunian yang nyaman. Namun, dengan perencanaan yang tepat, rumah mungil ini dapat diubah menjadi tempat tinggal yang fungsional dan estetis. Berikut adalah beberapa konsep desain yang dapat diterapkan:
Tren Desain Rumah Minimalis, Desain rumah 5×12
Rumah minimalis dengan ciri khasnya yang sederhana dan fungsional, menjadi pilihan yang tepat untuk rumah berukuran 5×12 meter. Konsep ini menekankan pada penggunaan ruang yang efisien, meminimalkan dekorasi, dan fokus pada elemen-elemen penting.
- Warna Monokromatik:Pilihan warna putih, abu-abu, dan hitam memberikan kesan luas dan bersih. Penggunaan warna ini juga dapat membantu menciptakan ilusi ruangan yang lebih besar.
- Furnitur Multifungsi:Sofa bed, meja lipat, atau rak buku yang dapat berfungsi sebagai partisi, adalah contoh furnitur multifungsi yang ideal untuk memaksimalkan ruang.
- Pencahayaan Alami:Manfaatkan cahaya matahari sebaik mungkin dengan jendela besar dan bukaan yang strategis. Cahaya alami dapat memberikan kesan lapang dan mengurangi kebutuhan pencahayaan buatan.
Desain Rumah Ramah Lingkungan dan Hemat Energi
Membangun rumah yang ramah lingkungan dan hemat energi bukan hanya tren, tetapi juga tanggung jawab kita terhadap bumi. Beberapa konsep yang dapat diterapkan pada rumah 5×12 meter:
- Ventilasi Alami:Rancang sirkulasi udara yang baik dengan jendela dan ventilasi yang memadai. Hal ini dapat membantu mengurangi penggunaan AC dan menjaga udara tetap segar.
- Material Ramah Lingkungan:Pilih material bangunan yang ramah lingkungan, seperti kayu daur ulang, bambu, atau batu alam. Material ini tidak hanya baik untuk lingkungan, tetapi juga dapat memberikan kesan natural dan hangat pada rumah.
- Penggunaan Energi Terbarukan:Pertimbangkan penggunaan panel surya untuk menghasilkan energi listrik yang ramah lingkungan dan hemat biaya.
Sirkulasi Udara dan Pencahayaan Alami
Sirkulasi udara dan pencahayaan alami merupakan faktor penting dalam menciptakan rumah yang sehat dan nyaman. Berikut beberapa tips untuk memaksimalkan kedua elemen tersebut:
- Jendela Besar:Pastikan rumah memiliki jendela besar yang menghadap ke arah yang tepat untuk memaksimalkan cahaya matahari. Jendela juga berfungsi sebagai ventilasi alami.
- Bukaan Strategis:Buat bukaan di bagian atas dinding atau langit-langit untuk memungkinkan sirkulasi udara yang lebih baik. Bukaan ini juga dapat berfungsi sebagai skylight yang memberikan cahaya alami ke dalam ruangan.
- Taman Vertikal:Taman vertikal dapat membantu meningkatkan kualitas udara dan memberikan estetika yang menarik. Tanaman juga dapat menyerap panas dan mengurangi suhu ruangan.
Desain Estetis dan Fungsional
Rumah 5×12 meter dapat dirancang dengan estetika yang menarik dan tetap fungsional. Berikut beberapa tips untuk mencapai hal tersebut:
- Dekorasi Minimalis:Hindari penggunaan dekorasi yang berlebihan. Pilihlah dekorasi yang simple dan fungsional.
- Pengaturan Ruang yang Tepat:Atur ruang dengan baik untuk memaksimalkan fungsi dan kenyamanan. Misalnya, tempatkan dapur dan ruang makan di area yang sama untuk menghemat ruang.
- Warna Cerah:Warna cerah dapat memberikan kesan luas dan ceria pada ruangan. Gunakan warna-warna pastel atau warna-warna netral yang lembut.
Tips dan Trik

Memiliki rumah dengan ukuran 5×12 meter mungkin terkesan terbatas, namun dengan perencanaan yang tepat dan beberapa trik, Anda dapat menciptakan hunian yang nyaman dan fungsional. Artikel ini akan membahas tips dan trik untuk memaksimalkan ruang, memilih material bangunan yang tepat, mendekorasi rumah agar terlihat lebih luas, dan memberikan inspirasi desain yang unik dan kreatif.
Memaksimalkan Ruang
Salah satu tantangan utama dalam mendesain rumah 5×12 meter adalah memaksimalkan ruang agar terasa lebih lega dan efisien. Berikut beberapa tips yang dapat Anda terapkan:
- Manfaatkan Vertikal:Gunakan rak dinding, lemari gantung, dan cermin untuk menciptakan ilusi ruang yang lebih tinggi.
- Pilih Furnitur Multifungsi:Sofa bed, meja lipat, dan tempat tidur dengan penyimpanan di bawahnya dapat menghemat ruang dan menambah fleksibilitas.
- Minimalis:Hindari penggunaan furnitur yang terlalu besar dan rumit. Pilihlah furnitur dengan desain minimalis dan fungsional.
- Pintu Geser:Gunakan pintu geser untuk menghemat ruang, terutama untuk kamar mandi atau ruang penyimpanan.
Memilih Material Bangunan
Material bangunan yang tepat dapat memengaruhi tampilan, daya tahan, dan biaya pembangunan rumah Anda. Berikut beberapa tips untuk memilih material yang sesuai untuk rumah 5×12 meter:
- Struktur:Beton bertulang atau baja ringan dapat menjadi pilihan yang kuat dan tahan lama.
- Dinding:Bata ringan, gypsum board, atau panel dinding kayu dapat menjadi pilihan yang ekonomis dan mudah dipasang.
- Atap:Genteng beton, metal sheet, atau atap kayu dapat dipilih sesuai dengan desain dan budget Anda.
- Lantai:Keramik, vinyl, atau kayu dapat dipilih sesuai dengan kebutuhan dan preferensi Anda.
Dekorasi Rumah 5×12 Meter
Dekorasi yang tepat dapat membuat rumah 5×12 meter terasa lebih luas dan nyaman. Berikut beberapa tips dekorasi yang dapat Anda terapkan:
| Tips Dekorasi | Penjelasan |
|---|---|
| Warna Cerah | Warna-warna seperti putih, krem, dan biru muda dapat membuat ruangan terasa lebih luas. |
| Pencahayaan yang Cukup | Gunakan pencahayaan alami dan buatan untuk menciptakan suasana yang terang dan ceria. |
| Cermin | Letakkan cermin di dinding untuk memantulkan cahaya dan membuat ruangan terasa lebih besar. |
| Furnitur Transparan | Furnitur dengan bahan transparan seperti kaca atau akrilik dapat membuat ruangan terlihat lebih luas. |
| Motif Vertikal | Gunakan motif vertikal pada wallpaper atau dekorasi dinding untuk menciptakan ilusi ruangan yang lebih tinggi. |
Inspirasi Desain Rumah 5×12 Meter
Berikut beberapa inspirasi desain rumah 5×12 meter yang unik dan kreatif:
- Rumah Minimalis Modern:Desain ini mengutamakan kesederhanaan dan fungsionalitas dengan penggunaan garis-garis tegas dan material modern seperti kaca dan baja.
- Rumah Tropis:Desain ini menggunakan material alami seperti kayu dan bambu untuk menciptakan suasana yang hangat dan sejuk.
- Rumah Industrial:Desain ini menggabungkan elemen-elemen industri seperti bata ekspos dan pipa besi untuk menciptakan suasana yang unik dan edgy.
- Rumah Scandinavian:Desain ini mengutamakan kesederhanaan, fungsionalitas, dan penggunaan warna-warna netral seperti putih, abu-abu, dan hitam.
Pemungkas

Desain rumah 5×12 meter membuktikan bahwa kemewahan dan kenyamanan bisa hadir dalam ruang yang terbatas. Dengan perencanaan yang tepat, Anda bisa menciptakan hunian yang unik, memaksimalkan setiap sudut, dan mencerminkan kepribadian Anda.
Panduan Tanya Jawab
Berapa biaya membangun rumah 5×12 meter?
Biaya membangun rumah 5×12 meter bervariasi tergantung material, desain, dan lokasi. Konsultasikan dengan arsitek atau kontraktor untuk estimasi biaya yang akurat.
Bagaimana cara mendapatkan inspirasi desain rumah 5×12 meter?
Anda bisa mendapatkan inspirasi dari buku, majalah, situs web, atau media sosial. Kunjungi juga pameran properti atau konsultasikan dengan arsitek.

