Membangun rumah di lahan terbatas? Desain rumah 5×10 2 lantai bisa menjadi solusi ideal. Dengan luas bangunan yang mungil, rumah ini menawarkan efisiensi ruang yang optimal tanpa mengorbankan kenyamanan. Bayangkan, rumah mungil ini mampu menampung seluruh kebutuhan keluarga Anda dalam dua lantai yang terstruktur dengan baik. Pencahayaan alami yang melimpah menjadi salah satu fokus desain, menciptakan suasana yang hangat dan ceria di setiap sudut.
Artikel ini akan membahas secara lengkap konsep desain rumah 5×10 2 lantai, mulai dari tata letak dan denah yang optimal, material dan finishing yang tepat, hingga inspirasi desain interior yang menarik. Anda akan menemukan berbagai contoh desain rumah 5×10 2 lantai dengan gaya arsitektur yang beragam, tips untuk memaksimalkan ruang, dan trik untuk menciptakan ilusi ruang yang lebih luas.
Siap membangun rumah impian Anda dalam ukuran yang pas?
Konsep Desain Rumah 5×10 2 Lantai

Membangun rumah di lahan terbatas seperti 5×10 meter bisa jadi tantangan, namun dengan perencanaan matang, Anda dapat membangun rumah 2 lantai yang fungsional dan nyaman. Konsep desain rumah 5×10 2 lantai yang efisien dan fungsional berfokus pada pemanfaatan ruang vertikal, pencahayaan alami, dan pemilihan furnitur yang tepat.
Desain rumah 5×10 2 lantai memang menantang, tapi bisa jadi solusi untuk hunian yang efisien. Ingin sedikit lebih luas? Coba lihat inspirasi 7×10 meter desain rumah 7×10 yang mungkin bisa jadi referensi. Dengan luas yang lebih besar, Anda bisa bereksperimen dengan tata ruang dan desain yang lebih leluasa. Kembali ke desain 5×10 2 lantai, meskipun terbatas, dengan perencanaan yang tepat, Anda tetap bisa menciptakan hunian yang nyaman dan fungsional.
Desain Rumah 5×10 2 Lantai yang Efisien dan Fungsional
Berikut adalah beberapa konsep desain rumah 5×10 2 lantai yang efisien dan fungsional:
- Memanfaatkan Ruang Vertikal: Rumah 2 lantai memungkinkan Anda memaksimalkan ruang dengan membangun kamar tidur, ruang keluarga, atau dapur di lantai atas. Hal ini membantu meminimalkan area lantai bawah untuk ruang-ruang yang lebih sering digunakan, seperti ruang tamu dan ruang makan.
- Pemilihan Furnitur Multifungsi: Pilih furnitur yang dapat berfungsi ganda, seperti sofa bed atau meja lipat. Hal ini membantu menghemat ruang dan memberikan fleksibilitas dalam penggunaan ruang.
- Konsep Open Space: Gunakan konsep open space untuk ruang tamu dan ruang makan, sehingga ruangan terasa lebih luas. Anda dapat memisahkan kedua ruangan dengan partisi atau perbedaan ketinggian lantai.
- Pencahayaan Alami: Gunakan jendela yang besar dan menghadap ke arah selatan untuk memaksimalkan pencahayaan alami. Hal ini tidak hanya membantu menghemat energi, tetapi juga membuat ruangan terasa lebih terang dan nyaman.
Contoh Desain Rumah 5×10 2 Lantai dengan Penekanan pada Pencahayaan Alami
Berikut contoh desain rumah 5×10 2 lantai dengan penekanan pada pencahayaan alami:
- Lantai 1: Ruang tamu dan ruang makan dirancang dengan konsep open space. Jendela besar di bagian depan dan belakang rumah memungkinkan cahaya matahari masuk dengan optimal. Dapur terletak di bagian belakang, dengan jendela kecil yang cukup untuk pencahayaan dan ventilasi.
- Lantai 2: Kamar tidur utama berada di bagian depan rumah dengan jendela besar yang menghadap ke taman. Kamar tidur kedua berada di bagian belakang, dengan jendela yang menghadap ke halaman belakang. Kedua kamar tidur dilengkapi dengan ventilasi yang baik untuk sirkulasi udara yang optimal.
Desain ini juga memanfaatkan warna-warna cerah dan furnitur minimalis untuk menciptakan kesan luas dan lapang.
Contoh Desain Rumah 5×10 2 Lantai dengan Gaya Arsitektur yang Berbeda
| Gaya Arsitektur | Contoh Desain |
|---|---|
| Minimalis | Rumah dengan garis-garis tegas, bentuk geometris sederhana, dan warna-warna netral. |
| Tropis Modern | Rumah dengan sentuhan kayu dan batu alam, serta penggunaan warna-warna cerah dan elemen alam seperti tanaman. |
| Mediterania | Rumah dengan atap genteng terracotta, dinding putih, dan penggunaan lengkungan pada pintu dan jendela. |
Tata Letak dan Denah

Mendesain rumah 5×10 2 lantai untuk keluarga kecil bisa menjadi tantangan, namun dengan perencanaan yang tepat, Anda dapat menciptakan hunian yang nyaman dan fungsional. Tata letak dan denah yang optimal akan memaksimalkan ruang dan memberikan aliran sirkulasi yang baik.
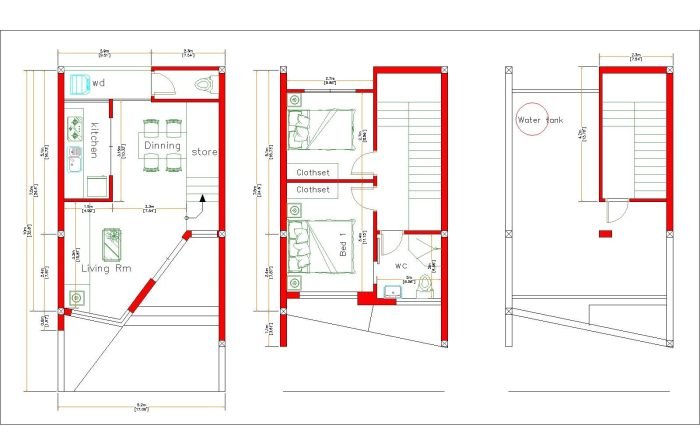
Denah Lantai Optimal
Denah lantai yang optimal untuk rumah 5×10 2 lantai akan memisahkan area publik dan privat, serta mempertimbangkan kebutuhan keluarga kecil. Berikut contoh denah lantai yang bisa Anda pertimbangkan:
- Lantai 1: Area publik seperti ruang tamu, dapur, dan ruang makan bisa digabungkan menjadi satu ruangan terbuka. Hal ini menciptakan suasana yang lapang dan memudahkan interaksi antar anggota keluarga.
- Lantai 2: Area privat seperti kamar tidur dan kamar mandi ditempatkan di lantai 2. Untuk memaksimalkan ruang, kamar tidur bisa dirancang dengan ukuran yang efisien dan fungsional.
Area-Area Penting
Area-area penting dalam rumah 5×10 2 lantai perlu dipertimbangkan dengan cermat untuk memastikan fungsionalitas dan kenyamanan. Berikut beberapa area penting dan letaknya pada denah:
- Ruang Tamu: Terletak di lantai 1, sebaiknya berada di bagian depan rumah untuk menyambut tamu.
- Dapur: Dapur yang efisien dan fungsional terletak di lantai 1, dekat dengan ruang makan.
- Ruang Makan: Ruang makan yang nyaman berada di lantai 1, berdekatan dengan dapur.
- Kamar Tidur: Kamar tidur utama dan kamar tidur anak berada di lantai 2.
- Kamar Mandi: Kamar mandi berada di lantai 2, dekat dengan kamar tidur.
Tata Letak Furnitur
Tata letak furnitur yang efektif akan memaksimalkan ruang dan menciptakan suasana yang nyaman. Berikut beberapa tips untuk menata furnitur di rumah 5×10 2 lantai:
- Ruang Tamu: Gunakan sofa minimalis, meja kopi kecil, dan rak dinding untuk menyimpan barang-barang.
- Dapur: Pilih kitchen set dengan desain minimalis dan fungsional, serta gunakan rak dinding untuk menyimpan peralatan dapur.
- Ruang Makan: Gunakan meja makan yang compact dan kursi yang nyaman.
- Kamar Tidur: Pilih tempat tidur dengan ukuran yang sesuai, serta gunakan lemari pakaian yang minimalis dan fungsional.
Material dan Finishing: Desain Rumah 5×10 2 Lantai

Membangun rumah 5×10 dua lantai tentu membutuhkan pertimbangan matang, termasuk pemilihan material dan finishing yang tepat. Material yang kuat dan tahan lama akan menjamin rumah Anda kokoh dan awet, sementara finishing yang menarik akan memberikan nilai estetika dan kenyamanan.
Desain rumah 5×10 2 lantai memang memberikan fleksibilitas yang lebih luas untuk mewujudkan hunian impian. Luas tanah yang lebih besar memungkinkan Anda untuk menghadirkan berbagai ruangan dan area fungsional. Jika Anda mencari inspirasi untuk desain rumah minimalis yang compact, desain rumah 4×6 2 kamar bisa menjadi pilihan yang menarik. Meskipun terbatas, desain ini tetap bisa menghadirkan kenyamanan dan estetika yang modern.
Kembali ke desain rumah 5×10 2 lantai, Anda memiliki ruang yang lebih leluasa untuk mengeksplorasi berbagai gaya arsitektur dan menciptakan rumah yang nyaman dan estetis.
Material Bangunan
Pemilihan material yang tepat sangat penting untuk memastikan rumah 5×10 dua lantai Anda kokoh dan tahan lama. Berikut beberapa rekomendasi material yang bisa Anda pertimbangkan:
- Pondasi: Beton bertulang ( reinforced concrete) merupakan pilihan yang ideal untuk pondasi rumah 5×10 dua lantai. Material ini kuat, tahan lama, dan dapat menahan beban struktur yang lebih berat.
- Struktur: Baja ringan ( light steel frame) dan kayu merupakan pilihan yang populer untuk struktur rumah. Baja ringan lebih kuat, tahan terhadap rayap, dan lebih cepat dalam proses pembangunan. Kayu, meskipun membutuhkan perawatan ekstra, memberikan kehangatan dan estetika natural.
- Dinding: Bata ringan ( lightweight concrete block) atau bata merah merupakan pilihan yang umum untuk dinding rumah. Bata ringan lebih ringan dan mudah dipasang, sedangkan bata merah memberikan tampilan klasik dan tahan lama.
- Atap: Atap genteng beton atau metal merupakan pilihan yang baik untuk rumah 5×10 dua lantai. Genteng beton tahan lama, tahan cuaca, dan tersedia dalam berbagai pilihan warna. Atap metal lebih ringan, mudah dipasang, dan tahan karat.
Finishing Interior dan Eksterior
Finishing yang tepat akan memberikan nilai estetika dan kenyamanan pada rumah 5×10 dua lantai Anda. Berikut beberapa contoh finishing yang bisa Anda pertimbangkan:
Interior
- Lantai: Lantai keramik atau granit merupakan pilihan yang populer untuk interior rumah. Material ini mudah dibersihkan, tahan lama, dan tersedia dalam berbagai pilihan warna dan motif. Lantai kayu juga bisa menjadi pilihan yang elegan, namun membutuhkan perawatan ekstra.
- Dinding: Cat tembok merupakan pilihan yang paling umum untuk finishing dinding interior. Cat tembok tersedia dalam berbagai warna dan tekstur, sehingga Anda bisa menyesuaikannya dengan gaya desain rumah Anda. Anda juga bisa menggunakan wallpaper atau panel kayu untuk memberikan sentuhan unik pada dinding.
- Plafon: Plafon gypsum merupakan pilihan yang populer untuk interior rumah. Material ini ringan, mudah dipasang, dan dapat dibentuk sesuai keinginan. Anda juga bisa menggunakan plafon kayu untuk memberikan kesan natural dan hangat.
Eksterior
- Cat: Cat eksterior merupakan pilihan yang paling umum untuk finishing dinding eksterior rumah. Cat eksterior tahan lama, tahan cuaca, dan tersedia dalam berbagai warna. Anda bisa memilih warna cat yang sesuai dengan gaya desain rumah Anda.
- Atap: Atap genteng beton atau metal yang telah dipilih bisa dilengkapi dengan aksesoris seperti talang air dan ventilasi untuk meningkatkan estetika dan fungsionalitas.
- Taman: Taman kecil di depan atau belakang rumah bisa menambah nilai estetika dan kesegaran. Anda bisa menanam tanaman hias, bunga, atau pohon kecil untuk mempercantik tampilan eksterior rumah.
Perbandingan Material dan Finishing
Berikut tabel perbandingan antara berbagai jenis material dan finishing untuk rumah 5×10 dua lantai:
| Material/Finishing | Keunggulan | Kekurangan | Harga |
|---|---|---|---|
| Pondasi Beton Bertulang | Kuat, tahan lama, tahan beban berat | Biaya pembangunan lebih tinggi | Tinggi |
| Struktur Baja Ringan | Kuat, tahan rayap, cepat dipasang | Rentan terhadap karat, membutuhkan tenaga ahli | Sedang |
| Struktur Kayu | Tampilan natural, hangat, ramah lingkungan | Rentan terhadap rayap, membutuhkan perawatan ekstra | Sedang |
| Dinding Bata Ringan | Ringan, mudah dipasang, biaya pembangunan lebih rendah | Tidak sekuat bata merah, tidak tahan terhadap api | Rendah |
| Dinding Bata Merah | Kuat, tahan lama, tahan terhadap api | Berat, proses pemasangan lebih lama, biaya pembangunan lebih tinggi | Sedang |
| Atap Genteng Beton | Tahan lama, tahan cuaca, tersedia dalam berbagai pilihan warna | Berat, proses pemasangan lebih lama | Sedang |
| Atap Metal | Ringan, mudah dipasang, tahan karat | Rentan terhadap panas, tidak setahan lama genteng beton | Rendah |
| Lantai Keramik/Granit | Mudah dibersihkan, tahan lama, tersedia dalam berbagai pilihan warna dan motif | Permukaan licin, membutuhkan perawatan ekstra | Sedang |
| Lantai Kayu | Tampilan elegan, hangat, ramah lingkungan | Rentan terhadap goresan, membutuhkan perawatan ekstra, biaya pembangunan lebih tinggi | Tinggi |
| Cat Tembok Interior | Mudah diaplikasikan, tersedia dalam berbagai warna dan tekstur | Tidak setahan lama wallpaper atau panel kayu | Rendah |
| Wallpaper | Tampilan unik, mudah diaplikasikan | Tidak setahan lama cat tembok, membutuhkan perawatan ekstra | Sedang |
| Panel Kayu | Tampilan natural, hangat, ramah lingkungan | Biaya pembangunan lebih tinggi, membutuhkan perawatan ekstra | Tinggi |
| Plafon Gypsum | Ringan, mudah dipasang, dapat dibentuk sesuai keinginan | Rentan terhadap air, tidak setahan lama plafon kayu | Rendah |
| Plafon Kayu | Tampilan natural, hangat, ramah lingkungan | Biaya pembangunan lebih tinggi, membutuhkan perawatan ekstra | Tinggi |
| Cat Eksterior | Tahan lama, tahan cuaca, tersedia dalam berbagai warna | Perlu pengecatan ulang secara berkala | Rendah |
Inspirasi Desain Interior

Membangun rumah 5×10 dua lantai memang penuh tantangan, terutama dalam memaksimalkan ruang. Namun, dengan desain interior yang tepat, rumah mungil ini bisa terasa luas dan nyaman. Berikut beberapa inspirasi desain interior untuk ruang tamu, kamar tidur, dan dapur di rumah 5×10 dua lantai.
Desain rumah 5×10 2 lantai memberikan ruang yang cukup untuk keluarga kecil, namun terkadang terasa terbatas untuk menampung semua kebutuhan. Untuk solusi ruang terbatas, desain rumah 4×6 1 kamar bisa menjadi pilihan yang menarik. Desain rumah 4×6 1 kamar menawarkan efisiensi ruang dengan konsep minimalis yang fungsional. Kembali ke desain rumah 5×10 2 lantai, dengan perencanaan yang tepat, kamu bisa memaksimalkan ruang dan menciptakan hunian yang nyaman dan multifungsi.
Inspirasi Desain Ruang Tamu
Ruang tamu di rumah 5×10 dua lantai bisa didesain dengan konsep minimalis dan modern. Gunakan warna-warna netral seperti putih, abu-abu, atau krem sebagai warna dasar. Untuk menambah kesan hangat, tambahkan aksen warna seperti biru muda, hijau muda, atau kuning muda. Pertimbangkan juga penggunaan furnitur multifungsi seperti sofa bed atau meja lipat untuk memaksimalkan ruang.
- Gunakan cermin besar untuk menciptakan ilusi ruang yang lebih luas.
- Pilih furnitur dengan desain minimalis dan sederhana.
- Manfaatkan pencahayaan alami dengan memasang jendela besar.
- Tambahkan tanaman hijau untuk menghadirkan suasana segar dan alami.
Inspirasi Desain Kamar Tidur
Kamar tidur di rumah 5×10 dua lantai bisa didesain dengan konsep yang simpel dan fungsional. Gunakan warna-warna lembut dan menenangkan seperti biru muda, hijau muda, atau lavender. Untuk menambah kesan elegan, tambahkan aksen warna seperti emas atau perak. Pastikan pencahayaan di kamar tidur cukup terang untuk memudahkan aktivitas.
- Pilih tempat tidur dengan ukuran yang sesuai dengan ruangan.
- Manfaatkan ruang di bawah tempat tidur untuk menyimpan barang-barang.
- Gunakan rak dinding untuk menyimpan buku atau aksesoris.
- Pasang tirai yang bisa menghalangi cahaya matahari.
Inspirasi Desain Dapur
Dapur di rumah 5×10 dua lantai bisa didesain dengan konsep yang praktis dan efisien. Gunakan warna-warna cerah seperti putih, kuning, atau hijau untuk menciptakan suasana yang ceria. Manfaatkan setiap sudut ruangan dengan menggunakan rak dinding atau lemari gantung. Pastikan pencahayaan di dapur cukup terang untuk memudahkan memasak.
- Pilih kitchen set dengan ukuran yang sesuai dengan ruangan.
- Manfaatkan ruang di atas wastafel untuk menyimpan peralatan masak.
- Gunakan rak dinding untuk menyimpan bumbu dapur.
- Pasang cermin di atas wastafel untuk menciptakan ilusi ruang yang lebih luas.
Contoh Penggunaan Warna dan Tekstur
Dalam mendesain interior rumah 5×10 dua lantai, pemilihan warna dan tekstur sangat penting untuk menciptakan suasana yang harmonis. Sebagai contoh, untuk ruang tamu, Anda bisa menggunakan warna putih sebagai warna dasar dinding, lalu tambahkan aksen warna biru muda pada sofa dan bantal. Untuk menambahkan tekstur, gunakan karpet bertekstur lembut dan vas bunga dengan bahan yang unik.
Konsep Desain Interior Minimalis dan Modern
Konsep desain interior minimalis dan modern sangat cocok untuk rumah 5×10 dua lantai. Konsep ini mengutamakan kesederhanaan, fungsionalitas, dan penggunaan ruang yang efisien. Ciri khas dari konsep ini adalah penggunaan warna netral, furnitur minimalis, dan pencahayaan yang baik.
- Gunakan warna-warna netral seperti putih, abu-abu, hitam, atau krem sebagai warna dasar.
- Pilih furnitur dengan desain minimalis dan sederhana.
- Manfaatkan pencahayaan alami dengan memasang jendela besar.
- Tambahkan tanaman hijau untuk menghadirkan suasana segar dan alami.
Tips dan Trik

Membangun rumah 2 lantai di lahan terbatas 5×10 meter memang menantang, tapi bukan berarti tidak mungkin. Dengan perencanaan yang cermat dan trik desain yang tepat, kamu bisa menciptakan hunian yang nyaman dan fungsional. Berikut beberapa tips dan trik yang bisa kamu terapkan.
Membuat Rumah 5×10 2 Lantai Maksimal
Ruang terbatas bukan berarti kamu harus mengorbankan kenyamanan. Berikut beberapa tips untuk memaksimalkan ruang di rumah 5×10 2 lantai:
- Manfaatkan Vertikal: Tinggi plafon 3 meter memungkinkan kamu untuk membuat mezzanine atau loteng untuk ruang tidur tambahan atau ruang penyimpanan. Kamu bisa menggunakan tangga spiral atau tangga lipat untuk menghemat tempat.
- Pilih Furnitur Multifungsi: Sofa bed, meja lipat, dan lemari serbaguna bisa menjadi solusi cerdas untuk memaksimalkan ruang.
- Cermin: Cermin besar dapat memberikan ilusi ruang yang lebih luas, dan memantulkan cahaya, membuat ruangan terasa lebih terang.
- Desain Terbuka: Hindari sekat ruangan yang berlebihan, terutama di area publik seperti ruang tamu dan dapur. Dengan desain terbuka, ruangan akan terasa lebih lapang.
- Gunakan Dinding Berwarna Terang: Warna terang seperti putih, krem, atau abu-abu muda dapat membuat ruangan terasa lebih luas.
Melebarkan Ruang Secara Visual
Meskipun rumah 5×10 2 lantai memiliki ukuran yang terbatas, kamu bisa menciptakan ilusi ruang yang lebih luas dengan trik-trik desain berikut:
- Penerangan yang Cukup: Cahaya alami dan pencahayaan buatan yang tepat bisa membuat ruangan terasa lebih lapang. Manfaatkan jendela besar untuk memaksimalkan cahaya alami.
- Gunakan Cermin: Cermin dapat memantulkan cahaya dan menciptakan ilusi ruang yang lebih besar. Letakkan cermin di dinding atau di sudut ruangan.
- Hindari Ornamen Berlebihan: Hindari dekorasi dinding yang berlebihan, karena dapat membuat ruangan terasa sempit.
- Pilih Furnitur dengan Kaki Tinggi: Furnitur dengan kaki tinggi akan membuat ruangan terlihat lebih luas.
Desain Rumah 5×10 2 Lantai dengan Anggaran Terbatas
Membangun rumah 2 lantai dengan anggaran terbatas membutuhkan perencanaan yang matang. Berikut beberapa langkah yang bisa kamu lakukan:
- Tetapkan Anggaran: Buatlah daftar kebutuhan dan prioritas, dan tentukan anggaran yang realistis.
- Pilih Material yang Tepat: Pilih material bangunan yang berkualitas dan terjangkau. Kamu bisa mempertimbangkan material seperti batu bata, kayu, atau beton.
- Desain Sederhana: Desain sederhana dengan sedikit ornamen dapat membantu menekan biaya.
- Manfaatkan Tenaga Kerja Lokal: Mempekerjakan tenaga kerja lokal bisa menjadi solusi untuk menghemat biaya.
- Gunakan Material Bekas: Jika memungkinkan, gunakan material bekas yang masih layak pakai.
Membangun rumah 5×10 2 lantai adalah sebuah tantangan yang menarik. Dengan perencanaan yang matang dan kreativitas dalam desain, Anda dapat menciptakan rumah yang nyaman, fungsional, dan estetis meskipun dengan lahan yang terbatas. Artikel ini telah memberikan panduan lengkap untuk membangun rumah 5×10 2 lantai yang ideal. Ingat, rumah impian Anda tidak harus selalu besar, yang terpenting adalah sesuai dengan kebutuhan dan mencerminkan kepribadian Anda.
Bagian Pertanyaan Umum (FAQ)
Bagaimana cara memaksimalkan ruang di rumah 5×10 2 lantai?
Manfaatkan furnitur multifungsi, cermin untuk menciptakan ilusi ruang yang lebih luas, dan desain vertikal untuk penyimpanan.
Apakah rumah 5×10 2 lantai cocok untuk keluarga besar?
Rumah 5×10 2 lantai cocok untuk keluarga kecil hingga menengah. Untuk keluarga besar, perlu penyesuaian desain dan tata letak yang optimal.
Berapa biaya membangun rumah 5×10 2 lantai?
Biaya membangun rumah 5×10 2 lantai bervariasi tergantung material, finishing, dan lokasi. Anda dapat berkonsultasi dengan arsitek atau kontraktor untuk estimasi biaya yang lebih akurat.

