Desain Rumah 5 x 12 Membangun Hunian Nyaman di Lahan Terbatas

Desain rumah 5 x 12

Membangun rumah di lahan terbatas bukan berarti harus mengorbankan kenyamanan dan estetika. Desain rumah 5 x 12 meter, meski terkesan kecil, bisa dimaksimalkan dengan berbagai konsep dan tata letak yang tepat. Rumah mungil ini bisa disulap menjadi hunian yang nyaman dan fungsional, dengan sentuhan desain yang menarik dan pemilihan material yang cerdas.

Dari pemilihan konsep desain, tata letak ruangan, material, hingga pencahayaan dan ventilasi, setiap aspek akan dibahas secara detail dalam artikel ini. Anda akan mendapatkan inspirasi dan panduan praktis untuk membangun rumah 5 x 12 meter yang sesuai dengan kebutuhan dan impian Anda.

Konsep Desain

Desain rumah 5 x 12

Membangun rumah di lahan terbatas, seperti 5 x 12 meter, membutuhkan perencanaan yang matang. Desain yang tepat bisa memaksimalkan ruang dan menciptakan hunian yang nyaman dan fungsional. Ada beberapa konsep desain yang cocok untuk rumah dengan ukuran ini, dan kami akan membahas tiga gaya populer: minimalis modern, klasik, dan industrial.

Desain Minimalis Modern

Gaya minimalis modern identik dengan kesederhanaan dan fungsionalitas. Rumah dengan konsep ini biasanya didominasi oleh garis-garis bersih, bentuk geometris, dan penggunaan material yang simpel seperti beton, kayu, dan kaca. Pencahayaan alami juga menjadi elemen penting dalam desain minimalis modern.

Sebagai contoh, rumah 5 x 12 meter dengan gaya minimalis modern bisa dirancang dengan ruang tamu yang terintegrasi dengan dapur dan ruang makan. Dinding-dindingnya bisa dicat dengan warna netral seperti putih atau abu-abu, sementara furniturenya menggunakan desain minimalis dengan warna monokromatik. Pencahayaan alami bisa diperoleh melalui jendela besar yang menghadap ke taman kecil di bagian belakang rumah.

Desain Klasik

Desain klasik menawarkan keanggunan dan kemewahan. Rumah dengan gaya klasik biasanya menggunakan material seperti kayu, batu alam, dan logam. Elemen desainnya meliputi ukiran, ornamen, dan detail-detail yang rumit.

Contohnya, rumah 5 x 12 meter dengan gaya klasik bisa dirancang dengan ruang tamu yang formal dan elegan. Lantainya bisa menggunakan parket kayu, dindingnya bisa dilapisi dengan wallpaper bermotif klasik, dan furniturnya menggunakan desain klasik dengan bahan kayu berukir. Pencahayaan bisa diperoleh melalui lampu gantung kristal yang mewah.

Desain Industrial

Desain industrial mengusung konsep ruang terbuka dan menampilkan elemen-elemen yang terinspirasi dari bangunan pabrik. Rumah dengan gaya industrial biasanya menggunakan material seperti batu bata ekspos, besi, dan kayu yang sudah diawetkan. Elemen desainnya meliputi pipa-pipa yang terlihat, lampu-lampu gantung dengan bentuk sederhana, dan furniture dengan desain vintage.

Desain rumah 5 x 12 memang mungil, tapi jangan salah, tetap bisa nyaman dan fungsional kok! Mau cari inspirasi desain rumah dengan luas bangunan yang lebih besar? Desain rumah type 36 72 bisa jadi pilihan, dengan ruang yang lebih lega dan beragam layout yang bisa kamu sesuaikan. Nah, kembali ke desain rumah 5 x 12, kamu bisa memanfaatkan lahan terbatas dengan penataan yang cerdas dan pemilihan furnitur multifungsi.

Contohnya, rumah 5 x 12 meter dengan gaya industrial bisa dirancang dengan ruang tamu yang terbuka dan terintegrasi dengan dapur. Dindingnya bisa menggunakan batu bata ekspos, lantainya bisa menggunakan lantai beton, dan furniturnya menggunakan desain vintage dengan bahan kayu dan besi. Pencahayaan bisa diperoleh melalui lampu gantung dengan bentuk sederhana.

Perbandingan Tiga Gaya Desain

Elemen Desain Minimalis Modern Klasik Industrial
Material Beton, kayu, kaca Kayu, batu alam, logam Batu bata ekspos, besi, kayu diawetkan
Warna Netral (putih, abu-abu, hitam) Warna hangat (coklat, krem, emas) Warna gelap (hitam, abu-abu tua, merah bata)
Furnitur Minimalis, bentuk sederhana Klasik, berukir, detail rumit Vintage, desain sederhana, bahan kayu dan besi
Pencahayaan Pencahayaan alami, lampu minimalis Lampu gantung kristal, lampu dinding klasik Lampu gantung sederhana, lampu sorot

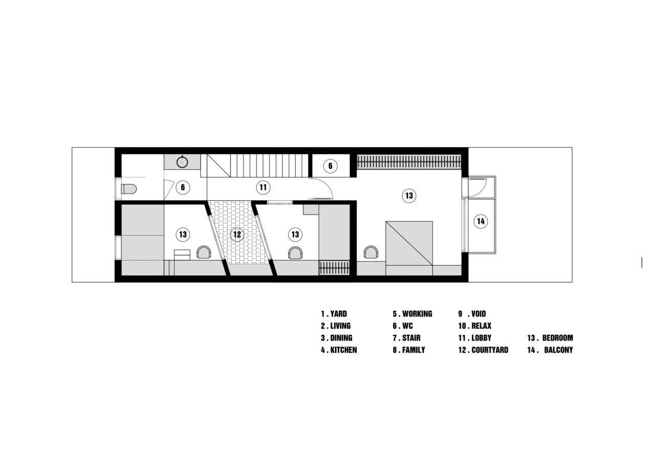
Tata Letak

Desain rumah 5 x 12

Tata letak rumah 5 x 12 meter bisa menjadi tantangan karena keterbatasan luas. Namun, dengan perencanaan yang tepat, Anda dapat menciptakan ruang yang fungsional dan nyaman. Berikut beberapa sketsa tata letak ruangan yang dapat menjadi inspirasi.

Sketsa Tata Letak Ruangan

Berikut adalah beberapa sketsa tata letak ruangan untuk rumah 5 x 12 meter yang dapat Anda pertimbangkan:

  • Ruang Tamu Terbuka: Letakkan ruang tamu di bagian depan rumah, terhubung langsung dengan ruang makan dan dapur. Ini menciptakan area terbuka yang lapang.
  • Ruang Makan Minimalis: Gunakan meja makan yang kecil dan ramping untuk memaksimalkan ruang.
  • Dapur Terbuka: Dapur terbuka terhubung dengan ruang makan, memudahkan interaksi dan aliran lalu lintas.
  • Kamar Tidur Compact: Letakkan kamar tidur di bagian belakang rumah, dengan penataan furnitur yang minimalis.

Memaksimalkan Ruang

Berikut beberapa tips untuk memaksimalkan ruang pada rumah 5 x 12 meter:

  • Pilih Furnitur Multifungsi: Sofa bed, meja lipat, atau rak dinding yang dapat berfungsi ganda.
  • Manfaatkan Ruang Vertikal: Gunakan rak dinding, lemari gantung, atau cermin untuk menambah ruang penyimpanan dan ilusi ruang yang lebih luas.
  • Warna Cerah: Gunakan warna-warna terang dan netral untuk menciptakan kesan ruangan yang lebih luas.
  • Pencahayaan yang Baik: Cahaya alami dan lampu yang tepat dapat membuat ruangan terasa lebih lapang.

Contoh Tata Letak Rumah 5 x 12 Meter dengan 1 Kamar Tidur

Contoh tata letak rumah 5 x 12 meter dengan 1 kamar tidur:

  • Ruang Tamu: Berada di bagian depan rumah, dengan sofa kecil dan meja kopi.
  • Ruang Makan: Terletak di sebelah ruang tamu, dengan meja makan untuk 2 orang.
  • Dapur: Dapur terbuka terhubung dengan ruang makan, dengan desain minimalis.
  • Kamar Tidur: Terletak di bagian belakang rumah, dengan tempat tidur single dan lemari kecil.
  • Kamar Mandi: Terletak di samping kamar tidur, dengan shower dan toilet.

Contoh Tata Letak Rumah 5 x 12 Meter dengan 2 Kamar Tidur

Contoh tata letak rumah 5 x 12 meter dengan 2 kamar tidur:

  • Ruang Tamu: Berada di bagian depan rumah, dengan sofa kecil dan meja kopi.
  • Ruang Makan: Terletak di sebelah ruang tamu, dengan meja makan untuk 2 orang.
  • Dapur: Dapur terbuka terhubung dengan ruang makan, dengan desain minimalis.
  • Kamar Tidur Utama: Terletak di bagian belakang rumah, dengan tempat tidur double dan lemari.
  • Kamar Tidur Kedua: Terletak di samping kamar tidur utama, dengan tempat tidur single dan lemari kecil.

  • Kamar Mandi: Terletak di samping kamar tidur, dengan shower dan toilet.

Perbandingan Tata Letak Rumah 5 x 12 Meter, Desain rumah 5 x 12

Fitur Rumah 1 Kamar Tidur Rumah 2 Kamar Tidur
Luas Ruang Tamu Lebih luas Lebih sempit
Luas Kamar Tidur Lebih luas Lebih sempit
Jumlah Kamar Mandi 1 1
Ketersediaan Ruang Penyimpanan Terbatas Terbatas

Pemilihan Material

Desain rumah 5 x 12

Membangun rumah 5 x 12 meter memberikan tantangan tersendiri dalam pemilihan material. Luas yang terbatas mengharuskan pertimbangan cermat agar rumah tetap nyaman dan fungsional. Faktor biaya dan estetika menjadi kunci dalam menentukan material yang tepat.

Jenis Material dan Pertimbangannya

Beberapa jenis material yang umum digunakan untuk membangun rumah, dengan kelebihan dan kekurangan masing-masing, antara lain:

  • Bata Merah

    • Kelebihan: Tahan lama, kuat, dan mudah ditemukan.
    • Kekurangan: Biaya relatif mahal, membutuhkan waktu yang lebih lama untuk proses pembangunan, dan membutuhkan tenaga ahli untuk pemasangan.
  • Bata Ringan

    • Kelebihan: Lebih ringan dibandingkan bata merah, mudah dipotong dan dipasang, dan lebih cepat proses pembangunannya.
    • Kekurangan: Kekuatannya tidak sekuat bata merah, dan harganya relatif lebih mahal.
  • Beton

    • Kelebihan: Kuat, tahan lama, dan tahan terhadap cuaca ekstrem.
    • Kekurangan: Biaya yang relatif mahal, proses pembangunan yang membutuhkan waktu yang lebih lama, dan membutuhkan tenaga ahli untuk pemasangan.
  • Kayu

    • Kelebihan: Lebih mudah dibentuk dan dikerjakan, ramah lingkungan, dan memberikan kesan hangat pada rumah.
    • Kekurangan: Mudah lapuk dan terbakar, membutuhkan perawatan khusus, dan harganya relatif lebih mahal.
  • Baja Ringan

    • Kelebihan: Ringan, kuat, tahan karat, dan mudah dipasang.
    • Kekurangan: Biaya yang relatif mahal, dan membutuhkan tenaga ahli untuk pemasangan.

Memilih Material yang Tepat

Pemilihan material yang tepat untuk membangun rumah 5 x 12 meter sangat penting. Berikut adalah beberapa faktor yang perlu dipertimbangkan:

  • Biaya: Tentukan anggaran yang tersedia dan sesuaikan dengan jenis material yang ingin digunakan. Bata merah dan beton umumnya memiliki biaya yang lebih tinggi dibandingkan bata ringan dan baja ringan. Pertimbangkan juga biaya perawatan jangka panjang untuk setiap jenis material.

    Membangun rumah dengan lahan terbatas? Desain rumah 5 x 12 bisa jadi solusi yang menarik. Ingin mencari inspirasi desain yang tepat? Kamu bisa cek majalah terbitan Gramedia yang berisi inspirasi desain rumah tts. Majalah ini punya banyak ide desain rumah minimalis yang bisa kamu aplikasikan di rumah 5 x 12, mulai dari penataan ruang hingga pemilihan warna.

    Dengan referensi yang tepat, kamu bisa ciptakan rumah impian yang nyaman dan fungsional, meskipun di lahan yang terbatas.

  • Estetika: Sesuaikan pilihan material dengan konsep desain rumah yang diinginkan. Jika ingin menghadirkan kesan minimalis modern, material seperti bata ringan, baja ringan, dan kayu bisa menjadi pilihan yang tepat.

  • Keamanan: Pastikan material yang dipilih memiliki tingkat keamanan yang tinggi, terutama untuk struktur bangunan. Beton dan baja ringan umumnya memiliki tingkat keamanan yang lebih tinggi dibandingkan material lainnya.

  • Ketahanan: Pertimbangkan kondisi lingkungan dan cuaca di tempat tinggal. Material yang tahan terhadap cuaca ekstrem seperti hujan, panas, dan angin akan lebih awet dan tahan lama.

Contoh Kombinasi Material

Untuk membangun rumah 5 x 12 meter dengan gaya minimalis modern, kombinasi material yang tepat bisa menggunakan bata ringan untuk dinding, baja ringan untuk rangka atap, dan kayu untuk bagian interior seperti kusen pintu dan jendela. Kombinasi ini memberikan kesan modern dan minimalis dengan biaya yang relatif terjangkau.

Desain rumah 5 x 12 memang ideal untuk keluarga kecil, tapi jika kamu ingin ruang yang lebih luas, mungkin desain rumah 9×10 2 lantai bisa jadi pilihan. Desain rumah 9×10 2 lantai menawarkan fleksibilitas untuk memaksimalkan ruang, baik untuk hunian pribadi maupun bisnis. Namun, jika lahan terbatas, desain rumah 5 x 12 tetap bisa dimaksimalkan dengan penataan interior yang cermat dan pemilihan furnitur yang tepat.

Pencahayaan dan Ventilasi: Desain Rumah 5 X 12

Desain rumah 5 x 12

Rumah dengan ukuran 5 x 12 meter memiliki luas yang cukup terbatas, sehingga memaksimalkan pencahayaan alami dan ventilasi menjadi sangat penting untuk menciptakan suasana yang nyaman dan sehat. Pencahayaan dan ventilasi yang baik akan membantu menghemat energi, meningkatkan kualitas udara, dan menciptakan suasana yang lebih menyenangkan di dalam rumah.

Memaksimalkan Pencahayaan Alami

Untuk memaksimalkan pencahayaan alami di rumah 5 x 12 meter, Anda dapat menerapkan beberapa strategi berikut:

  • Gunakan Jendela Besar: Jendela yang besar akan memungkinkan cahaya matahari masuk lebih banyak ke dalam ruangan. Posisikan jendela di sisi utara dan selatan rumah untuk memaksimalkan pencahayaan sepanjang hari.
  • Gunakan Jendela dengan Kaca Bening: Hindari penggunaan kaca berwarna gelap atau berpola yang dapat menghalangi cahaya matahari masuk.
  • Manfaatkan Cermin: Letakkan cermin di dekat jendela untuk memantulkan cahaya ke bagian ruangan yang lebih gelap.
  • Pilih Warna Cat yang Terang: Warna cat dinding yang terang akan memantulkan cahaya dan membuat ruangan terasa lebih terang.

Memaksimalkan Ventilasi

Ventilasi yang baik akan membantu sirkulasi udara segar dan mengurangi kelembapan di dalam rumah. Berikut adalah beberapa cara untuk memaksimalkan ventilasi di rumah 5 x 12 meter:

  • Buat Ventilasi Silang: Posisikan jendela dan pintu di sisi berlawanan rumah untuk menciptakan aliran udara yang baik.
  • Gunakan Ventilasi Atap: Ventilasi atap dapat membantu mengeluarkan udara panas dan lembap dari rumah.
  • Pasang Kipas Angin: Kipas angin dapat membantu sirkulasi udara di dalam rumah, terutama di ruangan yang kurang ventilasi.
  • Tanam Pohon: Tanam pohon di sekitar rumah untuk menciptakan naungan dan mengurangi panas.

Contoh Desain Jendela dan Ventilasi

Berikut beberapa contoh desain jendela dan ventilasi yang cocok untuk rumah 5 x 12 meter:

  • Jendela Geser: Jendela geser hemat tempat dan mudah dibuka dan ditutup.
  • Jendela Baji: Jendela baji dapat memberikan ventilasi yang lebih baik dibandingkan jendela geser.
  • Ventilasi Atap: Ventilasi atap dapat berupa kisi-kisi atau lubang ventilasi yang ditutup dengan kisi-kisi.

Memilih Sistem Pencahayaan Buatan

Pencahayaan buatan sangat penting untuk menerangi rumah saat malam hari atau ketika cahaya matahari tidak mencukupi. Berikut adalah beberapa hal yang perlu dipertimbangkan saat memilih sistem pencahayaan buatan untuk rumah 5 x 12 meter:

  • Jenis Lampu: Pilih lampu LED karena lebih hemat energi dan memiliki masa pakai yang lebih lama dibandingkan lampu pijar atau lampu neon.
  • Suhu Warna: Suhu warna lampu diukur dalam Kelvin (K). Lampu dengan suhu warna 2700-3000K cocok untuk ruang tamu dan kamar tidur, sedangkan lampu dengan suhu warna 4000-4500K cocok untuk dapur dan ruang kerja.
  • Daya Lampu: Pilih daya lampu yang sesuai dengan kebutuhan ruangan. Ruangan yang lebih luas membutuhkan daya lampu yang lebih besar.

Jenis Pencahayaan Buatan untuk Berbagai Ruangan

Ruangan Jenis Pencahayaan Suhu Warna Daya Lampu
Ruang Tamu Lampu Gantung, Lampu Meja 2700-3000K 10-15 Watt
Kamar Tidur Lampu Tidur, Lampu Meja 2700-3000K 5-10 Watt
Dapur Lampu Sorot, Lampu Neon 4000-4500K 15-20 Watt
Ruang Kerja Lampu Meja, Lampu Neon 4000-4500K 10-15 Watt
Kamar Mandi Lampu Sorot, Lampu Cermin 3000-3500K 5-10 Watt

Inspirasi Desain

Desain rumah 5 x 12

Membangun rumah dengan lahan terbatas seperti 5 x 12 meter memang menantang, tapi jangan khawatir! Dengan desain yang tepat, rumah mungilmu bisa tetap nyaman dan fungsional. Berikut beberapa inspirasi desain rumah 5 x 12 meter yang bisa kamu tiru.

Contoh Desain Rumah 5 x 12 Meter

Berikut beberapa contoh desain rumah 5 x 12 meter yang bisa kamu jadikan inspirasi:

  • Desain Rumah Minimalis Modern: Rumah dengan desain minimalis modern biasanya mengutamakan kesederhanaan dan fungsionalitas. Desain ini cocok untuk kamu yang menginginkan rumah yang bersih, rapi, dan tidak terlalu ramai. Kamu bisa menggunakan warna-warna netral seperti putih, abu-abu, atau hitam, serta material seperti kayu dan kaca. Contohnya, kamu bisa membuat teras depan yang minimalis dengan pagar kayu dan tanaman hijau, serta jendela kaca besar untuk memaksimalkan cahaya alami.

  • Desain Rumah Tropis: Desain rumah tropis cocok untuk iklim Indonesia yang panas dan lembap. Desain ini biasanya menggunakan material alami seperti kayu dan bambu, serta memiliki banyak ventilasi udara. Kamu bisa menambahkan sentuhan tropis dengan menggunakan tanaman hijau, batu alam, dan warna-warna cerah seperti kuning, hijau, dan biru. Contohnya, kamu bisa membuat teras depan yang luas dengan atap dari kayu dan tanaman rambat, serta dinding dari batu alam.

  • Desain Rumah Industrial: Desain rumah industrial biasanya menggunakan material seperti besi, beton, dan batu bata. Desain ini cocok untuk kamu yang menginginkan rumah dengan kesan modern dan edgy. Kamu bisa menambahkan sentuhan industrial dengan menggunakan furnitur berbahan besi, lampu gantung, dan dinding bata ekspos. Contohnya, kamu bisa membuat teras depan yang minimalis dengan pagar besi dan tanaman hijau, serta dinding bata ekspos yang diberi cat warna gelap.

Tips Mendesain Rumah 5 x 12 Meter

“Kunci utama mendesain rumah 5 x 12 meter adalah memaksimalkan ruang dan menciptakan sirkulasi udara yang baik. Gunakan furnitur multifungsi, cermin untuk memperluas ruangan, dan jendela yang besar untuk memaksimalkan cahaya alami.”

Contoh Desain Interior Rumah 5 x 12 Meter Minimalis Modern

Desain interior rumah 5 x 12 meter minimalis modern biasanya mengutamakan kesederhanaan dan fungsionalitas. Kamu bisa menggunakan warna-warna netral seperti putih, abu-abu, atau hitam, serta material seperti kayu dan kaca. Contohnya, kamu bisa menggunakan sofa minimalis berwarna abu-abu, meja kopi berbahan kayu, dan rak dinding berbahan kaca. Tambahkan tanaman hijau untuk menambah kesegaran ruangan.

Contoh Desain Interior Rumah 5 x 12 Meter Klasik

Desain interior rumah 5 x 12 meter klasik biasanya menggunakan warna-warna hangat seperti krem, cokelat, dan emas, serta material seperti kayu dan batu alam. Kamu bisa menggunakan furnitur berukir, lampu gantung kristal, dan karpet bermotif. Contohnya, kamu bisa menggunakan sofa klasik berwarna krem, meja kopi berbahan kayu dengan ukiran, dan karpet bermotif bunga. Tambahkan lampu gantung kristal untuk menambah kesan mewah ruangan.

Desain rumah 5 x 12 meter membuktikan bahwa ruang yang terbatas tidak menghalangi Anda untuk memiliki hunian yang nyaman dan estetis. Dengan perencanaan yang matang dan pemilihan elemen desain yang tepat, rumah mungil ini bisa menjadi tempat tinggal yang ideal bagi Anda dan keluarga.

FAQ Terperinci

Apakah desain rumah 5 x 12 meter cocok untuk keluarga besar?

Tergantung dari jumlah anggota keluarga. Untuk keluarga kecil, desain ini bisa cukup. Namun, jika keluarga besar, Anda perlu mempertimbangkan tata letak yang efisien dan memaksimalkan ruang.

Berapa biaya estimasi untuk membangun rumah 5 x 12 meter?

Biaya membangun rumah 5 x 12 meter bervariasi tergantung material, desain, dan lokasi. Konsultasikan dengan arsitek atau kontraktor untuk mendapatkan estimasi yang lebih akurat.

Leave a Comment

Your email address will not be published. Required fields are marked *

Scroll to Top