Desain Rumah 12×10 Meter Panduan Lengkap dan Inspirasi 3D

Desain rumah 12x10 3d

Desain rumah 12×10 3d – Membangun rumah impian di lahan terbatas? Desain rumah 12×10 meter bisa jadi solusinya! Dengan perencanaan yang tepat, rumah mungil ini bisa diubah menjadi hunian yang nyaman dan estetis. Artikel ini akan memandu Anda dalam menata ruang, memilih konsep desain, hingga inspirasi desain rumah 12×10 meter 3D yang memikat.

Anda akan menemukan berbagai macam desain rumah 12×10 meter yang populer, tips memaksimalkan ruang, contoh denah dan gambar ilustrasi 3D, serta berbagai konsep desain yang bisa diterapkan. Selain itu, artikel ini juga membahas tips desain interior yang mengutamakan efisiensi ruang dan estetika, pemilihan warna dan material yang tepat, serta contoh desain rumah 12×10 meter yang sudah diterapkan untuk berbagai kebutuhan keluarga.

Desain Rumah 12×10 Meter

Desain rumah 12x10 3d

Memiliki rumah dengan luas tanah 12×10 meter bisa menjadi impian bagi banyak orang. Luas ini cukup ideal untuk membangun rumah yang nyaman dan fungsional untuk keluarga kecil hingga menengah. Namun, dengan luas tanah yang terbatas, diperlukan perencanaan yang matang untuk memaksimalkan setiap sudut dan menciptakan hunian yang sesuai dengan kebutuhan dan gaya hidup penghuninya. Artikel ini akan membahas berbagai desain rumah 12×10 meter yang populer, tips memaksimalkan ruang, dan perbandingan desain untuk membantu Anda menemukan inspirasi dan solusi terbaik untuk rumah impian Anda.

Desain Rumah 12×10 Meter yang Populer

Desain rumah 12×10 meter menawarkan fleksibilitas untuk mewujudkan berbagai konsep hunian, mulai dari minimalis modern hingga klasik elegan. Berikut beberapa contoh desain yang populer:

  • Desain Rumah Minimalis Modern: Desain ini menekankan pada kesederhanaan, garis-garis bersih, dan penggunaan material modern seperti kaca dan beton. Denah rumah biasanya terbagi menjadi ruang tamu, ruang makan, dapur, 2-3 kamar tidur, dan 1-2 kamar mandi. Contohnya, ruang tamu dapat diintegrasikan dengan ruang makan untuk menciptakan kesan luas dan lapang.
  • Desain Rumah Tropis Kontemporer: Desain ini memadukan elemen tropis seperti penggunaan kayu dan batu alam dengan sentuhan modern.

    Ciri khasnya adalah ventilasi yang baik, pencahayaan alami, dan penggunaan teras atau balkon untuk menikmati suasana luar.

  • Desain Rumah Klasik Elegan: Desain ini mengusung nuansa klasik dengan penggunaan material tradisional seperti kayu jati, batu bata, dan aksen dekoratif seperti kusen jendela dan pintu yang rumit. Denah rumah biasanya terbagi menjadi ruang tamu, ruang makan, dapur, 3-4 kamar tidur, dan 2-3 kamar mandi.

    Desain rumah 12×10 3d memang menarik, memberikan gambaran realistis tentang rumah impianmu. Tapi, kalau kamu punya lahan terbatas, bisa juga kok eksplorasi desain rumah dengan ukuran lebih kecil, misalnya 10×6. Lihat saja contoh desain rumah 10 x 6 melebar yang bisa kamu jadikan inspirasi. Dengan desain yang tepat, rumah mungil pun bisa tetap nyaman dan fungsional.

    Kembali ke desain rumah 12×10 3d, kamu bisa bermain dengan berbagai konsep, mulai dari minimalis modern hingga klasik elegan, sesuai selera.

Tips Memaksimalkan Ruang di Rumah 12×10 Meter

Memiliki rumah dengan luas terbatas bukan berarti harus mengorbankan kenyamanan dan estetika. Berikut beberapa tips untuk memaksimalkan ruang di rumah 12×10 meter:

  • Manfaatkan Ruang Vertikal: Gunakan rak dinding, lemari gantung, dan tempat tidur bertingkat untuk menyimpan barang dan memaksimalkan ruang vertikal.
  • Pilih Furnitur Multifungsi: Pilih furnitur yang memiliki fungsi ganda, seperti sofa bed atau meja makan yang dapat dilipat.
  • Gunakan Cermin: Cermin dapat menciptakan ilusi ruang yang lebih luas dan memantulkan cahaya alami.
  • Pilih Warna Cerah: Warna cerah dapat membuat ruangan terasa lebih luas dan lapang.
  • Buat Area Terbuka: Jika memungkinkan, buat area terbuka seperti teras atau balkon untuk memperluas ruang dan memberikan akses ke udara segar.

    Desain rumah 12×10 3d memberikan banyak fleksibilitas dalam penataan ruangan. Jika kamu menginginkan suasana yang lebih natural dan hangat, mungkin desain rumah panggung kayu bisa menjadi pilihan menarik. Konsep ini tidak hanya estetis, tapi juga menawarkan sirkulasi udara yang lebih baik dan bisa meminimalisir risiko banjir. Dengan perencanaan yang tepat, desain rumah 12×10 3d dengan konsep panggung kayu bisa menjadi hunian yang nyaman dan estetis.

Perbandingan Desain Rumah 12×10 Meter

Berikut adalah tabel perbandingan berbagai desain rumah 12×10 meter dengan penekanan pada fungsi ruangan, gaya arsitektur, dan estimasi biaya:

Jenis Desain Keunggulan Kekurangan Contoh Gambar
Minimalis Modern Terkesan luas, sederhana, dan modern; biaya pembangunan relatif terjangkau. Kurang cocok untuk keluarga besar; desain yang terlalu minimalis mungkin terasa kurang hangat. [Gambar ilustrasi rumah minimalis modern 12×10 meter dengan denah dan detail ruangan]
Tropis Kontemporer Sejuk dan nyaman, cocok untuk iklim tropis; desain yang unik dan menarik. Biaya pembangunan relatif lebih tinggi; membutuhkan perawatan khusus untuk material kayu dan batu alam. [Gambar ilustrasi rumah tropis kontemporer 12×10 meter dengan denah dan detail ruangan]
Klasik Elegan Mewah dan elegan, cocok untuk keluarga yang menyukai desain tradisional; menawarkan privasi dan kenyamanan yang tinggi. Biaya pembangunan relatif mahal; membutuhkan perawatan khusus untuk material kayu jati dan batu bata. [Gambar ilustrasi rumah klasik elegan 12×10 meter dengan denah dan detail ruangan]

Tips Mendesain Rumah 12×10 Meter

Desain rumah 12x10 3d

Memiliki rumah dengan luas 12×10 meter mungkin terasa terbatas, tetapi dengan perencanaan yang tepat, Anda dapat menciptakan hunian yang nyaman dan estetis. Desain interior yang efisien dan penggunaan ruang yang maksimal adalah kunci untuk memaksimalkan potensi rumah mungil ini. Artikel ini akan membahas beberapa tips desain yang dapat membantu Anda menciptakan rumah 12×10 meter yang fungsional dan indah.

Membangun rumah dengan ukuran 12×10 meter memang menantang, tapi bisa jadi lebih seru dengan tambahan bengkel. Untuk kamu yang hobi kerajinan tangan atau punya bisnis rumahan, desain rumah plus bengkel bisa jadi solusi yang tepat. Dengan desain yang tepat, kamu bisa mendapatkan ruang yang nyaman untuk keluarga dan bengkel yang fungsional. Model 3D bisa membantu kamu memvisualisasikan desain rumah 12×10 meter dengan bengkel, sehingga kamu bisa lebih yakin dengan pilihanmu.

Tips Desain Interior

Desain interior rumah 12×10 meter harus mengutamakan efisiensi ruang. Hal ini dapat dicapai dengan menggunakan furnitur multifungsi, memaksimalkan ruang vertikal, dan menerapkan skema warna yang tepat. Berikut beberapa tips yang dapat Anda terapkan:

  • Pilih furnitur multifungsi: Sofa bed, meja lipat, atau rak dinding dengan laci adalah contoh furnitur multifungsi yang dapat menghemat ruang.
  • Manfaatkan ruang vertikal: Rak dinding, cermin besar, atau lemari gantung dapat membantu memaksimalkan ruang vertikal dan menciptakan ilusi ruangan yang lebih luas.
  • Terapkan skema warna yang tepat: Warna terang dan netral seperti putih, krem, atau abu-abu dapat menciptakan kesan ruangan yang lebih luas. Hindari penggunaan warna gelap yang dapat membuat ruangan terasa sempit.

Pentingnya Pencahayaan dan Ventilasi, Desain rumah 12×10 3d

Pencahayaan dan ventilasi yang baik sangat penting untuk menciptakan suasana rumah yang nyaman dan sehat. Rumah 12×10 meter yang kurang pencahayaan dan ventilasi dapat terasa pengap dan sempit. Berikut beberapa tips untuk memaksimalkan pencahayaan dan ventilasi:

  • Gunakan jendela yang besar: Jendela yang besar memungkinkan cahaya matahari masuk dan memberikan ventilasi yang baik.
  • Manfaatkan cermin: Cermin dapat memantulkan cahaya dan menciptakan ilusi ruangan yang lebih luas.
  • Pastikan ventilasi yang memadai: Pastikan rumah memiliki ventilasi yang cukup, baik melalui jendela maupun ventilasi udara.

Contoh Desain Ruangan

Berikut tabel yang berisi contoh desain ruangan pada rumah 12×10 meter:

Ruangan Tips Desain Contoh Gambar
Ruang Tamu Gunakan sofa bed, meja lipat, dan rak dinding untuk menghemat ruang. Gunakan warna terang dan netral untuk menciptakan kesan ruangan yang lebih luas. [Gambar ruang tamu dengan sofa bed, meja lipat, dan rak dinding. Dinding dicat dengan warna putih]
Kamar Tidur Gunakan tempat tidur bertingkat atau ranjang dengan laci penyimpanan untuk memaksimalkan ruang. Gunakan warna lembut dan tenang untuk menciptakan suasana yang nyaman. [Gambar kamar tidur dengan tempat tidur bertingkat dan lemari dengan laci penyimpanan. Dinding dicat dengan warna biru muda]
Dapur Gunakan lemari dapur dengan desain minimalis dan efisien. Gunakan warna putih atau abu-abu untuk menciptakan kesan ruangan yang bersih dan luas. [Gambar dapur dengan lemari dapur minimalis berwarna putih. Dinding dicat dengan warna abu-abu]
Kamar Mandi Gunakan shower box atau bathtub dengan ukuran minimalis. Gunakan warna terang dan netral untuk menciptakan kesan ruangan yang bersih dan luas. [Gambar kamar mandi dengan shower box dan wastafel minimalis. Dinding dicat dengan warna putih]

Memilih Warna dan Material

Pilihan warna dan material yang tepat dapat mempengaruhi suasana dan estetika rumah. Berikut beberapa tips untuk memilih warna dan material yang tepat untuk desain rumah 12×10 meter:

  • Pilih warna terang dan netral: Warna terang dan netral seperti putih, krem, atau abu-abu dapat menciptakan kesan ruangan yang lebih luas dan terang.
  • Gunakan material yang ringan: Material yang ringan seperti kayu, bambu, atau aluminium dapat memberikan kesan ruangan yang lebih luas dan tidak terkesan berat.
  • Hindari penggunaan material yang terlalu banyak motif: Material dengan motif yang berlebihan dapat membuat ruangan terasa sempit dan ramai.

Contoh Desain Rumah 12×10 Meter: Desain Rumah 12×10 3d

Desain rumah 12x10 3d

Memiliki lahan terbatas bukan berarti Anda harus mengorbankan impian memiliki rumah yang nyaman dan fungsional. Desain rumah 12×10 meter, meskipun terkesan minimalis, bisa dimaksimalkan dengan berbagai penataan ruangan yang cerdas. Dengan perencanaan yang matang, rumah dengan luas ini bisa mengakomodasi kebutuhan keluarga, mulai dari pasangan muda hingga keluarga besar.

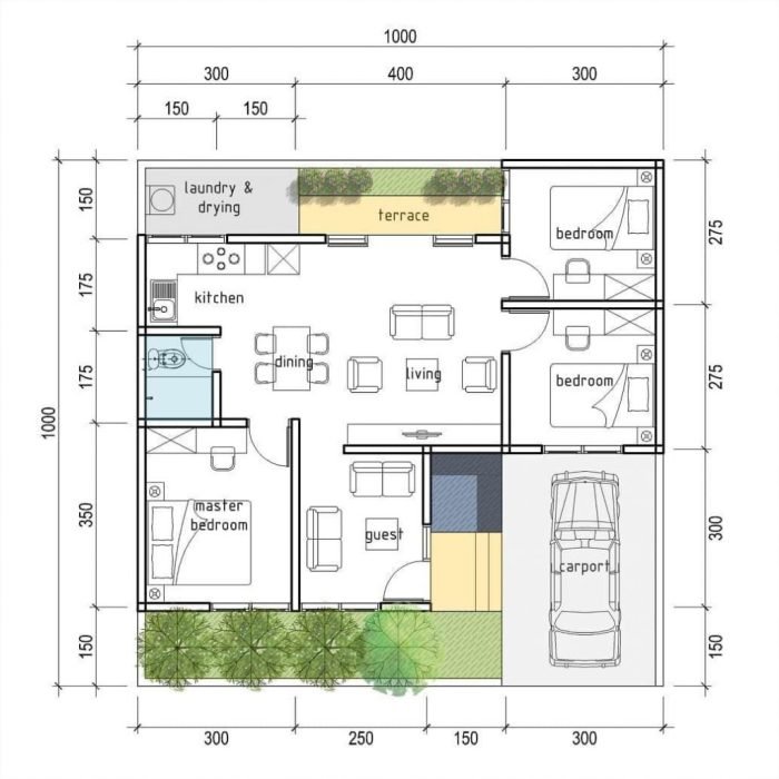
Contoh Denah dan Ilustrasi 3D

Berikut contoh denah dan ilustrasi 3D untuk desain rumah 12×10 meter, yang menunjukkan bagaimana ruangan-ruangan dapat disusun secara efisien:

Ruangan Fungsi Ukuran Contoh Gambar
Ruang Tamu Tempat berkumpul dan menerima tamu 3×4 meter Contoh gambar: Ruang tamu yang didesain minimalis dengan sofa berwarna netral dan rak dinding untuk menyimpan barang-barang. Terdapat jendela besar untuk sirkulasi udara dan cahaya alami.
Dapur Tempat memasak dan menyiapkan makanan 2×3 meter Contoh gambar: Dapur dengan desain L-shape, dilengkapi dengan kitchen set dan peralatan masak yang lengkap. Terdapat jendela kecil untuk ventilasi dan cahaya.
Kamar Tidur Utama Tempat istirahat dan tidur 3×3 meter Contoh gambar: Kamar tidur utama dengan tempat tidur ukuran king-size, lemari pakaian built-in, dan meja rias. Terdapat jendela besar yang menghadap ke taman kecil.
Kamar Tidur Anak Tempat istirahat dan tidur anak 2×3 meter Contoh gambar: Kamar tidur anak dengan tempat tidur ukuran single, lemari pakaian kecil, dan meja belajar. Terdapat jendela kecil untuk sirkulasi udara dan cahaya.
Kamar Mandi Tempat mandi dan membersihkan diri 1.5×2 meter Contoh gambar: Kamar mandi dengan shower, toilet, dan wastafel. Dindingnya dilapisi keramik dengan motif yang menarik.

Desain Rumah 12×10 Meter untuk Berbagai Kebutuhan Keluarga

Desain rumah 12×10 meter bisa diadaptasi untuk berbagai kebutuhan keluarga, dengan penataan ruangan yang fleksibel. Berikut beberapa contoh desain yang dapat dipertimbangkan:

  • Keluarga Muda: Desain rumah yang simpel dan modern dengan penekanan pada ruang tamu dan dapur yang luas. Prioritaskan ruang terbuka untuk bersantai dan beraktivitas bersama.
  • Keluarga Besar: Desain rumah yang lebih fungsional dengan penambahan kamar tidur tambahan. Manfaatkan ruang bawah tangga untuk penyimpanan atau area kerja.
  • Pasangan Muda: Desain rumah yang minimalis dan stylish dengan fokus pada desain interior yang menarik. Gunakan warna-warna lembut dan pencahayaan yang baik untuk menciptakan suasana yang nyaman.

Contoh Desain Rumah 12×10 Meter dengan Taman Kecil dan Kolam Renang

Desain rumah 12×10 meter dengan taman kecil dan kolam renang dapat diwujudkan dengan memaksimalkan area terbuka dan memanfaatkan sudut-sudut ruangan. Contohnya, Anda bisa membangun kolam renang mini di bagian belakang rumah dengan ukuran 2×3 meter, dan taman kecil di sampingnya dengan tanaman hias yang mudah perawatan. Dengan desain yang tepat, Anda tetap bisa memiliki rumah yang nyaman dan asri.

Desain rumah 12×10 meter menawarkan kesempatan untuk menciptakan hunian yang nyaman dan fungsional dalam ruang yang terbatas. Dengan memahami konsep desain, tips tata letak, dan inspirasi 3D, Anda dapat membangun rumah impian yang sesuai dengan kebutuhan dan gaya hidup Anda. Jangan ragu untuk mengeksplorasi berbagai pilihan dan menemukan desain yang paling tepat untuk Anda.

Pertanyaan yang Sering Muncul

Apakah desain rumah 12×10 meter cocok untuk keluarga besar?

Ya, dengan perencanaan yang tepat, desain rumah 12×10 meter dapat mengakomodasi kebutuhan keluarga besar. Anda dapat memilih konsep desain yang efisien dan memaksimalkan ruang dengan furnitur multifungsi.

Berapa biaya estimasi untuk membangun rumah 12×10 meter?

Biaya pembangunan rumah 12×10 meter bervariasi tergantung pada material, desain, dan lokasi. Anda dapat berkonsultasi dengan arsitek atau kontraktor untuk mendapatkan estimasi biaya yang lebih akurat.

Leave a Comment

Your email address will not be published. Required fields are marked *

Scroll to Top