Membangun rumah dengan lahan terbatas? Desain rumah 10×10 bisa menjadi solusi yang menarik! Dengan perencanaan yang tepat, rumah mungil ini bisa diubah menjadi hunian yang nyaman dan fungsional. Anda dapat menciptakan ruang yang efisien dan estetis, tanpa mengorbankan kenyamanan dan gaya hidup.
Artikel ini akan membahas berbagai aspek penting dalam mendesain rumah 10×10, mulai dari konsep desain, tata letak ruangan, material konstruksi, hingga inspirasi desain yang menarik. Simak informasi lengkapnya dan dapatkan inspirasi untuk mewujudkan rumah impian Anda!
Konsep Desain

Membangun rumah di lahan terbatas seperti 10×10 meter, mengharuskan Anda cermat dalam merancang desain yang optimal. Tantangannya adalah bagaimana memaksimalkan ruang dan fungsi agar rumah terasa nyaman dan fungsional.
Pertimbangan Konsep Desain
Ada beberapa konsep desain yang bisa Anda terapkan untuk rumah 10×10 meter, masing-masing memiliki karakteristik dan keunggulannya sendiri.
- Minimalis: Desain minimalis menekankan pada kesederhanaan dan fungsionalitas. Rumah dengan konsep ini cenderung memiliki bentuk geometris sederhana, warna netral, dan pencahayaan alami yang melimpah.
- Modern: Desain modern cenderung lebih dinamis dan futuristik. Ciri khasnya adalah penggunaan garis-garis tegas, material modern seperti kaca dan baja, serta penataan ruang terbuka.
- Tradisional: Desain tradisional mempertahankan unsur-unsur arsitektur khas daerah tertentu. Rumah dengan konsep ini biasanya memiliki ornamen yang rumit, penggunaan material alami seperti kayu dan batu, serta penataan ruang yang lebih formal.
Tabel Perbandingan Konsep Desain
| Konsep | Ciri Khas | Kelebihan | Kekurangan |
|---|---|---|---|
| Minimalis | Kesederhanaan, fungsionalitas, bentuk geometris, warna netral, pencahayaan alami | Terkesan luas, hemat biaya, mudah dibersihkan, cocok untuk gaya hidup minimalis | Terkadang terkesan terlalu sederhana, kurang detail |
| Modern | Garis tegas, material modern, penataan ruang terbuka, penggunaan warna bold | Terkesan modern, futuristik, fleksibel, cocok untuk gaya hidup dinamis | Biaya pembangunan lebih tinggi, membutuhkan perawatan khusus, kurang cocok untuk iklim tropis |
| Tradisional | Ornamen rumit, material alami, penataan ruang formal, penggunaan warna earth tone | Terkesan hangat, klasik, timeless, cocok untuk keluarga besar | Biaya pembangunan lebih tinggi, membutuhkan perawatan khusus, kurang fleksibel |
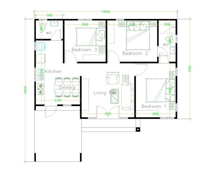
Contoh Denah Rumah 10×10
Denah rumah 10×10 ini mengusung konsep minimalis dengan penempatan ruangan yang efisien. Rumah ini terdiri dari:
- Ruang tamu: Digabung dengan ruang makan untuk memaksimalkan ruang.
- Dapur: Terletak di samping ruang makan dengan desain yang praktis.
- Kamar tidur: Memiliki ukuran yang cukup untuk tempat tidur, lemari, dan meja rias.
- Kamar mandi: Berada di sudut ruangan dengan desain yang minimalis.
Denah ini hanya contoh, Anda bisa menyesuaikannya dengan kebutuhan dan selera Anda.
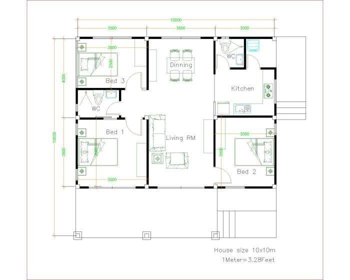
Tata Letak Ruangan

Membangun rumah dengan luas 10×10 meter memang menjadi tantangan tersendiri, terutama dalam mengatur tata letak ruangan agar tetap nyaman dan fungsional. Rumah dengan luas ini biasanya memiliki 2 kamar tidur, ruang tamu, ruang makan, dan dapur yang harus ditata dengan cermat agar tidak terasa sempit.
Tata Letak Ruangan Ideal
Untuk rumah 10×10 dengan 2 kamar tidur, berikut tata letak ruangan yang ideal:
- Kamar Tidur Utama:Letakkan di bagian belakang rumah untuk privasi dan ketenangan. Luas kamar sekitar 3×3 meter, cukup untuk tempat tidur, lemari, dan meja rias.
- Kamar Tidur Kedua:Berada di depan kamar tidur utama, dengan luas sekitar 2×3 meter. Idealnya, kamar ini bisa digunakan sebagai kamar anak atau kamar tamu.
- Ruang Tamu:Berada di depan rumah, dengan luas sekitar 3×4 meter. Letakkan sofa, meja kopi, dan rak TV di sini.
- Ruang Makan:Terletak di samping ruang tamu, dengan luas sekitar 2×3 meter. Gunakan meja makan yang minimalis dan kursi yang nyaman.
- Dapur:Berada di samping ruang makan, dengan luas sekitar 2×3 meter. Letakkan lemari dapur, kompor, dan wastafel di sini.
Contoh Penempatan Furnitur
Berikut tabel contoh penempatan furnitur di rumah 10×10:
| Ruangan | Furnitur | Penempatan |
|---|---|---|
| Ruang Tamu | Sofa 3 seater, meja kopi, rak TV | Sofa di bagian tengah ruangan, meja kopi di depan sofa, rak TV di dinding |
| Ruang Makan | Meja makan 4 kursi | Meja makan di tengah ruangan, kursi mengelilingi meja |
| Dapur | Lemari dapur, kompor, wastafel | Lemari dapur di sepanjang dinding, kompor dan wastafel di dekat lemari dapur |
Desain Interior Menarik
Untuk desain interior yang menarik, berikut beberapa contoh untuk ruang tamu dan kamar tidur:
Ruang Tamu
Ruang tamu bisa didekorasi dengan tema minimalis modern. Gunakan warna-warna netral seperti putih, abu-abu, dan hitam, serta sentuhan warna cerah seperti biru atau hijau. Anda bisa menambahkan tanaman hias untuk mempercantik ruangan. Pilihlah sofa dengan desain minimalis dan meja kopi yang terbuat dari kayu.
Kamar Tidur
Kamar tidur bisa didekorasi dengan tema natural. Gunakan warna-warna pastel seperti krem, beige, dan biru muda. Anda bisa menambahkan dekorasi berupa tanaman hias atau lukisan bertema alam. Pilihlah tempat tidur dengan desain minimalis dan headboard yang terbuat dari kayu.
Material dan Konstruksi

Membangun rumah 10×10 memberikan fleksibilitas dalam pemilihan material dan konstruksi. Pilihan material yang tepat akan memengaruhi estetika, biaya, dan daya tahan rumah.
Jenis Material dan Kelebihan Kekurangannya
Material yang umum digunakan untuk membangun rumah 10×10 meliputi kayu, bata, dan beton. Masing-masing material memiliki kelebihan dan kekurangan yang perlu dipertimbangkan.
Desain rumah 10×10 memang menantang, tapi bisa jadi solusi hemat lahan. Untuk membangunnya, kamu bisa mendapatkan bahan bangunan berkualitas dengan harga terjangkau di jual bahan bangunan murah. Dengan budget yang terkontrol, kamu bisa mewujudkan hunian impian dengan desain rumah 10×10 yang nyaman dan fungsional.
- Kayu: Material yang ramah lingkungan dan mudah dibentuk, sehingga ideal untuk desain rumah minimalis. Namun, kayu rentan terhadap rayap dan mudah terbakar.
- Bata: Material yang kuat dan tahan lama, serta memberikan insulasi termal yang baik. Namun, bata membutuhkan waktu yang lebih lama untuk konstruksi dan bisa menjadi lebih mahal dibandingkan dengan kayu.
- Beton: Material yang sangat kuat dan tahan lama, serta tahan terhadap api dan rayap. Namun, beton memiliki bobot yang berat dan membutuhkan tenaga ahli untuk konstruksi.
Inspirasi Desain

Membangun rumah di lahan terbatas? Jangan khawatir, rumah 10×10 tetap bisa tampil menawan dan fungsional. Desain rumah 10×10 punya potensi besar untuk menghadirkan hunian nyaman dan estetis. Kuncinya adalah memilih gaya arsitektur yang tepat dan memaksimalkan pencahayaan dan ventilasi.
Desain rumah 10×10 memang menantang, tapi bisa jadi solusi bagi kamu yang ingin hunian minimalis dan efisien. Saat merancang, kamu perlu mempertimbangkan tata letak yang tepat agar ruangan terasa lega. Ingat, konsep rumah minimalis bukan hanya soal ukuran, tapi juga tentang fungsi dan estetika.
Kamu bisa mengintip inspirasi desain rumah minimalis di berbagai sumber, termasuk artikel mengenai bangunan bangunan yang bisa membantu kamu menemukan ide-ide menarik. Dengan perencanaan yang matang, rumah 10×10 kamu bisa menjadi tempat tinggal yang nyaman dan penuh gaya.
Contoh Desain Rumah 10×10
Berikut beberapa contoh desain rumah 10×10 yang bisa Anda jadikan inspirasi:
- Minimalis: Desain ini menekankan kesederhanaan dan fungsionalitas. Rumah 10×10 bergaya minimalis biasanya memiliki garis-garis tegas, warna netral, dan penataan ruang yang efisien. Contohnya, ruang tamu bisa dipadukan dengan ruang makan, dan kamar tidur dirancang minimalis dengan pencahayaan alami yang optimal.
Membangun rumah dengan lahan terbatas? Desain rumah 10×10 bisa jadi solusi! Agar tetap nyaman dan estetis, jangan lupa perhatikan penggunaan material. Nah, kamu bisa lirik sari bumi bangunan yang ramah lingkungan dan tahan lama. Dengan material yang tepat, desain rumah 10x10mu akan terasa lebih luas dan estetis, lho!
- Modern: Rumah 10×10 bergaya modern cenderung memiliki bentuk geometrik, penggunaan material modern seperti kaca dan beton, serta pencahayaan yang dramatis. Contohnya, rumah dengan fasad kaca yang besar untuk memaksimalkan cahaya matahari, serta penggunaan material beton yang kuat dan modern.
- Klasik: Desain ini menghadirkan nuansa elegan dan timeless. Rumah 10×10 bergaya klasik biasanya memiliki detail ornamen, penggunaan material kayu, dan warna-warna lembut. Contohnya, penggunaan jendela berdaun jendela, pintu kayu dengan ukiran, dan interior dengan furnitur kayu yang kokoh.
- Tradisional: Desain ini mengusung nilai-nilai budaya lokal dan ciri khas arsitektur tradisional. Rumah 10×10 bergaya tradisional bisa mengadaptasi elemen-elemen seperti atap joglo, penggunaan material bambu, dan ornamen khas daerah. Contohnya, rumah dengan atap joglo sederhana, dinding bambu, dan teras yang luas dengan ornamen kayu.
Pencahayaan dan Ventilasi Optimal
Pencahayaan dan ventilasi yang optimal sangat penting dalam desain rumah 10x 10. Hal ini membantu menciptakan suasana yang nyaman dan sehat. Berikut beberapa tips:
- Jendela Besar: Gunakan jendela yang besar untuk memaksimalkan cahaya matahari dan sirkulasi udara. Jendela kaca dengan bukaan lebar bisa membuat ruangan terasa lebih luas dan terang.
- Bukaan Ventilasi: Pastikan rumah memiliki bukaan ventilasi yang cukup untuk sirkulasi udara yang baik. Bukaan ventilasi bisa berupa jendela, pintu, atau ventilasi udara di bagian atas dinding.
- Taman Vertikal: Taman vertikal bisa menjadi solusi untuk menghadirkan nuansa hijau dan meningkatkan sirkulasi udara. Taman vertikal bisa ditempatkan di dinding atau di bagian teras.
- Warna Cerah: Gunakan warna cat dinding yang cerah untuk membuat ruangan terasa lebih terang dan luas. Warna putih, kuning, atau pastel bisa menjadi pilihan yang tepat.
Konsep Desain Rumah 10×10 yang Ideal
“Rumah 10×10 yang ideal adalah rumah yang fungsional, efisien, dan nyaman. Penataan ruang yang cerdas, pemilihan material yang tepat, dan pencahayaan yang optimal adalah kunci untuk menciptakan hunian yang ideal di lahan terbatas.”- [Nama Desainer]
Akhir Kata: Desain Rumah 10×10

Membangun rumah 10×10 membutuhkan kreativitas dan perencanaan yang matang. Dengan memahami konsep desain yang tepat, memilih material yang berkualitas, dan memperhatikan tata letak ruangan, Anda dapat menciptakan hunian yang nyaman, fungsional, dan estetis. Ingat, rumah impian tidak harus besar, yang penting adalah efisien dan sesuai dengan kebutuhan dan gaya hidup Anda.
FAQ Terperinci
Apakah rumah 10×10 cukup untuk keluarga kecil?
Ya, rumah 10×10 dapat cukup untuk keluarga kecil dengan perencanaan yang tepat. Anda bisa memaksimalkan ruang dengan desain yang efisien dan penggunaan furnitur multifungsi.
Berapa biaya konstruksi rumah 10×10?
Biaya konstruksi rumah 10×10 bervariasi tergantung material, desain, dan lokasi. Sebaiknya konsultasikan dengan arsitek atau kontraktor untuk mendapatkan estimasi biaya yang akurat.

