Membangun rumah adalah impian banyak orang. Sebelum mewujudkan impian tersebut, denah bangunan rumah menjadi kunci penting yang tidak boleh diabaikan. Denah bangunan rumah merupakan peta visual yang menggambarkan tata letak ruangan, ukuran, dan detail konstruksi rumah. Seperti halnya peta, denah bangunan rumah memberikan panduan yang jelas dan detail untuk membangun rumah yang sesuai dengan keinginan dan kebutuhan Anda.
Denah bangunan rumah tidak hanya sekadar gambar, tetapi juga alat penting yang membantu Anda dalam merencanakan desain rumah, mengatur anggaran, dan menghindari kesalahan dalam proses pembangunan. Dengan memahami denah bangunan rumah, Anda dapat memiliki gambaran yang jelas tentang bagaimana rumah Anda akan terlihat dan berfungsi di masa depan.
Pengertian Denah Bangunan Rumah

Denah bangunan rumah merupakan representasi grafis dari tata letak ruangan, ukuran, dan hubungan antar ruang dalam sebuah bangunan rumah. Sederhananya, denah bangunan rumah adalah “peta” yang menunjukkan bagaimana ruangan-ruangan dalam rumah akan disusun dan dihubungkan satu sama lain.
Contoh Ilustrasi Denah Bangunan Rumah
Bayangkan sebuah rumah sederhana dengan tiga ruangan: ruang tamu, kamar tidur, dan dapur. Dalam denah, ketiga ruangan ini akan digambarkan sebagai persegi panjang atau bentuk lain yang sesuai, dengan ukuran dan posisi yang akurat. Garis-garis yang menghubungkan ruangan menunjukkan jalur pergerakan di dalam rumah.
Sebagai contoh, garis yang menghubungkan ruang tamu dan kamar tidur menunjukkan jalan menuju kamar tidur dari ruang tamu.
Fungsi dan Kegunaan Denah Bangunan Rumah
Denah bangunan rumah memiliki fungsi dan kegunaan yang sangat penting dalam proses pembangunan rumah. Berikut beberapa di antaranya:
- Perencanaan Tata Letak:Denah membantu dalam merencanakan tata letak ruangan secara optimal, memastikan aliran sirkulasi yang baik, dan memaksimalkan penggunaan ruang.
- Penentuan Ukuran dan Dimensi:Denah menunjukkan ukuran dan dimensi setiap ruangan, sehingga memudahkan dalam pemilihan material dan perhitungan kebutuhan material.
- Komunikasi Antar Pihak:Denah menjadi alat komunikasi yang efektif antara arsitek, kontraktor, dan pemilik rumah, memastikan semua pihak memiliki pemahaman yang sama tentang desain dan konstruksi.
- Pengembangan Desain:Denah dapat diubah dan dikembangkan sesuai kebutuhan, sehingga memungkinkan untuk membuat desain yang sesuai dengan keinginan dan kebutuhan pemilik rumah.
- Perhitungan Biaya:Denah membantu dalam perhitungan biaya konstruksi, karena informasi tentang ukuran dan jumlah ruangan dapat digunakan untuk memperkirakan kebutuhan material dan tenaga kerja.
Elemen-Elemen Denah Bangunan Rumah

Denah bangunan rumah merupakan gambaran visual dari tata letak ruangan dan struktur bangunan. Denah ini menjadi dasar bagi arsitek dan kontraktor dalam membangun rumah, sehingga penting untuk memahami elemen-elemen yang terkandung di dalamnya.
Elemen-elemen dalam denah bangunan rumah dapat dibagi menjadi beberapa kategori, yaitu elemen struktural, elemen fungsional, dan elemen estetika. Setiap elemen memiliki peran penting dalam menentukan fungsi, keindahan, dan keamanan bangunan rumah.
Elemen Struktural
Elemen struktural merupakan bagian-bagian yang menopang dan membentuk kerangka bangunan rumah. Elemen ini berperan penting dalam memastikan kekuatan dan stabilitas bangunan.
-
Dinding: Dinding merupakan elemen struktural yang membatasi ruangan dan memberikan kekuatan pada bangunan. Dinding dapat dibuat dari berbagai bahan seperti bata, beton, kayu, atau panel gypsum. Dinding pada denah ditunjukkan dengan garis tebal yang membatasi ruangan.
-
Kolom: Kolom merupakan elemen struktural yang menopang beban atap dan lantai. Kolom biasanya berbentuk persegi panjang atau bulat, dan ditunjukkan dengan garis tebal pada denah. Kolom penting untuk menjaga kekuatan bangunan dan mencegah ambruk.
-
Balok: Balok merupakan elemen struktural yang menopang beban atap dan lantai. Balok biasanya berbentuk persegi panjang dan ditunjukkan dengan garis tebal pada denah. Balok penting untuk mendistribusikan beban secara merata dan mencegah deformasi pada bangunan.
-
Pondasi: Pondasi merupakan elemen struktural yang menjadi dasar bangunan rumah. Pondasi ditunjukkan dengan garis tebal yang menunjukkan bentuk dan kedalaman pondasi pada denah. Pondasi penting untuk menopang seluruh beban bangunan dan mencegah kerusakan akibat gerakan tanah.
Elemen Fungsional
Elemen fungsional merupakan bagian-bagian yang memiliki fungsi khusus dalam bangunan rumah. Elemen ini menentukan bagaimana ruangan digunakan dan memberikan kenyamanan bagi penghuni.
| Elemen | Fungsi | Contoh Ilustrasi |
|---|---|---|
| Pintu | Membuka dan menutup akses ke ruangan | Garis tipis yang menunjukkan lebar dan tinggi pintu pada denah |
| Jendela | Memberikan cahaya dan ventilasi ke ruangan | Garis tipis yang menunjukkan bentuk dan ukuran jendela pada denah |
| Tangga | Menghubungkan lantai atas dan bawah | Garis tipis yang menunjukkan bentuk dan arah tangga pada denah |
| Toilet | Ruangan untuk buang air besar dan kecil | Simbol khusus yang menunjukkan lokasi toilet pada denah |
| Dapur | Ruangan untuk memasak dan menyiapkan makanan | Area yang ditandai pada denah dengan simbol atau keterangan khusus |
Elemen Estetika
Elemen estetika merupakan bagian-bagian yang memberikan nilai keindahan dan estetika pada bangunan rumah. Elemen ini dapat berupa bentuk, warna, tekstur, atau material yang digunakan.
-
Bentuk Atap: Bentuk atap dapat mempengaruhi tampilan eksterior rumah. Beberapa bentuk atap yang populer adalah atap pelana, atap datar, dan atap mansard.
-
Warna Cat: Warna cat dapat memberikan kesan yang berbeda pada bangunan rumah. Warna cat yang dipilih biasanya disesuaikan dengan selera penghuni dan gaya arsitektur rumah.
Denah bangunan rumah adalah blueprint penting yang memandu pembangunan rumah impian. Sebelum memulai pembangunan, pastikan kamu telah mempersiapkan segala kebutuhan bahan bangunan. Untuk mendapatkan bahan bangunan berkualitas, kamu bisa mengunjungi toko bahan bangunan terpercaya. Dengan denah yang jelas dan bahan bangunan yang tepat, proses pembangunan rumahmu akan lebih terarah dan efisien.
-
Material Fasad: Material fasad seperti batu alam, kayu, atau keramik dapat memberikan kesan yang berbeda pada bangunan rumah. Material fasad yang dipilih biasanya disesuaikan dengan gaya arsitektur dan budget yang tersedia.
Contoh Denah Bangunan Rumah
Berikut ini contoh denah bangunan rumah dengan keterangan elemen-elemennya:
Denah ini menunjukkan layout ruangan yang sederhana, dengan 2 kamar tidur, 1 kamar mandi, ruang tamu, dapur, dan ruang makan. Elemen struktural seperti dinding, kolom, dan balok ditunjukkan dengan garis tebal. Elemen fungsional seperti pintu, jendela, dan tangga ditunjukkan dengan garis tipis.
Elemen estetika seperti bentuk atap dan warna cat dapat dilihat dari gambar denah ini.
Membuat denah bangunan rumah memang membutuhkan pertimbangan matang, mulai dari penempatan ruangan hingga sirkulasi udara. Nah, kalau kamu punya rencana untuk membuka toko bangunan kecil, jangan lupa untuk mempelajari desain toko bangunan kecil yang efektif. Desain toko yang tepat akan memudahkan pelanggan menemukan barang yang mereka butuhkan dan meningkatkan omzetmu.
Setelah mempelajari desain toko, kamu bisa menerapkannya dalam denah bangunan rumahmu, terutama untuk area gudang atau garasi.
Jenis-Jenis Denah Bangunan Rumah

Denah bangunan rumah merupakan representasi visual dari tata letak ruangan dan struktur bangunan yang akan dibangun. Denah ini berfungsi sebagai panduan bagi arsitek, kontraktor, dan pemilik rumah dalam membangun rumah yang sesuai dengan kebutuhan dan keinginan. Denah bangunan rumah juga dapat digunakan untuk memperkirakan biaya pembangunan dan merencanakan tata letak furnitur dan perlengkapan.
Ada berbagai jenis denah bangunan rumah yang umum digunakan, masing-masing dengan karakteristik dan keunggulannya sendiri. Berikut adalah beberapa jenis denah bangunan rumah yang populer:
Denah Rumah Sederhana
Denah rumah sederhana umumnya memiliki bentuk yang simpel dan minimalis, dengan jumlah ruangan yang terbatas. Jenis denah ini cocok untuk rumah tinggal yang kecil dan sederhana, seperti rumah tipe 36 atau 45.
- Contoh: Denah rumah sederhana biasanya terdiri dari ruang tamu, ruang makan, dapur, 1-2 kamar tidur, dan 1 kamar mandi. Ruang-ruang tersebut disusun secara berdampingan, tanpa banyak sekat atau ruang tambahan.
- Kelebihan: Denah rumah sederhana mudah dibangun dan memiliki biaya konstruksi yang relatif rendah.
- Kekurangan: Denah rumah sederhana mungkin kurang fleksibel untuk memenuhi kebutuhan keluarga yang lebih besar atau yang menginginkan ruang tambahan, seperti ruang kerja atau ruang bermain anak.
Denah Rumah Minimalis
Denah rumah minimalis mengusung konsep kesederhanaan dan fungsionalitas. Rumah minimalis biasanya memiliki bentuk yang sederhana dan geometris, dengan penekanan pada garis-garis lurus dan ruang terbuka.
- Contoh: Denah rumah minimalis biasanya terdiri dari ruang tamu, ruang makan, dapur, 2-3 kamar tidur, dan 2 kamar mandi. Rumah minimalis seringkali memiliki teras atau taman kecil yang berfungsi sebagai ruang terbuka.
- Kelebihan: Denah rumah minimalis modern dan estetis, serta mudah didekorasi. Rumah minimalis juga efisien dalam penggunaan ruang dan hemat energi.
- Kekurangan: Denah rumah minimalis mungkin kurang cocok untuk keluarga besar atau yang menginginkan banyak ruang penyimpanan.
Denah Rumah Klasik
Denah rumah klasik memiliki ciri khas arsitektur tradisional, dengan penggunaan material dan detail yang khas. Rumah klasik biasanya memiliki bentuk yang simetris dan elegan, dengan banyak ornamen dan ukiran.
- Contoh: Denah rumah klasik biasanya terdiri dari ruang tamu, ruang makan, dapur, 3-4 kamar tidur, 2-3 kamar mandi, dan ruang keluarga. Rumah klasik seringkali memiliki balkon, teras, atau halaman yang luas.
- Kelebihan: Denah rumah klasik mewah dan elegan, serta memiliki nilai estetika yang tinggi. Rumah klasik juga memiliki daya tahan yang baik dan cocok untuk diwariskan ke generasi berikutnya.
- Kekurangan: Denah rumah klasik membutuhkan biaya konstruksi yang lebih tinggi dan perawatan yang lebih intensif.
Denah Rumah Modern
Denah rumah modern mengusung konsep fungsionalitas dan efisiensi, dengan penekanan pada penggunaan ruang terbuka dan pencahayaan alami. Rumah modern biasanya memiliki bentuk yang unik dan futuristik, dengan penggunaan material modern dan teknologi terbaru.
- Contoh: Denah rumah modern biasanya terdiri dari ruang tamu, ruang makan, dapur, 2-3 kamar tidur, 2-3 kamar mandi, dan ruang kerja atau ruang bermain anak. Rumah modern seringkali memiliki taman atap atau halaman yang berfungsi sebagai ruang terbuka.
- Kelebihan: Denah rumah modern modern, estetis, dan ramah lingkungan. Rumah modern juga memiliki sirkulasi udara yang baik dan pencahayaan alami yang optimal.
- Kekurangan: Denah rumah modern mungkin membutuhkan biaya konstruksi yang lebih tinggi dan perawatan yang lebih khusus.
Denah Rumah Tropis, Denah bangunan rumah
Denah rumah tropis dirancang untuk menyesuaikan dengan iklim tropis, dengan penekanan pada sirkulasi udara dan pencahayaan alami. Rumah tropis biasanya memiliki bentuk yang terbuka dan ventilasi yang baik, dengan penggunaan material alami dan tradisional.
- Contoh: Denah rumah tropis biasanya terdiri dari ruang tamu, ruang makan, dapur, 2-3 kamar tidur, 2-3 kamar mandi, dan teras atau balkon yang luas. Rumah tropis seringkali memiliki taman atau kolam renang yang berfungsi sebagai ruang terbuka.
- Kelebihan: Denah rumah tropis nyaman dan sejuk, serta ramah lingkungan. Rumah tropis juga memiliki sirkulasi udara yang baik dan pencahayaan alami yang optimal.
- Kekurangan: Denah rumah tropis mungkin kurang cocok untuk daerah dengan iklim yang dingin atau lembap.
Denah Rumah Mediterania
Denah rumah Mediterania memiliki ciri khas arsitektur Mediterania, dengan penggunaan material dan detail yang khas. Rumah Mediterania biasanya memiliki bentuk yang simetris dan elegan, dengan banyak ornamen dan ukiran.
- Contoh: Denah rumah Mediterania biasanya terdiri dari ruang tamu, ruang makan, dapur, 3-4 kamar tidur, 2-3 kamar mandi, dan ruang keluarga. Rumah Mediterania seringkali memiliki teras, halaman, atau kolam renang yang luas.
- Kelebihan: Denah rumah Mediterania mewah dan elegan, serta memiliki nilai estetika yang tinggi. Rumah Mediterania juga memiliki daya tahan yang baik dan cocok untuk diwariskan ke generasi berikutnya.
- Kekurangan: Denah rumah Mediterania membutuhkan biaya konstruksi yang lebih tinggi dan perawatan yang lebih intensif.
Denah Rumah Industrial
Denah rumah industrial mengusung konsep estetika industri, dengan penggunaan material dan detail yang khas. Rumah industrial biasanya memiliki bentuk yang sederhana dan fungsional, dengan penekanan pada material kasar dan terbuka.
- Contoh: Denah rumah industrial biasanya terdiri dari ruang tamu, ruang makan, dapur, 2-3 kamar tidur, 2-3 kamar mandi, dan ruang kerja atau ruang bermain anak. Rumah industrial seringkali memiliki dinding bata ekspos, pipa saluran air yang terlihat, dan pencahayaan yang kuat.
- Kelebihan: Denah rumah industrial modern, estetis, dan unik. Rumah industrial juga memiliki sirkulasi udara yang baik dan pencahayaan alami yang optimal.
- Kekurangan: Denah rumah industrial mungkin kurang cocok untuk keluarga yang menginginkan suasana yang hangat dan nyaman.
Cara Membaca Denah Bangunan Rumah

Denah bangunan rumah adalah representasi grafis dari tata letak ruangan, struktur, dan elemen lainnya dalam sebuah bangunan. Memahami cara membaca denah bangunan rumah sangat penting bagi pemilik rumah, arsitek, kontraktor, dan siapa pun yang terlibat dalam proses pembangunan atau renovasi.
Dengan memahami denah bangunan, Anda dapat memperoleh gambaran yang jelas tentang desain rumah, penempatan ruangan, ukuran, dan detail lainnya.
Langkah-Langkah Membaca Denah Bangunan Rumah
Membaca denah bangunan rumah bisa dilakukan secara sistematis dengan mengikuti langkah-langkah berikut:
- Identifikasi Simbol dan Legenda:Perhatikan legenda atau tabel simbol yang biasanya terdapat di bagian bawah atau samping denah. Simbol-simbol ini mewakili berbagai elemen bangunan, seperti dinding, pintu, jendela, tangga, dan perlengkapan.
- Tentukan Arah Utara:Biasanya, arah utara ditunjukkan dengan simbol panah atau huruf “N” pada denah. Ini akan membantu Anda memahami orientasi ruangan dan bagaimana cahaya matahari akan masuk ke dalam rumah.
- Pelajari Tata Letak Ruangan:Perhatikan bagaimana ruangan-ruangan dihubungkan satu sama lain. Identifikasi ruangan utama seperti ruang tamu, kamar tidur, dapur, dan kamar mandi. Perhatikan juga hubungan antar ruangan, misalnya, apakah ada pintu penghubung atau tidak.
- Perhatikan Ukuran Ruangan:Denah bangunan biasanya menyertakan dimensi ruangan, baik dalam satuan meter atau kaki. Ini akan membantu Anda memahami skala ruangan dan memilih furnitur yang sesuai.
- Perhatikan Detail Lainnya:Perhatikan detail penting seperti lokasi tangga, jendela, pintu, dan perlengkapan lainnya. Perhatikan juga penempatan saluran air, listrik, dan ventilasi.
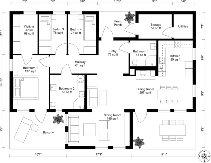
Contoh Denah Bangunan Rumah
Untuk memperjelas, mari kita lihat contoh denah bangunan rumah sederhana dan membahas cara membaca elemen-elemennya:
|
Gambar:Denah bangunan rumah sederhana. Denah bangunan rumah, merupakan panduan utama dalam membangun rumah impian. Denah ini memuat detail ruangan, ukuran, dan penempatan elemen penting seperti pintu dan jendela. Sebelum memulai pembangunan, penting untuk mempertimbangkan harga bahan bangunan yang akan digunakan. Pastikan budget Anda sesuai dengan material yang dipilih agar pembangunan rumah berjalan lancar dan sesuai rencana. |
Penjelasan:
|
Diagram Alur Membaca Denah Bangunan Rumah
Berikut adalah diagram alur yang menunjukkan proses membaca denah bangunan rumah:
[Gambar: Diagram alur membaca denah bangunan rumah]
Diagram alur ini menunjukkan langkah-langkah yang terlibat dalam membaca denah bangunan rumah, mulai dari identifikasi simbol hingga memahami tata letak ruangan dan detail lainnya.
Pentingnya Denah Bangunan Rumah

Membangun rumah merupakan proyek besar yang membutuhkan perencanaan matang. Salah satu aspek penting dalam perencanaan ini adalah denah bangunan. Denah bangunan rumah berfungsi sebagai blueprint atau peta yang menggambarkan detail tata letak ruangan, ukuran, dan elemen penting lainnya dalam rumah.
Denah yang baik akan menjadi panduan bagi arsitek, kontraktor, dan pemilik rumah dalam proses pembangunan.
Manfaat Denah Bangunan Rumah
Denah bangunan rumah memiliki banyak manfaat, baik untuk pemilik rumah maupun para profesional yang terlibat dalam proses pembangunan. Berikut beberapa manfaat pentingnya:
- Memudahkan Komunikasi:Denah bangunan berfungsi sebagai bahasa visual yang memudahkan komunikasi antara pemilik rumah, arsitek, dan kontraktor. Semua pihak dapat memahami dengan jelas bagaimana rumah akan dibangun, termasuk ukuran ruangan, letak pintu dan jendela, dan detail lainnya.
- Mencegah Kesalahan:Denah bangunan rumah membantu menghindari kesalahan dalam proses pembangunan. Dengan denah yang jelas, kontraktor dapat membangun rumah sesuai dengan rencana dan menghindari pemborosan material atau waktu.
- Menghindari Konflik:Denah bangunan dapat membantu menghindari konflik antara pemilik rumah dan kontraktor. Denah yang terdokumentasi dengan baik dapat menjadi bukti tertulis mengenai kesepakatan dan menghindari kesalahpahaman di kemudian hari.
- Mempermudah Perencanaan Interior:Denah bangunan rumah membantu pemilik rumah dalam merencanakan desain interior rumah. Dengan denah yang akurat, pemilik rumah dapat memilih furniture yang tepat, menentukan skema warna, dan merencanakan penataan ruangan secara efektif.
- Mempermudah Proses Perizinan:Denah bangunan rumah merupakan dokumen penting yang diperlukan untuk proses perizinan pembangunan. Denah yang lengkap dan akurat akan mempermudah proses perizinan dan menghindari penundaan.
Contoh Kasus Pentingnya Denah Bangunan Rumah
Bayangkan sebuah keluarga yang ingin membangun rumah dengan konsep minimalis. Mereka memiliki gambaran tentang desain rumah yang mereka inginkan, namun belum memiliki denah bangunan yang jelas. Dalam proses pembangunan, kontraktor melakukan interpretasi sendiri terhadap desain yang diinginkan, dan akhirnya membangun rumah dengan ukuran dan tata letak yang berbeda dari yang diharapkan.
Akibatnya, keluarga tersebut merasa kecewa karena rumah yang dibangun tidak sesuai dengan harapan mereka.
Dalam kasus ini, denah bangunan rumah sangat penting untuk menghindari kesalahpahaman dan memastikan bahwa rumah yang dibangun sesuai dengan keinginan pemilik rumah. Denah bangunan yang detail dan akurat dapat menjadi bukti tertulis yang membantu pemilik rumah dalam mengkomunikasikan visi mereka kepada kontraktor dan memastikan bahwa rumah yang dibangun sesuai dengan harapan mereka.
Denah Bangunan Rumah Membantu Menghindari Kesalahan
Denah bangunan rumah merupakan panduan yang sangat penting dalam proses pembangunan. Denah yang baik dapat membantu menghindari kesalahan yang dapat menyebabkan pemborosan material, waktu, dan biaya. Berikut beberapa contoh kesalahan yang dapat dihindari dengan denah bangunan:
- Kesalahan Ukuran Ruangan:Denah bangunan rumah membantu menentukan ukuran ruangan yang tepat. Dengan denah yang akurat, kontraktor dapat membangun ruangan dengan ukuran yang sesuai dengan kebutuhan pemilik rumah dan menghindari ruangan yang terlalu sempit atau terlalu luas.
- Kesalahan Tata Letak:Denah bangunan rumah membantu menentukan tata letak ruangan yang efisien. Denah yang baik akan memaksimalkan penggunaan ruang dan menghindari tata letak yang tidak praktis.
- Kesalahan Penggunaan Material:Denah bangunan rumah membantu menentukan jenis dan jumlah material yang dibutuhkan. Dengan denah yang akurat, kontraktor dapat menghitung kebutuhan material secara tepat dan menghindari pemborosan material.
- Kesalahan Konstruksi:Denah bangunan rumah membantu memastikan bahwa konstruksi rumah dilakukan dengan benar. Denah yang detail akan menunjukkan detail konstruksi yang penting, seperti letak kolom, balok, dan pondasi, sehingga kontraktor dapat membangun rumah dengan struktur yang kuat dan aman.
Tips Merancang Denah Bangunan Rumah

Membangun rumah adalah impian setiap orang. Sebelum membangun, perencanaan yang matang sangat penting, terutama dalam merancang denah bangunan rumah. Denah yang dirancang dengan baik akan menghasilkan rumah yang nyaman, fungsional, dan sesuai dengan kebutuhan penghuninya. Artikel ini akan membahas beberapa tips dan faktor penting yang perlu Anda pertimbangkan dalam merancang denah bangunan rumah.
Faktor-faktor Penting dalam Merancang Denah Rumah
Ada beberapa faktor penting yang perlu Anda pertimbangkan saat merancang denah bangunan rumah, agar rumah Anda nyaman dan sesuai dengan kebutuhan Anda. Berikut adalah beberapa di antaranya:
- Kebutuhan dan Gaya Hidup Penghuni: Pertimbangkan jumlah penghuni, aktivitas sehari-hari, dan gaya hidup Anda. Apakah Anda lebih suka rumah yang minimalis atau klasik? Apakah Anda sering mengadakan acara keluarga? Faktor-faktor ini akan menentukan jumlah ruangan, ukuran, dan desain rumah Anda.
- Bentuk dan Ukuran Lahan: Bentuk dan ukuran lahan sangat berpengaruh pada desain denah. Anda perlu menyesuaikan desain dengan bentuk lahan agar memaksimalkan penggunaan lahan dan menciptakan ruang yang efisien. Misalnya, jika lahan Anda memanjang, Anda bisa memilih desain rumah dengan bentuk memanjang pula.
- Arah Matahari dan Angin: Pertimbangkan arah matahari dan angin untuk memaksimalkan pencahayaan dan sirkulasi udara. Rumah yang mendapat sinar matahari pagi dan sore akan lebih nyaman dan hemat energi. Sirkulasi udara yang baik juga akan membuat rumah lebih sejuk dan sehat.
- Anggaran: Tentukan anggaran Anda untuk membangun rumah. Hal ini akan membantu Anda memilih material dan desain yang sesuai dengan budget Anda. Anda bisa memilih material yang lebih murah atau mendesain rumah dengan lebih sederhana untuk menghemat biaya.
- Faktor Keamanan: Keamanan juga menjadi pertimbangan penting. Anda bisa mendesain rumah dengan sistem keamanan yang baik, seperti pagar, CCTV, dan alarm. Anda juga bisa memilih desain rumah yang memiliki pencahayaan yang cukup di malam hari.
Tips Merancang Denah Bangunan Rumah yang Efisien
Setelah mempertimbangkan faktor-faktor di atas, Anda bisa mulai merancang denah rumah Anda. Berikut beberapa tips untuk merancang denah rumah yang efisien dan efektif:
- Buat Sketsa Awal: Sebelum membuat denah detail, buatlah sketsa awal untuk menentukan layout ruangan dan aliran sirkulasi. Anda bisa menggunakan kertas atau aplikasi desain untuk membuat sketsa.
- Manfaatkan Ruang Vertikal: Manfaatkan ruang vertikal dengan membuat ruangan bertingkat, misalnya dengan membuat loteng atau ruang bawah tanah. Hal ini akan membantu Anda menghemat lahan dan menciptakan ruang tambahan.
- Buat Ruang Multifungsi: Jika Anda memiliki lahan yang terbatas, Anda bisa membuat ruang multifungsi, misalnya ruang tamu yang juga berfungsi sebagai ruang makan atau kamar tidur yang juga berfungsi sebagai ruang kerja. Hal ini akan membantu Anda menghemat lahan dan menciptakan ruang yang lebih fleksibel.
- Prioritaskan Pencahayaan dan Ventilasi: Pastikan semua ruangan mendapat pencahayaan dan ventilasi yang cukup. Anda bisa membuat jendela yang besar atau skylight untuk memaksimalkan pencahayaan alami. Anda juga bisa membuat ventilasi yang baik untuk sirkulasi udara.
- Perhatikan Tata Letak Kamar Mandi: Tata letak kamar mandi harus praktis dan efisien. Pastikan jarak antara wastafel, toilet, dan shower tidak terlalu dekat atau terlalu jauh. Anda juga bisa menambahkan cermin besar untuk membuat kamar mandi terlihat lebih luas.
- Pertimbangkan Kebutuhan di Masa Depan: Pertimbangkan kebutuhan Anda di masa depan, misalnya jika Anda berencana untuk memiliki anak atau menua. Anda bisa mendesain rumah dengan aksesibilitas yang baik untuk orang tua atau anak-anak.
Contoh Denah Rumah yang Dirancang dengan Baik
Berikut contoh denah rumah yang dirancang dengan baik dan efektif:
- Denah Rumah Minimalis: Denah rumah minimalis biasanya memiliki desain yang sederhana dan fungsional. Ruangan-ruangan di tata dengan efisien, sehingga memaksimalkan penggunaan lahan. Rumah minimalis biasanya juga memiliki banyak jendela untuk memaksimalkan pencahayaan dan ventilasi.
- Denah Rumah Klasik: Denah rumah klasik biasanya memiliki desain yang lebih rumit dan detail. Ruangan-ruangan di tata dengan lebih formal dan memiliki banyak ruang terbuka. Rumah klasik biasanya juga memiliki halaman yang luas untuk menambah keindahan dan kenyamanan.
Ulasan Penutup

Membuat denah bangunan rumah memang membutuhkan ketelitian dan pertimbangan yang matang. Namun, dengan memahami konsep dasar, elemen-elemen penting, dan jenis-jenis denah, Anda dapat merancang rumah yang nyaman, fungsional, dan sesuai dengan impian Anda. Ingatlah bahwa denah bangunan rumah adalah investasi penting untuk masa depan, sehingga sebaiknya jangan ragu untuk berkonsultasi dengan arsitek profesional untuk mendapatkan hasil yang optimal.
Pertanyaan Umum (FAQ)
Apakah saya bisa membuat denah bangunan rumah sendiri?
Ya, Anda bisa membuat denah sendiri dengan bantuan software desain rumah atau aplikasi online. Namun, untuk hasil yang optimal, sebaiknya konsultasikan dengan arsitek profesional.
Bagaimana cara mendapatkan denah bangunan rumah yang tepat?
Anda perlu menentukan kebutuhan dan keinginan Anda, seperti jumlah kamar, ukuran ruangan, dan gaya desain. Kemudian, konsultasikan dengan arsitek untuk mendapatkan denah yang sesuai.
Berapa biaya pembuatan denah bangunan rumah?
Biaya pembuatan denah bervariasi tergantung pada luas bangunan, tingkat kerumitan desain, dan arsitek yang Anda pilih.

