Desain Rumah Lengkap dengan Ukuran: Panduan Membangun Hunian Impian

Desain rumah lengkap dengan ukuran

Membangun rumah adalah impian banyak orang, dan prosesnya dimulai dengan desain yang matang. Desain rumah lengkap dengan ukuran bukan sekadar gambar, melainkan peta jalan yang detail untuk mewujudkan hunian ideal. Desain ini mencakup semua aspek, mulai dari denah ruangan hingga ukuran setiap elemen, sehingga Anda dapat memvisualisasikan rumah impian sebelum membangunnya.

Memiliki desain rumah lengkap dengan ukuran membawa banyak keuntungan. Anda dapat merencanakan tata letak ruangan yang efisien, memilih furnitur yang pas, dan menghitung kebutuhan material dengan tepat. Selain itu, desain ini membantu menghindari kesalahan yang bisa merugikan di kemudian hari.

Pengertian Desain Rumah Lengkap dengan Ukuran

Desain rumah lengkap dengan ukuran

Membangun rumah merupakan investasi jangka panjang yang membutuhkan perencanaan matang. Salah satu langkah penting dalam membangun rumah adalah membuat desain rumah lengkap dengan ukuran. Desain rumah lengkap dengan ukuran merupakan gambaran detail tentang rumah yang akan dibangun, mulai dari denah, tampak, potongan, hingga spesifikasi material dan ukuran ruangan.

Pengertian Desain Rumah Lengkap dengan Ukuran

Desain rumah lengkap dengan ukuran adalah dokumen yang berisi informasi detail tentang desain rumah yang akan dibangun. Dokumen ini mencakup denah, tampak, potongan, spesifikasi material, dan ukuran ruangan. Dengan desain rumah lengkap dengan ukuran, Anda dapat memiliki gambaran yang jelas tentang bagaimana rumah Anda akan terlihat dan berfungsi.

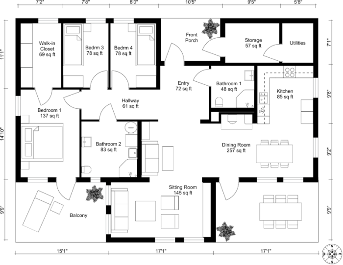
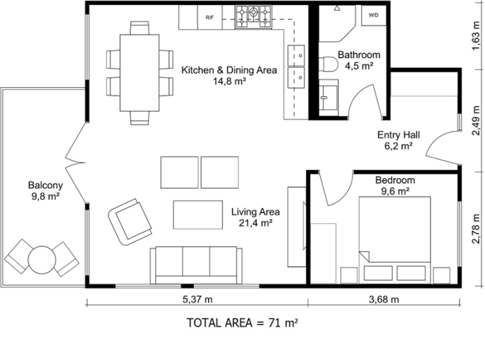
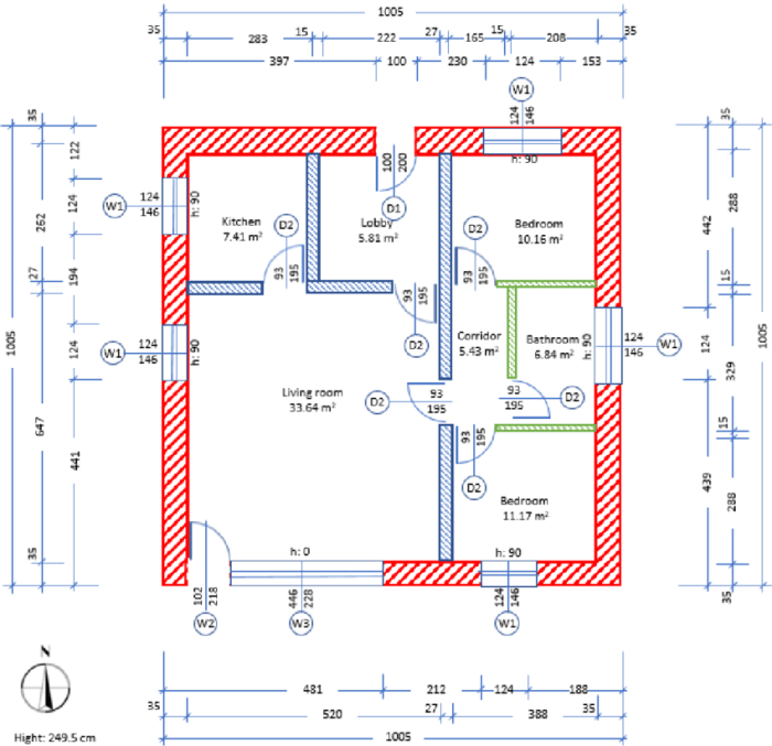
Contoh Desain Rumah Lengkap dengan Ukuran

Sebagai contoh, desain rumah lengkap dengan ukuran dapat menampilkan denah lantai yang menunjukkan tata letak ruangan, seperti ruang tamu, ruang makan, dapur, kamar tidur, dan kamar mandi. Denah lantai juga akan menunjukkan ukuran setiap ruangan dan posisi pintu, jendela, dan furniture.

Selain denah lantai, desain rumah lengkap dengan ukuran juga akan menampilkan tampak depan, tampak samping, dan tampak belakang rumah. Tampak ini menunjukkan bentuk dan desain eksterior rumah, seperti warna cat, jenis material, dan bentuk atap. Desain juga akan menampilkan potongan rumah yang menunjukkan struktur bangunan, seperti pondasi, kolom, dan balok.

Desain rumah lengkap dengan ukuran juga akan menyertakan spesifikasi material yang digunakan dalam pembangunan rumah. Spesifikasi material ini mencakup jenis material, ukuran, dan kualitas material yang akan digunakan. Misalnya, spesifikasi material akan menunjukkan jenis batu bata, semen, pasir, dan kayu yang akan digunakan dalam pembangunan rumah.

Manfaat Memiliki Desain Rumah Lengkap dengan Ukuran

  • Mempermudah komunikasi dengan kontraktor.
  • Meminimalisir kesalahan dalam pembangunan.
  • Membantu dalam perhitungan biaya pembangunan.
  • Mempermudah dalam pemilihan material.
  • Membantu dalam penataan ruangan yang lebih efektif.

Elemen Desain Rumah Lengkap dengan Ukuran

Desain rumah lengkap dengan ukuran

Desain rumah yang baik tidak hanya tentang estetika, tetapi juga fungsionalitas. Salah satu faktor penting yang perlu dipertimbangkan adalah ukuran setiap elemen desain. Ukuran yang tepat akan memastikan kenyamanan dan efisiensi dalam penggunaan ruang.

Ruang Tamu

Ruang tamu merupakan area utama dalam rumah yang berfungsi sebagai ruang berkumpul dan menerima tamu. Ukuran ruang tamu idealnya disesuaikan dengan jumlah penghuni dan kebutuhan ruang.

Membuat desain rumah lengkap dengan ukuran yang tepat memang perlu pertimbangan matang. Mulai dari penempatan ruangan hingga detail material, semua harus terencana dengan baik. Bagi kamu yang ingin membangun rumah impian, bisa lho cari inspirasi dari lagu bojoku kuli bangunan lirik yang menceritakan tentang kisah cinta seorang kuli bangunan.

Walaupun sederhana, lagu ini bisa mengingatkan kita bahwa rumah yang nyaman tak harus selalu mewah, yang penting adalah dibangun dengan cinta dan penuh makna. Nah, setelah mendapatkan inspirasi, jangan lupa untuk konsultasikan desain rumah kamu dengan arsitek profesional agar tercipta hunian yang sesuai dengan kebutuhan dan impianmu.

  • Lebar: Minimal 3 meter, idealnya 4-5 meter untuk memberikan ruang gerak yang cukup dan kenyamanan saat menerima tamu.
  • Panjang: Minimal 4 meter, idealnya 5-6 meter untuk menampung sofa, meja kopi, dan dekorasi lainnya.
  • Tinggi: Minimal 2.5 meter, idealnya 3 meter untuk menciptakan suasana yang lapang dan tidak terasa sumpek.

Dapur

Dapur merupakan area penting dalam rumah yang digunakan untuk memasak dan menyiapkan makanan. Ukuran dapur yang tepat akan menunjang efisiensi dan kenyamanan saat memasak.

  • Lebar: Minimal 2.5 meter, idealnya 3-4 meter untuk memberikan ruang gerak yang cukup dan memudahkan akses ke peralatan dapur.
  • Panjang: Minimal 3 meter, idealnya 4-5 meter untuk menampung lemari dapur, meja makan, dan peralatan lainnya.
  • Tinggi: Minimal 2.5 meter, idealnya 3 meter untuk memberikan sirkulasi udara yang baik dan mencegah rasa pengap.

Kamar Tidur

Kamar tidur merupakan area pribadi yang digunakan untuk istirahat dan tidur. Ukuran kamar tidur idealnya disesuaikan dengan kebutuhan dan preferensi penghuni.

  • Lebar: Minimal 3 meter, idealnya 3.5-4 meter untuk memberikan ruang gerak yang cukup dan kenyamanan saat beraktivitas di dalam kamar.
  • Panjang: Minimal 4 meter, idealnya 4.5-5 meter untuk menampung tempat tidur, lemari pakaian, dan meja rias.
  • Tinggi: Minimal 2.5 meter, idealnya 3 meter untuk menciptakan suasana yang tenang dan nyaman.

Kamar Mandi

Kamar mandi merupakan area penting yang digunakan untuk mandi dan membersihkan diri. Ukuran kamar mandi idealnya disesuaikan dengan kebutuhan dan preferensi penghuni.

  • Lebar: Minimal 1.5 meter, idealnya 2-2.5 meter untuk memberikan ruang gerak yang cukup dan memudahkan akses ke wastafel dan toilet.
  • Panjang: Minimal 2 meter, idealnya 2.5-3 meter untuk menampung shower, bathtub, dan lemari penyimpanan.
  • Tinggi: Minimal 2.2 meter, idealnya 2.5 meter untuk memberikan sirkulasi udara yang baik dan mencegah rasa pengap.

Garasi

Garasi merupakan area yang digunakan untuk menyimpan kendaraan. Ukuran garasi idealnya disesuaikan dengan jenis dan jumlah kendaraan yang akan disimpan.

  • Lebar: Minimal 3 meter, idealnya 4-5 meter untuk menampung satu kendaraan.
  • Panjang: Minimal 5 meter, idealnya 6-7 meter untuk menampung satu kendaraan.
  • Tinggi: Minimal 2.5 meter, idealnya 3 meter untuk memberikan ruang yang cukup untuk kendaraan.

Teras

Teras merupakan area yang digunakan untuk bersantai dan menikmati pemandangan. Ukuran teras idealnya disesuaikan dengan kebutuhan dan preferensi penghuni.

  • Lebar: Minimal 2 meter, idealnya 3-4 meter untuk memberikan ruang yang cukup untuk kursi dan meja.
  • Panjang: Minimal 3 meter, idealnya 4-5 meter untuk menampung kursi, meja, dan tanaman.
  • Tinggi: Minimal 2.5 meter, idealnya 3 meter untuk memberikan sirkulasi udara yang baik dan mencegah rasa pengap.

Taman

Taman merupakan area yang digunakan untuk menanam tanaman dan bersantai. Ukuran taman idealnya disesuaikan dengan kebutuhan dan preferensi penghuni.

  • Lebar: Minimal 2 meter, idealnya 3-4 meter untuk menampung tanaman dan tempat duduk.
  • Panjang: Minimal 3 meter, idealnya 4-5 meter untuk menampung tanaman dan tempat duduk.
  • Tinggi: Minimal 2.5 meter, idealnya 3 meter untuk memberikan sirkulasi udara yang baik dan mencegah rasa pengap.

Kolam Renang

Kolam renang merupakan area yang digunakan untuk berenang dan bersantai. Ukuran kolam renang idealnya disesuaikan dengan kebutuhan dan preferensi penghuni.

  • Lebar: Minimal 3 meter, idealnya 4-5 meter untuk memberikan ruang yang cukup untuk berenang.
  • Panjang: Minimal 5 meter, idealnya 6-7 meter untuk memberikan ruang yang cukup untuk berenang.
  • Tinggi: Minimal 1.5 meter, idealnya 2 meter untuk memberikan kedalaman yang cukup untuk berenang.

Balkon

Balkon merupakan area yang digunakan untuk menikmati pemandangan dan bersantai. Ukuran balkon idealnya disesuaikan dengan kebutuhan dan preferensi penghuni.

  • Lebar: Minimal 1.5 meter, idealnya 2-2.5 meter untuk memberikan ruang yang cukup untuk kursi dan meja.
  • Panjang: Minimal 2 meter, idealnya 3-4 meter untuk memberikan ruang yang cukup untuk kursi, meja, dan tanaman.
  • Tinggi: Minimal 2.5 meter, idealnya 3 meter untuk memberikan sirkulasi udara yang baik dan mencegah rasa pengap.

Tabel berikut menunjukkan hubungan antara elemen desain rumah dan ukuran yang ideal:

Elemen Desain Lebar (meter) Panjang (meter) Tinggi (meter)
Ruang Tamu 3-5 4-6 2.5-3
Dapur 2.5-4 3-5 2.5-3
Kamar Tidur 3-4 4-5 2.5-3
Kamar Mandi 1.5-2.5 2-3 2.2-2.5
Garasi 3-5 5-7 2.5-3
Teras 2-4 3-5 2.5-3
Taman 2-4 3-5 2.5-3
Kolam Renang 3-5 5-7 1.5-2
Balkon 1.5-2.5 2-4 2.5-3

Tahapan Desain Rumah Lengkap dengan Ukuran

Desain rumah lengkap dengan ukuran

Membangun rumah merupakan impian banyak orang. Sebelum membangun, desain rumah yang matang sangat diperlukan untuk mewujudkan rumah impian. Desain rumah yang lengkap mencakup berbagai aspek, mulai dari penentuan ukuran ruangan, tata letak, hingga pemilihan material. Artikel ini akan membahas tahapan desain rumah lengkap dengan ukuran, disertai penjelasan detail dan contoh visualisasi.

Tahap Konseptual, Desain rumah lengkap dengan ukuran

Tahap konseptual merupakan tahap awal dalam proses desain rumah. Pada tahap ini, ide dan konsep awal rumah dibentuk. Tahap ini melibatkan berbagai aktivitas seperti:

  • Menentukan Kebutuhan dan Gaya Hidup: Memahami kebutuhan penghuni rumah, seperti jumlah anggota keluarga, gaya hidup, dan aktivitas yang sering dilakukan di rumah, menjadi langkah awal yang penting.
  • Menentukan Ukuran dan Bentuk Rumah: Menentukan luas tanah yang tersedia, jumlah lantai, dan bentuk rumah yang diinginkan.
  • Menentukan Konsep Desain: Memilih gaya arsitektur yang sesuai dengan selera dan kebutuhan, seperti minimalis, modern, klasik, atau tradisional.
  • Membuat Sketsa Awal: Menciptakan sketsa sederhana yang menggambarkan denah rumah, tampak depan, dan tampak samping. Sketsa ini dapat digambar tangan atau menggunakan software desain.

Contoh visualisasi: Sketsa awal denah rumah dengan garis-garis sederhana yang menggambarkan tata letak ruangan dan hubungan antar ruangan.

Membangun rumah memang menyenangkan, tapi jangan lupa untuk perhatikan desain rumah lengkap dengan ukurannya. Ada banyak pilihan desain yang bisa kamu sesuaikan dengan kebutuhan dan lahan yang tersedia. Salah satu contohnya adalah desain rumah type 36 yang menawarkan solusi cerdas untuk hunian minimalis.

Desain rumah type 36 bisa menjadi inspirasi untuk membangun rumah impian yang fungsional dan estetis. Ingat, desain rumah lengkap dengan ukuran yang tepat akan membuat rumahmu lebih nyaman dan optimal.

Tahap Perencanaan

Tahap perencanaan merupakan tahap pengembangan konsep awal menjadi desain yang lebih detail. Tahap ini melibatkan berbagai aktivitas seperti:

  • Membuat Denah Rumah Detail: Menentukan ukuran dan letak setiap ruangan, termasuk ruang tamu, ruang makan, dapur, kamar tidur, kamar mandi, dan area lainnya.
  • Membuat Denah Lantai: Menentukan posisi tangga, pintu, jendela, dan elemen arsitektur lainnya.
  • Membuat Tampak Depan dan Tampak Samping: Menentukan desain eksterior rumah, seperti bentuk atap, fasad, dan taman.
  • Membuat Potongan Rumah: Menentukan tinggi ruangan, jenis atap, dan struktur bangunan.
  • Membuat Detail Konstruksi: Menentukan jenis material yang akan digunakan, seperti batu bata, beton, kayu, atau baja.

Contoh visualisasi: Denah rumah detail dengan ukuran setiap ruangan yang tertera, lengkap dengan penempatan pintu, jendela, dan tangga.

Tahap Pengembangan

Tahap pengembangan merupakan tahap finalisasi desain rumah sebelum memasuki tahap konstruksi. Tahap ini melibatkan berbagai aktivitas seperti:

  • Membuat Gambar Kerja: Membuat gambar detail yang siap digunakan oleh kontraktor untuk membangun rumah. Gambar kerja mencakup detail konstruksi, material, dan spesifikasi teknis.
  • Membuat Rencana Anggaran Biaya: Menghitung estimasi biaya pembangunan rumah berdasarkan gambar kerja dan harga material.
  • Melakukan Konsultasi dengan Kontraktor: Berdiskusi dengan kontraktor mengenai desain, spesifikasi teknis, dan anggaran biaya.
  • Membuat Kontrak Pembangunan: Menandatangani kontrak dengan kontraktor yang berisi kesepakatan mengenai scope pekerjaan, jadwal pembangunan, dan biaya.

Contoh visualisasi: Gambar kerja denah rumah dengan detail konstruksi dan material yang tertera, seperti jenis dinding, jenis atap, dan spesifikasi material lainnya.

Faktor yang Mempengaruhi Desain Rumah Lengkap dengan Ukuran

Desain rumah lengkap dengan ukuran

Membangun rumah adalah proses yang kompleks, melibatkan banyak faktor yang saling terkait. Ukuran rumah, salah satu aspek penting, dipengaruhi oleh berbagai hal, mulai dari kebutuhan penghuni hingga faktor eksternal. Berikut ini adalah beberapa faktor utama yang memengaruhi desain rumah lengkap dengan ukuran:

Kebutuhan Penghuni

Faktor utama yang memengaruhi desain dan ukuran rumah adalah kebutuhan penghuninya. Jumlah anggota keluarga, gaya hidup, dan aktivitas yang biasa dilakukan di rumah menjadi pertimbangan penting. Misalnya, keluarga besar dengan anak-anak membutuhkan ruang yang lebih luas untuk aktivitas bersama dan ruang pribadi masing-masing.

  • Jumlah anggota keluarga:Semakin banyak anggota keluarga, semakin besar ruang yang dibutuhkan untuk mengakomodasi kebutuhan masing-masing anggota.
  • Gaya hidup:Orang yang gemar berolahraga mungkin membutuhkan ruang khusus untuk gym atau ruang terbuka untuk berlatih.
  • Aktivitas yang biasa dilakukan di rumah:Jika keluarga sering menerima tamu, maka ruang tamu dan ruang makan perlu dirancang lebih luas dan nyaman.

Lokasi dan Kondisi Tanah

Lokasi dan kondisi tanah tempat rumah dibangun juga memengaruhi desain dan ukuran rumah. Faktor ini berkaitan dengan aksesibilitas, pemandangan, dan peraturan lokal.

  • Aksesibilitas:Rumah di lokasi yang mudah dijangkau cenderung memiliki desain yang lebih simpel, sementara rumah di lokasi terpencil mungkin membutuhkan desain yang lebih kompleks untuk memaksimalkan penggunaan ruang.
  • Pemandangan:Rumah dengan pemandangan yang indah dapat memanfaatkan desain dengan jendela besar untuk menikmati pemandangan tersebut.
  • Peraturan lokal:Aturan mengenai ketinggian bangunan, jarak bangunan dengan jalan, dan luas minimal lahan yang diizinkan untuk membangun rumah akan memengaruhi desain dan ukuran rumah.

Anggaran

Anggaran menjadi faktor penentu dalam desain dan ukuran rumah. Semakin besar anggaran, semakin banyak detail dan fitur yang dapat ditambahkan, dan ukuran rumah dapat lebih luas.

  • Biaya material:Harga material bangunan akan memengaruhi biaya keseluruhan, sehingga perlu dipertimbangkan dengan matang.
  • Biaya tenaga kerja:Biaya tenaga kerja untuk pembangunan rumah juga perlu diperhitungkan dalam anggaran.
  • Biaya desain:Biaya desain arsitektur dan interior akan memengaruhi detail dan kualitas desain rumah.

Gaya Arsitektur

Gaya arsitektur yang dipilih juga memengaruhi desain dan ukuran rumah. Setiap gaya arsitektur memiliki karakteristik dan detail desain yang khas, yang akan memengaruhi ukuran dan proporsi ruangan.

  • Gaya minimalis:Rumah minimalis cenderung memiliki desain yang simpel dan efisien, dengan ukuran ruangan yang lebih kecil dan fokus pada fungsionalitas.
  • Gaya klasik:Rumah klasik biasanya memiliki desain yang lebih detail dan megah, dengan ruangan yang lebih besar dan tinggi.
  • Gaya modern:Rumah modern biasanya memiliki desain yang simpel dan futuristik, dengan penekanan pada penggunaan material modern dan pencahayaan alami.

Faktor Lingkungan

Faktor lingkungan seperti iklim dan kondisi tanah juga memengaruhi desain dan ukuran rumah.

  • Iklim:Rumah di daerah beriklim tropis cenderung memiliki ventilasi yang lebih baik dan ruang terbuka yang lebih luas, sedangkan rumah di daerah beriklim dingin mungkin membutuhkan desain yang lebih tertutup dan insulasi yang lebih baik.
  • Kondisi tanah:Kondisi tanah yang tidak stabil atau rentan terhadap bencana alam seperti gempa bumi akan memengaruhi desain dan struktur rumah.

Diagram Hubungan Faktor-Faktor dan Desain Rumah

Berikut adalah diagram yang menunjukkan hubungan antara faktor-faktor yang memengaruhi desain rumah lengkap dengan ukuran:

Faktor Dampak pada Desain Rumah
1 Kebutuhan Penghuni Jumlah dan jenis ruangan, ukuran ruangan, layout rumah
2 Lokasi dan Kondisi Tanah Aksesibilitas, pencahayaan, ventilasi, desain eksterior
3 Anggaran Material bangunan, kualitas desain, detail desain
4 Gaya Arsitektur Bentuk dan proporsi rumah, detail desain, penggunaan material
5 Faktor Lingkungan Sistem ventilasi, insulasi, struktur rumah

Contoh Desain Rumah Lengkap dengan Ukuran

Desain rumah lengkap dengan ukuran

Membangun rumah merupakan impian banyak orang. Sebelum membangun, penting untuk merencanakan desain rumah yang sesuai dengan kebutuhan dan keinginan. Berikut adalah beberapa contoh desain rumah lengkap dengan ukuran yang bisa menjadi inspirasi.

Desain Rumah Minimalis 1 Lantai

Desain rumah minimalis 1 lantai cocok untuk keluarga kecil atau pasangan muda yang menginginkan rumah sederhana dan fungsional. Desain ini umumnya mengutamakan efisiensi ruang dan penggunaan material yang minimalis. Berikut adalah contoh desain rumah minimalis 1 lantai:

Luas bangunan: 60 m2

Jumlah kamar tidur: 2

Jumlah kamar mandi: 1

Ruang tamu, ruang makan, dan dapur yang terintegrasi.

Teras depan dan belakang.

Contoh desain rumah minimalis 1 lantai ini memiliki ruang tamu, ruang makan, dan dapur yang terintegrasi, sehingga terasa lebih luas dan lega. Teras depan dan belakang memberikan ruang tambahan untuk bersantai dan menikmati udara segar.

Desain Rumah Tropis 2 Lantai

Desain rumah tropis 2 lantai cocok untuk keluarga besar yang menginginkan rumah yang nyaman dan sejuk. Desain ini umumnya mengutamakan sirkulasi udara yang baik, penggunaan material alami, dan pencahayaan alami.

Luas bangunan: 150 m2

Jumlah kamar tidur: 3

Jumlah kamar mandi: 2

Ruang tamu, ruang makan, dapur, dan ruang keluarga.

Balkon di lantai 2.

Taman di depan dan belakang.

Contoh desain rumah tropis 2 lantai ini memiliki ruang tamu, ruang makan, dapur, dan ruang keluarga yang terpisah, sehingga memberikan privasi yang lebih baik untuk setiap anggota keluarga. Balkon di lantai 2 memberikan ruang tambahan untuk bersantai dan menikmati pemandangan.

Desain Rumah Modern 3 Lantai

Desain rumah modern 3 lantai cocok untuk keluarga yang menginginkan rumah yang megah dan mewah. Desain ini umumnya mengutamakan penggunaan material modern, garis-garis tegas, dan pencahayaan yang dramatis.

Luas bangunan: 250 m2

Jumlah kamar tidur: 4

Jumlah kamar mandi: 3

Ruang tamu, ruang makan, dapur, ruang keluarga, ruang kerja, dan ruang fitness.

Kolam renang di halaman belakang.

Teras di lantai 3.

Contoh desain rumah modern 3 lantai ini memiliki fasilitas lengkap, seperti kolam renang, ruang fitness, dan teras di lantai 3. Desain ini juga mengutamakan privasi dengan memisahkan ruang tidur di lantai 2 dan 3.

Tips Memilih Desain Rumah Lengkap dengan Ukuran

Desain rumah lengkap dengan ukuran

Membangun rumah merupakan impian banyak orang. Rumah yang ideal tentu saja harus memenuhi kebutuhan dan keinginan penghuninya. Sebelum membangun, penting untuk menentukan desain rumah yang tepat. Desain rumah tidak hanya soal estetika, tapi juga soal fungsionalitas dan efisiensi. Untuk mendapatkan desain rumah yang tepat, ada beberapa tips yang bisa Anda pertimbangkan, mulai dari menentukan ukuran rumah yang ideal hingga memilih desain yang sesuai dengan gaya hidup Anda.

Menentukan Ukuran Rumah yang Ideal

Ukuran rumah yang ideal sangat tergantung pada kebutuhan dan jumlah penghuni. Rumah yang terlalu kecil akan terasa sempit dan tidak nyaman, sedangkan rumah yang terlalu besar akan boros energi dan sulit dirawat. Berikut beberapa hal yang perlu Anda pertimbangkan dalam menentukan ukuran rumah:

  • Jumlah penghuni rumah
  • Kebutuhan ruang, seperti ruang tamu, ruang keluarga, kamar tidur, dapur, dan kamar mandi
  • Kebutuhan ruang tambahan, seperti ruang kerja, ruang bermain, atau ruang hobi
  • Luas lahan yang tersedia
  • Anggaran pembangunan

Mempertimbangkan Gaya Hidup

Gaya hidup Anda juga menjadi faktor penting dalam memilih desain rumah. Misalnya, jika Anda adalah keluarga muda yang aktif, Anda mungkin membutuhkan ruang terbuka yang luas untuk bermain anak-anak. Atau, jika Anda adalah pasangan muda yang bekerja dari rumah, Anda mungkin membutuhkan ruang kerja yang nyaman dan tenang.

Memilih Desain Rumah yang Sesuai dengan Kebutuhan

Setelah menentukan ukuran dan gaya hidup, Anda dapat mulai memilih desain rumah yang sesuai dengan kebutuhan. Ada banyak desain rumah yang tersedia, mulai dari desain minimalis, modern, klasik, hingga tradisional. Berikut beberapa pertanyaan yang dapat membantu Anda dalam memilih desain rumah:

  • Apakah Anda menginginkan rumah dengan banyak jendela untuk mendapatkan cahaya matahari yang cukup?
  • Apakah Anda menginginkan rumah dengan ruang terbuka yang luas?
  • Apakah Anda menginginkan rumah dengan taman yang indah?
  • Apakah Anda menginginkan rumah dengan sistem keamanan yang canggih?
  • Apakah Anda menginginkan rumah yang ramah lingkungan?

Mempertimbangkan Anggaran

Anggaran merupakan faktor penting yang harus Anda pertimbangkan dalam memilih desain rumah. Pastikan desain rumah yang Anda pilih sesuai dengan anggaran yang Anda miliki. Jangan lupa untuk memperhitungkan biaya pembangunan, termasuk biaya bahan bangunan, tenaga kerja, dan biaya desain.

Memilih Arsitek yang Tepat

Memilih arsitek yang tepat sangat penting untuk mewujudkan desain rumah impian Anda. Arsitek yang berpengalaman dan profesional akan membantu Anda dalam merancang rumah yang sesuai dengan kebutuhan dan anggaran Anda. Pastikan untuk memilih arsitek yang memiliki portofolio desain yang bagus dan reputasi yang baik.

Mempertimbangkan Aspek Keamanan

Aspek keamanan merupakan hal penting yang harus Anda pertimbangkan dalam memilih desain rumah. Pastikan desain rumah Anda aman dari pencurian dan bencana alam. Anda dapat memilih desain rumah dengan sistem keamanan yang canggih, seperti pagar yang tinggi, CCTV, dan alarm.

Membangun rumah impian memang menyenangkan, apalagi kalau sudah punya desain rumah lengkap dengan ukuran yang pas. Nah, untuk mewujudkan mimpi tersebut, kamu bisa cari jasa konstruksi terpercaya, seperti asia bangunan tasikmalaya yang sudah berpengalaman di bidang konstruksi. Dengan bantuan mereka, desain rumah lengkap dengan ukuran yang kamu inginkan bisa terwujud dengan kualitas terbaik.

Mempertimbangkan Aspek Lingkungan

Saat ini, banyak orang yang peduli dengan lingkungan. Anda dapat memilih desain rumah yang ramah lingkungan, seperti rumah dengan sistem pencahayaan yang hemat energi, sistem ventilasi yang baik, dan penggunaan material bangunan yang ramah lingkungan.

Menentukan Detail Desain

Setelah menentukan desain rumah secara keseluruhan, Anda dapat mulai menentukan detail desain, seperti warna cat, jenis lantai, dan furniture. Pastikan detail desain yang Anda pilih sesuai dengan selera dan gaya hidup Anda.

Meminta Pendapat Ahli

Jangan ragu untuk meminta pendapat ahli, seperti arsitek atau desainer interior, untuk membantu Anda dalam memilih desain rumah yang tepat. Mereka dapat memberikan saran dan rekomendasi yang bermanfaat untuk mewujudkan desain rumah impian Anda.

Mencari Inspirasi

Anda dapat mencari inspirasi desain rumah dari berbagai sumber, seperti majalah desain rumah, website, dan media sosial. Anda juga dapat mengunjungi rumah-rumah contoh untuk mendapatkan ide desain yang lebih konkret.

Menentukan Prioritas

Sebelum memilih desain rumah, tentukan prioritas Anda. Apakah Anda menginginkan rumah yang mewah, minimalis, atau fungsional? Prioritas Anda akan membantu Anda dalam memilih desain rumah yang tepat.

Pemungkas

Desain rumah lengkap dengan ukuran

Desain rumah lengkap dengan ukuran adalah investasi penting untuk membangun hunian yang nyaman, fungsional, dan sesuai dengan kebutuhan Anda. Dengan memahami elemen, tahapan, dan faktor yang mempengaruhinya, Anda dapat membuat keputusan yang tepat dan membangun rumah yang benar-benar Anda impikan.

Jangan ragu untuk berkonsultasi dengan arsitek profesional untuk mendapatkan desain yang optimal.

Ringkasan FAQ

Apakah desain rumah lengkap dengan ukuran wajib?

Desain rumah lengkap dengan ukuran sangat disarankan, terutama untuk pembangunan rumah yang kompleks. Meskipun tidak wajib, desain ini dapat membantu menghindari kesalahan dan meminimalisir biaya tambahan.

Bagaimana cara mendapatkan desain rumah lengkap dengan ukuran?

Anda dapat membuat desain sendiri dengan bantuan software desain, atau berkonsultasi dengan arsitek profesional untuk mendapatkan desain yang sesuai dengan kebutuhan dan selera Anda.

Berapa biaya untuk membuat desain rumah lengkap dengan ukuran?

Biaya desain rumah bervariasi tergantung pada kompleksitas desain, luas bangunan, dan pengalaman arsitek. Anda dapat mencari informasi lebih lanjut mengenai biaya desain rumah di situs web arsitek atau platform desain online.

Leave a Comment

Your email address will not be published. Required fields are marked *

Scroll to Top