Membangun rumah dengan lahan terbatas? Desain rumah 6×13 3 kamar bisa jadi solusinya! Memanfaatkan lahan yang sempit dengan efektif, desain ini mampu menghadirkan hunian yang nyaman dan fungsional untuk keluarga kecil. Dengan penataan ruang yang cermat, rumah mungil ini tetap dapat memuat 3 kamar tidur, ruang tamu, dapur, dan kamar mandi, tanpa mengorbankan estetika dan kenyamanan.
Artikel ini akan membahas secara detail tentang desain rumah 6×13 3 kamar, mulai dari konsep dasar, inspirasi desain interior, tata letak ruangan, pemilihan material, hingga tips dan trik membangun rumah impian Anda dengan anggaran terbatas. Simak terus untuk menemukan inspirasi dan panduan lengkap dalam mewujudkan rumah idaman Anda.
Desain Rumah 6×13 3 Kamar
Membangun rumah dengan lahan terbatas, khususnya dengan ukuran 6×13 meter, memerlukan perencanaan matang agar tetap bisa menghadirkan hunian yang nyaman dan fungsional. Desain rumah 6×13 dengan 3 kamar tidur menjadi tantangan tersendiri, namun bukan berarti tidak mungkin. Dengan strategi yang tepat, Anda dapat memaksimalkan ruang dan menciptakan rumah yang ideal untuk keluarga.
Konsep Desain Rumah 6×13 3 Kamar
Desain rumah 6×13 dengan 3 kamar tidur menuntut efisiensi ruang dan penataan yang optimal. Konsep yang ideal adalah memaksimalkan ruang vertikal dengan memanfaatkan area di atas untuk penyimpanan atau ruang tambahan. Selain itu, pemilihan furnitur multifungsi dan pencahayaan yang tepat dapat membantu menciptakan ilusi ruang yang lebih luas.
Membangun rumah 6×13 dengan 3 kamar tidur memang menantang, tapi bisa diatasi dengan desain yang tepat. Kamu bisa menemukan inspirasi desain yang efisien dan estetis dengan budget terbatas, contohnya dengan melihat referensi desain rumah 200 juta. Banyak desain yang bisa kamu sesuaikan dengan kebutuhan dan luas tanahmu. Setelah menemukan inspirasi, kamu bisa mengaplikasikannya pada desain rumah 6×13 3 kamar, sehingga kamu bisa mendapatkan rumah impian yang nyaman dan fungsional.
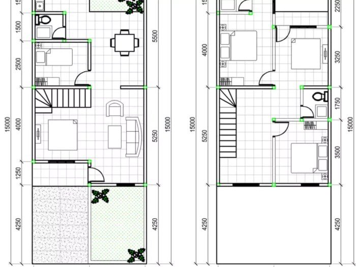
Contoh Denah Rumah 6×13 3 Kamar
Berikut adalah contoh denah rumah 6×13 dengan 3 kamar tidur yang dapat Anda jadikan inspirasi:
- Kamar Tidur Utama: Terletak di bagian depan rumah dengan ukuran yang lebih luas dibandingkan kamar lainnya. Terdapat jendela besar untuk sirkulasi udara dan pencahayaan alami.
- Kamar Tidur Anak: Di bagian belakang rumah, dengan ukuran yang lebih kecil namun tetap nyaman.
- Kamar Tidur Tamu: Dapat dikombinasikan dengan ruang kerja atau ruang serbaguna, sehingga dapat berfungsi ganda.
- Ruang Tamu: Berada di tengah rumah, dihubungkan dengan dapur dan ruang makan.
- Dapur dan Ruang Makan: Di bagian belakang rumah, dengan pencahayaan yang baik dan ventilasi yang memadai.
- Kamar Mandi: Terletak di dekat kamar tidur dan dilengkapi dengan ventilasi yang baik.
Perbandingan Layout Denah Rumah 6×13 3 Kamar
Berikut adalah tabel perbandingan layout denah rumah 6×13 3 kamar yang dapat Anda pertimbangkan:
| Layout | Efisiensi Ruang | Sirkulasi Udara |
|---|---|---|
| Layout A | Optimal, dengan memaksimalkan ruang vertikal | Baik, dengan jendela dan ventilasi yang memadai |
| Layout B | Sedang, dengan penataan yang lebih minimalis | Sedang, dengan pencahayaan alami yang tercukupi |
| Layout C | Kurang optimal, dengan ruang yang lebih sempit | Kurang baik, dengan ventilasi yang terbatas |
Elemen Desain Penting untuk Memaksimalkan Ruang
Beberapa elemen desain penting yang dapat memaksimalkan ruang dalam rumah 6×13 3 kamar, yaitu:
- Cermin: Menciptakan ilusi ruang yang lebih luas.
- Furnitur Multifungsi: Sofa bed, meja lipat, dan rak dinding dapat menghemat ruang.
- Warna Cerah: Memberikan kesan ruangan yang lebih luas dan terang.
- Pencahayaan yang Tepat: Kombinasi pencahayaan alami dan buatan dapat meningkatkan suasana dan fungsi ruangan.
Keuntungan dan Kekurangan Desain Rumah 6×13 3 Kamar
Berikut adalah keuntungan dan kekurangan desain rumah 6×13 3 kamar:
Keuntungan:
- Efisiensi Lahan: Cocok untuk lahan terbatas.
- Biaya Pembangunan Lebih Rendah: Dibandingkan dengan rumah yang lebih besar.
- Mudah Dirawat: Ukuran yang lebih kecil memudahkan perawatan.
Kekurangan:
- Ruang Terbatas: Membutuhkan perencanaan yang matang untuk memaksimalkan ruang.
- Kurang Privasi: Dinding yang tipis dapat mengurangi privasi antar ruangan.
- Sulit Menambahkan Ruang: Sulit untuk memperluas rumah di masa depan.
Inspirasi Desain Interior

Membangun rumah dengan ukuran 6×13 meter yang memuat 3 kamar tidur memang membutuhkan strategi khusus dalam desain interior. Tujuannya agar rumah tetap terasa nyaman dan lapang meskipun dengan ruang terbatas. Nah, untuk itu, berikut beberapa inspirasi desain interior rumah 6×13 meter 3 kamar dengan gaya minimalis modern yang bisa kamu contek.
Desain rumah 6×13 3 kamar memang menantang, tapi bukan berarti mustahil. Kamu bisa memanfaatkan inspirasi dari desain rumah minimalis modern 3 kamar untuk menciptakan rumah yang nyaman dan fungsional. Konsep minimalis dengan penataan ruang yang cerdas bisa menjadi solusi untuk memaksimalkan area terbatas. Dengan sedikit kreativitas, kamu bisa mewujudkan rumah impianmu yang cozy dan modern di lahan 6×13.
Contoh Desain Interior Rumah 6×13 Meter 3 Kamar
Memilih gaya minimalis modern untuk rumah 6×13 meter 3 kamar merupakan pilihan yang tepat. Gaya ini memberikan kesan bersih, simpel, dan tidak terlalu ramai. Berikut contoh desain interiornya:
- Desain 1: Rumah dengan dominasi warna putih dan abu-abu. Untuk menambah aksen, bisa ditambahkan furniture kayu berwarna cokelat muda atau gelap. Penerapan pencahayaan yang tepat akan membuat ruangan terasa lebih luas dan terang. Misalnya, dengan menggunakan jendela besar yang menghadap ke taman atau memanfaatkan pencahayaan buatan dengan lampu gantung yang minimalis.
- Desain 2: Rumah dengan warna netral seperti putih, abu-abu, dan beige. Untuk menambah aksen, bisa ditambahkan warna biru muda atau hijau muda pada dinding atau furniture. Desain ini memberikan kesan tenang dan nyaman.
- Desain 3: Rumah dengan warna bold seperti hitam, abu-abu tua, dan putih. Desain ini memberikan kesan modern dan edgy. Untuk menambah aksen, bisa ditambahkan warna emas pada furniture atau aksesoris.
Penggunaan Warna dan Material
Pemilihan warna dan material sangat penting dalam desain interior rumah 6×13 meter 3 kamar. Warna yang tepat dapat membuat ruangan terasa lebih luas dan nyaman, sedangkan material yang tepat dapat membuat rumah lebih tahan lama dan mudah dibersihkan.
Berikut beberapa contoh penggunaan warna dan material yang cocok untuk desain interior rumah 6×13 meter 3 kamar:
- Warna: Gunakan warna-warna netral seperti putih, abu-abu, beige, atau krem sebagai warna dasar. Warna-warna ini dapat membuat ruangan terasa lebih luas dan terang. Untuk menambah aksen, bisa ditambahkan warna-warna bold seperti biru, hijau, atau kuning.
- Material: Gunakan material yang ringan dan mudah dibersihkan seperti kayu, keramik, atau kaca. Untuk lantai, bisa menggunakan keramik atau kayu. Untuk dinding, bisa menggunakan cat, wallpaper, atau batu alam. Untuk furniture, bisa menggunakan kayu, metal, atau plastik.
Tips dan Trik Dekorasi Rumah 6×13 Meter 3 Kamar
Berikut beberapa tips dan trik untuk mendekorasi rumah 6×13 meter 3 kamar agar tampak lebih luas dan nyaman:
| Tips | Trik |
|---|---|
| Gunakan cermin | Cermin dapat memantulkan cahaya dan membuat ruangan terasa lebih luas. Letakkan cermin di dinding atau di sudut ruangan. |
| Manfaatkan pencahayaan | Gunakan pencahayaan yang tepat untuk membuat ruangan terasa lebih terang dan luas. Gunakan lampu gantung, lampu dinding, atau lampu sorot. |
| Pilih furniture multifungsi | Pilih furniture yang multifungsi untuk menghemat ruang. Misalnya, sofa bed, meja lipat, atau rak dinding. |
| Gunakan warna-warna netral | Warna-warna netral seperti putih, abu-abu, beige, atau krem dapat membuat ruangan terasa lebih luas dan terang. |
| Minimalisir dekorasi | Hindari terlalu banyak dekorasi yang dapat membuat ruangan terasa penuh dan sempit. |
Memilih Furniture yang Tepat
Pemilihan furniture yang tepat sangat penting untuk rumah 6×13 meter 3 kamar. Furniture yang terlalu besar akan membuat ruangan terasa sempit, sedangkan furniture yang terlalu kecil akan membuat ruangan terasa kosong.
Berikut beberapa tips untuk memilih furniture yang tepat:
- Ukuran: Pilih furniture dengan ukuran yang sesuai dengan ruangan. Hindari furniture yang terlalu besar atau terlalu kecil.
- Fungsi: Pilih furniture yang multifungsi untuk menghemat ruang. Misalnya, sofa bed, meja lipat, atau rak dinding.
- Bahan: Pilih furniture yang terbuat dari bahan yang tahan lama dan mudah dibersihkan. Misalnya, kayu, metal, atau plastik.
- Gaya: Pilih furniture yang sesuai dengan gaya desain interior rumah. Misalnya, furniture minimalis modern untuk rumah dengan gaya minimalis modern.
Elemen Dekorasi yang Meningkatkan Estetika
Berikut beberapa elemen dekorasi yang dapat meningkatkan estetika rumah 6×13 meter 3 kamar:
- Tanaman Hias: Tanaman hias dapat membuat ruangan terasa lebih segar dan hidup. Pilih tanaman hias yang mudah dirawat dan sesuai dengan kondisi ruangan.
- Lukisan: Lukisan dapat menambah aksen dan karakter pada ruangan. Pilih lukisan yang sesuai dengan gaya desain interior rumah.
- Aksesoris: Aksesoris seperti vas bunga, patung, atau bantal dapat menambah keindahan dan kehangatan pada ruangan. Pilih aksesoris yang sesuai dengan gaya desain interior rumah.
Konsep Tata Letak

Tata letak rumah 6×13 dengan tiga kamar tidur membutuhkan perencanaan yang cermat untuk memaksimalkan ruang dan menciptakan suasana yang nyaman. Konsep tata letak yang efektif akan memisahkan area fungsional, memaksimalkan pencahayaan alami, dan menciptakan sirkulasi udara yang baik.
Membangun rumah 6×13 dengan 3 kamar memang menantang, tapi bukan berarti tidak mungkin. Untuk inspirasi, kamu bisa melirik gaya desain rumah american classic minimalis yang modern dan efisien. Gaya ini bisa diaplikasikan pada rumah 6×13 dengan penataan ruang yang cermat dan pemilihan furnitur multifungsi. Dengan sedikit kreativitas, kamu bisa menciptakan hunian yang nyaman dan estetis meskipun dalam lahan terbatas.
Contoh Penataan Ruang, Desain rumah 6×13 3 kamar
Berikut adalah contoh penataan ruang yang efisien untuk rumah 6×13 dengan tiga kamar tidur:
- Ruang Tamu: Posisikan ruang tamu di dekat pintu masuk untuk menyambut tamu. Pilih furnitur multifungsi seperti sofa bed untuk menghemat ruang. Manfaatkan cermin untuk menciptakan ilusi ruang yang lebih luas.
- Dapur: Letakkan dapur di dekat ruang makan atau ruang tamu untuk memudahkan akses dan interaksi. Gunakan lemari dinding dan rak gantung untuk penyimpanan yang efisien. Pilih desain dapur minimalis dengan countertop yang praktis.
- Kamar Mandi: Prioritaskan penggunaan shower daripada bathtub untuk menghemat ruang. Gunakan cermin besar dan pencahayaan yang baik untuk menciptakan kesan luas.
Memanfaatkan Ruang Kosong
Rumah 6×13 biasanya memiliki ruang kosong yang dapat dimanfaatkan untuk penyimpanan. Berikut adalah beberapa ide:
- Lemari Dinding: Pasang lemari dinding di sepanjang koridor atau di bawah tangga untuk menyimpan barang-barang yang tidak sering digunakan.
- Rak Gantung: Gunakan rak gantung di dinding untuk menyimpan buku, tanaman hias, atau aksesoris.
- Meja Lipat: Gunakan meja lipat yang dapat dilipat dan disimpan di sudut ruangan saat tidak digunakan.
Tips Memaksimalkan Pencahayaan Alami
Pencahayaan alami sangat penting untuk menciptakan suasana yang nyaman dan sehat. Berikut adalah beberapa tips untuk memaksimalkan pencahayaan alami di rumah 6×13:
| Tips | Penjelasan |
|---|---|
| Gunakan jendela kaca besar | Membiarkan cahaya matahari masuk dengan maksimal |
| Pilih warna cat yang terang | Memantulkan cahaya dan membuat ruangan terasa lebih luas |
| Gunakan cermin | Memantulkan cahaya dan menciptakan ilusi ruang yang lebih terang |
| Hindari penggunaan tirai tebal | Membiarkan cahaya matahari masuk dengan mudah |
Pentingnya Ventilasi dan Sirkulasi Udara
Ventilasi dan sirkulasi udara yang baik sangat penting untuk menjaga kualitas udara di dalam rumah. Berikut adalah beberapa tips untuk menciptakan ventilasi yang baik:
- Pastikan setiap ruangan memiliki ventilasi yang memadai.
- Gunakan jendela yang dapat dibuka untuk sirkulasi udara.
- Pasang kipas angin di ruangan yang lembap, seperti kamar mandi.
- Hindari penggunaan material bangunan yang dapat melepaskan bahan kimia berbahaya.
Tips dan Trik

Membangun rumah 6×13 dengan 3 kamar tidur dengan anggaran terbatas bisa menjadi tantangan, tetapi dengan perencanaan yang tepat dan strategi yang cerdas, impian Anda bisa terwujud. Artikel ini akan membahas beberapa tips dan trik untuk membangun rumah impian Anda dengan efisien dan efektif.
Membangun Rumah dengan Anggaran Terbatas
Membangun rumah dengan anggaran terbatas membutuhkan perencanaan yang matang dan disiplin dalam pengeluaran. Berikut beberapa tips yang bisa Anda terapkan:
- Pilih desain yang sederhana dan fungsional. Hindari desain yang rumit dan membutuhkan banyak material. Rumah 6×13 sudah cukup untuk 3 kamar tidur, jadi fokuslah pada penataan ruang yang efisien dan praktis.
- Manfaatkan material bangunan yang terjangkau. Ada banyak material bangunan berkualitas baik dengan harga yang relatif terjangkau. Lakukan riset dan bandingkan harga dari berbagai pemasok.
- Lakukan beberapa pekerjaan sendiri. Anda bisa menghemat biaya dengan melakukan beberapa pekerjaan pembangunan sendiri, seperti pengecatan, pemasangan keramik, atau pekerjaan ringan lainnya.
- Manfaatkan bantuan keluarga dan teman. Jika Anda memiliki keluarga atau teman yang memiliki keahlian di bidang konstruksi, Anda bisa meminta bantuan mereka untuk menghemat biaya tenaga kerja.
Memilih Kontraktor yang Terpercaya
Memilih kontraktor yang tepat sangat penting untuk memastikan kualitas dan kelancaran pembangunan rumah Anda. Berikut beberapa tips untuk memilih kontraktor yang terpercaya:
- Cari referensi dari orang-orang yang pernah menggunakan jasa kontraktor tersebut. Tanyakan tentang pengalaman mereka, kualitas pekerjaan, dan ketepatan waktu penyelesaian proyek.
- Perhatikan portofolio dan pengalaman kontraktor. Pastikan kontraktor memiliki pengalaman dalam membangun rumah dengan ukuran dan jenis yang sama dengan yang Anda inginkan.
- Mintalah penawaran harga dari beberapa kontraktor. Bandingkan harga dan detail penawaran dari masing-masing kontraktor sebelum membuat keputusan.
- Pastikan kontraktor memiliki izin resmi dan asuransi. Ini akan melindungi Anda dari risiko kerugian atau kerusakan yang mungkin terjadi selama proses pembangunan.
Langkah-Langkah Penting dalam Membangun Rumah
| No | Langkah | Keterangan |
|---|---|---|
| 1 | Perencanaan dan Desain | Tentukan kebutuhan, desain, dan anggaran rumah Anda. |
| 2 | Pemilihan Kontraktor | Cari kontraktor yang berpengalaman dan terpercaya. |
| 3 | Persiapan Lahan | Bersihkan lahan, urug tanah, dan pasang pondasi. |
| 4 | Konstruksi Bangunan | Bangun struktur rumah, pasang atap, dan dinding. |
| 5 | Finishing | Pasang keramik, cat, dan finishing lainnya. |
| 6 | Pemasangan Instalasi | Pasang instalasi listrik, air, dan gas. |
| 7 | Pembersihan dan Serah Terima | Bersihkan rumah dan serahkan kepada pemilik. |
Faktor-Faktor yang Perlu Dipertimbangkan
Sebelum memulai pembangunan rumah, ada beberapa faktor penting yang perlu Anda pertimbangkan:
- Kebutuhan dan Gaya Hidup. Tentukan kebutuhan dan gaya hidup Anda untuk menentukan desain dan ukuran rumah yang ideal.
- Anggaran. Tetapkan anggaran yang realistis dan buat rencana pengeluaran yang terperinci.
- Lokasi dan Aksesibilitas. Pilih lokasi yang strategis dan mudah diakses. Pertimbangkan juga faktor keamanan dan lingkungan sekitar.
- Peraturan dan Izin. Pastikan Anda mematuhi peraturan dan izin yang berlaku di wilayah Anda.
- Perencanaan yang Matang. Rencanakan pembangunan rumah secara matang, mulai dari desain, pemilihan material, hingga proses konstruksi.
Desain rumah 6×13 3 kamar menawarkan solusi cerdas untuk hunian minimalis yang tetap nyaman dan fungsional. Dengan perencanaan yang matang, pemilihan material yang tepat, dan penataan ruang yang optimal, Anda dapat menciptakan rumah impian yang estetis dan efisien di lahan terbatas. Ingat, kunci suksesnya terletak pada kreativitas dan kejelian dalam memanfaatkan setiap sudut ruangan.
Pertanyaan Umum (FAQ)
Bagaimana cara memaksimalkan pencahayaan alami di rumah 6×13 3 kamar?
Gunakan jendela yang besar dan berposisi strategis untuk memaksimalkan cahaya matahari masuk. Manfaatkan warna terang pada dinding dan furniture untuk memantulkan cahaya.
Apakah ada tips untuk memilih kontraktor yang terpercaya?
Cari kontraktor dengan reputasi baik, pengalaman, dan portofolio yang meyakinkan. Mintalah rekomendasi dari teman atau keluarga, dan jangan lupa untuk melakukan pengecekan latar belakang kontraktor.

