Memiliki lahan terbatas bukan berarti Anda harus mengorbankan impian memiliki rumah 2 lantai yang nyaman dan stylish. Desain rumah 10×20 2 lantai menawarkan solusi cerdas untuk menghadirkan hunian ideal di lahan minimalis. Dengan perencanaan yang matang, Anda dapat memaksimalkan setiap sudut, menciptakan ruangan fungsional, dan menghadirkan estetika yang memikat.
Artikel ini akan membahas konsep desain rumah 10×20 2 lantai, mulai dari tata letak ruangan, inspirasi interior, hingga tips dan trik desain yang praktis. Anda akan menemukan panduan lengkap untuk mewujudkan hunian impian yang nyaman dan estetis di lahan terbatas.
Konsep Desain Rumah 10×20 2 Lantai

Membangun rumah di lahan terbatas seperti 10×20 meter membutuhkan perencanaan yang matang. Salah satu solusinya adalah membangun rumah 2 lantai untuk memaksimalkan ruang dan memenuhi kebutuhan keluarga. Desain minimalis modern menjadi pilihan yang populer karena menawarkan estetika yang simpel, fungsional, dan hemat biaya.
Desain rumah 10×20 2 lantai memang menawarkan banyak potensi, bisa dimaksimalkan untuk hunian yang nyaman dan modern. Nah, kalau kamu ingin sentuhan yang unik, bisa mengintip inspirasi dari desain rumah korea. Gaya minimalis dan penggunaan material kayu yang khas bisa diadaptasi untuk menciptakan nuansa hangat dan elegan pada rumah 10×20 2 lantai.
Konsep Desain Rumah Minimalis Modern
Konsep desain minimalis modern untuk rumah 10×20 2 lantai mengutamakan kesederhanaan dan efisiensi ruang. Rumah dengan gaya ini biasanya memiliki garis-garis tegas, penggunaan warna netral, dan pencahayaan yang maksimal. Fokusnya adalah pada penataan ruang yang fungsional dan estetika yang bersih dan modern.
Perbandingan Konsep Desain Rumah 10×20 2 Lantai
| Gaya Arsitektur | Ciri Khas | Contoh |
|---|---|---|
| Minimalis | Kesederhanaan, garis-garis tegas, warna netral, pencahayaan natural | Rumah dengan fasad polos, jendela kaca besar, dan taman minimalis |
| Modern | Inovasi, bentuk geometrik, penggunaan material modern, pencahayaan artificial | Rumah dengan atap datar, dinding kaca, dan penggunaan material seperti beton dan baja |
| Klasik | Ornamen rumit, simetri, penggunaan material tradisional, warna-warna hangat | Rumah dengan pilar-pilar, jendela melengkung, dan penggunaan material seperti kayu dan batu bata |
Elemen Desain Utama Rumah 10×20 2 Lantai
Untuk memaksimalkan ruang pada rumah 10×20 2 lantai, ada 3 elemen desain utama yang perlu diperhatikan:
- Tata Letak Ruangan: Penempatan ruangan harus efisien dan mempertimbangkan sirkulasi udara dan cahaya. Ruangan yang sering digunakan sebaiknya diletakkan di lantai bawah, sedangkan ruangan pribadi bisa di lantai atas.
- Pencahayaan: Manfaatkan cahaya matahari secara maksimal dengan jendela besar dan skylight. Pencahayaan yang baik dapat membuat ruangan terasa lebih luas dan nyaman.
- Material Bangunan: Pilih material yang ringan, tahan lama, dan mudah dibersihkan. Contohnya, material seperti kayu, baja ringan, dan kaca.
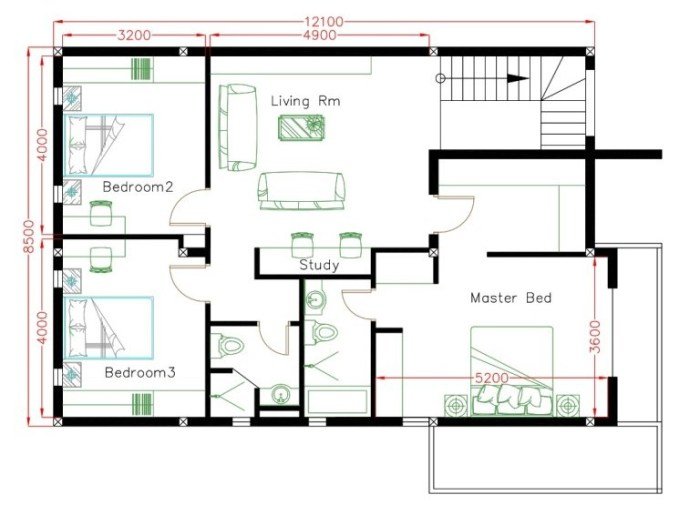
Denah Lantai Rumah 10×20 2 Lantai
Denah lantai rumah 10×20 2 lantai dapat dirancang dengan penempatan ruangan yang efisien. Berikut contoh denah lantai 1 dan 2:
Denah Lantai 1
Lantai 1 dapat memuat ruang tamu, ruang makan, dapur, kamar tidur utama, dan kamar mandi. Ruang tamu dan ruang makan bisa dihubungkan untuk menciptakan ruang terbuka yang luas. Kamar tidur utama sebaiknya diletakkan di bagian depan rumah untuk privasi.
Desain rumah 10×20 2 lantai memang menawarkan banyak ruang, tapi kamu juga bisa mempertimbangkan desain yang lebih minimalis. Misalnya, dengan lahan yang lebih kecil, kamu bisa meniru inspirasi dari minimalis 4×12 desain rumah 4×12. Rumah minimalis ini tetap nyaman dan fungsional, bahkan bisa jadi pilihan tepat untuk keluarga kecil yang menginginkan hunian simpel namun tetap stylish. Nah, inspirasi dari desain minimalis ini bisa kamu terapkan juga pada rumah 10×20 2 lantai dengan penataan ruang yang lebih efisien dan fokus pada estetika minimalis.
Denah Lantai 2
Lantai 2 dapat memuat kamar tidur anak, kamar mandi, dan ruang keluarga atau ruang kerja. Penempatan kamar tidur anak sebaiknya mempertimbangkan usia dan kebutuhan mereka. Ruang keluarga atau ruang kerja bisa difungsikan sebagai area relaksasi atau tempat belajar.
Tips Memilih Material Bangunan
Memilih material bangunan yang tepat sangat penting untuk membangun rumah 10×20 2 lantai yang kuat dan tahan lama. Berikut beberapa tips:
- Struktur Bangunan: Pilih material yang kuat dan tahan gempa, seperti beton bertulang atau baja ringan. Pertimbangkan juga daya tahan terhadap rayap dan kelembaban.
- Dinding dan Plafon: Gunakan material yang ringan dan mudah diaplikasikan, seperti gypsum board, panel kayu, atau bata ringan. Perhatikan juga isolasi panas dan suara.
- Lantai: Pilih material yang tahan lama, mudah dibersihkan, dan sesuai dengan gaya desain. Contohnya, keramik, marmer, atau kayu.
Tata Letak dan Fungsi Ruangan

Desain rumah 10×20 2 lantai memberikan fleksibilitas dalam menata ruang. Pembagian ruang yang tepat akan menghasilkan hunian yang nyaman dan fungsional. Berikut adalah contoh tata letak dan fungsi ruangan yang bisa Anda pertimbangkan:
Contoh Denah Lantai 1
Pada lantai 1, ruang tamu, ruang makan, dapur, dan kamar mandi umumnya menjadi fokus utama. Tata letak yang ideal adalah menempatkan ruang tamu di bagian depan rumah, dilanjutkan dengan ruang makan, dan dapur di bagian belakang. Kamar mandi bisa ditempatkan di sisi samping, dekat dengan dapur. Penempatan ini memungkinkan sirkulasi udara dan pencahayaan yang baik di setiap ruangan.
Fungsi dan Tata Letak Ruang Tidur Utama dan Kamar Mandi di Lantai 2
Lantai 2 umumnya difokuskan untuk area privat, seperti ruang tidur utama dan kamar mandi. Ruang tidur utama sebaiknya ditempatkan di area yang tenang dan private, dengan jendela yang menghadap ke pemandangan yang indah. Kamar mandi ensuite di dalam ruang tidur utama memberikan kenyamanan dan privasi yang lebih tinggi.
Desain rumah 10×20 2 lantai memang menawarkan luas yang cukup untuk mengakomodasi kebutuhan keluarga. Namun, untuk kamu yang ingin membangun rumah dengan budget terbatas, desain rumah subsidi type 36 bisa menjadi pilihan yang menarik. Kamu bisa menemukan berbagai inspirasi desain rumah subsidi type 36 yang minimalis dan fungsional di situs ini. Walaupun dengan luas yang lebih kecil, desain rumah subsidi type 36 bisa menjadi inspirasi untuk menciptakan ruang yang efisien dan nyaman di rumah 10×20 2 lantai kamu.
Penempatan Tangga yang Optimal
Tangga menjadi penghubung antara lantai 1 dan 2. Penempatan tangga yang optimal harus mempertimbangkan sirkulasi udara dan pencahayaan. Idealnya, tangga ditempatkan di dekat pintu masuk rumah, sehingga mudah diakses dan tidak menghalangi akses ke ruangan lain. Posisi tangga juga sebaiknya tidak memblokir cahaya masuk ke ruangan.
Perbandingan Penempatan Ruangan Ideal
| Ruangan | Rumah 2 Kamar Tidur | Rumah 3 Kamar Tidur |
|---|---|---|
| Ruang Tamu | Depan rumah | Depan rumah |
| Ruang Makan | Samping ruang tamu | Samping ruang tamu |
| Dapur | Belakang rumah | Belakang rumah |
| Kamar Mandi Lantai 1 | Samping dapur | Samping dapur |
| Kamar Tidur 1 | Lantai 2, depan | Lantai 2, depan |
| Kamar Tidur 2 | Lantai 2, belakang | Lantai 2, tengah |
| Kamar Tidur 3 | – | Lantai 2, belakang |
Memaksimalkan Ruang di Bawah Tangga
Ruang di bawah tangga seringkali terbuang sia-sia. Namun, ruang ini bisa dimaksimalkan dengan berbagai cara, seperti:
- Rak penyimpanan: Buat rak terbuka atau lemari tertutup untuk menyimpan barang-barang yang jarang digunakan.
- Lemari kecil: Gunakan ruang ini untuk menyimpan sepatu, tas, atau peralatan rumah tangga.
- Ruang kerja kecil: Jika ruang memungkinkan, buat meja kerja kecil untuk bekerja atau belajar.
- Taman vertikal: Tanaman hijau bisa menambah kesegaran dan keindahan ruangan.
Inspirasi Desain Interior
Memiliki rumah 10×20 2 lantai memberikan kesempatan untuk mengeksplorasi berbagai gaya desain interior. Desain interior yang tepat akan menciptakan suasana yang nyaman, estetis, dan sesuai dengan kebutuhan penghuni. Berikut beberapa inspirasi desain interior untuk rumah 10×20 2 lantai yang bisa Anda pertimbangkan.
Inspirasi Desain Ruang Tamu Minimalis Modern
Ruang tamu minimalis modern identik dengan kesederhanaan dan fungsionalitas. Pilihlah furnitur dengan bentuk yang simpel dan warna netral seperti putih, abu-abu, atau hitam. Untuk menambahkan sentuhan kehangatan, gunakan aksen kayu atau tanaman hijau. Jangan lupa untuk memanfaatkan pencahayaan alami dengan jendela yang besar dan pencahayaan buatan yang tepat untuk menciptakan suasana yang nyaman.
Sebagai contoh, Anda bisa menggunakan sofa berwarna abu-abu dengan desain minimalis, meja kopi kayu yang simpel, dan beberapa tanaman hijau di sudut ruangan. Untuk pencahayaan, Anda bisa menggunakan lampu gantung yang minimalis di atas meja kopi dan lampu dinding di sisi sofa. Jangan lupa untuk memilih warna dinding yang netral seperti putih atau abu-abu muda untuk menciptakan kesan ruangan yang lebih luas.
Perbandingan Desain Interior Kamar Tidur Utama
| Konsep | Warna | Material | Furnitur |
|---|---|---|---|
| Minimalis | Putih, abu-abu, krem | Kayu, beton, kaca | Tempat tidur simpel, lemari minimalis, meja rias kecil |
| Modern | Hitam, putih, abu-abu, biru tua | Logam, kulit, kaca | Tempat tidur dengan headboard yang unik, lemari dengan desain modern, meja rias dengan cermin besar |
| Klasik | Putih, krem, emas | Kayu, beludru, logam | Tempat tidur dengan headboard berukir, lemari dengan detail klasik, meja rias dengan cermin berbingkai |
Pemilihan Warna dan Material untuk Dapur dan Ruang Makan
Dapur dan ruang makan adalah area yang sering digunakan untuk berkumpul bersama keluarga dan teman. Pilihlah warna dan material yang menciptakan suasana yang hangat dan nyaman. Untuk dapur, Anda bisa menggunakan warna-warna netral seperti putih, abu-abu, atau krem. Untuk ruang makan, Anda bisa menambahkan warna-warna yang lebih berani seperti biru tua, hijau, atau merah marun.
Untuk material, Anda bisa menggunakan kayu untuk lemari dapur dan meja makan. Gunakan granit atau marmer untuk meja dapur dan backsplash. Pastikan Anda memilih material yang mudah dibersihkan dan tahan lama. Jangan lupa untuk menggunakan pencahayaan yang cukup di kedua area ini untuk menciptakan suasana yang terang dan menyenangkan.
Menciptakan Suasana Nyaman dan Estetis di Ruang Keluarga
Ruang keluarga adalah tempat untuk bersantai dan berkumpul bersama keluarga. Untuk menciptakan suasana yang nyaman dan estetis, Anda bisa menggunakan pencahayaan yang tepat dan dekorasi yang menarik. Pilihlah lampu dengan cahaya yang hangat dan lembut. Anda bisa menggunakan lampu gantung, lampu meja, atau lampu dinding. Gunakan dekorasi yang sesuai dengan gaya desain interior Anda.
Anda bisa menggunakan lukisan, foto keluarga, atau tanaman hijau. Jangan lupa untuk mengatur penempatan furnitur agar ruang keluarga terasa lebih luas dan nyaman.
Contoh Skema Pencahayaan untuk Rumah 10×20 2 Lantai
Berikut contoh skema pencahayaan untuk rumah 10×20 2 lantai:
- Ruang Tamu: Lampu gantung di atas meja kopi, lampu dinding di sisi sofa, dan lampu sorot untuk mengarahkan cahaya ke lukisan atau dekorasi lainnya.
- Kamar Tidur Utama: Lampu gantung di atas tempat tidur, lampu meja di samping tempat tidur, dan lampu dinding di sisi lemari.
- Dapur: Lampu gantung di atas meja dapur, lampu sorot di bawah lemari, dan lampu di atas wastafel.
- Ruang Makan: Lampu gantung di atas meja makan, lampu dinding di sisi dinding, dan lampu sorot untuk mengarahkan cahaya ke lukisan atau dekorasi lainnya.
- Ruang Keluarga: Lampu gantung di atas sofa, lampu meja di samping sofa, dan lampu dinding di sisi dinding.
Tips dan Trik Desain
Membangun rumah 10×20 dua lantai memang penuh tantangan, namun juga penuh peluang untuk menciptakan hunian yang nyaman dan fungsional. Untuk memaksimalkan potensi desain, berikut beberapa tips dan trik yang bisa Anda terapkan.
Memaksimalkan Pencahayaan Alami
Pencahayaan alami sangat penting untuk menciptakan suasana yang ceria dan sehat di dalam rumah. Di rumah 10×20 dua lantai, Anda dapat memaksimalkan pencahayaan alami dengan beberapa cara:
- Gunakan jendela yang besar dan tinggi, terutama di bagian depan dan belakang rumah. Ini akan memungkinkan cahaya matahari masuk ke dalam rumah secara maksimal.
- Pilih jendela dengan kaca bening atau frosted yang memungkinkan cahaya masuk tanpa menghalangi pandangan.
- Pertimbangkan untuk menggunakan skylight atau atap kaca untuk menerangi ruang tengah atau ruang tangga.
- Manfaatkan cermin untuk memantulkan cahaya alami ke sudut-sudut ruangan yang kurang terang.
Memilih Furnitur yang Tepat
Memilih furnitur yang tepat sangat penting untuk menciptakan ruang yang nyaman dan fungsional di rumah 10×20 dua lantai. Berikut beberapa tips yang perlu dipertimbangkan:
- Pilih furnitur dengan ukuran yang sesuai dengan ruangan. Hindari furnitur yang terlalu besar atau terlalu kecil, karena dapat membuat ruangan terasa sempit atau kosong.
- Pilih furnitur multifungsi, seperti sofa bed atau meja lipat, untuk menghemat ruang.
- Manfaatkan ruang vertikal dengan menggunakan rak dinding atau lemari gantung.
- Pilih warna furnitur yang terang dan cerah untuk menciptakan kesan ruangan yang lebih luas.
Menciptakan Sirkulasi Udara yang Baik
Sirkulasi udara yang baik sangat penting untuk menjaga kualitas udara di dalam rumah. Berikut beberapa tips untuk menciptakan sirkulasi udara yang baik di rumah 10×20 dua lantai:
- Pastikan ventilasi yang cukup di setiap ruangan, terutama di kamar tidur dan dapur.
- Gunakan kipas angin atau AC untuk membantu sirkulasi udara, terutama di musim panas.
- Hindari penggunaan bahan bangunan yang mudah menyerap bau, seperti kayu lapis atau karpet.
- Pastikan rumah terbebas dari kelembaban dengan melakukan pengecekan dan perawatan rutin.
Aspek Keamanan dan Keselamatan
Aspek keamanan dan keselamatan harus menjadi prioritas utama dalam mendesain rumah. Berikut beberapa hal yang perlu dipertimbangkan:
- Pastikan tangga memiliki pegangan yang kuat dan kokoh untuk mencegah jatuh.
- Gunakan material yang tahan api untuk dinding dan atap.
- Pasang alarm kebakaran dan detektor asap di setiap lantai.
- Pastikan pintu dan jendela dilengkapi dengan kunci yang aman.
- Pertimbangkan untuk memasang sistem keamanan seperti CCTV atau alarm pencurian.
Memilih Jasa Arsitek dan Kontraktor
Memilih jasa arsitek dan kontraktor yang terpercaya sangat penting untuk memastikan proses pembangunan berjalan lancar dan sesuai dengan rencana.
- Cari referensi dari teman atau keluarga yang pernah membangun rumah.
- Lihat portofolio dan pengalaman arsitek dan kontraktor yang Anda pertimbangkan.
- Pastikan arsitek dan kontraktor memiliki izin resmi dan asuransi.
- Baca dan pahami dengan baik kontrak kerja sebelum menandatanganinya.
- Jangan ragu untuk bertanya dan meminta penjelasan jika ada hal yang tidak dipahami.
Contoh Desain dan Ilustrasi: Desain Rumah 10×20 2 Lantai

Membangun rumah 10×20 2 lantai dengan konsep minimalis modern membutuhkan perencanaan yang matang dan detail. Untuk membantu Anda memvisualisasikan desain yang ideal, berikut contoh desain dan ilustrasi yang dapat menjadi inspirasi:
Desain Fasad Rumah Minimalis Modern, Desain rumah 10×20 2 lantai
Fasad rumah minimalis modern umumnya ditandai dengan garis-garis tegas, penggunaan material seperti batu alam atau kayu, serta jendela kaca yang lebar. Ilustrasi desain fasad rumah 10×20 2 lantai ini menggambarkan konsep tersebut dengan sentuhan warna abu-abu dan putih yang elegan. Jendela kaca yang besar memungkinkan cahaya matahari masuk ke dalam rumah, menciptakan suasana yang terang dan lapang.
Denah Lantai 1 dan 2
Denah lantai rumah 10×20 2 lantai dirancang untuk memaksimalkan penggunaan ruang dan menciptakan sirkulasi udara yang baik. Lantai 1 biasanya terdiri dari ruang tamu, ruang makan, dapur, dan kamar mandi tamu. Lantai 2 dikhususkan untuk kamar tidur, kamar mandi, dan ruang keluarga. Ilustrasi denah ini menunjukkan penempatan ruangan yang optimal, dengan area terbuka di bagian tengah untuk menciptakan ruang yang luas dan nyaman.
Detail Desain Interior Ruang Tamu dan Kamar Tidur Utama
Ruang tamu dirancang dengan konsep minimalis modern, dengan penggunaan warna netral dan furnitur yang simpel. Pencahayaan alami dari jendela kaca besar memberikan kesan luas dan nyaman. Untuk kamar tidur utama, konsep minimalis modern tetap diterapkan, dengan penambahan sentuhan personal seperti wallpaper dinding atau headboard yang unik. Ilustrasi ini menggambarkan penggunaan warna lembut dan material kayu yang memberikan kesan hangat dan tenang.
Pencahayaan Alami dan Buatan
Pencahayaan merupakan elemen penting dalam desain rumah. Ilustrasi ini menunjukkan penggunaan jendela kaca besar untuk memaksimalkan cahaya matahari yang masuk ke dalam rumah, terutama di area ruang tamu dan ruang makan. Pencahayaan buatan digunakan sebagai pelengkap di malam hari, dengan penempatan lampu yang strategis untuk menciptakan suasana yang nyaman dan hangat.
Penggunaan Material dan Warna
Material yang digunakan dalam desain rumah 10×20 2 lantai ini meliputi batu alam, kayu, dan kaca. Batu alam digunakan untuk dinding eksterior, memberikan kesan natural dan kokoh. Kayu digunakan untuk interior, menciptakan suasana hangat dan nyaman. Kaca digunakan untuk jendela dan pintu, memaksimalkan cahaya matahari dan memberikan kesan modern. Warna yang digunakan didominasi oleh warna netral seperti putih, abu-abu, dan cokelat, dengan sentuhan warna lain untuk memberikan aksen yang menarik.
Ilustrasi ini menunjukkan contoh aplikasi material dan warna tersebut dalam desain rumah.
Membangun rumah 10×20 2 lantai adalah proyek yang menantang, namun dengan perencanaan yang tepat, Anda dapat menciptakan hunian yang nyaman, fungsional, dan estetis. Ingatlah untuk selalu mengutamakan kebutuhan dan gaya hidup Anda dalam setiap tahap desain, dan jangan ragu untuk berkonsultasi dengan arsitek profesional untuk mendapatkan hasil yang optimal.
Jawaban untuk Pertanyaan Umum
Bagaimana cara memaksimalkan pencahayaan alami di rumah 10×20 2 lantai?
Gunakan jendela besar, skylight, dan kaca transparan untuk memaksimalkan cahaya alami.
Apakah ada tips untuk memilih furnitur yang tepat untuk rumah 10×20 2 lantai?
Pilih furnitur multifungsi, dengan ukuran yang sesuai dengan ruangan dan hindari furnitur yang terlalu besar.

