Membangun rumah impian dengan luas 10 x 12 meter? Anda berada di tempat yang tepat! Desain rumah 10 x 12 menawarkan solusi ideal untuk hunian keluarga kecil yang nyaman dan fungsional. Dengan perencanaan yang tepat, rumah mungil ini bisa diubah menjadi oase pribadi yang penuh gaya dan memuaskan kebutuhan Anda.
Artikel ini akan membahas berbagai aspek desain rumah 10 x 12, mulai dari tata letak ruangan yang efisien, inspirasi desain eksterior yang menarik, hingga tips desain interior yang optimal. Simak selengkapnya untuk mendapatkan inspirasi dan panduan praktis dalam mewujudkan rumah idaman Anda!
Desain Rumah 10 x 12

Membangun rumah dengan luas 10 x 12 meter merupakan pilihan yang menarik, menawarkan ruang yang cukup untuk keluarga kecil hingga menengah. Desain ini memiliki karakteristik unik yang perlu dipertimbangkan sebelum Anda memutuskan untuk membangun rumah dengan ukuran tersebut.
Gambaran Umum Desain Rumah 10 x 12
Desain rumah dengan luas 10 x 12 meter umumnya memiliki beberapa ciri khas. Desainnya cenderung simpel dan minimalis, dengan penekanan pada efisiensi penggunaan ruang. Rumah dengan luas ini cocok untuk konsep hunian yang fungsional dan modern.
Keuntungan dan Kekurangan Desain Rumah 10 x 12
Keuntungan
- Biaya pembangunan yang relatif lebih rendah dibandingkan dengan rumah dengan luas yang lebih besar.
- Memudahkan pengaturan tata letak ruangan sehingga setiap ruang dapat termanfaatkan secara optimal.
- Membutuhkan lahan yang tidak terlalu luas, cocok untuk area perkotaan dengan keterbatasan lahan.
Kekurangan
- Ruang yang terbatas dapat membatasi jumlah dan ukuran ruangan.
- Membutuhkan perencanaan yang matang untuk memaksimalkan fungsionalitas setiap ruangan.
- Kurang ideal untuk keluarga besar atau yang menginginkan banyak ruang terbuka.
Desain rumah 10 x 12 memberikan fleksibilitas untuk berbagai gaya, termasuk gaya kontemporer yang sedang populer. Gaya kontemporer, dengan ciri garis-garis bersih dan penggunaan material modern, desain rumah kontemporer bisa diaplikasikan pada rumah 10 x 12 dengan fokus pada pencahayaan alami dan penataan ruang yang efisien. Ini akan menghasilkan hunian yang terasa lapang dan modern, meskipun dengan ukuran yang terbatas.
Perbandingan Desain Rumah 10 x 12 dengan Desain Rumah Lain
Berikut adalah tabel perbandingan desain rumah 10 x 12 dengan desain rumah lain:
| Luas Rumah | Keuntungan | Kekurangan |
|---|---|---|
| 8 x 10 | Lebih hemat lahan, biaya pembangunan lebih rendah | Ruang lebih terbatas, kurang cocok untuk keluarga besar |
| 10 x 12 | Ruang cukup untuk keluarga kecil hingga menengah, biaya pembangunan relatif terjangkau | Membutuhkan perencanaan matang, kurang ideal untuk keluarga besar |
| 12 x 15 | Ruang lebih luas, lebih fleksibel dalam mengatur tata letak ruangan | Membutuhkan lahan yang lebih luas, biaya pembangunan lebih tinggi |
Desain rumah 10 x 12 memberikan ruang yang cukup untuk berbagai kebutuhan. Jika Anda menginginkan hunian vertikal, Anda bisa melihat contoh desain rumah minimalis 2 lantai 6×8 dan biayanya sebagai inspirasi. Meskipun lebih kecil, desain tersebut dapat memaksimalkan ruang dengan penataan yang cerdas. Konsep yang sama juga dapat diterapkan pada desain rumah 10 x 12, sehingga Anda bisa memiliki rumah yang nyaman dan fungsional.
Ide Tata Letak Ruangan

Membangun rumah 10 x 12 memberikan tantangan tersendiri dalam menata ruangan agar fungsional dan nyaman untuk keluarga kecil. Luas yang terbatas menuntut perencanaan yang cermat agar setiap sudut termanfaatkan dengan baik. Berikut beberapa ide tata letak ruangan yang dapat menjadi inspirasi:
Tata Letak Ruangan Optimal untuk Keluarga Kecil
Untuk memaksimalkan ruang di rumah 10 x 12, Anda bisa menerapkan beberapa strategi. Misalnya, gabungkan ruang tamu dan ruang makan menjadi satu area yang multifungsi. Dapur dapat dirancang dengan konsep terbuka atau semi-terbuka untuk menciptakan nuansa yang lapang. Ruang tidur sebaiknya dibuat minimalis dan fungsional dengan penggunaan furniture multifungsi.
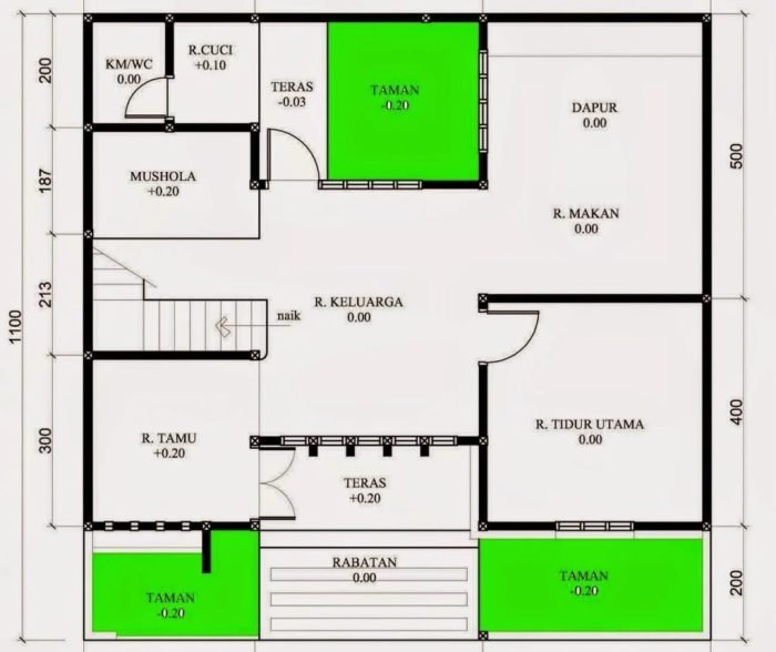
Sketsa Tata Letak Ruangan
Berikut contoh sketsa tata letak ruangan untuk rumah 10 x 12 yang memaksimalkan ruang dan pencahayaan:
- Ruang tamu dan ruang makan digabung menjadi satu area yang multifungsi.
- Dapur dirancang dengan konsep semi-terbuka dengan bar counter yang berfungsi sebagai meja makan kecil.
- Ruang tidur utama terletak di bagian belakang rumah dengan jendela besar untuk memaksimalkan cahaya alami.
- Ruang tidur anak dirancang minimalis dengan tempat tidur tingkat untuk menghemat ruang.
- Teras kecil di bagian depan rumah dapat digunakan untuk bersantai atau menanam tanaman.
Dalam sketsa ini, penempatan jendela dan pintu dirancang untuk memaksimalkan sirkulasi udara dan cahaya alami. Pencahayaan yang baik akan membuat ruangan terasa lebih luas dan nyaman.
Alternatif Tata Letak Ruangan
Selain tata letak ruangan yang minimalis dan fungsional, Anda juga dapat menerapkan konsep desain lain seperti modern atau tradisional.
Desain rumah 10 x 12 memberikan fleksibilitas untuk menciptakan ruangan yang luas dan nyaman. Jika kamu ingin mengeksplorasi desain yang lebih ramping dan efisien, bisa juga mengintip inspirasi dari desain rumah 6×10 melebar. Meskipun lebih kecil, desain ini dapat dioptimalkan dengan penataan yang cermat untuk memaksimalkan fungsi ruangan. Kembali ke desain rumah 10 x 12, kamu memiliki lebih banyak ruang untuk bereksperimen dengan berbagai gaya dan konsep desain interior.
Tata Letak Ruangan Minimalis
Desain minimalis menekankan pada kesederhanaan dan fungsionalitas. Ruangan dirancang dengan garis-garis bersih, warna netral, dan furniture yang minimal. Untuk rumah 10 x 12, Anda bisa menggunakan furniture multifungsi, seperti sofa bed atau meja lipat. Pencahayaan juga menjadi elemen penting dalam desain minimalis, dengan penggunaan lampu sorot atau lampu gantung yang simpel.
Tata Letak Ruangan Modern
Desain modern menekankan pada penggunaan material modern seperti kaca, logam, dan beton. Ruangan dirancang dengan garis-garis tegas, warna bold, dan furniture yang futuristik. Untuk rumah 10 x 12, Anda bisa menggunakan furniture dengan desain minimalis dan fungsional. Pencahayaan yang baik juga menjadi elemen penting dalam desain modern, dengan penggunaan lampu LED atau lampu neon yang modern.
Tata Letak Ruangan Tradisional
Desain tradisional menekankan pada penggunaan material alami seperti kayu, batu, dan bambu. Ruangan dirancang dengan detail yang rumit, warna hangat, dan furniture klasik. Untuk rumah 10 x 12, Anda bisa menggunakan furniture kayu dengan ukiran yang indah. Pencahayaan yang hangat juga menjadi elemen penting dalam desain tradisional, dengan penggunaan lampu minyak atau lampu gantung yang klasik.
Inspirasi Desain Eksterior

Membangun rumah dengan luas 10 x 12 meter memberikan tantangan tersendiri dalam merancang eksterior yang menarik. Luas yang terbatas mengharuskan Anda berpikir kreatif untuk memaksimalkan ruang dan menciptakan tampilan yang estetis. Berikut beberapa inspirasi desain eksterior rumah 10 x 12 dengan berbagai gaya arsitektur yang bisa Anda jadikan referensi.
Desain Eksterior Minimalis
Gaya minimalis identik dengan kesederhanaan dan fungsionalitas. Desain eksterior rumah 10 x 12 minimalis biasanya menggunakan warna-warna netral seperti putih, abu-abu, atau hitam. Material yang umum digunakan adalah batu alam, kayu, dan kaca. Salah satu ciri khas desain minimalis adalah penggunaan garis-garis tegas dan simetris, sehingga menciptakan tampilan yang bersih dan modern.
- Anda dapat menggunakan dinding bata ekspos dengan warna abu-abu muda untuk menciptakan kesan minimalis modern.
- Pintu dan jendela dengan bingkai aluminium berwarna hitam akan memberikan kontras yang menarik.
- Taman minimalis dengan tanaman hijau yang rimbun akan menambah kesegaran dan nuansa alami.
- Teras kecil dengan paving block dan kursi minimalis akan menjadi tempat yang nyaman untuk bersantai.
Desain Eksterior Mediterania
Desain Mediterania menghadirkan nuansa hangat dan cerah yang terinspirasi dari arsitektur daerah Mediterania. Ciri khas desain ini adalah penggunaan warna-warna tanah seperti cokelat, kuning, dan oranye, serta penggunaan material seperti batu alam, kayu, dan keramik.
- Gunakan cat dinding berwarna kuning lembut atau cokelat muda untuk menciptakan nuansa hangat.
- Pasang atap genting tanah liat berwarna merah bata untuk memberikan sentuhan khas Mediterania.
- Manfaatkan teras dengan pagar besi tempa dan tanaman rambat yang rimbun untuk menciptakan suasana yang romantis.
- Gunakan batu alam untuk dinding eksterior dan pilar, serta keramik untuk lantai teras.
Desain Eksterior Tropis, Desain rumah 10 x 12
Desain tropis cocok untuk rumah di daerah beriklim tropis yang lembap. Ciri khas desain ini adalah penggunaan material alami seperti kayu, bambu, dan batu alam. Warna-warna yang sering digunakan adalah warna-warna cerah seperti hijau, biru, dan kuning.
- Anda dapat menggunakan kayu jati untuk dinding eksterior dan teras.
- Pasang atap genteng beton dengan warna hijau toska untuk memberikan kesan sejuk dan alami.
- Gunakan tanaman hijau yang rimbun sebagai dekorasi taman dan teras.
- Buat kolam kecil di halaman depan untuk menambah kesejukan dan nuansa tropis.
Tips Desain Interior: Desain Rumah 10 X 12

Memiliki rumah dengan luas 10 x 12 meter persegi bisa menjadi tantangan tersendiri dalam menata interiornya. Namun, dengan sedikit kreativitas dan strategi yang tepat, Anda bisa menciptakan hunian yang nyaman, fungsional, dan estetis. Artikel ini akan membahas beberapa tips desain interior yang cocok untuk rumah berukuran mungil seperti ini.
Konsep Desain Interior
Memilih konsep desain interior yang tepat menjadi langkah awal yang penting. Konsep ini akan menjadi panduan dalam menentukan pilihan warna, material, furnitur, dan dekorasi. Berikut beberapa konsep desain interior yang cocok untuk rumah 10 x 12 meter persegi:
- Minimalis: Konsep minimalis menekankan pada kesederhanaan dan fungsionalitas. Ruangan dimaksimalkan dengan furnitur multifungsi dan dekorasi yang minimal. Pilihan warna netral seperti putih, abu-abu, dan hitam akan menciptakan kesan luas dan bersih.
- Modern: Desain modern identik dengan garis-garis tegas, bentuk geometrik, dan penggunaan material modern seperti kaca, logam, dan beton. Warna-warna berani seperti merah, kuning, dan biru dapat dipadukan dengan warna netral untuk menciptakan suasana yang dinamis.
- Skandinavia: Konsep Skandinavia mengutamakan penggunaan warna-warna pastel, material alami seperti kayu dan batu, serta pencahayaan yang alami. Desain ini menciptakan suasana yang hangat, nyaman, dan tenang.
Pemilihan Warna dan Material
Warna dan material berperan penting dalam menciptakan suasana dan kesan pada ruangan. Untuk rumah 10 x 12 meter persegi, sebaiknya pilih warna-warna terang dan material yang ringan untuk memberikan kesan luas dan lapang.
- Warna: Pilihan warna netral seperti putih, krem, abu-abu, dan beige dapat membuat ruangan terasa lebih luas. Anda dapat menambahkan warna aksen yang lebih berani pada beberapa elemen seperti bantal sofa, gorden, atau lukisan.
- Material: Gunakan material ringan seperti kayu, rotan, atau bambu untuk furnitur dan dekorasi. Material ini memberikan kesan natural dan tidak terlalu berat.
Furnitur dan Dekorasi
Pemilihan furnitur dan dekorasi yang tepat akan menentukan kenyamanan dan keindahan ruangan. Berikut beberapa tips untuk memilih furnitur dan dekorasi yang ideal untuk rumah 10 x 12 meter persegi:
- Furnitur Multifungsi: Pilih furnitur yang memiliki fungsi ganda, seperti sofa bed, meja lipat, atau rak dinding yang bisa digunakan sebagai tempat penyimpanan.
- Ukuran Furnitur: Pilih furnitur dengan ukuran yang sesuai dengan luas ruangan. Hindari furnitur yang terlalu besar karena dapat membuat ruangan terasa sempit.
- Dekorasi Minimalis: Pilih dekorasi yang sederhana dan tidak terlalu banyak. Gunakan cermin untuk menciptakan ilusi ruangan yang lebih luas. Tambahkan tanaman hijau untuk memberikan kesan segar dan alami.
Pertimbangan Praktis

Membangun rumah dengan luas terbatas seperti 10 x 12 meter membutuhkan perencanaan matang untuk memaksimalkan fungsi dan kenyamanan. Desain rumah yang baik harus mempertimbangkan aspek praktis seperti ventilasi, pencahayaan, sirkulasi udara, dan tata letak ruangan. Dengan pendekatan yang tepat, rumah 10 x 12 meter bisa tetap nyaman dan fungsional.
Checklist Pertimbangan Praktis
Berikut adalah beberapa aspek praktis yang perlu Anda pertimbangkan dalam desain rumah 10 x 12 meter:
- Ventilasi: Pastikan rumah memiliki ventilasi yang cukup untuk sirkulasi udara segar. Pertimbangkan penggunaan jendela yang besar, ventilasi silang, dan bukaan udara di bagian atas ruangan.
- Pencahayaan: Gunakan pencahayaan alami sebanyak mungkin dengan jendela yang lebar dan letak yang strategis. Penerangan buatan juga penting untuk malam hari dan area yang kurang cahaya alami. Pertimbangkan penggunaan lampu LED hemat energi.
- Sirkulasi Udara: Desain rumah harus mempertimbangkan aliran udara yang baik. Hindari penempatan furnitur yang menghalangi sirkulasi udara dan ciptakan ruang terbuka yang memungkinkan udara bersirkulasi dengan lancar.
- Tata Letak Ruangan: Rencanakan tata letak ruangan dengan cermat untuk memaksimalkan ruang. Hindari ruangan yang terlalu sempit dan pertimbangkan penggunaan furniture multifungsi.
- Material Bangunan: Gunakan material bangunan yang ramah lingkungan dan tahan lama. Pertimbangkan penggunaan material yang mudah dibersihkan dan tahan terhadap kelembaban.
Memaksimalkan Fungsi Ruangan
Rumah 10 x 12 meter mungkin terkesan kecil, namun dengan strategi yang tepat, Anda bisa memaksimalkan fungsinya. Berikut beberapa tips:
- Cermin: Cermin dapat menciptakan ilusi ruangan yang lebih luas. Letakkan cermin di dinding yang strategis untuk memantulkan cahaya dan membuat ruangan terasa lebih lapang.
- Furniture Multifungsi: Gunakan furniture multifungsi seperti sofa bed, meja lipat, atau lemari serbaguna. Hal ini akan membantu menghemat ruang dan memaksimalkan fungsinya.
- Pencahayaan: Pencahayaan yang tepat dapat membuat ruangan terasa lebih luas. Gunakan lampu dengan warna hangat dan letakkan di area yang strategis untuk menciptakan suasana yang nyaman dan inviting.
- Vertikal Storage: Manfaatkan ruang vertikal dengan rak dinding, lemari tinggi, atau tangga penyimpanan. Ini akan membantu memaksimalkan penyimpanan dan menjaga ruangan tetap rapi.
- Warna Cat: Gunakan warna cat yang cerah dan terang untuk membuat ruangan terasa lebih luas. Hindari warna gelap yang dapat membuat ruangan terasa sempit.
Adaptasi dengan Kebutuhan dan Gaya Hidup
Desain rumah 10 x 12 meter dapat disesuaikan dengan kebutuhan dan gaya hidup penghuninya. Misalnya, untuk keluarga muda, desain rumah bisa lebih fokus pada ruang bermain anak dan area multifungsi. Untuk pasangan muda, desain rumah bisa lebih minimalis dan modern dengan penekanan pada ruang terbuka dan dapur yang fungsional.
Penting untuk menentukan prioritas dan kebutuhan Anda sebelum mendesain rumah. Konsultasikan dengan arsitek atau desainer interior untuk mendapatkan solusi yang tepat sesuai dengan kebutuhan dan gaya hidup Anda.
Dengan perencanaan yang matang, desain rumah 10 x 12 dapat menjadi solusi ideal untuk hunian yang nyaman dan penuh gaya. Jangan ragu untuk mengeksplorasi berbagai ide dan tips yang telah dipaparkan dalam artikel ini untuk menciptakan rumah impian Anda. Ingat, kunci sukses dalam desain rumah terletak pada penyesuaian dengan kebutuhan dan gaya hidup penghuninya.
FAQ dan Informasi Bermanfaat
Apakah desain rumah 10 x 12 cocok untuk keluarga besar?
Desain rumah 10 x 12 lebih cocok untuk keluarga kecil atau pasangan. Untuk keluarga besar, disarankan untuk mempertimbangkan luas bangunan yang lebih besar.
Bagaimana cara memaksimalkan ruang di rumah 10 x 12?
Manfaatkan furniture multifungsi, cermin, dan pencahayaan alami untuk menciptakan ilusi ruang yang lebih luas.

